
| 賃料 | 予想金額:77,000〜97,000円程度 | 管理費 | 予想金額:4,000〜8,000円程度 |
| 礼金/敷金 | 非公開(アーカイブ) | 平米数 | 20.07㎡ |
| 初期費用概算(参考) | 目安:355,000〜455,000 円 | みなし賃料(月額・参考) | 89,625〜109,625 円 |
| 備考 | 本ページは過去募集のアーカイブです。表示の金額は周辺相場・過去募集を踏まえた参考レンジであり、実際の契約金額・条件ではありません。 | ||
※上記みなし賃料(月額)は仲介手数料割引・無料&キャッシュバックを加味した高級賃貸バイブル限定の金額です。一般的なみなし賃料とは異なります。
【建物ページ】菱和パレス白金高輪駅前の詳細・最新空室はこちら▶▶選ばれる理由
仲介手数料無料・キャンペーン情報(毎月15名様限定)
〇仲介手数料割引キャンペーン
菱和パレス白金高輪駅前 703の口コミ・レビュー
菱和パレス白金高輪駅前 703。都会の喧騒を一瞬忘れさせる、まるで魔法のような空間があなたをお待ちしています。この物件は、東京都港区白金1-13-7という洗練された場所に位置し、白金高輪駅からわずか徒歩2分の距離にあります。ここでの生活は、まるで映画のワンシーンのように、日々の瞬間が特別なものに変わります。
703号室は、東向きの静かな窓から朝日を受けて、優雅なひとときをあなたに届けます。窓辺に…菱和パレス白金高輪駅前 703。都会の喧騒を一瞬忘れさせる、まるで魔法のような空間があなたをお待ちしています。この物件は、東京都港区白金1-13-7という洗練された場所に位置し、白金高輪駅からわずか徒歩2分の距離にあります。ここでの生活は、まるで映画のワンシーンのように、日々の瞬間が特別なものに変わります。
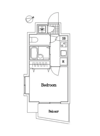
703号室は、東向きの静かな窓から朝日を受けて、優雅なひとときをあなたに届けます。窓辺に座り、日の光を浴びながら、温かなコーヒーの香りを楽しむ。その瞬間、心が落ち着き、日常からのひとときの解放が訪れます。専有面積は20.07㎡、このコンパクトな空間には、生活を彩るための全てが完璧に配されており、あなたの感性を刺激します。
間取りは1K、洋室は6.0帖。居心地の良いこの空間は、あなたのために作られたキャンバスです。シンプルでありながらも、高級感あふれるデザインは、忙しい日々の中でも心の安らぎを提供してくれます。その中で、自分のスタイルを表現し、独自の居場所を作り上げることができるのです。
菱和パレス白金高輪駅前 703は、24時間管理体制の下で安心安全に暮らせる環境を提供します。エレベーターやオートロック、宅配ボックスが完備され、暮らしの利便性が極めて高いといえるでしょう。特に、宅配ボックスの存在は、忙しい現代人には欠かせないもの。大切な荷物があなたの帰りを待っている、そのあたたかさを感じることができます。
この物件には、周辺の歴史や文化、芸術が息づいています。白金高輪というエリアは、美しきアートの街として名高く、周囲にはギャラリーやオシャレなカフェが点在しています。散策を楽しむことで、感性を磨き、豊かな心の栄養を得ることができることでしょう。夕暮れ時、近くの公園で穏やかな風を感じながら、アートと共に過ごす贅沢な時間を思い描いてみてください。
あなたが菱和パレス白金高輪駅前 703に住まうことは、まるで一生の物語が始まるようなものです。日々の出来事が色鮮やかに描かれ、心に残る思い出が積み重なっていくことでしょう。新たな生活の舞台で、あなた自身が主人公となり、感動と発見が詰まった毎日を楽しんでいただけます。ここには、特別な日常が待っています。ぜひ、あなたの物語の第一章を、この素敵な空間で始めてみませんか。
703号室は、東向きの静かな窓から朝日を受けて、優雅なひとときをあなたに届けます。窓辺に…菱和パレス白金高輪駅前 703。都会の喧騒を一瞬忘れさせる、まるで魔法のような空間があなたをお待ちしています。この物件は、東京都港区白金1-13-7という洗練された場所に位置し、白金高輪駅からわずか徒歩2分の距離にあります。ここでの生活は、まるで映画のワンシーンのように、日々の瞬間が特別なものに変わります。
703号室は、東向きの静かな窓から朝日を受けて、優雅なひとときをあなたに届けます。窓辺に座り、日の光を浴びながら、温かなコーヒーの香りを楽しむ。その瞬間、心が落ち着き、日常からのひとときの解放が訪れます。専有面積は20.07㎡、このコンパクトな空間には、生活を彩るための全てが完璧に配されており、あなたの感性を刺激します。
間取りは1K、洋室は6.0帖。居心地の良いこの空間は、あなたのために作られたキャンバスです。シンプルでありながらも、高級感あふれるデザインは、忙しい日々の中でも心の安らぎを提供してくれます。その中で、自分のスタイルを表現し、独自の居場所を作り上げることができるのです。
菱和パレス白金高輪駅前 703は、24時間管理体制の下で安心安全に暮らせる環境を提供します。エレベーターやオートロック、宅配ボックスが完備され、暮らしの利便性が極めて高いといえるでしょう。特に、宅配ボックスの存在は、忙しい現代人には欠かせないもの。大切な荷物があなたの帰りを待っている、そのあたたかさを感じることができます。
この物件には、周辺の歴史や文化、芸術が息づいています。白金高輪というエリアは、美しきアートの街として名高く、周囲にはギャラリーやオシャレなカフェが点在しています。散策を楽しむことで、感性を磨き、豊かな心の栄養を得ることができることでしょう。夕暮れ時、近くの公園で穏やかな風を感じながら、アートと共に過ごす贅沢な時間を思い描いてみてください。
あなたが菱和パレス白金高輪駅前 703に住まうことは、まるで一生の物語が始まるようなものです。日々の出来事が色鮮やかに描かれ、心に残る思い出が積み重なっていくことでしょう。新たな生活の舞台で、あなた自身が主人公となり、感動と発見が詰まった毎日を楽しんでいただけます。ここには、特別な日常が待っています。ぜひ、あなたの物語の第一章を、この素敵な空間で始めてみませんか。
バイブルスコア
バイブルスコア: 29.3
平均的なスコアです。
※バイブルスコア詳細はこちら
バイブルスコアとは独自のAI機械学習技術を利用した物件評価システムで、物件のおすすめ度を示します。最高得点は100点で、スコアが高いほど、よりおすすめの物件と評価されています。
写真
契約条件
| 賃料 | 予想金額:77,000〜97,000円程度 | 管理費 | 予想金額:4,000〜8,000円程度 |
| 礼金 | 非公開(アーカイブ) | 敷金 | 非公開(アーカイブ) |
| フリーレント | なし | 平米数 | 20.07㎡ |
| 間取り | 1K | 大型収納 | |
| 契約期間 |
| 方角 | 東 |
| 更新料 | 契約形態 | 普通賃貸借契約 | |
| 取引態様 | 媒介 | 内見状況 | 入居中 |
| 入居時期 | 入居中 | SOHO・事務所 | |
| ペット | 間取り内訳 | 洋室6.0畳 | |
| キャンペーン情報・備考 | 本情報は賃料改定交渉の資料作成、収益物件の利回り試算、周辺エリアや最寄り駅の坪単価分析、次回募集開始時期の予測などにご活用いただけます。 | ||
※「どの不動産に頼めばいいのか分からない」「信頼できる営業マンの話を聞きたい」「一番親切な会社と契約したい」とお悩みの方におすすめなのが「高級賃貸バイブル」です。
高級賃貸バイブルは業界10年以上の熟練スタッフ群がお客様ファーストで対応します。
下記ボタンから、まずは無料でご相談下さい。
※内覧をご希望の際には、どうぞ物件のエントランス前にてお待ち合わせくださいませ。ご内覧後は、同じ場所でお別れとさせていただきます。お客様のご都合に合わせたスムーズなご案内を心がけておりますので、ご質問等がございましたら何なりとお申し付けください。 物件概要
| 物件名 |
| 築年月 |
|
|---|---|---|---|
| 所在地 | |||
| 交通 | |||
| 総戸数 | 総階数 |
| |
| 構造 |
| ||
地図
物件までの道のりは、「拡大地図を表示」をクリックしてナビ機能をご利用ください。
部屋設備










建物設備

24時間管理

TVモニターホン

エレベーター

オートロック

宅配ボックス

敷地内ゴミ置場

駐輪場
菱和パレス白金高輪駅前の現在募集中のお部屋
- No rooms found for this property.









