
| 賃料 | 予想金額:180,000〜200,000円程度 | 管理費 | 予想金額:8,000〜12,000円程度 |
| 礼金/敷金 | 非公開(アーカイブ) | 平米数 | 36.81㎡ |
| 初期費用概算(参考) | 目安:738,000〜838,000 円 | みなし賃料(月額・参考) | 202,458〜222,458 円 |
| 備考 | 本ページは過去募集のアーカイブです。表示の金額は周辺相場・過去募集を踏まえた参考レンジであり、実際の契約金額・条件ではありません。 | ||
※上記みなし賃料(月額)は仲介手数料割引・無料&キャッシュバックを加味した高級賃貸バイブル限定の金額です。一般的なみなし賃料とは異なります。
【建物ページ】ルフェール南青山の詳細・最新空室はこちら▶▶選ばれる理由
仲介手数料無料・キャンペーン情報(毎月15名様限定)
〇仲介手数料割引キャンペーン
ルフェール南青山 205の口コミ・レビュー
「ルフェール南青山 205」、あなたの新たな人生の舞台はここから始まります。この魅力的な物件は、まるで詩の1行のように、日常生活を美しく彩る要素を宿しています。南東を向いたこの部屋は、朝日が優しく差し込み、穏やかな光が心を癒してくれることでしょう。専有面積36.81㎡に広がる空間は、心地よい風が軽やかに舞い込む場所で、まるで大切な思い出を静かに育む温室のようです。
ルフェール南青山 205の中へ…「ルフェール南青山 205」、あなたの新たな人生の舞台はここから始まります。この魅力的な物件は、まるで詩の1行のように、日常生活を美しく彩る要素を宿しています。南東を向いたこの部屋は、朝日が優しく差し込み、穏やかな光が心を癒してくれることでしょう。専有面積36.81㎡に広がる空間は、心地よい風が軽やかに舞い込む場所で、まるで大切な思い出を静かに育む温室のようです。
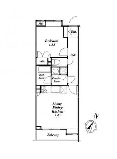
ルフェール南青山 205の中へ足を踏み入れると、まず感じるのは、その空間が呼吸をし、あなたと共鳴するかのような感覚です。LDKは9.4帖の広さを誇り、まるで親しい友人を招いた時のように、笑い声が響く場所。友人と囲むテーブルには、色とりどりの料理が並び、香ばしい香りが漂うことでしょう。洋室は4.5帖あり、ひとりの時間を静かに楽しむための完璧なリトリート。この空間で、あなたは思索を巡らせたり、ページをめくることで新たな世界を探求したりすることができます。
さらに、この物件の魅力の一つは、最新の設備が整えられている点です。TVモニターホンやエレベーター、オートロックを備えており、安心して暮らすことができます。利便性と快適さを兼ね備えたルフェール南青山 205は、まるであなたの生活を優雅に導く名曲のようです。宅配ボックスや駐車場も完備されているため、都会の喧騒の中でも一日の疲れを忘れる贅沢を味わえます。
この物件は、東京都港区南青山3-7-7という歴史深い地に位置しています。南青山は、洗練されたカフェやアートギャラリーが点在し、文化と芸術が息づく街。その雰囲気は、まるで映画のワンシーンのように、心に残る情景を奏でます。おしゃれなショップの前を歩く際には、ショッピングの楽しさや、行き交う人々のあたたかさを感じることができるでしょう。
ルフェール南青山 205は、あなたの生活を豊かにし、感性を刺激する場所です。ここでの生活は、五感を研ぎ澄ます美しい旅になることでしょう。目の前で繰り広げられる日常の風景は、まるでアート作品のようにあなたの心を満たし、耳を澄ませば、周囲の静けさに包まれる瞬間が心地よいメロディとなります。
この特別な場所で、あなたが新たなストーリーを紡いでいくことを、心より願っています。ルフェール南青山 205は、あなたを待っています。そのドアを開け、新しい生活の一歩を踏み出してみてください。あなたの人生が、ここから始まるのです。
ルフェール南青山 205の中へ…「ルフェール南青山 205」、あなたの新たな人生の舞台はここから始まります。この魅力的な物件は、まるで詩の1行のように、日常生活を美しく彩る要素を宿しています。南東を向いたこの部屋は、朝日が優しく差し込み、穏やかな光が心を癒してくれることでしょう。専有面積36.81㎡に広がる空間は、心地よい風が軽やかに舞い込む場所で、まるで大切な思い出を静かに育む温室のようです。
ルフェール南青山 205の中へ足を踏み入れると、まず感じるのは、その空間が呼吸をし、あなたと共鳴するかのような感覚です。LDKは9.4帖の広さを誇り、まるで親しい友人を招いた時のように、笑い声が響く場所。友人と囲むテーブルには、色とりどりの料理が並び、香ばしい香りが漂うことでしょう。洋室は4.5帖あり、ひとりの時間を静かに楽しむための完璧なリトリート。この空間で、あなたは思索を巡らせたり、ページをめくることで新たな世界を探求したりすることができます。
さらに、この物件の魅力の一つは、最新の設備が整えられている点です。TVモニターホンやエレベーター、オートロックを備えており、安心して暮らすことができます。利便性と快適さを兼ね備えたルフェール南青山 205は、まるであなたの生活を優雅に導く名曲のようです。宅配ボックスや駐車場も完備されているため、都会の喧騒の中でも一日の疲れを忘れる贅沢を味わえます。
この物件は、東京都港区南青山3-7-7という歴史深い地に位置しています。南青山は、洗練されたカフェやアートギャラリーが点在し、文化と芸術が息づく街。その雰囲気は、まるで映画のワンシーンのように、心に残る情景を奏でます。おしゃれなショップの前を歩く際には、ショッピングの楽しさや、行き交う人々のあたたかさを感じることができるでしょう。
ルフェール南青山 205は、あなたの生活を豊かにし、感性を刺激する場所です。ここでの生活は、五感を研ぎ澄ます美しい旅になることでしょう。目の前で繰り広げられる日常の風景は、まるでアート作品のようにあなたの心を満たし、耳を澄ませば、周囲の静けさに包まれる瞬間が心地よいメロディとなります。
この特別な場所で、あなたが新たなストーリーを紡いでいくことを、心より願っています。ルフェール南青山 205は、あなたを待っています。そのドアを開け、新しい生活の一歩を踏み出してみてください。あなたの人生が、ここから始まるのです。
バイブルスコア
バイブルスコア: 51.6
条件のいい物件です、引っ越しが2か月以内の場合は仮申し込みを検討すべき物件です。
このお部屋は、現在ご入居中のため空室情報はございません。ただし、将来的に募集が開始される際、バイブルスコアにおいて非常に高い評価が期待されます。特にご興味をお持ちの方は、今のうちにブックマークやお気に入りに登録していただくと、募集開始のお知らせをすぐに受け取ることができます。是非ともご検討くださいませ。
※バイブルスコア詳細はこちら
バイブルスコアとは独自のAI機械学習技術を利用した物件評価システムで、物件のおすすめ度を示します。最高得点は100点で、スコアが高いほど、よりおすすめの物件と評価されています。
写真
契約条件
| 賃料 | 予想金額:180,000〜200,000円程度 | 管理費 | 予想金額:8,000〜12,000円程度 |
| 礼金 | 非公開(アーカイブ) | 敷金 | 非公開(アーカイブ) |
| フリーレント | なし | 平米数 | 36.81㎡ |
| 間取り | 1LDK | 大型収納 | なし |
| 契約期間 | 備考を参照 | 方角 | 南東 |
| 更新料 | 備考を参照 | 契約形態 | 定期借家契約 |
| 取引態様 | 媒介 | 内見状況 | 入居中 |
| 入居時期 | 入居中 | SOHO・事務所 | 不可 |
| ペット | ペット可 | 間取り内訳 | 洋室4.5 LDK:9.4 |
| キャンペーン情報・備考 | 本情報は賃料改定交渉の資料作成、収益物件の利回り試算、周辺エリアや最寄り駅の坪単価分析、次回募集開始時期の予測などにご活用いただけます。 | ||
※「どの不動産に頼めばいいのか分からない」「信頼できる営業マンの話を聞きたい」「一番親切な会社と契約したい」とお悩みの方におすすめなのが「高級賃貸バイブル」です。
高級賃貸バイブルは業界10年以上の熟練スタッフ群がお客様ファーストで対応します。
下記ボタンから、まずは無料でご相談下さい。
※内覧をご希望の際には、どうぞ物件のエントランス前にてお待ち合わせくださいませ。ご内覧後は、同じ場所でお別れとさせていただきます。お客様のご都合に合わせたスムーズなご案内を心がけておりますので、ご質問等がございましたら何なりとお申し付けください。 物件概要
| 物件名 |
| 築年月 |
|
|---|---|---|---|
| 所在地 | |||
| 交通 | |||
| 総戸数 |
| 総階数 |
|
| 構造 |
| ||
地図
物件までの道のりは、「拡大地図を表示」をクリックしてナビ機能をご利用ください。
部屋設備













建物設備

TVモニターホン

エレベーター

オートロック

宅配ボックス

敷地内ゴミ置場

駐車場機械式

駐輪場
ルフェール南青山の現在募集中のお部屋
- No rooms found for this property.

















