
| 賃料 | 予想金額:80,000〜100,000円程度 | 管理費 | 予想金額:8,000〜12,000円程度 |
| 礼金/敷金 | 非公開(アーカイブ) | 平米数 | 22.78㎡ |
| 初期費用概算(参考) | 目安:281,500〜381,500 円 | みなし賃料(月額・参考) | 95,031〜115,031 円 |
| 備考 | 本ページは過去募集のアーカイブです。表示の金額は周辺相場・過去募集を踏まえた参考レンジであり、実際の契約金額・条件ではありません。 | ||
※上記みなし賃料(月額)は仲介手数料割引・無料&キャッシュバックを加味した高級賃貸バイブル限定の金額です。一般的なみなし賃料とは異なります。
【建物ページ】ラグジュアリーアパートメント三田慶大前の詳細・最新空室はこちら▶▶選ばれる理由
仲介手数料無料・キャンペーン情報(毎月15名様限定)
〇仲介手数料割引キャンペーン
ラグジュアリーアパートメント三田慶大前 702の口コミ・レビュー
ラグジュアリーアパートメント三田慶大前 702。ここは単なる住まいではなく、心の拠り所であり、貴方の人生の新たな章を彩る舞台です。この702号室は、東京都港区芝5-2-4という美しい立地にあり、高貴な時を刻む街の中心に立っています。東を向く窓からは、朝日の優しい輝きが差し込み、日々の始まりを祝福するかのようです。
このアパートメントは、まるで貴族の隠れ家のように、静寂と安心感に包まれています。2…ラグジュアリーアパートメント三田慶大前 702。ここは単なる住まいではなく、心の拠り所であり、貴方の人生の新たな章を彩る舞台です。この702号室は、東京都港区芝5-2-4という美しい立地にあり、高貴な時を刻む街の中心に立っています。東を向く窓からは、朝日の優しい輝きが差し込み、日々の始まりを祝福するかのようです。
このアパートメントは、まるで貴族の隠れ家のように、静寂と安心感に包まれています。24時間管理された安全な環境の中、エレガントなデザインと近代的な設備が融合し、日常生活の中に小さな贅沢をもたらします。TVモニターホンやオートロックが、まるで守護天使のようにあたなたを包み込み、安心感を提供してくれます。
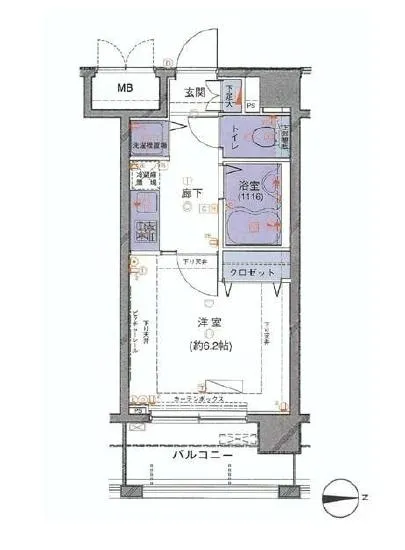
702号室のドアを開けると、そこには6.2帖の洋室が広がり、一瞬で貴方の感覚を奪います。広がる空間は、心地よい風が吹き抜け、静かな優雅さを感じさせます。内装は高品質な素材で仕上げられ、触れるたびに上質さを実感させてくれます。やわらかな光が壁を優しく照らし、まるでアート作品のように洗練された空間が、心を癒してくれるのです。
朝起きた時、冷たいタイルの床に足を下ろすその瞬間、少し身震いしながらも、これからの一日への期待感に胸が高鳴ります。香ばしいコーヒーの香りが、朝食の準備を知らせると共に、心地よい音楽が静かに流れ、穏やかな空気を運んできます。その瞬間、優雅な生活がここにあることを実感し、日常が映画のワンシーンのように現実化するのです。
このラグジュアリーアパートメント三田慶大前 702は、文化と歴史に包まれた街の中に位置し、周囲には洗練されたカフェやショップ、アートギャラリーが点在しています。それはまるで古き良き時代と現代が交差する地点であり、貴方の感性を刺激し、毎日の生活に彩りを添えてくれます。ひとたび外に出れば、歴史的な建物の美しさや、街角で出会う芸術作品が、日々のインスピレーションとなることでしょう。
ラグジュアリーアパートメント三田慶大前 702での生活は、単なる「住む」ことではなく、「生きる」ことを意味します。ここでのひとときは、あなただけの物語のページをめくる瞬間であり、日々の暮らしがアートとなり、豊かな情感に満ち溢れることでしょう。ここでの生活は、貴方にしかない特別な体験へと変わり、自らのスタイルを見出す旅が待っています。さあ、この偉大な舞台で、一緒に物語を紡いでみませんか。
このアパートメントは、まるで貴族の隠れ家のように、静寂と安心感に包まれています。2…ラグジュアリーアパートメント三田慶大前 702。ここは単なる住まいではなく、心の拠り所であり、貴方の人生の新たな章を彩る舞台です。この702号室は、東京都港区芝5-2-4という美しい立地にあり、高貴な時を刻む街の中心に立っています。東を向く窓からは、朝日の優しい輝きが差し込み、日々の始まりを祝福するかのようです。
このアパートメントは、まるで貴族の隠れ家のように、静寂と安心感に包まれています。24時間管理された安全な環境の中、エレガントなデザインと近代的な設備が融合し、日常生活の中に小さな贅沢をもたらします。TVモニターホンやオートロックが、まるで守護天使のようにあたなたを包み込み、安心感を提供してくれます。
702号室のドアを開けると、そこには6.2帖の洋室が広がり、一瞬で貴方の感覚を奪います。広がる空間は、心地よい風が吹き抜け、静かな優雅さを感じさせます。内装は高品質な素材で仕上げられ、触れるたびに上質さを実感させてくれます。やわらかな光が壁を優しく照らし、まるでアート作品のように洗練された空間が、心を癒してくれるのです。
朝起きた時、冷たいタイルの床に足を下ろすその瞬間、少し身震いしながらも、これからの一日への期待感に胸が高鳴ります。香ばしいコーヒーの香りが、朝食の準備を知らせると共に、心地よい音楽が静かに流れ、穏やかな空気を運んできます。その瞬間、優雅な生活がここにあることを実感し、日常が映画のワンシーンのように現実化するのです。
このラグジュアリーアパートメント三田慶大前 702は、文化と歴史に包まれた街の中に位置し、周囲には洗練されたカフェやショップ、アートギャラリーが点在しています。それはまるで古き良き時代と現代が交差する地点であり、貴方の感性を刺激し、毎日の生活に彩りを添えてくれます。ひとたび外に出れば、歴史的な建物の美しさや、街角で出会う芸術作品が、日々のインスピレーションとなることでしょう。
ラグジュアリーアパートメント三田慶大前 702での生活は、単なる「住む」ことではなく、「生きる」ことを意味します。ここでのひとときは、あなただけの物語のページをめくる瞬間であり、日々の暮らしがアートとなり、豊かな情感に満ち溢れることでしょう。ここでの生活は、貴方にしかない特別な体験へと変わり、自らのスタイルを見出す旅が待っています。さあ、この偉大な舞台で、一緒に物語を紡いでみませんか。
バイブルスコア
バイブルスコア: 31.4
平均的なスコアです。
※バイブルスコア詳細はこちら
バイブルスコアとは独自のAI機械学習技術を利用した物件評価システムで、物件のおすすめ度を示します。最高得点は100点で、スコアが高いほど、よりおすすめの物件と評価されています。
写真
契約条件
| 賃料 | 予想金額:80,000〜100,000円程度 | 管理費 | 予想金額:8,000〜12,000円程度 |
| 礼金 | 非公開(アーカイブ) | 敷金 | 非公開(アーカイブ) |
| フリーレント | なし | 平米数 | 22.78㎡ |
| 間取り | 1K | 大型収納 | |
| 契約期間 |
| 方角 | 東 |
| 更新料 | 契約形態 | 普通賃貸借契約 | |
| 取引態様 | 媒介 | 内見状況 | 入居中 |
| 入居時期 | 入居中 | SOHO・事務所 | |
| ペット | 間取り内訳 | 洋室6.2帖 | |
| キャンペーン情報・備考 | 本情報は賃料改定交渉の資料作成、収益物件の利回り試算、周辺エリアや最寄り駅の坪単価分析、次回募集開始時期の予測などにご活用いただけます。 | ||
※「どの不動産に頼めばいいのか分からない」「信頼できる営業マンの話を聞きたい」「一番親切な会社と契約したい」とお悩みの方におすすめなのが「高級賃貸バイブル」です。
高級賃貸バイブルは業界10年以上の熟練スタッフ群がお客様ファーストで対応します。
下記ボタンから、まずは無料でご相談下さい。
※内覧をご希望の際には、どうぞ物件のエントランス前にてお待ち合わせくださいませ。ご内覧後は、同じ場所でお別れとさせていただきます。お客様のご都合に合わせたスムーズなご案内を心がけておりますので、ご質問等がございましたら何なりとお申し付けください。 物件概要
| 物件名 |
| 築年月 |
|
|---|---|---|---|
| 所在地 | |||
| 交通 | |||
| 総戸数 |
| 総階数 |
|
| 構造 |
| ||
地図
物件までの道のりは、「拡大地図を表示」をクリックしてナビ機能をご利用ください。
部屋設備










建物設備

24時間管理

TVモニターホン

エレベーター

オートロック

宅配ボックス

敷地内ゴミ置場

駐輪場
ラグジュアリーアパートメント三田慶大前の現在募集中のお部屋
- No rooms found for this property.





























