
| 賃料 | 予想金額:370,000〜390,000円程度 | 管理費 | 予想金額:8,000〜12,000円程度 |
| 礼金/敷金 | 非公開(アーカイブ) | 平米数 | 54.23㎡ |
| 初期費用概算(参考) | 目安:1,478,020〜1,578,020 円 | みなし賃料(月額・参考) | 403,917〜423,917 円 |
| 備考 | 本ページは過去募集のアーカイブです。表示の金額は周辺相場・過去募集を踏まえた参考レンジであり、実際の契約金額・条件ではありません。 | ||
※上記みなし賃料(月額)は仲介手数料割引・無料&キャッシュバックを加味した高級賃貸バイブル限定の金額です。一般的なみなし賃料とは異なります。
【建物ページ】オープンレジデンシア南青山の詳細・最新空室はこちら▶▶選ばれる理由
仲介手数料無料・キャンペーン情報(毎月15名様限定)
〇仲介手数料割引キャンペーン
オープンレジデンシア南青山 6階 54.23㎡の口コミ・レビュー
オープンレジデンシア南青山 6階 54.23㎡は、まるで都会の喧騒から隔絶された静かなオアシスのように存在しています。この特別な空間は、あなたの生活を豊かにするために生まれました。南青山の洗練された街並みに佇むこの物件は、まさに現代の城であり、あなたを迎え入れる準備が整っています。
エレベーターで6階へ上がると、扉が静かに開き、あなたをお迎えするのは、14.2帖の広々としたLDKの優雅な空間。日…オープンレジデンシア南青山 6階 54.23㎡は、まるで都会の喧騒から隔絶された静かなオアシスのように存在しています。この特別な空間は、あなたの生活を豊かにするために生まれました。南青山の洗練された街並みに佇むこの物件は、まさに現代の城であり、あなたを迎え入れる準備が整っています。
エレベーターで6階へ上がると、扉が静かに開き、あなたをお迎えするのは、14.2帖の広々としたLDKの優雅な空間。日差しが北東から柔らかく差し込むこの部屋は、まるで古代の画家がキャンバスに描くように、あなたの1日の物語を演出します。ここで、温かな朝の光に包まれながら、香ばしいコーヒーの香りが漂う朝食を味わい、穏やかなひとときを過ごすことができるでしょう。
続いて繋がる洋室7.2帖は、心の安らぎを与える隠れ家のような存在。自分だけの時間を過ごすための場所として、あなたの思い出や想像力をゆっくりと育てる場所となることでしょう。柔らかなカーテン越しに風が吹き抜けると、まるで自然と一体になったかのような感覚を味わえます。ここでは、お気に入りの本を手に取り、ページをめくる音が静まり返った空間に響くことでしょう。もしくは、静かな夕暮れ時に、大好きな音楽を流し、リズムに合わせて心を解放することも素敵な過ごし方です。
オープンレジデンシア南青山は、ただの住まいではありません。それは、あなたのライフスタイルを豊かにする舞台です。宅配ボックスやオートロックシステム、管理人の存在によって、日々の暮らしが安心と快適さで満たされます。大切な人を招待し、ここで特別な時間を共に過ごすことができるのも、またこの物件の魅力のひとつです。周囲の高級ブティックやカフェに散策し、心に残る美味しい料理や素敵な出会いを楽しめば、オープンレジデンシア南青山での生活は、まるで映画の一幕のように素晴らしいものになることでしょう。
さらに、歴史と文化が息づくこの地区の中で、アートに触れ、地元の人々や文化と繋がることで、あなたの心はより豊かに育まれていきます。たゆたうような時間が流れる中で、南青山の魅力を存分に味わうことができるのです。
オープンレジデンシア南青山 6階 54.23㎡は、あなたに心の豊かさを提供する特別な空間。ここで明日への夢を描き、未来を感じながら生活を築いていってください。あなたの新しい日常が、この上品な住まいで始まるのです。あなたの物語が、ここから始まります。
エレベーターで6階へ上がると、扉が静かに開き、あなたをお迎えするのは、14.2帖の広々としたLDKの優雅な空間。日…オープンレジデンシア南青山 6階 54.23㎡は、まるで都会の喧騒から隔絶された静かなオアシスのように存在しています。この特別な空間は、あなたの生活を豊かにするために生まれました。南青山の洗練された街並みに佇むこの物件は、まさに現代の城であり、あなたを迎え入れる準備が整っています。
エレベーターで6階へ上がると、扉が静かに開き、あなたをお迎えするのは、14.2帖の広々としたLDKの優雅な空間。日差しが北東から柔らかく差し込むこの部屋は、まるで古代の画家がキャンバスに描くように、あなたの1日の物語を演出します。ここで、温かな朝の光に包まれながら、香ばしいコーヒーの香りが漂う朝食を味わい、穏やかなひとときを過ごすことができるでしょう。
続いて繋がる洋室7.2帖は、心の安らぎを与える隠れ家のような存在。自分だけの時間を過ごすための場所として、あなたの思い出や想像力をゆっくりと育てる場所となることでしょう。柔らかなカーテン越しに風が吹き抜けると、まるで自然と一体になったかのような感覚を味わえます。ここでは、お気に入りの本を手に取り、ページをめくる音が静まり返った空間に響くことでしょう。もしくは、静かな夕暮れ時に、大好きな音楽を流し、リズムに合わせて心を解放することも素敵な過ごし方です。
オープンレジデンシア南青山は、ただの住まいではありません。それは、あなたのライフスタイルを豊かにする舞台です。宅配ボックスやオートロックシステム、管理人の存在によって、日々の暮らしが安心と快適さで満たされます。大切な人を招待し、ここで特別な時間を共に過ごすことができるのも、またこの物件の魅力のひとつです。周囲の高級ブティックやカフェに散策し、心に残る美味しい料理や素敵な出会いを楽しめば、オープンレジデンシア南青山での生活は、まるで映画の一幕のように素晴らしいものになることでしょう。
さらに、歴史と文化が息づくこの地区の中で、アートに触れ、地元の人々や文化と繋がることで、あなたの心はより豊かに育まれていきます。たゆたうような時間が流れる中で、南青山の魅力を存分に味わうことができるのです。
オープンレジデンシア南青山 6階 54.23㎡は、あなたに心の豊かさを提供する特別な空間。ここで明日への夢を描き、未来を感じながら生活を築いていってください。あなたの新しい日常が、この上品な住まいで始まるのです。あなたの物語が、ここから始まります。
バイブルスコア
バイブルスコア: 72.9
かなり条件の良い物件です、即仮押さえをおすすめする物件です!
このお部屋は、現在ご入居中のため空室情報はございません。ただし、将来的に募集が開始される際、バイブルスコアにおいて非常に高い評価が期待されます。特にご興味をお持ちの方は、今のうちにブックマークやお気に入りに登録していただくと、募集開始のお知らせをすぐに受け取ることができます。是非ともご検討くださいませ。
※バイブルスコア詳細はこちら
バイブルスコアとは独自のAI機械学習技術を利用した物件評価システムで、物件のおすすめ度を示します。最高得点は100点で、スコアが高いほど、よりおすすめの物件と評価されています。
写真
契約条件
| 賃料 | 予想金額:370,000〜390,000円程度 | 管理費 | 予想金額:8,000〜12,000円程度 |
| 礼金 | 非公開(アーカイブ) | 敷金 | 非公開(アーカイブ) |
| フリーレント | なし | 平米数 | 54.23㎡ |
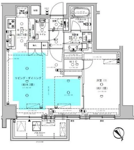
| 間取り | 1LDK+WIC | 大型収納 | WIC |
| 契約期間 | 相談 | 方角 | 北東 |
| 更新料 | 契約期間を参照 | 契約形態 | 定期借家契約 |
| 取引態様 | 媒介 | 内見状況 | 入居中 |
| 入居時期 | 入居中 | SOHO・事務所 | 不可 |
| ペット | 不可 | 間取り内訳 | LDK14.2帖 洋室7.2帖 |
| キャンペーン情報・備考 | 本情報は賃料改定交渉の資料作成、収益物件の利回り試算、周辺エリアや最寄り駅の坪単価分析、次回募集開始時期の予測などにご活用いただけます。 | ||
※「どの不動産に頼めばいいのか分からない」「信頼できる営業マンの話を聞きたい」「一番親切な会社と契約したい」とお悩みの方におすすめなのが「高級賃貸バイブル」です。
高級賃貸バイブルは業界10年以上の熟練スタッフ群がお客様ファーストで対応します。
下記ボタンから、まずは無料でご相談下さい。
※内覧をご希望の際には、どうぞ物件のエントランス前にてお待ち合わせくださいませ。ご内覧後は、同じ場所でお別れとさせていただきます。お客様のご都合に合わせたスムーズなご案内を心がけておりますので、ご質問等がございましたら何なりとお申し付けください。 物件概要
| 物件名 |
| 築年月 |
|
|---|---|---|---|
| 所在地 | |||
| 交通 |
| ||
| 総戸数 |
| 総階数 |
|
| 構造 |
| ||
地図
物件までの道のりは、「拡大地図を表示」をクリックしてナビ機能をご利用ください。
部屋設備










建物設備

TVモニターホン

エレベーター

オートロック

宅配ボックス

敷地内ゴミ置場

管理人

駐輪場
オープンレジデンシア南青山の現在募集中のお部屋
- No rooms found for this property.





















