
| 賃料 | 予想金額:175,000〜195,000円程度 | 管理費 | 予想金額:0〜2,000円程度 |
| 礼金/敷金 | 非公開(アーカイブ) | 平米数 | 55.78㎡ |
| 初期費用概算(参考) | 目安:874,000〜974,000 円 | みなし賃料(月額・参考) | 190,396〜210,396 円 |
| 備考 | 本ページは過去募集のアーカイブです。表示の金額は周辺相場・過去募集を踏まえた参考レンジであり、実際の契約金額・条件ではありません。 | ||
※上記みなし賃料(月額)は仲介手数料割引・無料&キャッシュバックを加味した高級賃貸バイブル限定の金額です。一般的なみなし賃料とは異なります。
【建物ページ】藤和シティスクエア三田ノースウィングの詳細・最新空室はこちら▶▶選ばれる理由
仲介手数料無料・キャンペーン情報(毎月15名様限定)
〇仲介手数料割引キャンペーン
藤和シティスクエア三田ノースウィング 6階 55.78㎡の口コミ・レビュー
藤和シティスクエア三田ノースウィング 6階 55.78㎡、この名を冠する美しい住まいは、日常の喧騒から解放された、まるで静謐な隠れ家のようです。この特別な空間に住むことで、あなたはまるで映画の主人公になったかのように、自分だけの物語を紡いでいくことができるのです。
まず、この住まいの扉を開けると、心地よい木の温もりが迎えてくれます。広がるLDK10.5帖は、まさに家族や友人と過ごす最高の舞台です…藤和シティスクエア三田ノースウィング 6階 55.78㎡、この名を冠する美しい住まいは、日常の喧騒から解放された、まるで静謐な隠れ家のようです。この特別な空間に住むことで、あなたはまるで映画の主人公になったかのように、自分だけの物語を紡いでいくことができるのです。
まず、この住まいの扉を開けると、心地よい木の温もりが迎えてくれます。広がるLDK10.5帖は、まさに家族や友人と過ごす最高の舞台です。大きな窓からは西日が優しく差し込み、柔らかな光が部屋の隅々まで包み込みます。その光の中で、あなたはコーヒーの香りが漂う朝のひとときを楽しんだり、夕方はワインを片手に静かな夜の訪れを感じたりすることでしょう。
洋室4.5帖と洋室6.0帖も、各々に独自の魅力を秘めています。ここは、あなたがリラックスして心の平和を取り戻すための贅沢な空間。夜の帳が下りた時、静かな眠りへと誘う場所となることでしょう。布団に身を沈めると、心地よい柔らかさが全身を包み込み、自然と安らぎの色合いが心に満ちていきます。
藤和シティスクエア三田ノースウィングは、ただの住まいではありません。生活を豊かに彩る利便性も兼ね備えています。エレベーターで6階に上がる瞬間、まるで大きな数字のカウントダウンの後に訪れるハッピーエンドのような期待感が漂います。また、オートロックで守られた空間は、あなたの大切なプライバシーをしっかりと守ります。
周囲に広がる港区三田の街は、歴史の香りが漂うエレガントな場所。近隣には文化施設も多く、アートや音楽に触れる日々が送れます。美術館でのひとときを想像すると、心の底から満たされる感覚が生まれることでしょう。日々の生活の中で、この街と共鳴し、あなた自身も一層深い芸術家のような存在になっていくのです。
宅配ボックスが設置されていることも、あなたの生活をより便利にしてくれる要素です。外出の際に受け取った大切な荷物が、家で待っているように感じられるのは、心の豊かさをもたらします。また、敷地内のゴミ置場や駐輪場も、日常の些細なストレスを軽減させる役割を果たしてくれることでしょう。
藤和シティスクエア三田ノースウィング 6階 55.78㎡での生活は、まるで素敵な映画のワンシーンのようにあなたを迎えてくれます。この空間で紡がれる日々は、まさにあなた自身の作品として、心に刻まれていくことでしょう。さあ、この特別な場所で、あなたの物語を始めてください。
まず、この住まいの扉を開けると、心地よい木の温もりが迎えてくれます。広がるLDK10.5帖は、まさに家族や友人と過ごす最高の舞台です…藤和シティスクエア三田ノースウィング 6階 55.78㎡、この名を冠する美しい住まいは、日常の喧騒から解放された、まるで静謐な隠れ家のようです。この特別な空間に住むことで、あなたはまるで映画の主人公になったかのように、自分だけの物語を紡いでいくことができるのです。
まず、この住まいの扉を開けると、心地よい木の温もりが迎えてくれます。広がるLDK10.5帖は、まさに家族や友人と過ごす最高の舞台です。大きな窓からは西日が優しく差し込み、柔らかな光が部屋の隅々まで包み込みます。その光の中で、あなたはコーヒーの香りが漂う朝のひとときを楽しんだり、夕方はワインを片手に静かな夜の訪れを感じたりすることでしょう。
洋室4.5帖と洋室6.0帖も、各々に独自の魅力を秘めています。ここは、あなたがリラックスして心の平和を取り戻すための贅沢な空間。夜の帳が下りた時、静かな眠りへと誘う場所となることでしょう。布団に身を沈めると、心地よい柔らかさが全身を包み込み、自然と安らぎの色合いが心に満ちていきます。
藤和シティスクエア三田ノースウィングは、ただの住まいではありません。生活を豊かに彩る利便性も兼ね備えています。エレベーターで6階に上がる瞬間、まるで大きな数字のカウントダウンの後に訪れるハッピーエンドのような期待感が漂います。また、オートロックで守られた空間は、あなたの大切なプライバシーをしっかりと守ります。
周囲に広がる港区三田の街は、歴史の香りが漂うエレガントな場所。近隣には文化施設も多く、アートや音楽に触れる日々が送れます。美術館でのひとときを想像すると、心の底から満たされる感覚が生まれることでしょう。日々の生活の中で、この街と共鳴し、あなた自身も一層深い芸術家のような存在になっていくのです。
宅配ボックスが設置されていることも、あなたの生活をより便利にしてくれる要素です。外出の際に受け取った大切な荷物が、家で待っているように感じられるのは、心の豊かさをもたらします。また、敷地内のゴミ置場や駐輪場も、日常の些細なストレスを軽減させる役割を果たしてくれることでしょう。
藤和シティスクエア三田ノースウィング 6階 55.78㎡での生活は、まるで素敵な映画のワンシーンのようにあなたを迎えてくれます。この空間で紡がれる日々は、まさにあなた自身の作品として、心に刻まれていくことでしょう。さあ、この特別な場所で、あなたの物語を始めてください。
バイブルスコア
バイブルスコア: 31
平均的なスコアです。
※バイブルスコア詳細はこちら
バイブルスコアとは独自のAI機械学習技術を利用した物件評価システムで、物件のおすすめ度を示します。最高得点は100点で、スコアが高いほど、よりおすすめの物件と評価されています。
写真
契約条件
| 賃料 | 予想金額:175,000〜195,000円程度 | 管理費 | 予想金額:0〜2,000円程度 |
| 礼金 | 非公開(アーカイブ) | 敷金 | 非公開(アーカイブ) |
| フリーレント | なし | 平米数 | 55.78㎡ |
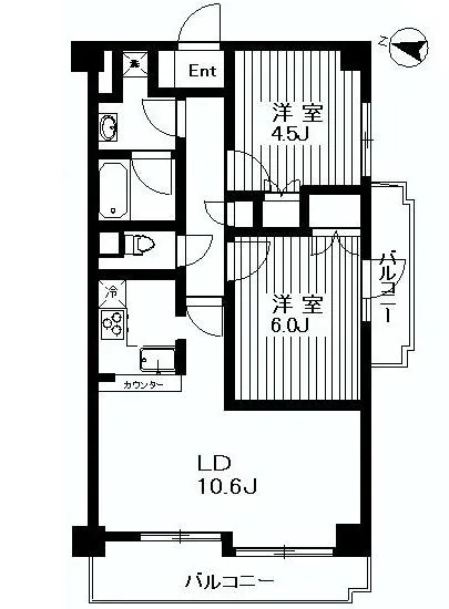
| 間取り | 2LDK | 大型収納 | |
| 契約期間 |
| 方角 | 西 |
| 更新料 | 契約形態 | 普通賃貸借契約 | |
| 取引態様 | 媒介 | 内見状況 | 入居中 |
| 入居時期 | 入居中 | SOHO・事務所 | |
| ペット | 間取り内訳 | 洋室4.5畳 洋室6.0 LDK10.5畳 | |
| キャンペーン情報・備考 | 本情報は賃料改定交渉の資料作成、収益物件の利回り試算、周辺エリアや最寄り駅の坪単価分析、次回募集開始時期の予測などにご活用いただけます。 | ||
※「どの不動産に頼めばいいのか分からない」「信頼できる営業マンの話を聞きたい」「一番親切な会社と契約したい」とお悩みの方におすすめなのが「高級賃貸バイブル」です。
高級賃貸バイブルは業界10年以上の熟練スタッフ群がお客様ファーストで対応します。
下記ボタンから、まずは無料でご相談下さい。
※内覧をご希望の際には、どうぞ物件のエントランス前にてお待ち合わせくださいませ。ご内覧後は、同じ場所でお別れとさせていただきます。お客様のご都合に合わせたスムーズなご案内を心がけておりますので、ご質問等がございましたら何なりとお申し付けください。 物件概要
| 物件名 |
| 築年月 |
|
|---|---|---|---|
| 所在地 | |||
| 交通 | |||
| 総戸数 | 総階数 |
| |
| 構造 |
| ||
地図
物件までの道のりは、「拡大地図を表示」をクリックしてナビ機能をご利用ください。
部屋設備













建物設備

TVモニターホン

エレベーター

オートロック

宅配ボックス

敷地内ゴミ置場

駐輪場
藤和シティスクエア三田ノースウィングの現在募集中のお部屋
- No rooms found for this property.









