
| 賃料 | 予想金額:270,000〜290,000円程度 | 管理費 | 予想金額:39,700〜43,700円程度 |
| 礼金/敷金 | 非公開(アーカイブ) | 平米数 | 115.05㎡ |
| 初期費用概算(参考) | 目安:1,364,050〜1,464,050 円 | みなし賃料(月額・参考) | 335,326〜355,326 円 |
| 備考 | 本ページは過去募集のアーカイブです。表示の金額は周辺相場・過去募集を踏まえた参考レンジであり、実際の契約金額・条件ではありません。 | ||
※上記みなし賃料(月額)は仲介手数料割引・無料&キャッシュバックを加味した高級賃貸バイブル限定の金額です。一般的なみなし賃料とは異なります。
【建物ページ】ALTO Bの詳細・最新空室はこちら▶▶選ばれる理由
仲介手数料無料・キャンペーン情報(毎月15名様限定)
〇仲介手数料割引キャンペーン
ALTO B 1101の口コミ・レビュー
ALTO B 1101。これは単なる数字の羅列や物件の名称ではありません。これは、あなたの新しい生活を迎え入れてくれる、都会のオアシスとも言える住まいの名前です。東京都港区海岸3-7-18というロケーションに位置し、階数1101という高みから、あなたを新たな気持ちで包み込むのです。ここには、115.05㎡の広々とした空間が待っています。まるで、心に響くメロディーのように奏でられる、贅沢なひとときを…ALTO B 1101。これは単なる数字の羅列や物件の名称ではありません。これは、あなたの新しい生活を迎え入れてくれる、都会のオアシスとも言える住まいの名前です。東京都港区海岸3-7-18というロケーションに位置し、階数1101という高みから、あなたを新たな気持ちで包み込むのです。ここには、115.05㎡の広々とした空間が待っています。まるで、心に響くメロディーのように奏でられる、贅沢なひとときをお楽しみいただけることでしょう。
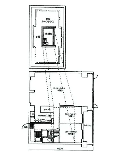
ALTO B 1101の扉を開けた瞬間、まるで別世界に足を踏み入れたかのような感覚が広がります。その瞬間、あなたの周りには美しさと快適さが溢れており、心の底からリラックスできる空間が待っています。LDK39.5帖の広さは、まさに生活の中心であり、家族や友人と過ごす至福の時間を思い描いてくれます。キッチンスペースも7.5帖と十分な広さで、料理をする喜びが感じられることでしょう。香ばしいスパイスやシンプルなハーブの香りが漂う中、あなたの料理の腕前が試される瞬間が楽しみです。
東(やや南より)に向いた窓からは、朝の光が心地よく差し込み、目覚める瞬間から一日が始まります。柔らかな光がリビングの壁を優しく照らし出し、まるでアートのような影を作り出すのです。6帖と6.5帖の洋室は、プライベートな空間を大切にした設計になっており、静まり返った夜、あなたの夢の中に優しい音楽が流れ込むような安らぎを与えてくれます。
そして、周辺には歴史と文化が息づくエリアが広がります。港区の海岸沿いの風景は、都会の喧騒から少し離れ、リフレッシュしながら日常を楽しむことができるようになっています。ゆりかもめ 芝浦ふ頭駅から徒歩9分というアクセスの良さも、日常生活に利便性と快適さをもたらしてくれるでしょう。周りの街並みには、文化施設やアートギャラリーが点在し、おしゃれなカフェでのひとときや、アートを楽しむ時間があなたの日常のスパイスとなります。
ALTO B 1101には、TVモニターホンやエレベーター、オートロック、宅配ボックスなど、現代の生活には欠かせない設備が完備されています。これらは、まるであなたの大切な日常を守るための守護者のような存在です。敷地内にはゴミ置場や駐車場、駐輪場も備わっており、ストレスフリーな生活を実現するための工夫がされているのです。
この物件は、ただの住まいではありません。ALTO B 1101は、あなたの新たな生活を支える舞台となるのです。この場所で過ごす時間は、まるで映画のワンシーンのように美しく、特別な思い出を紡いでいくことでしょう。さあ、あなたもこの物件の一員となり、心弾む毎日を迎えてください。ALTO B 1101が、あなたの人生の新たな章を華やかに彩ることを約束します。
ALTO B 1101の扉を開けた瞬間、まるで別世界に足を踏み入れたかのような感覚が広がります。その瞬間、あなたの周りには美しさと快適さが溢れており、心の底からリラックスできる空間が待っています。LDK39.5帖の広さは、まさに生活の中心であり、家族や友人と過ごす至福の時間を思い描いてくれます。キッチンスペースも7.5帖と十分な広さで、料理をする喜びが感じられることでしょう。香ばしいスパイスやシンプルなハーブの香りが漂う中、あなたの料理の腕前が試される瞬間が楽しみです。
東(やや南より)に向いた窓からは、朝の光が心地よく差し込み、目覚める瞬間から一日が始まります。柔らかな光がリビングの壁を優しく照らし出し、まるでアートのような影を作り出すのです。6帖と6.5帖の洋室は、プライベートな空間を大切にした設計になっており、静まり返った夜、あなたの夢の中に優しい音楽が流れ込むような安らぎを与えてくれます。
そして、周辺には歴史と文化が息づくエリアが広がります。港区の海岸沿いの風景は、都会の喧騒から少し離れ、リフレッシュしながら日常を楽しむことができるようになっています。ゆりかもめ 芝浦ふ頭駅から徒歩9分というアクセスの良さも、日常生活に利便性と快適さをもたらしてくれるでしょう。周りの街並みには、文化施設やアートギャラリーが点在し、おしゃれなカフェでのひとときや、アートを楽しむ時間があなたの日常のスパイスとなります。
ALTO B 1101には、TVモニターホンやエレベーター、オートロック、宅配ボックスなど、現代の生活には欠かせない設備が完備されています。これらは、まるであなたの大切な日常を守るための守護者のような存在です。敷地内にはゴミ置場や駐車場、駐輪場も備わっており、ストレスフリーな生活を実現するための工夫がされているのです。
この物件は、ただの住まいではありません。ALTO B 1101は、あなたの新たな生活を支える舞台となるのです。この場所で過ごす時間は、まるで映画のワンシーンのように美しく、特別な思い出を紡いでいくことでしょう。さあ、あなたもこの物件の一員となり、心弾む毎日を迎えてください。ALTO B 1101が、あなたの人生の新たな章を華やかに彩ることを約束します。
バイブルスコア
バイブルスコア: 38.7
平均的なスコアです。
※バイブルスコア詳細はこちら
バイブルスコアとは独自のAI機械学習技術を利用した物件評価システムで、物件のおすすめ度を示します。最高得点は100点で、スコアが高いほど、よりおすすめの物件と評価されています。
写真
契約条件
| 賃料 | 予想金額:270,000〜290,000円程度 | 管理費 | 予想金額:39,700〜43,700円程度 |
| 礼金 | 非公開(アーカイブ) | 敷金 | 非公開(アーカイブ) |
| フリーレント | なし | 平米数 | 115.05㎡ |
| 間取り | 2LDK | 大型収納 | LOFT |
| 契約期間 |
| 方角 | 東(やや南より) |
| 更新料 | 契約形態 | 普通賃貸借契約 | |
| 取引態様 | 媒介 | 内見状況 | 入居中 |
| 入居時期 | 入居中 | SOHO・事務所 | 事務所(SOHO)可 |
| ペット | 間取り内訳 | LDK39.5(K=7.5 / LD=32) / 洋室6畳 / 洋室6.5畳 | |
| キャンペーン情報・備考 | 本情報は賃料改定交渉の資料作成、収益物件の利回り試算、周辺エリアや最寄り駅の坪単価分析、次回募集開始時期の予測などにご活用いただけます。 | ||
※「どの不動産に頼めばいいのか分からない」「信頼できる営業マンの話を聞きたい」「一番親切な会社と契約したい」とお悩みの方におすすめなのが「高級賃貸バイブル」です。
高級賃貸バイブルは業界10年以上の熟練スタッフ群がお客様ファーストで対応します。
下記ボタンから、まずは無料でご相談下さい。
※内覧をご希望の際には、どうぞ物件のエントランス前にてお待ち合わせくださいませ。ご内覧後は、同じ場所でお別れとさせていただきます。お客様のご都合に合わせたスムーズなご案内を心がけておりますので、ご質問等がございましたら何なりとお申し付けください。 物件概要
| 物件名 |
| 築年月 |
|
|---|---|---|---|
| 所在地 | |||
| 交通 | |||
| 総戸数 | 総階数 |
| |
| 構造 |
| ||
地図
物件までの道のりは、「拡大地図を表示」をクリックしてナビ機能をご利用ください。
部屋設備













建物設備

TVモニターホン

エレベーター

オートロック

宅配ボックス

敷地内ゴミ置場

駐車場平置き

駐車場機械式

駐輪場
ALTO Bの現在募集中のお部屋
- No rooms found for this property.



















