
| 賃料 | 予想金額:130,000〜150,000円程度 | 管理費 | 予想金額:13,000〜17,000円程度 |
| 礼金/敷金 | 非公開(アーカイブ) | 平米数 | 40.34㎡ |
| 初期費用概算(参考) | 目安:274,000〜374,000 円 | みなし賃料(月額・参考) | 148,833〜168,833 円 |
| 備考 | 本ページは過去募集のアーカイブです。表示の金額は周辺相場・過去募集を踏まえた参考レンジであり、実際の契約金額・条件ではありません。 | ||
※上記みなし賃料(月額)は仲介手数料割引・無料&キャッシュバックを加味した高級賃貸バイブル限定の金額です。一般的なみなし賃料とは異なります。
【建物ページ】レガリス品川天王洲ベイサイドコートの詳細・最新空室はこちら▶▶選ばれる理由
仲介手数料無料・キャンペーン情報(毎月15名様限定)
〇仲介手数料割引キャンペーン
レガリス品川天王洲ベイサイドコート 801の口コミ・レビュー
レガリス品川天王洲ベイサイドコート 801、それはまるで夢の中から抜け出したような存在感を放つ高級賃貸物件です。この部屋での暮らしは、あなた自身が映画の主人公になったかのように感じさせてくれます。西向きの窓からは、夕陽の美しい光が注ぎ込み、部屋全体を暖かな雰囲気で包みます。住まう者の心を安らげる、その瞬間瞬間が、まるで人生の一幕のように思えます。
この801号室は、41.34㎡の広さに、LDK1…レガリス品川天王洲ベイサイドコート 801、それはまるで夢の中から抜け出したような存在感を放つ高級賃貸物件です。この部屋での暮らしは、あなた自身が映画の主人公になったかのように感じさせてくれます。西向きの窓からは、夕陽の美しい光が注ぎ込み、部屋全体を暖かな雰囲気で包みます。住まう者の心を安らげる、その瞬間瞬間が、まるで人生の一幕のように思えます。
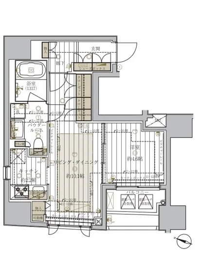
この801号室は、41.34㎡の広さに、LDK10.1帖、キッチン2.2帖、そして洋室4.6帖という素敵な間取りを誇ります。あなたが一日の終わりに帰り着くと、まず独自のデザインが施された空間があなたを迎え入れます。開放感あふれるLDKでは、心安らぐひとときを過ごせることでしょう。食材の香ばしい匂いが漂い、キッチンでの料理を楽しむあなたの姿が、まるで美しい映画のワンシーンのように描かれます。
ここでの朝は、あなたを優しく包み込む光に目を覚まし、窓の外には平和な風景が広がっています。西向きの窓からは、ゆっくりと変わる夕暮れの美しさが楽しめます。日の出とともに新しい一日が始まり、日の入りと共に一日の終わりを惜しむ。そんな贅沢な時間が、レガリス品川天王洲ベイサイドコート 801での生活の中に息づいています。
また、エレベーターを使って簡単にアクセスできるこの物件は、オートロックやデザイナーズの設備によって、安心感も提供します。家に帰る道すがら、あなたの心は高鳴り、まるで優雅な舞踏会に向かうかのように感じることでしょう。宅配ボックスや駐輪場、バイク置場といった便利な設備も整っており、日常生活の様々なシーンをサポートします。
周辺には、東京湾を見渡す美しい風景が広がり、歴史や文化の香りが漂っています。運河沿いを散策しながら、芸術に触れるひとときも忘れてはなりません。大きな空を仰ぎ見ることで、心が解放され、日々のストレスも洗い流されるようです。レガリス品川天王洲ベイサイドコート 801は、単なる居住空間を超え、人生をより豊かにするための舞台を提供してくれるのです。
その場所にいるだけで、あなたの五感は満たされていきます。風に揺れる草花や、海から漂ってくる潮の香り、夕焼け空の美しさ。すべてがあなたの心を刺激し、思い出に残る体験を与えてくれます。レガリス品川天王洲ベイサイドコート 801に住むことで、あなたの日常は特別なものへと変わり、ただの生活が美しい物語に変貌を遂げるのです。さあ、あなた自身の物語の幕を開けてみませんか。
この801号室は、41.34㎡の広さに、LDK1…レガリス品川天王洲ベイサイドコート 801、それはまるで夢の中から抜け出したような存在感を放つ高級賃貸物件です。この部屋での暮らしは、あなた自身が映画の主人公になったかのように感じさせてくれます。西向きの窓からは、夕陽の美しい光が注ぎ込み、部屋全体を暖かな雰囲気で包みます。住まう者の心を安らげる、その瞬間瞬間が、まるで人生の一幕のように思えます。
この801号室は、41.34㎡の広さに、LDK10.1帖、キッチン2.2帖、そして洋室4.6帖という素敵な間取りを誇ります。あなたが一日の終わりに帰り着くと、まず独自のデザインが施された空間があなたを迎え入れます。開放感あふれるLDKでは、心安らぐひとときを過ごせることでしょう。食材の香ばしい匂いが漂い、キッチンでの料理を楽しむあなたの姿が、まるで美しい映画のワンシーンのように描かれます。
ここでの朝は、あなたを優しく包み込む光に目を覚まし、窓の外には平和な風景が広がっています。西向きの窓からは、ゆっくりと変わる夕暮れの美しさが楽しめます。日の出とともに新しい一日が始まり、日の入りと共に一日の終わりを惜しむ。そんな贅沢な時間が、レガリス品川天王洲ベイサイドコート 801での生活の中に息づいています。
また、エレベーターを使って簡単にアクセスできるこの物件は、オートロックやデザイナーズの設備によって、安心感も提供します。家に帰る道すがら、あなたの心は高鳴り、まるで優雅な舞踏会に向かうかのように感じることでしょう。宅配ボックスや駐輪場、バイク置場といった便利な設備も整っており、日常生活の様々なシーンをサポートします。
周辺には、東京湾を見渡す美しい風景が広がり、歴史や文化の香りが漂っています。運河沿いを散策しながら、芸術に触れるひとときも忘れてはなりません。大きな空を仰ぎ見ることで、心が解放され、日々のストレスも洗い流されるようです。レガリス品川天王洲ベイサイドコート 801は、単なる居住空間を超え、人生をより豊かにするための舞台を提供してくれるのです。
その場所にいるだけで、あなたの五感は満たされていきます。風に揺れる草花や、海から漂ってくる潮の香り、夕焼け空の美しさ。すべてがあなたの心を刺激し、思い出に残る体験を与えてくれます。レガリス品川天王洲ベイサイドコート 801に住むことで、あなたの日常は特別なものへと変わり、ただの生活が美しい物語に変貌を遂げるのです。さあ、あなた自身の物語の幕を開けてみませんか。
バイブルスコア
バイブルスコア: 48.5
条件のいい物件です、引っ越しが2か月以内の場合は仮申し込みを検討すべき物件です。
※バイブルスコア詳細はこちら
バイブルスコアとは独自のAI機械学習技術を利用した物件評価システムで、物件のおすすめ度を示します。最高得点は100点で、スコアが高いほど、よりおすすめの物件と評価されています。
写真
現在写真が登録されていません契約条件
| 賃料 | 予想金額:130,000〜150,000円程度 | 管理費 | 予想金額:13,000〜17,000円程度 |
| 礼金 | 非公開(アーカイブ) | 敷金 | 非公開(アーカイブ) |
| フリーレント | なし | 平米数 | 40.34㎡ |
| 間取り | 1LDK | 大型収納 | |
| 契約期間 |
| 方角 | 西 |
| 更新料 | 契約形態 | 普通賃貸借契約 | |
| 取引態様 | 媒介 | 内見状況 | 入居中 |
| 入居時期 | 入居中 | SOHO・事務所 | |
| ペット | ペット可 | 間取り内訳 | LD=10.1J / K=2.2J / BR=4.6J |
| キャンペーン情報・備考 | 本情報は賃料改定交渉の資料作成、収益物件の利回り試算、周辺エリアや最寄り駅の坪単価分析、次回募集開始時期の予測などにご活用いただけます。 | ||
※「どの不動産に頼めばいいのか分からない」「信頼できる営業マンの話を聞きたい」「一番親切な会社と契約したい」とお悩みの方におすすめなのが「高級賃貸バイブル」です。
高級賃貸バイブルは業界10年以上の熟練スタッフ群がお客様ファーストで対応します。
下記ボタンから、まずは無料でご相談下さい。
※内覧をご希望の際には、どうぞ物件のエントランス前にてお待ち合わせくださいませ。ご内覧後は、同じ場所でお別れとさせていただきます。お客様のご都合に合わせたスムーズなご案内を心がけておりますので、ご質問等がございましたら何なりとお申し付けください。 物件概要
| 物件名 |
| 築年月 |
|
|---|---|---|---|
| 所在地 | |||
| 交通 | |||
| 総戸数 |
| 総階数 |
|
| 構造 |
| ||
地図
物件までの道のりは、「拡大地図を表示」をクリックしてナビ機能をご利用ください。
部屋設備
















建物設備

TVモニターホン

エレベーター

オートロック

バイク置場

宅配ボックス

敷地内ゴミ置場

駐車場平置き

駐輪場
レガリス品川天王洲ベイサイドコートの現在募集中のお部屋
- No rooms found for this property.
