
| 賃料 | 予想金額:71,000〜91,000円程度 | 管理費 | 予想金額:8,000〜12,000円程度 |
| 礼金/敷金 | 非公開(アーカイブ) | 平米数 | 20.52㎡ |
| 初期費用概算(参考) | 目安:178,750〜278,750 円 | みなし賃料(月額・参考) | 84,568〜104,568 円 |
| 備考 | 本ページは過去募集のアーカイブです。表示の金額は周辺相場・過去募集を踏まえた参考レンジであり、実際の契約金額・条件ではありません。 | ||
※上記みなし賃料(月額)は仲介手数料割引・無料&キャッシュバックを加味した高級賃貸バイブル限定の金額です。一般的なみなし賃料とは異なります。
【建物ページ】レガリス品川天王洲ベイサイドコートの詳細・最新空室はこちら▶▶選ばれる理由
仲介手数料無料・キャンペーン情報(毎月15名様限定)
〇仲介手数料割引キャンペーン
レガリス品川天王洲ベイサイドコート 404の口コミ・レビュー
レガリス品川天王洲ベイサイドコート 404。あなたに語りかけるこの美しい空間は、まるで海のさざ波が耳元でささやくかのように、穏やかさと洗練された雰囲気を漂わせます。この特別な物件は、東京都品川区の東品川に位置し、まるで都会のオアシスのように、心を癒してくれる場所です。
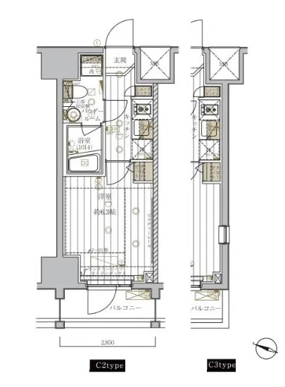
レガリス品川天王洲ベイサイドコート 404の内部は、20.52㎡の優雅な面積が広がり、1Kという間取りの中で、あなたの生活を豊か…レガリス品川天王洲ベイサイドコート 404。あなたに語りかけるこの美しい空間は、まるで海のさざ波が耳元でささやくかのように、穏やかさと洗練された雰囲気を漂わせます。この特別な物件は、東京都品川区の東品川に位置し、まるで都会のオアシスのように、心を癒してくれる場所です。
レガリス品川天王洲ベイサイドコート 404の内部は、20.52㎡の優雅な面積が広がり、1Kという間取りの中で、あなたの生活を豊かに彩る空間が出迎えてくれます。西に向いた窓からは、夕焼けの美しさが作品のように感じられ、オレンジの光が部屋を包み込み、まるで日々の暮らしが映画のワンシーンに変わる瞬間を思い起こさせてくれます。部屋の隅々まで行き届いたデザインが、あなたの心を和ませ、穏やかな時間を約束します。
この素晴らしい住居には、TVモニターホンやオートロックといった現代的な設備が完備されており、まるであなたを守る騎士のように、安心感を提供してくれます。また、宅配ボックスや駐輪場、バイク置場も整っており、利便性を追求した生活が実現します。エレガンスと快適さを併せ持ったここでの生活は、まさに贅沢そのものです。
そして、あなたがこの部屋に住むことで、周囲の文化や芸術とのつながりが一層深まります。近くには、歴史を感じる品川の街並みや、現代的なアートスペースが点在し、創造的なインスピレーションを授けてくれます。毎日の散策が、まるで画廊を巡るような楽しさをもたらし、あなたの感性が豊かに磨かれていくことでしょう。
人々が集うリビングと、静かに過ごす寝室が一体となった空間で、6.3帖の余裕あるブレックファーストルームが夢のような朝を演出します。お気に入りの香りのコーヒーを淹れ、窓から差し込む陽射しを浴びながら、心を満たす朝食を楽しむそのひととき。舌と心を満たす幸せな時間が、日々の生活に彩りを添えるのです。
夜が訪れると、レガリス品川天王洲ベイサイドコート 404は再び別の顔を見せます。海辺の風が心地よく、波の音が静かに流れ込む中で、ゆったりとした自分だけの時間を堪能できます。読書や映画鑑賞をしながら、心の安らぎを見つけることができるこの場所は、あなたの人生に寄り添い、新しい物語を紡ぎ出す舞台となるでしょう。
レガリス品川天王洲ベイサイドコート 404での生活は、ただの住まいを超えて、心豊かな文化生活へと誘います。あなた自身の物語をこの場所で紡いでいくことを、心からお待ちしております。
レガリス品川天王洲ベイサイドコート 404の内部は、20.52㎡の優雅な面積が広がり、1Kという間取りの中で、あなたの生活を豊か…レガリス品川天王洲ベイサイドコート 404。あなたに語りかけるこの美しい空間は、まるで海のさざ波が耳元でささやくかのように、穏やかさと洗練された雰囲気を漂わせます。この特別な物件は、東京都品川区の東品川に位置し、まるで都会のオアシスのように、心を癒してくれる場所です。
レガリス品川天王洲ベイサイドコート 404の内部は、20.52㎡の優雅な面積が広がり、1Kという間取りの中で、あなたの生活を豊かに彩る空間が出迎えてくれます。西に向いた窓からは、夕焼けの美しさが作品のように感じられ、オレンジの光が部屋を包み込み、まるで日々の暮らしが映画のワンシーンに変わる瞬間を思い起こさせてくれます。部屋の隅々まで行き届いたデザインが、あなたの心を和ませ、穏やかな時間を約束します。
この素晴らしい住居には、TVモニターホンやオートロックといった現代的な設備が完備されており、まるであなたを守る騎士のように、安心感を提供してくれます。また、宅配ボックスや駐輪場、バイク置場も整っており、利便性を追求した生活が実現します。エレガンスと快適さを併せ持ったここでの生活は、まさに贅沢そのものです。
そして、あなたがこの部屋に住むことで、周囲の文化や芸術とのつながりが一層深まります。近くには、歴史を感じる品川の街並みや、現代的なアートスペースが点在し、創造的なインスピレーションを授けてくれます。毎日の散策が、まるで画廊を巡るような楽しさをもたらし、あなたの感性が豊かに磨かれていくことでしょう。
人々が集うリビングと、静かに過ごす寝室が一体となった空間で、6.3帖の余裕あるブレックファーストルームが夢のような朝を演出します。お気に入りの香りのコーヒーを淹れ、窓から差し込む陽射しを浴びながら、心を満たす朝食を楽しむそのひととき。舌と心を満たす幸せな時間が、日々の生活に彩りを添えるのです。
夜が訪れると、レガリス品川天王洲ベイサイドコート 404は再び別の顔を見せます。海辺の風が心地よく、波の音が静かに流れ込む中で、ゆったりとした自分だけの時間を堪能できます。読書や映画鑑賞をしながら、心の安らぎを見つけることができるこの場所は、あなたの人生に寄り添い、新しい物語を紡ぎ出す舞台となるでしょう。
レガリス品川天王洲ベイサイドコート 404での生活は、ただの住まいを超えて、心豊かな文化生活へと誘います。あなた自身の物語をこの場所で紡いでいくことを、心からお待ちしております。
バイブルスコア
バイブルスコア: 33.2
平均的なスコアです。
※バイブルスコア詳細はこちら
バイブルスコアとは独自のAI機械学習技術を利用した物件評価システムで、物件のおすすめ度を示します。最高得点は100点で、スコアが高いほど、よりおすすめの物件と評価されています。
写真
現在写真が登録されていません契約条件
| 賃料 | 予想金額:71,000〜91,000円程度 | 管理費 | 予想金額:8,000〜12,000円程度 |
| 礼金 | 非公開(アーカイブ) | 敷金 | 非公開(アーカイブ) |
| フリーレント | なし | 平米数 | 20.52㎡ |
| 間取り | 1K | 大型収納 | |
| 契約期間 |
| 方角 | 西 |
| 更新料 | 契約形態 | 普通賃貸借契約 | |
| 取引態様 | 媒介 | 内見状況 | 入居中 |
| 入居時期 | 入居中 | SOHO・事務所 | |
| ペット | ペット可 | 間取り内訳 | BR=6.3J |
| キャンペーン情報・備考 | 本情報は賃料改定交渉の資料作成、収益物件の利回り試算、周辺エリアや最寄り駅の坪単価分析、次回募集開始時期の予測などにご活用いただけます。 | ||
※「どの不動産に頼めばいいのか分からない」「信頼できる営業マンの話を聞きたい」「一番親切な会社と契約したい」とお悩みの方におすすめなのが「高級賃貸バイブル」です。
高級賃貸バイブルは業界10年以上の熟練スタッフ群がお客様ファーストで対応します。
下記ボタンから、まずは無料でご相談下さい。
※内覧をご希望の際には、どうぞ物件のエントランス前にてお待ち合わせくださいませ。ご内覧後は、同じ場所でお別れとさせていただきます。お客様のご都合に合わせたスムーズなご案内を心がけておりますので、ご質問等がございましたら何なりとお申し付けください。 物件概要
| 物件名 |
| 築年月 |
|
|---|---|---|---|
| 所在地 | |||
| 交通 | |||
| 総戸数 |
| 総階数 |
|
| 構造 |
| ||
地図
物件までの道のりは、「拡大地図を表示」をクリックしてナビ機能をご利用ください。
部屋設備














建物設備

TVモニターホン

エレベーター

オートロック

バイク置場

宅配ボックス

敷地内ゴミ置場

駐車場平置き

駐輪場
レガリス品川天王洲ベイサイドコートの現在募集中のお部屋
- No rooms found for this property.
