
| 賃料 | 予想金額:129,000〜149,000円程度 | 管理費 | 予想金額:13,000〜17,000円程度 |
| 礼金/敷金 | 非公開(アーカイブ) | 平米数 | 40.34㎡ |
| 初期費用概算(参考) | 目安:411,500〜511,500 円 | みなし賃料(月額・参考) | 150,719〜170,719 円 |
| 備考 | 本ページは過去募集のアーカイブです。表示の金額は周辺相場・過去募集を踏まえた参考レンジであり、実際の契約金額・条件ではありません。 | ||
※上記みなし賃料(月額)は仲介手数料割引・無料&キャッシュバックを加味した高級賃貸バイブル限定の金額です。一般的なみなし賃料とは異なります。
【建物ページ】レガリス品川天王洲ベイサイドコートの詳細・最新空室はこちら▶▶選ばれる理由
仲介手数料無料・キャンペーン情報(毎月15名様限定)
〇仲介手数料割引キャンペーン
レガリス品川天王洲ベイサイドコート 201の口コミ・レビュー
レガリス品川天王洲ベイサイドコート 201は、あなたの人生の美しい舞台となる場所です。この特別な住まいは、東京都品川区東品川2-2-28に位置し、西向きの窓からは穏やかな日差しが差し込み、まるで毎日が新しい物語の始まりを告げるかのようです。専有面積40.34㎡は、あなたの感性を豊かにし、心地よい広がりを持つ空間を提供します。
この住まいは、まるで一人の優雅なパートナーがあなたに寄り添い、静かに語…レガリス品川天王洲ベイサイドコート 201は、あなたの人生の美しい舞台となる場所です。この特別な住まいは、東京都品川区東品川2-2-28に位置し、西向きの窓からは穏やかな日差しが差し込み、まるで毎日が新しい物語の始まりを告げるかのようです。専有面積40.34㎡は、あなたの感性を豊かにし、心地よい広がりを持つ空間を提供します。
この住まいは、まるで一人の優雅なパートナーがあなたに寄り添い、静かに語りかけてくるようです。10.1帖のリビングダイニングは、温かな色合いの光に包まれ、美味しい料理の香りとともに、あなたの心を癒やします。2.2帖のキッチンでは、朝の爽やかなひとときを迎え、目覚めのコーヒーの蒸気と共に、まるで世界の中心であるかのように自らを高めることができるでしょう。また、4.6帖のベッドルームは、あなたの夢を運ぶための小舟のように感じることができ、静寂な夜の中で、星々のささやきが聞こえるかのようです。
レガリス品川天王洲ベイサイドコート 201にお住まいになることで、日常の喧騒から離れた洗練された生活空間を手に入れることができます。TVモニターホンやオートロックなどの先進的な設備は、安全と安心を提供し、エレベーターでの移動はまるで空を飛び越えるような心地よさ。デザイナーズの美しいデザインは、シンプルでありながらも洗練されたスタイルを演出します。
さらに、周囲には天王洲アイル駅から徒歩3分という至便さがあり、都会の喧騒から解放される心地よい距離感を保っています。バイク置場や駐輪場、宅配ボックスが完備されているため、忙しい現代生活にも溶け込むように寄り添い、あなたのニーズに合わせて柔軟に応えてくれるでしょう。
レガリス品川天王洲ベイサイドコート 201は、あなたの生活を豊かに彩る場所です。歴史と文化が息づく品川の地で、周辺の魅力を感じながら、暮らすことができるこの特別な住まいは、まるで芸術作品のように洗練された空間を提供します。あなたの日常がまるで映画のワンシーンのように感じられる瞬間が、ここには待っているのです。豊かな感性を持つあなたに、ぜひこの住まいの扉を開けていただきたいと、レガリス品川天王洲ベイサイドコート 201が心から願っています。
この住まいは、まるで一人の優雅なパートナーがあなたに寄り添い、静かに語…レガリス品川天王洲ベイサイドコート 201は、あなたの人生の美しい舞台となる場所です。この特別な住まいは、東京都品川区東品川2-2-28に位置し、西向きの窓からは穏やかな日差しが差し込み、まるで毎日が新しい物語の始まりを告げるかのようです。専有面積40.34㎡は、あなたの感性を豊かにし、心地よい広がりを持つ空間を提供します。
この住まいは、まるで一人の優雅なパートナーがあなたに寄り添い、静かに語りかけてくるようです。10.1帖のリビングダイニングは、温かな色合いの光に包まれ、美味しい料理の香りとともに、あなたの心を癒やします。2.2帖のキッチンでは、朝の爽やかなひとときを迎え、目覚めのコーヒーの蒸気と共に、まるで世界の中心であるかのように自らを高めることができるでしょう。また、4.6帖のベッドルームは、あなたの夢を運ぶための小舟のように感じることができ、静寂な夜の中で、星々のささやきが聞こえるかのようです。
レガリス品川天王洲ベイサイドコート 201にお住まいになることで、日常の喧騒から離れた洗練された生活空間を手に入れることができます。TVモニターホンやオートロックなどの先進的な設備は、安全と安心を提供し、エレベーターでの移動はまるで空を飛び越えるような心地よさ。デザイナーズの美しいデザインは、シンプルでありながらも洗練されたスタイルを演出します。
さらに、周囲には天王洲アイル駅から徒歩3分という至便さがあり、都会の喧騒から解放される心地よい距離感を保っています。バイク置場や駐輪場、宅配ボックスが完備されているため、忙しい現代生活にも溶け込むように寄り添い、あなたのニーズに合わせて柔軟に応えてくれるでしょう。
レガリス品川天王洲ベイサイドコート 201は、あなたの生活を豊かに彩る場所です。歴史と文化が息づく品川の地で、周辺の魅力を感じながら、暮らすことができるこの特別な住まいは、まるで芸術作品のように洗練された空間を提供します。あなたの日常がまるで映画のワンシーンのように感じられる瞬間が、ここには待っているのです。豊かな感性を持つあなたに、ぜひこの住まいの扉を開けていただきたいと、レガリス品川天王洲ベイサイドコート 201が心から願っています。
バイブルスコア
バイブルスコア: 50
条件のいい物件です、引っ越しが2か月以内の場合は仮申し込みを検討すべき物件です。
このお部屋は、現在ご入居中のため空室情報はございません。ただし、将来的に募集が開始される際、バイブルスコアにおいて非常に高い評価が期待されます。特にご興味をお持ちの方は、今のうちにブックマークやお気に入りに登録していただくと、募集開始のお知らせをすぐに受け取ることができます。是非ともご検討くださいませ。
※バイブルスコア詳細はこちら
バイブルスコアとは独自のAI機械学習技術を利用した物件評価システムで、物件のおすすめ度を示します。最高得点は100点で、スコアが高いほど、よりおすすめの物件と評価されています。
写真
現在写真が登録されていません契約条件
| 賃料 | 予想金額:129,000〜149,000円程度 | 管理費 | 予想金額:13,000〜17,000円程度 |
| 礼金 | 非公開(アーカイブ) | 敷金 | 非公開(アーカイブ) |
| フリーレント | なし | 平米数 | 40.34㎡ |
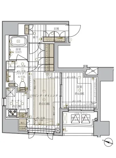
| 間取り | 1LDK | 大型収納 | |
| 契約期間 |
| 方角 | 西 |
| 更新料 | 契約形態 | 普通賃貸借契約 | |
| 取引態様 | 媒介 | 内見状況 | 入居中 |
| 入居時期 | 入居中 | SOHO・事務所 | |
| ペット | ペット可 | 間取り内訳 | LD=10.1J / K=2.2J / BR=4.6J |
| キャンペーン情報・備考 | 本情報は賃料改定交渉の資料作成、収益物件の利回り試算、周辺エリアや最寄り駅の坪単価分析、次回募集開始時期の予測などにご活用いただけます。 | ||
※「どの不動産に頼めばいいのか分からない」「信頼できる営業マンの話を聞きたい」「一番親切な会社と契約したい」とお悩みの方におすすめなのが「高級賃貸バイブル」です。
高級賃貸バイブルは業界10年以上の熟練スタッフ群がお客様ファーストで対応します。
下記ボタンから、まずは無料でご相談下さい。
※内覧をご希望の際には、どうぞ物件のエントランス前にてお待ち合わせくださいませ。ご内覧後は、同じ場所でお別れとさせていただきます。お客様のご都合に合わせたスムーズなご案内を心がけておりますので、ご質問等がございましたら何なりとお申し付けください。 物件概要
| 物件名 |
| 築年月 |
|
|---|---|---|---|
| 所在地 | |||
| 交通 | |||
| 総戸数 |
| 総階数 |
|
| 構造 |
| ||
地図
物件までの道のりは、「拡大地図を表示」をクリックしてナビ機能をご利用ください。
部屋設備
















建物設備

TVモニターホン

エレベーター

オートロック

バイク置場

宅配ボックス

敷地内ゴミ置場

駐車場平置き

駐輪場
レガリス品川天王洲ベイサイドコートの現在募集中のお部屋
- No rooms found for this property.
