
| 賃料 | 予想金額:310,000〜330,000円程度 | 管理費 | 予想金額:0〜2,000円程度 |
| 礼金/敷金 | 非公開(アーカイブ) | 平米数 | 101.43㎡ |
| 初期費用概算(参考) | 目安:1,801,500〜1,901,500 円 | みなし賃料(月額・参考) | 341,906〜361,906 円 |
| 備考 | 本ページは過去募集のアーカイブです。表示の金額は周辺相場・過去募集を踏まえた参考レンジであり、実際の契約金額・条件ではありません。 | ||
※上記みなし賃料(月額)は仲介手数料割引・無料&キャッシュバックを加味した高級賃貸バイブル限定の金額です。一般的なみなし賃料とは異なります。
【建物ページ】白金台シティハウスの詳細・最新空室はこちら▶▶選ばれる理由
仲介手数料無料・キャンペーン情報(毎月15名様限定)
〇仲介手数料割引キャンペーン
白金台シティハウス 303の口コミ・レビュー
白金台シティハウス 303。この美しい名前を口にすると、まるで白金の輝きが心に広がるかのようです。東京都港区白金台3-15-1という洗練された場所に佇むこの高級賃貸物件は、まさに心身を癒すオアシス。303という数字は、あなたの新たな生活が一歩踏み出す場所として、特別な意味を持ちます。
想像してみてください。南東を向いて広がる窓からは、やわらかな朝日が差し込み、カーテンが風に揺れる音が心地よく耳に…白金台シティハウス 303。この美しい名前を口にすると、まるで白金の輝きが心に広がるかのようです。東京都港区白金台3-15-1という洗練された場所に佇むこの高級賃貸物件は、まさに心身を癒すオアシス。303という数字は、あなたの新たな生活が一歩踏み出す場所として、特別な意味を持ちます。
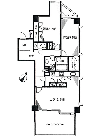
想像してみてください。南東を向いて広がる窓からは、やわらかな朝日が差し込み、カーテンが風に揺れる音が心地よく耳に響きます。あなたの新しい家、白金台シティハウス 303は、まるで優雅な舞踏会のホールのように、LDK21.6帖の空間が優しく迎え入れてくれます。その広々としたデザインは、友人たちとのパーティや家族との団らんの場を完璧に演出します。リビングの隅にある大きな窓からは、街の喧騒を感じながらも静けさが溢れる贅沢な時間が流れていきます。
さらに、キッチンはまるで料理の魔法をかけるスペース。6.4帖のキッチンは、あなたにとってのパレットであり、色とりどりの食材が舞い踊ります。香ばしいパンの焼ける香りや、旬の野菜が鍋の中で煮える音が、幸福のメロディーを奏でます。友人との楽しいディナーシーンが繰り広げられ、ワインのグラスが重なる音が響き渡ることでしょう。
白金台シティハウス 303には、洋室が2つ。それぞれの部屋は、まるで静謐な文学のページのように、あなた自身の物語を織りなす場所です。洋室9.5帖では、心地よい読書の時間が流れ、洋室8.5帖では、穏やかなひとときが訪れます。目を閉じて、心の中に広がる風景を感じてください。落ち着いたトーンのインテリアが、あなたの感性をくすぐり、日常から非日常への扉を開くのです。
また、白金台シティハウス 303の周囲には、魅力的な歴史や文化が息づいています。近くの白金台は、古き良き東京の風情を残しつつ、最新のアートシーンも展開しています。美術館やギャラリーを訪れ、五感を刺激するアートに触れることで、日常に新たなインスピレーションが加わります。まるで、あなた自身が一つのアート作品となるかのように、この場所での生活が織り成す日々は、誰もが羨むものとなるでしょう。
この白金台シティハウス 303での生活は、まるで映画のワンシーンのように、あなたの人生を豊かに彩ります。エレベーターでの上昇が、日々の冒険の始まりを告げ、オートロックで守られた安全な空間が、あなたの心を穏やかに保ちます。宅配ボックスや駐輪場といった便利な設備も、快適な生活をサポートし、まるで優しい手があなたを包み込むかのようです。白金台シティハウス 303、ここがあなたの新たな物語の舞台です。
想像してみてください。南東を向いて広がる窓からは、やわらかな朝日が差し込み、カーテンが風に揺れる音が心地よく耳に…白金台シティハウス 303。この美しい名前を口にすると、まるで白金の輝きが心に広がるかのようです。東京都港区白金台3-15-1という洗練された場所に佇むこの高級賃貸物件は、まさに心身を癒すオアシス。303という数字は、あなたの新たな生活が一歩踏み出す場所として、特別な意味を持ちます。
想像してみてください。南東を向いて広がる窓からは、やわらかな朝日が差し込み、カーテンが風に揺れる音が心地よく耳に響きます。あなたの新しい家、白金台シティハウス 303は、まるで優雅な舞踏会のホールのように、LDK21.6帖の空間が優しく迎え入れてくれます。その広々としたデザインは、友人たちとのパーティや家族との団らんの場を完璧に演出します。リビングの隅にある大きな窓からは、街の喧騒を感じながらも静けさが溢れる贅沢な時間が流れていきます。
さらに、キッチンはまるで料理の魔法をかけるスペース。6.4帖のキッチンは、あなたにとってのパレットであり、色とりどりの食材が舞い踊ります。香ばしいパンの焼ける香りや、旬の野菜が鍋の中で煮える音が、幸福のメロディーを奏でます。友人との楽しいディナーシーンが繰り広げられ、ワインのグラスが重なる音が響き渡ることでしょう。
白金台シティハウス 303には、洋室が2つ。それぞれの部屋は、まるで静謐な文学のページのように、あなた自身の物語を織りなす場所です。洋室9.5帖では、心地よい読書の時間が流れ、洋室8.5帖では、穏やかなひとときが訪れます。目を閉じて、心の中に広がる風景を感じてください。落ち着いたトーンのインテリアが、あなたの感性をくすぐり、日常から非日常への扉を開くのです。
また、白金台シティハウス 303の周囲には、魅力的な歴史や文化が息づいています。近くの白金台は、古き良き東京の風情を残しつつ、最新のアートシーンも展開しています。美術館やギャラリーを訪れ、五感を刺激するアートに触れることで、日常に新たなインスピレーションが加わります。まるで、あなた自身が一つのアート作品となるかのように、この場所での生活が織り成す日々は、誰もが羨むものとなるでしょう。
この白金台シティハウス 303での生活は、まるで映画のワンシーンのように、あなたの人生を豊かに彩ります。エレベーターでの上昇が、日々の冒険の始まりを告げ、オートロックで守られた安全な空間が、あなたの心を穏やかに保ちます。宅配ボックスや駐輪場といった便利な設備も、快適な生活をサポートし、まるで優しい手があなたを包み込むかのようです。白金台シティハウス 303、ここがあなたの新たな物語の舞台です。
バイブルスコア
バイブルスコア: 27.7
平均的なスコアです。
※バイブルスコア詳細はこちら
バイブルスコアとは独自のAI機械学習技術を利用した物件評価システムで、物件のおすすめ度を示します。最高得点は100点で、スコアが高いほど、よりおすすめの物件と評価されています。
写真
現在写真が登録されていません契約条件
| 賃料 | 予想金額:310,000〜330,000円程度 | 管理費 | 予想金額:0〜2,000円程度 |
| 礼金 | 非公開(アーカイブ) | 敷金 | 非公開(アーカイブ) |
| フリーレント | なし | 平米数 | 101.43㎡ |
| 間取り | 2LDK | 大型収納 | WIC |
| 契約期間 |
| 方角 | 南東 |
| 更新料 | 契約形態 | 普通賃貸借契約 | |
| 取引態様 | 媒介 | 内見状況 | 入居中 |
| 入居時期 | 入居中 | SOHO・事務所 | |
| ペット | 間取り内訳 | LDK21.6(K=6.4 / LD=15.2) / 洋8.5 / 洋9.5 | |
| キャンペーン情報・備考 | 本情報は賃料改定交渉の資料作成、収益物件の利回り試算、周辺エリアや最寄り駅の坪単価分析、次回募集開始時期の予測などにご活用いただけます。 | ||
※「どの不動産に頼めばいいのか分からない」「信頼できる営業マンの話を聞きたい」「一番親切な会社と契約したい」とお悩みの方におすすめなのが「高級賃貸バイブル」です。
高級賃貸バイブルは業界10年以上の熟練スタッフ群がお客様ファーストで対応します。
下記ボタンから、まずは無料でご相談下さい。
※内覧をご希望の際には、どうぞ物件のエントランス前にてお待ち合わせくださいませ。ご内覧後は、同じ場所でお別れとさせていただきます。お客様のご都合に合わせたスムーズなご案内を心がけておりますので、ご質問等がございましたら何なりとお申し付けください。 物件概要
| 物件名 |
| 築年月 |
|
|---|---|---|---|
| 所在地 | |||
| 交通 | |||
| 総戸数 | 総階数 |
| |
| 構造 |
| ||
地図
物件までの道のりは、「拡大地図を表示」をクリックしてナビ機能をご利用ください。
部屋設備














建物設備

エレベーター

オートロック

宅配ボックス

敷地内ゴミ置場

駐輪場
白金台シティハウスの現在募集中のお部屋
- No rooms found for this property.
