
| 賃料 | 予想金額:255,000〜275,000円程度 | 管理費 | 予想金額:13,000〜17,000円程度 |
| 礼金/敷金 | 非公開(アーカイブ) | 平米数 | 64.4㎡ |
| 初期費用概算(参考) | 目安:461,500〜561,500 円 | みなし賃料(月額・参考) | 280,656〜300,656 円 |
| 備考 | 本ページは過去募集のアーカイブです。表示の金額は周辺相場・過去募集を踏まえた参考レンジであり、実際の契約金額・条件ではありません。 | ||
※上記みなし賃料(月額)は仲介手数料割引・無料&キャッシュバックを加味した高級賃貸バイブル限定の金額です。一般的なみなし賃料とは異なります。
【建物ページ】c-MA2の詳細・最新空室はこちら▶▶選ばれる理由
仲介手数料無料・キャンペーン情報(毎月15名様限定)
〇フリーレント1か月キャンペーン
c-MA2 102の口コミ・レビュー
c-MA2 102は、東京都港区元麻布3-12-26という恵まれた場所に位置し、あなたの人生に新たな物語を紡ぐための舞台を提供します。まるで静かなオーケストラの序曲のように、心地よい静けさの中に包まれるこの空間は、1LDKの間取りを持ち、専有面積は64.4㎡という豊かな広がりを誇ります。
この物件が語りかけるのは、温かい陽射しが西側の窓からそっと差し込み、心を満たす柔らかな光が部屋を優しく包み込…c-MA2 102は、東京都港区元麻布3-12-26という恵まれた場所に位置し、あなたの人生に新たな物語を紡ぐための舞台を提供します。まるで静かなオーケストラの序曲のように、心地よい静けさの中に包まれるこの空間は、1LDKの間取りを持ち、専有面積は64.4㎡という豊かな広がりを誇ります。
この物件が語りかけるのは、温かい陽射しが西側の窓からそっと差し込み、心を満たす柔らかな光が部屋を優しく包み込む感覚です。エントランスルーム8.6帖は、外の世界からのエネルギーを吸収しつつ、あなたの心を安らげる空間となっています。ここで一杯のコーヒーを楽しむひと時は、まるで香り豊かなカフェの一角にいるかのようです。
リビングダイニングキッチン12.0帖は、あなたの創造力をかき立てるクリエイティブな空間。料理をしながら、香ばしい香りが漂うキッチンで心地よい音楽を響かせ、友人や家族と笑顔の会話が繰り広げられる様子が目に浮かびます。ここでは、料理のスパイスが香り立ち、笑い声が心地よいハーモニーを奏でます。
洋室7.6帖は、リラクゼーションのオアシス。その落ち着いた雰囲気の中で、心身ともにリフレッシュできる場所です。あなたの思い出や夢が形を得るのが、ここでのひと時。窓際でお気に入りの本を読みふけり、柔らかな風が頬を撫でる、その瞬間には、日常の喧騒が消え去ることでしょう。
c-MA2 102の魅力は、ただ美しいだけではありません。ここには、安心感を生み出す設備が整っています。オートロックのセキュリティが守る安心の中、あなたはゆっくりと自分らしい生活を築くことができます。TVモニターホンの存在も、来訪者を確認しながら、静かに自分の時間を楽しむことを可能にします。
また、周辺の歴史と文化は、この物件にさらなる深みを与えています。麻布十番駅からは徒歩8分という便利さが、この地の豊かな食文化や芸術を楽しむ手助けとなります。地元のアートギャラリーやこだわりのレストランが、あなたの生活をより豊かに彩ります。
c-MA2 102は、あなたが毎日を特別なものにするための場所。高級感あふれる暮らしを望むあなたにとって、ここはまるで宝石のような存在です。新たなストーリーの幕が上がるこの瞬間、人々との出会いや感動が、あなたの人生を輝かせることでしょう。お待ちしております、あなたの未来がここにあります。
この物件が語りかけるのは、温かい陽射しが西側の窓からそっと差し込み、心を満たす柔らかな光が部屋を優しく包み込…c-MA2 102は、東京都港区元麻布3-12-26という恵まれた場所に位置し、あなたの人生に新たな物語を紡ぐための舞台を提供します。まるで静かなオーケストラの序曲のように、心地よい静けさの中に包まれるこの空間は、1LDKの間取りを持ち、専有面積は64.4㎡という豊かな広がりを誇ります。
この物件が語りかけるのは、温かい陽射しが西側の窓からそっと差し込み、心を満たす柔らかな光が部屋を優しく包み込む感覚です。エントランスルーム8.6帖は、外の世界からのエネルギーを吸収しつつ、あなたの心を安らげる空間となっています。ここで一杯のコーヒーを楽しむひと時は、まるで香り豊かなカフェの一角にいるかのようです。
リビングダイニングキッチン12.0帖は、あなたの創造力をかき立てるクリエイティブな空間。料理をしながら、香ばしい香りが漂うキッチンで心地よい音楽を響かせ、友人や家族と笑顔の会話が繰り広げられる様子が目に浮かびます。ここでは、料理のスパイスが香り立ち、笑い声が心地よいハーモニーを奏でます。
洋室7.6帖は、リラクゼーションのオアシス。その落ち着いた雰囲気の中で、心身ともにリフレッシュできる場所です。あなたの思い出や夢が形を得るのが、ここでのひと時。窓際でお気に入りの本を読みふけり、柔らかな風が頬を撫でる、その瞬間には、日常の喧騒が消え去ることでしょう。
c-MA2 102の魅力は、ただ美しいだけではありません。ここには、安心感を生み出す設備が整っています。オートロックのセキュリティが守る安心の中、あなたはゆっくりと自分らしい生活を築くことができます。TVモニターホンの存在も、来訪者を確認しながら、静かに自分の時間を楽しむことを可能にします。
また、周辺の歴史と文化は、この物件にさらなる深みを与えています。麻布十番駅からは徒歩8分という便利さが、この地の豊かな食文化や芸術を楽しむ手助けとなります。地元のアートギャラリーやこだわりのレストランが、あなたの生活をより豊かに彩ります。
c-MA2 102は、あなたが毎日を特別なものにするための場所。高級感あふれる暮らしを望むあなたにとって、ここはまるで宝石のような存在です。新たなストーリーの幕が上がるこの瞬間、人々との出会いや感動が、あなたの人生を輝かせることでしょう。お待ちしております、あなたの未来がここにあります。
バイブルスコア
バイブルスコア: 28.9
平均的なスコアです。
※バイブルスコア詳細はこちら
バイブルスコアとは独自のAI機械学習技術を利用した物件評価システムで、物件のおすすめ度を示します。最高得点は100点で、スコアが高いほど、よりおすすめの物件と評価されています。
写真
契約条件
| 賃料 | 予想金額:255,000〜275,000円程度 | 管理費 | 予想金額:13,000〜17,000円程度 |
| 礼金 | 非公開(アーカイブ) | 敷金 | 非公開(アーカイブ) |
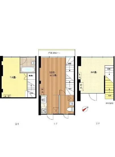
| フリーレント | 1ヶ月 | 平米数 | 64.4㎡ |
| 間取り | 1LDK | 大型収納 | S |
| 契約期間 |
| 方角 | 西 |
| 更新料 | 契約形態 | 普通賃貸借契約 | |
| 取引態様 | 媒介 | 内見状況 | 入居中 |
| 入居時期 | 入居中 | SOHO・事務所 | 事務所(SOHO)可 |
| ペット | ペット可 | 間取り内訳 | 洋:7.6 LDK:12.0 エントランスルーム:8.6 |
| キャンペーン情報・備考 | 本情報は賃料改定交渉の資料作成、収益物件の利回り試算、周辺エリアや最寄り駅の坪単価分析、次回募集開始時期の予測などにご活用いただけます。 | ||
※「どの不動産に頼めばいいのか分からない」「信頼できる営業マンの話を聞きたい」「一番親切な会社と契約したい」とお悩みの方におすすめなのが「高級賃貸バイブル」です。
高級賃貸バイブルは業界10年以上の熟練スタッフ群がお客様ファーストで対応します。
下記ボタンから、まずは無料でご相談下さい。
※内覧をご希望の際には、どうぞ物件のエントランス前にてお待ち合わせくださいませ。ご内覧後は、同じ場所でお別れとさせていただきます。お客様のご都合に合わせたスムーズなご案内を心がけておりますので、ご質問等がございましたら何なりとお申し付けください。 物件概要
| 物件名 |
| 築年月 |
|
|---|---|---|---|
| 所在地 | |||
| 交通 | |||
| 総戸数 |
| 総階数 |
|
| 構造 |
| ||
地図
物件までの道のりは、「拡大地図を表示」をクリックしてナビ機能をご利用ください。
部屋設備












建物設備

TVモニターホン

オートロック

敷地内ゴミ置場

駐車場平置き

駐輪場
c-MA2の現在募集中のお部屋
- No rooms found for this property.


























