
| 賃料 | 予想金額:200,000〜220,000円程度 | 管理費 | 予想金額:0〜2,000円程度 |
| 礼金/敷金 | 非公開(アーカイブ) | 平米数 | 58.3㎡ |
| 初期費用概算(参考) | 目安:776,500〜876,500 円 | みなし賃料(月額・参考) | 212,844〜232,844 円 |
| 備考 | 本ページは過去募集のアーカイブです。表示の金額は周辺相場・過去募集を踏まえた参考レンジであり、実際の契約金額・条件ではありません。 | ||
※上記みなし賃料(月額)は仲介手数料割引・無料&キャッシュバックを加味した高級賃貸バイブル限定の金額です。一般的なみなし賃料とは異なります。
【建物ページ】リージア代田テラスの詳細・最新空室はこちら▶▶選ばれる理由
仲介手数料無料・キャンペーン情報(毎月15名様限定)
〇仲介手数料割引キャンペーン
リージア代田テラス 7号の口コミ・レビュー
リージア代田テラス 7号は、まるで太陽の光が優しく包み込む南向きのオアシスです。ここに住むことは、人生の舞台を一層華やかに彩ることにほかなりません。この物件は、あなたを心から迎え入れるスイートスポットであり、日常を特別なものへと変えてくれることでしょう。
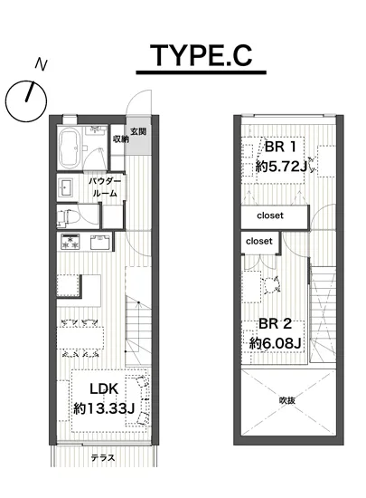
58.3㎡の広々とした空間は、まるで豊かな森林の中で自由に絵を描くような自由さを与えてくれます。LDKは13.33帖の広さを誇り、その中に広が…リージア代田テラス 7号は、まるで太陽の光が優しく包み込む南向きのオアシスです。ここに住むことは、人生の舞台を一層華やかに彩ることにほかなりません。この物件は、あなたを心から迎え入れるスイートスポットであり、日常を特別なものへと変えてくれることでしょう。
58.3㎡の広々とした空間は、まるで豊かな森林の中で自由に絵を描くような自由さを与えてくれます。LDKは13.33帖の広さを誇り、その中に広がるのはまるで映画のワンシーンから抜け出したような居心地の良さ。友人が集まり、笑い声が響くリビングで、あたたかい光が差し込み、おいしい料理の香ばしい匂いが漂ってくる様子を想像してみてください。手作りの料理がテーブルに並び、家族や友人との心温まる会話が生まれる、その瞬間こそが、ここでの生活の真髄です。
さらに、6.08帖の寝室は、まるで夢の世界へと導く静かな隠れ家。昼間の疲れを癒し、夜は星空を見上げながら贅沢なひと時を過ごすための空間です。5.72帖のもう一つの寝室は、子供部屋にも、趣味の部屋にも最適な多機能スペース。さまざまな夢を描くためのキャンバスとも言えるでしょう。
リージア代田テラス 7号は、ただの住まいではなく、あなたの人生の物語を紡ぐための舞台なのです。オートロックやTVモニターホンといった先進的な設備が、安心感を与えてくれます。低層のデザイナーズ建築は、周囲の四季をより美しく映し出し、まるで自然と一体化したかのような感覚を与えてくれます。敷地内のゴミ置場や駐輪場も、日常生活の利便性を高め、ストレスのない暮らしをサポートします。
さらに、この物件は小田急電鉄小田原線の世田谷代田駅から徒歩2分の距離に位置し、都心へのアクセスもスムーズ。忙しい毎日の中でも、心に余裕を持って生活できる素晴らしい立地です。
周辺には、歴史と文化が色濃く息づいています。代田周辺の街並みは、古き良き時代を感じさせる風情が残り、アートギャラリーやカフェも点在しています。散歩するだけで、心のどこかが豊かになる感覚を味わえることでしょう。日常の生活が、まるで映画の中の一コマのように感じられるこの場所で、あなたも新たな物語を始めませんか?
リージア代田テラス 7号は、ただの住まいを超えた、あなたの心の故郷になることをお約束いたします。ここでの生活が、煌めく日々と感動的な瞬間で満たされることを願ってやみません。さあ、この高級賃貸物件で特別な時間をお過ごしください。
58.3㎡の広々とした空間は、まるで豊かな森林の中で自由に絵を描くような自由さを与えてくれます。LDKは13.33帖の広さを誇り、その中に広が…リージア代田テラス 7号は、まるで太陽の光が優しく包み込む南向きのオアシスです。ここに住むことは、人生の舞台を一層華やかに彩ることにほかなりません。この物件は、あなたを心から迎え入れるスイートスポットであり、日常を特別なものへと変えてくれることでしょう。
58.3㎡の広々とした空間は、まるで豊かな森林の中で自由に絵を描くような自由さを与えてくれます。LDKは13.33帖の広さを誇り、その中に広がるのはまるで映画のワンシーンから抜け出したような居心地の良さ。友人が集まり、笑い声が響くリビングで、あたたかい光が差し込み、おいしい料理の香ばしい匂いが漂ってくる様子を想像してみてください。手作りの料理がテーブルに並び、家族や友人との心温まる会話が生まれる、その瞬間こそが、ここでの生活の真髄です。
さらに、6.08帖の寝室は、まるで夢の世界へと導く静かな隠れ家。昼間の疲れを癒し、夜は星空を見上げながら贅沢なひと時を過ごすための空間です。5.72帖のもう一つの寝室は、子供部屋にも、趣味の部屋にも最適な多機能スペース。さまざまな夢を描くためのキャンバスとも言えるでしょう。
リージア代田テラス 7号は、ただの住まいではなく、あなたの人生の物語を紡ぐための舞台なのです。オートロックやTVモニターホンといった先進的な設備が、安心感を与えてくれます。低層のデザイナーズ建築は、周囲の四季をより美しく映し出し、まるで自然と一体化したかのような感覚を与えてくれます。敷地内のゴミ置場や駐輪場も、日常生活の利便性を高め、ストレスのない暮らしをサポートします。
さらに、この物件は小田急電鉄小田原線の世田谷代田駅から徒歩2分の距離に位置し、都心へのアクセスもスムーズ。忙しい毎日の中でも、心に余裕を持って生活できる素晴らしい立地です。
周辺には、歴史と文化が色濃く息づいています。代田周辺の街並みは、古き良き時代を感じさせる風情が残り、アートギャラリーやカフェも点在しています。散歩するだけで、心のどこかが豊かになる感覚を味わえることでしょう。日常の生活が、まるで映画の中の一コマのように感じられるこの場所で、あなたも新たな物語を始めませんか?
リージア代田テラス 7号は、ただの住まいを超えた、あなたの心の故郷になることをお約束いたします。ここでの生活が、煌めく日々と感動的な瞬間で満たされることを願ってやみません。さあ、この高級賃貸物件で特別な時間をお過ごしください。
バイブルスコア
バイブルスコア: 25.4
平均的なスコアです。
※バイブルスコア詳細はこちら
バイブルスコアとは独自のAI機械学習技術を利用した物件評価システムで、物件のおすすめ度を示します。最高得点は100点で、スコアが高いほど、よりおすすめの物件と評価されています。
写真
現在写真が登録されていません契約条件
| 賃料 | 予想金額:200,000〜220,000円程度 | 管理費 | 予想金額:0〜2,000円程度 |
| 礼金 | 非公開(アーカイブ) | 敷金 | 非公開(アーカイブ) |
| フリーレント | なし | 平米数 | 58.3㎡ |
| 間取り | 2LDK | 大型収納 | |
| 契約期間 |
| 方角 | 南 |
| 更新料 | 契約形態 | 普通賃貸借契約 | |
| 取引態様 | 媒介 | 内見状況 | 入居中 |
| 入居時期 | 入居中 | SOHO・事務所 | |
| ペット | 間取り内訳 | LDK=13.33J / BR=6.08J / BR=5.72J | |
| キャンペーン情報・備考 | 本情報は賃料改定交渉の資料作成、収益物件の利回り試算、周辺エリアや最寄り駅の坪単価分析、次回募集開始時期の予測などにご活用いただけます。 | ||
※「どの不動産に頼めばいいのか分からない」「信頼できる営業マンの話を聞きたい」「一番親切な会社と契約したい」とお悩みの方におすすめなのが「高級賃貸バイブル」です。
高級賃貸バイブルは業界10年以上の熟練スタッフ群がお客様ファーストで対応します。
下記ボタンから、まずは無料でご相談下さい。
※内覧をご希望の際には、どうぞ物件のエントランス前にてお待ち合わせくださいませ。ご内覧後は、同じ場所でお別れとさせていただきます。お客様のご都合に合わせたスムーズなご案内を心がけておりますので、ご質問等がございましたら何なりとお申し付けください。 物件概要
| 物件名 |
| 築年月 |
|
|---|---|---|---|
| 所在地 | |||
| 交通 | |||
| 総戸数 |
| 総階数 |
|
| 構造 |
| ||
地図
物件までの道のりは、「拡大地図を表示」をクリックしてナビ機能をご利用ください。
部屋設備
















建物設備

TVモニターホン

オートロック

敷地内ゴミ置場

駐輪場
リージア代田テラスの現在募集中のお部屋
- No rooms found for this property.
