
| 賃料 | 予想金額:170,000〜190,000円程度 | 管理費 | 予想金額:9,000〜13,000円程度 |
| 礼金/敷金 | 非公開(アーカイブ) | 平米数 | 46.65㎡ |
| 初期費用概算(参考) | 目安:688,000〜788,000 円 | みなし賃料(月額・参考) | 192,625〜212,625 円 |
| 備考 | 本ページは過去募集のアーカイブです。表示の金額は周辺相場・過去募集を踏まえた参考レンジであり、実際の契約金額・条件ではありません。 | ||
※上記みなし賃料(月額)は仲介手数料割引・無料&キャッシュバックを加味した高級賃貸バイブル限定の金額です。一般的なみなし賃料とは異なります。
【建物ページ】アヴェニール東麻布の詳細・最新空室はこちら▶▶選ばれる理由
仲介手数料無料・キャンペーン情報(毎月15名様限定)
〇仲介手数料割引キャンペーン
アヴェニール東麻布 203の口コミ・レビュー
アヴェニール東麻布 203は、まるで静寂の中で美しい旋律を奏でる楽器のように、東京の喧騒を忘れさせてくれる特別な空間です。東京都港区東麻布に位置するこの1LDKの宝石は、46.65㎡というコンパクトながらも贅沢な広さを誇り、あなたの心地良い生活を彩ります。北東の方角から差し込む柔らかな光が、毎日の暮らしを優しく包み込むことでしょう。
この物件は、まるで長年の友人のように、あなたに寄り添い、様々な…アヴェニール東麻布 203は、まるで静寂の中で美しい旋律を奏でる楽器のように、東京の喧騒を忘れさせてくれる特別な空間です。東京都港区東麻布に位置するこの1LDKの宝石は、46.65㎡というコンパクトながらも贅沢な広さを誇り、あなたの心地良い生活を彩ります。北東の方角から差し込む柔らかな光が、毎日の暮らしを優しく包み込むことでしょう。
この物件は、まるで長年の友人のように、あなたに寄り添い、様々なストーリーを語りかけてきます。エレベーターの扉が開くと、そこには洗練されたデザインによるエントランスが広がり、あなたを迎え入れます。オートロックが施されたこの扉は、あなたのプライベートな世界への入り口。安全で落ち着いた空間が、まるで安心感の魔法のように広がっています。
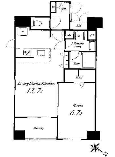
アヴェニール東麻布 203に足を踏み入れると、優雅な空間が広がります。13.7帖のLDKは、太陽の光が溢れ、色とりどりのお料理の香りが漂うキッチンと一体となり、まるで美味しい食材を求める旅人たちを迎える場所のようです。ここで、あなたは心のこもった料理を愛する人と分かち合い、笑い声が響く特別な時間を過ごすことでしょう。6.7帖の洋室は、ひと休みするための静謐なサンクチュアリ。柔らかな布団に身を委ねる瞬間、心地よい風が窓から入ってくると、まるで大自然の中で安らいでいるかのような幸福感に包まれることでしょう。
周囲には歴史的な名所が点在し、アヴェニール東麻布 203から歩いてたどり着ける赤羽橋駅は、都営地下鉄大江戸線の便利なアクセスを実現しています。四季折々の風景に包まれるこの街は、文化とアートの香りに満ちており、アヴェニール東麻布 203に住むあなたは、まるで毎日が映画のエピソードのような新たな発見と出会いに満ちた生活を楽しむことでしょう。
宅配ボックスや駐輪場、24時間の管理体制も整っており、安心感と利便性が共存するこの物件は、単なる居住空間を超えた、至福のひと時を提供してくれます。さあ、アヴェニール東麻布 203で、新たな物語を紡ぎ始めてみませんか。あなたの人生に美しい音色を加える、特別な場所がここにあります。
この物件は、まるで長年の友人のように、あなたに寄り添い、様々な…アヴェニール東麻布 203は、まるで静寂の中で美しい旋律を奏でる楽器のように、東京の喧騒を忘れさせてくれる特別な空間です。東京都港区東麻布に位置するこの1LDKの宝石は、46.65㎡というコンパクトながらも贅沢な広さを誇り、あなたの心地良い生活を彩ります。北東の方角から差し込む柔らかな光が、毎日の暮らしを優しく包み込むことでしょう。
この物件は、まるで長年の友人のように、あなたに寄り添い、様々なストーリーを語りかけてきます。エレベーターの扉が開くと、そこには洗練されたデザインによるエントランスが広がり、あなたを迎え入れます。オートロックが施されたこの扉は、あなたのプライベートな世界への入り口。安全で落ち着いた空間が、まるで安心感の魔法のように広がっています。
アヴェニール東麻布 203に足を踏み入れると、優雅な空間が広がります。13.7帖のLDKは、太陽の光が溢れ、色とりどりのお料理の香りが漂うキッチンと一体となり、まるで美味しい食材を求める旅人たちを迎える場所のようです。ここで、あなたは心のこもった料理を愛する人と分かち合い、笑い声が響く特別な時間を過ごすことでしょう。6.7帖の洋室は、ひと休みするための静謐なサンクチュアリ。柔らかな布団に身を委ねる瞬間、心地よい風が窓から入ってくると、まるで大自然の中で安らいでいるかのような幸福感に包まれることでしょう。
周囲には歴史的な名所が点在し、アヴェニール東麻布 203から歩いてたどり着ける赤羽橋駅は、都営地下鉄大江戸線の便利なアクセスを実現しています。四季折々の風景に包まれるこの街は、文化とアートの香りに満ちており、アヴェニール東麻布 203に住むあなたは、まるで毎日が映画のエピソードのような新たな発見と出会いに満ちた生活を楽しむことでしょう。
宅配ボックスや駐輪場、24時間の管理体制も整っており、安心感と利便性が共存するこの物件は、単なる居住空間を超えた、至福のひと時を提供してくれます。さあ、アヴェニール東麻布 203で、新たな物語を紡ぎ始めてみませんか。あなたの人生に美しい音色を加える、特別な場所がここにあります。
バイブルスコア
バイブルスコア: 29.3
平均的なスコアです。
※バイブルスコア詳細はこちら
バイブルスコアとは独自のAI機械学習技術を利用した物件評価システムで、物件のおすすめ度を示します。最高得点は100点で、スコアが高いほど、よりおすすめの物件と評価されています。
写真
契約条件
| 賃料 | 予想金額:170,000〜190,000円程度 | 管理費 | 予想金額:9,000〜13,000円程度 |
| 礼金 | 非公開(アーカイブ) | 敷金 | 非公開(アーカイブ) |
| フリーレント | なし | 平米数 | 46.65㎡ |
| 間取り | 1LDK | 大型収納 | |
| 契約期間 |
| 方角 | 北東 |
| 更新料 | 契約形態 | 普通賃貸借契約 | |
| 取引態様 | 媒介 | 内見状況 | 入居中 |
| 入居時期 | 入居中 | SOHO・事務所 | |
| ペット | 間取り内訳 | 洋:6.7 LDK:13.7 | |
| キャンペーン情報・備考 | 本情報は賃料改定交渉の資料作成、収益物件の利回り試算、周辺エリアや最寄り駅の坪単価分析、次回募集開始時期の予測などにご活用いただけます。 | ||
※「どの不動産に頼めばいいのか分からない」「信頼できる営業マンの話を聞きたい」「一番親切な会社と契約したい」とお悩みの方におすすめなのが「高級賃貸バイブル」です。
高級賃貸バイブルは業界10年以上の熟練スタッフ群がお客様ファーストで対応します。
下記ボタンから、まずは無料でご相談下さい。
※内覧をご希望の際には、どうぞ物件のエントランス前にてお待ち合わせくださいませ。ご内覧後は、同じ場所でお別れとさせていただきます。お客様のご都合に合わせたスムーズなご案内を心がけておりますので、ご質問等がございましたら何なりとお申し付けください。 物件概要
| 物件名 |
| 築年月 |
|
|---|---|---|---|
| 所在地 | |||
| 交通 | |||
| 総戸数 |
| 総階数 |
|
| 構造 |
| ||
地図
物件までの道のりは、「拡大地図を表示」をクリックしてナビ機能をご利用ください。
部屋設備















建物設備

24時間管理

TVモニターホン

エレベーター

オートロック

宅配ボックス

敷地内ゴミ置場

駐車場平置き

駐輪場
アヴェニール東麻布の現在募集中のお部屋
- アヴェニール東麻布 901 - 間取り: 1LDK+WIC - 賃料: 20.4万円

























