
| 賃料 | 予想金額:150,000〜170,000円程度 | 管理費 | 予想金額:4,000〜8,000円程度 |
| 礼金/敷金 | 非公開(アーカイブ) | 平米数 | 48.26㎡ |
| 初期費用概算(参考) | 目安:610,500〜710,500 円 | みなし賃料(月額・参考) | 166,427〜186,427 円 |
| 備考 | 本ページは過去募集のアーカイブです。表示の金額は周辺相場・過去募集を踏まえた参考レンジであり、実際の契約金額・条件ではありません。 | ||
※上記みなし賃料(月額)は仲介手数料割引・無料&キャッシュバックを加味した高級賃貸バイブル限定の金額です。一般的なみなし賃料とは異なります。
【建物ページ】ヒルクレスト南大塚の詳細・最新空室はこちら▶▶選ばれる理由
仲介手数料無料・キャンペーン情報(毎月15名様限定)
〇仲介手数料割引キャンペーン
ヒルクレスト南大塚 702の口コミ・レビュー
ヒルクレスト南大塚 702は、都市の喧騒を忘れさせるような、洗練された空間を提供する高級賃貸物件です。この702号室は、まるであなた専用の劇場のように、その美しさと機能性で心を掴んで離しません。専有面積48.26㎡には、あなたの夢や希望のエッセンスがぎゅっと詰まっています。
この物件は、東の窓から差し込む柔らかな朝日が、優雅に起床を促すようになります。朝の光に包まれたリビングダイニングは、まるで…ヒルクレスト南大塚 702は、都市の喧騒を忘れさせるような、洗練された空間を提供する高級賃貸物件です。この702号室は、まるであなた専用の劇場のように、その美しさと機能性で心を掴んで離しません。専有面積48.26㎡には、あなたの夢や希望のエッセンスがぎゅっと詰まっています。
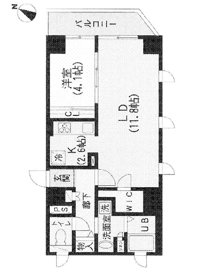
この物件は、東の窓から差し込む柔らかな朝日が、優雅に起床を促すようになります。朝の光に包まれたリビングダイニングは、まるで生命を持つかのように、あなたを温かく迎え入れてくれるでしょう。11.8帖のLDKは、まるでアートギャラリーのように、インテリアの選び方によって様々な表情を見せてくれます。ここで過ごす時間が、あなたの個性を映し出す舞台となるのです。
キッチンは2.6帖のスペースにあり、料理をすることがまるで美術作品を創り上げるかのような感覚に浸れます。新鮮な食材を手にし、香ばしい香りが漂う中で、あなたの手で美味しい料理を作り上げる瞬間は、まさに至福のひとときです。このキッチンから生まれる料理は、ただの食事ではなく、特別な人々との思い出を紡ぐ一皿となります。
そして、4.1帖の寝室は、あなたの秘密の隠れ家。静寂が心を包み込み、一日の疲れを癒してくれる場所です。ここに身を横たえれば、夢の中でさえもあなたを守り続けてくれる、まるで優しい母のような存在に感じられることでしょう。
ヒルクレスト南大塚 702は、エレベーターとオートロック、宅配ボックスなど便利な設備が整い、生活の快適さを追求しています。あなたがこの空間に身を置くことで、日常が一層豊かに彩られることでしょう。自宅での穏やかな時間が、まるで映画のワンシーンのように感じられるのではないでしょうか?
また、JR山手線大塚駅まで徒歩2分という立地は、まさに都会のオアシス。周辺には歴史や文化が息づいており、隣接する公園では四季折々の草花があなたを迎えてくれます。時には耳を澄ませて、風の音や鳥のさえずりを感じながら、日常生活に小さな幸せを取り入れてみてください。
ヒルクレスト南大塚 702は、ただの住まいではなく、あなたの人生を豊かにする舞台です。ここで日々の生活を送ることで、心に描いていた夢を一歩ずつ実現できることでしょう。この物件に住むことは、まるで一冊の美しい物語の主人公となること。新しい生活を始めるその瞬間から、あなたはこの特別な空間に自分自身を重ねていくことでしょう。
この物件は、東の窓から差し込む柔らかな朝日が、優雅に起床を促すようになります。朝の光に包まれたリビングダイニングは、まるで…ヒルクレスト南大塚 702は、都市の喧騒を忘れさせるような、洗練された空間を提供する高級賃貸物件です。この702号室は、まるであなた専用の劇場のように、その美しさと機能性で心を掴んで離しません。専有面積48.26㎡には、あなたの夢や希望のエッセンスがぎゅっと詰まっています。
この物件は、東の窓から差し込む柔らかな朝日が、優雅に起床を促すようになります。朝の光に包まれたリビングダイニングは、まるで生命を持つかのように、あなたを温かく迎え入れてくれるでしょう。11.8帖のLDKは、まるでアートギャラリーのように、インテリアの選び方によって様々な表情を見せてくれます。ここで過ごす時間が、あなたの個性を映し出す舞台となるのです。
キッチンは2.6帖のスペースにあり、料理をすることがまるで美術作品を創り上げるかのような感覚に浸れます。新鮮な食材を手にし、香ばしい香りが漂う中で、あなたの手で美味しい料理を作り上げる瞬間は、まさに至福のひとときです。このキッチンから生まれる料理は、ただの食事ではなく、特別な人々との思い出を紡ぐ一皿となります。
そして、4.1帖の寝室は、あなたの秘密の隠れ家。静寂が心を包み込み、一日の疲れを癒してくれる場所です。ここに身を横たえれば、夢の中でさえもあなたを守り続けてくれる、まるで優しい母のような存在に感じられることでしょう。
ヒルクレスト南大塚 702は、エレベーターとオートロック、宅配ボックスなど便利な設備が整い、生活の快適さを追求しています。あなたがこの空間に身を置くことで、日常が一層豊かに彩られることでしょう。自宅での穏やかな時間が、まるで映画のワンシーンのように感じられるのではないでしょうか?
また、JR山手線大塚駅まで徒歩2分という立地は、まさに都会のオアシス。周辺には歴史や文化が息づいており、隣接する公園では四季折々の草花があなたを迎えてくれます。時には耳を澄ませて、風の音や鳥のさえずりを感じながら、日常生活に小さな幸せを取り入れてみてください。
ヒルクレスト南大塚 702は、ただの住まいではなく、あなたの人生を豊かにする舞台です。ここで日々の生活を送ることで、心に描いていた夢を一歩ずつ実現できることでしょう。この物件に住むことは、まるで一冊の美しい物語の主人公となること。新しい生活を始めるその瞬間から、あなたはこの特別な空間に自分自身を重ねていくことでしょう。
バイブルスコア
バイブルスコア: 33.6
平均的なスコアです。
※バイブルスコア詳細はこちら
バイブルスコアとは独自のAI機械学習技術を利用した物件評価システムで、物件のおすすめ度を示します。最高得点は100点で、スコアが高いほど、よりおすすめの物件と評価されています。
写真
現在写真が登録されていません契約条件
| 賃料 | 予想金額:150,000〜170,000円程度 | 管理費 | 予想金額:4,000〜8,000円程度 |
| 礼金 | 非公開(アーカイブ) | 敷金 | 非公開(アーカイブ) |
| フリーレント | なし | 平米数 | 48.26㎡ |
| 間取り | 1LDK | 大型収納 | WIC |
| 契約期間 |
| 方角 | 東 |
| 更新料 | 契約形態 | 普通賃貸借契約 | |
| 取引態様 | 媒介 | 内見状況 | 入居中 |
| 入居時期 | 入居中 | SOHO・事務所 | |
| ペット | 間取り内訳 | LD=11.8J / K=2.6J / BR=4.1J | |
| キャンペーン情報・備考 | 本情報は賃料改定交渉の資料作成、収益物件の利回り試算、周辺エリアや最寄り駅の坪単価分析、次回募集開始時期の予測などにご活用いただけます。 | ||
※「どの不動産に頼めばいいのか分からない」「信頼できる営業マンの話を聞きたい」「一番親切な会社と契約したい」とお悩みの方におすすめなのが「高級賃貸バイブル」です。
高級賃貸バイブルは業界10年以上の熟練スタッフ群がお客様ファーストで対応します。
下記ボタンから、まずは無料でご相談下さい。
※内覧をご希望の際には、どうぞ物件のエントランス前にてお待ち合わせくださいませ。ご内覧後は、同じ場所でお別れとさせていただきます。お客様のご都合に合わせたスムーズなご案内を心がけておりますので、ご質問等がございましたら何なりとお申し付けください。 物件概要
| 物件名 |
| 築年月 |
|
|---|---|---|---|
| 所在地 | |||
| 交通 | |||
| 総戸数 |
| 総階数 |
|
| 構造 |
| ||
地図
物件までの道のりは、「拡大地図を表示」をクリックしてナビ機能をご利用ください。
部屋設備
















建物設備

TVモニターホン

エレベーター

オートロック

宅配ボックス

敷地内ゴミ置場
ヒルクレスト南大塚の現在募集中のお部屋
- No rooms found for this property.
