
| 賃料 | 予想金額:116,000〜136,000円程度 | 管理費 | 予想金額:4,000〜8,000円程度 |
| 礼金/敷金 | 非公開(アーカイブ) | 平米数 | 34.25㎡ |
| 初期費用概算(参考) | 目安:491,500〜591,500 円 | みなし賃料(月額・参考) | 130,656〜150,656 円 |
| 備考 | 本ページは過去募集のアーカイブです。表示の金額は周辺相場・過去募集を踏まえた参考レンジであり、実際の契約金額・条件ではありません。 | ||
※上記みなし賃料(月額)は仲介手数料割引・無料&キャッシュバックを加味した高級賃貸バイブル限定の金額です。一般的なみなし賃料とは異なります。
【建物ページ】ヒルクレスト南大塚の詳細・最新空室はこちら▶▶選ばれる理由
仲介手数料無料・キャンペーン情報(毎月15名様限定)
〇仲介手数料割引キャンペーン
ヒルクレスト南大塚 201の口コミ・レビュー
ヒルクレスト南大塚 201は、都会の喧騒を離れて静寂に包まれるひとときを提供する、まるで夢の中の邸宅のような物件です。東京都豊島区南大塚3-38-11、ここにその扉は存在し、あなたを特別な生活へと誘います。広がる34.25㎡の空間は、まるで古い絵画の中に描かれた風景が、目の前に現れたかのように感じます。
この物件は、東を向いているため、朝日が優しくその窓を撫でる時、あなたの一日は新たな始まりを感…ヒルクレスト南大塚 201は、都会の喧騒を離れて静寂に包まれるひとときを提供する、まるで夢の中の邸宅のような物件です。東京都豊島区南大塚3-38-11、ここにその扉は存在し、あなたを特別な生活へと誘います。広がる34.25㎡の空間は、まるで古い絵画の中に描かれた風景が、目の前に現れたかのように感じます。
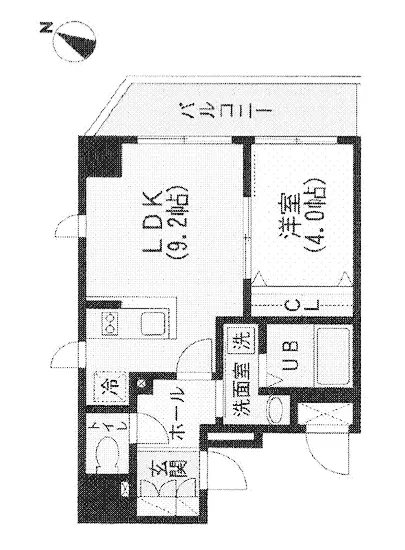
この物件は、東を向いているため、朝日が優しくその窓を撫でる時、あなたの一日は新たな始まりを感じさせてくれます。朝食の香ばしいパンの香りが漂い、柔らかな光がLDKの9.2帖を満たし、まるで優しい光のカーテンが降り注いでいるかのようです。そんな日に、窓を開けると爽やかな風が吹き込み、木々のささやきが耳に心地よく響きます。
ヒルクレスト南大塚 201は、ただの住まいではありません。あなたの人生の舞台となるのです。この物件に足を踏み入れるその瞬間から、生活が映画のワンシーンのように彩られていきます。夜になると、オートロックで守られた安全な空間が、まるで秘密の隠れ家のように感じることでしょう。
エレベーターを利用して自宅に戻ると、あなたを待ち受けるのは、心を癒してくれるようなインテリアと、細部にまでこだわった設備です。宅配ボックスに届いた小包のワクワク感は、まるで特別なサプライズを見つけたような高揚感をもたらします。TVモニターホンは、まるであなたの親しい友人がドアの向こうで微笑んでいるかのような安心感を感じさせる存在です。
この1LDKは、親密なひとときを育むための完璧な場を提供します。4帖の洋室は、あなたのプライベートなオアシスとして、仕事に疲れた心を解きほぐす場所となるでしょう。心地よい布団に身を沈めるたび、心が軽くなるのを実感することでしょう。
周辺には、歴史と文化が息づく場所が広がっています。大塚駅からわずか2分という立地は、現代の便利さと、昔ながらの情緒が共存する街並みが魅力的です。古い町屋やアートギャラリー、隠れ家的なカフェなど、日常の一部を彩る素敵なスポットが至る所に散りばめられています。地元の人々の温かさと、歴史が紡いできた文化が、あなたの生活に豊かさを加えることでしょう。
ヒルクレスト南大塚 201は、ただの賃貸物件以上の存在です。新たな生活の物語がここから始まります。あなたの感性を刺激し、毎日に小さな喜びをもたらす、特別な場所なのです。この物件に住むことは、まるで新たな章を手に入れるような感覚を抱かせるでしょう。次なる冒険は、あなたが選ぶその一歩から始まります。
この物件は、東を向いているため、朝日が優しくその窓を撫でる時、あなたの一日は新たな始まりを感…ヒルクレスト南大塚 201は、都会の喧騒を離れて静寂に包まれるひとときを提供する、まるで夢の中の邸宅のような物件です。東京都豊島区南大塚3-38-11、ここにその扉は存在し、あなたを特別な生活へと誘います。広がる34.25㎡の空間は、まるで古い絵画の中に描かれた風景が、目の前に現れたかのように感じます。
この物件は、東を向いているため、朝日が優しくその窓を撫でる時、あなたの一日は新たな始まりを感じさせてくれます。朝食の香ばしいパンの香りが漂い、柔らかな光がLDKの9.2帖を満たし、まるで優しい光のカーテンが降り注いでいるかのようです。そんな日に、窓を開けると爽やかな風が吹き込み、木々のささやきが耳に心地よく響きます。
ヒルクレスト南大塚 201は、ただの住まいではありません。あなたの人生の舞台となるのです。この物件に足を踏み入れるその瞬間から、生活が映画のワンシーンのように彩られていきます。夜になると、オートロックで守られた安全な空間が、まるで秘密の隠れ家のように感じることでしょう。
エレベーターを利用して自宅に戻ると、あなたを待ち受けるのは、心を癒してくれるようなインテリアと、細部にまでこだわった設備です。宅配ボックスに届いた小包のワクワク感は、まるで特別なサプライズを見つけたような高揚感をもたらします。TVモニターホンは、まるであなたの親しい友人がドアの向こうで微笑んでいるかのような安心感を感じさせる存在です。
この1LDKは、親密なひとときを育むための完璧な場を提供します。4帖の洋室は、あなたのプライベートなオアシスとして、仕事に疲れた心を解きほぐす場所となるでしょう。心地よい布団に身を沈めるたび、心が軽くなるのを実感することでしょう。
周辺には、歴史と文化が息づく場所が広がっています。大塚駅からわずか2分という立地は、現代の便利さと、昔ながらの情緒が共存する街並みが魅力的です。古い町屋やアートギャラリー、隠れ家的なカフェなど、日常の一部を彩る素敵なスポットが至る所に散りばめられています。地元の人々の温かさと、歴史が紡いできた文化が、あなたの生活に豊かさを加えることでしょう。
ヒルクレスト南大塚 201は、ただの賃貸物件以上の存在です。新たな生活の物語がここから始まります。あなたの感性を刺激し、毎日に小さな喜びをもたらす、特別な場所なのです。この物件に住むことは、まるで新たな章を手に入れるような感覚を抱かせるでしょう。次なる冒険は、あなたが選ぶその一歩から始まります。
バイブルスコア
バイブルスコア: 31.9
平均的なスコアです。
※バイブルスコア詳細はこちら
バイブルスコアとは独自のAI機械学習技術を利用した物件評価システムで、物件のおすすめ度を示します。最高得点は100点で、スコアが高いほど、よりおすすめの物件と評価されています。
写真
現在写真が登録されていません契約条件
| 賃料 | 予想金額:116,000〜136,000円程度 | 管理費 | 予想金額:4,000〜8,000円程度 |
| 礼金 | 非公開(アーカイブ) | 敷金 | 非公開(アーカイブ) |
| フリーレント | なし | 平米数 | 34.25㎡ |
| 間取り | 1LDK | 大型収納 | |
| 契約期間 |
| 方角 | 東 |
| 更新料 | 契約形態 | 普通賃貸借契約 | |
| 取引態様 | 媒介 | 内見状況 | 入居中 |
| 入居時期 | 入居中 | SOHO・事務所 | |
| ペット | 間取り内訳 | LDK=9.2J / BR=4J | |
| キャンペーン情報・備考 | 本情報は賃料改定交渉の資料作成、収益物件の利回り試算、周辺エリアや最寄り駅の坪単価分析、次回募集開始時期の予測などにご活用いただけます。 | ||
※「どの不動産に頼めばいいのか分からない」「信頼できる営業マンの話を聞きたい」「一番親切な会社と契約したい」とお悩みの方におすすめなのが「高級賃貸バイブル」です。
高級賃貸バイブルは業界10年以上の熟練スタッフ群がお客様ファーストで対応します。
下記ボタンから、まずは無料でご相談下さい。
※内覧をご希望の際には、どうぞ物件のエントランス前にてお待ち合わせくださいませ。ご内覧後は、同じ場所でお別れとさせていただきます。お客様のご都合に合わせたスムーズなご案内を心がけておりますので、ご質問等がございましたら何なりとお申し付けください。 物件概要
| 物件名 |
| 築年月 |
|
|---|---|---|---|
| 所在地 | |||
| 交通 | |||
| 総戸数 |
| 総階数 |
|
| 構造 |
| ||
地図
物件までの道のりは、「拡大地図を表示」をクリックしてナビ機能をご利用ください。
部屋設備
















建物設備

TVモニターホン

エレベーター

オートロック

宅配ボックス

敷地内ゴミ置場
ヒルクレスト南大塚の現在募集中のお部屋
- No rooms found for this property.
