
| 賃料 | 予想金額:119,000〜139,000円程度 | 管理費 | 予想金額:4,000〜8,000円程度 |
| 礼金/敷金 | 非公開(アーカイブ) | 平米数 | 34.25㎡ |
| 初期費用概算(参考) | 目安:502,000〜602,000 円 | みなし賃料(月額・参考) | 133,813〜153,813 円 |
| 備考 | 本ページは過去募集のアーカイブです。表示の金額は周辺相場・過去募集を踏まえた参考レンジであり、実際の契約金額・条件ではありません。 | ||
※上記みなし賃料(月額)は仲介手数料割引・無料&キャッシュバックを加味した高級賃貸バイブル限定の金額です。一般的なみなし賃料とは異なります。
【建物ページ】ヒルクレスト南大塚の詳細・最新空室はこちら▶▶選ばれる理由
仲介手数料無料・キャンペーン情報(毎月15名様限定)
〇仲介手数料割引キャンペーン
ヒルクレスト南大塚 501の口コミ・レビュー
ヒルクレスト南大塚 501。この物件の名は、まるで一つの物語を物語るかのように響きます。東京都豊島区南大塚3-38-11に位置するこの特別な空間は、あなたの日常をまるで映画のクライマックスのように彩る、そんな魅力を秘めています。501号室という数字は、まるで特別な扉を開く鍵のように、あなたを新しい生活へと導いてくれるのです。
想像してみてください。朝の光が東の窓から差し込み、やわらかな日差しが部…ヒルクレスト南大塚 501。この物件の名は、まるで一つの物語を物語るかのように響きます。東京都豊島区南大塚3-38-11に位置するこの特別な空間は、あなたの日常をまるで映画のクライマックスのように彩る、そんな魅力を秘めています。501号室という数字は、まるで特別な扉を開く鍵のように、あなたを新しい生活へと導いてくれるのです。
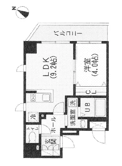
想像してみてください。朝の光が東の窓から差し込み、やわらかな日差しが部屋中を包み込む瞬間を。LDKは9.2帖の広さを誇り、あなたの大切な時間を豊かにする生活空間として、様々なシーンを演出します。朝のコーヒーの香り漂うキッチンでは、優雅な時間が流れ、あなたの心を和ませるでしょう。冷たい空気を感じながら、窓を開けると、街のざわめきが微かに聞こえ、まるで新しい日々の始まりを告げる音楽のようです。
尺(J)で表現された4Jの洋室は、夢の空間として、穏やかな夜を迎えるための安らぎの場。ベッドに横たわると、周囲が静けさに包まれ、あなただけの特別な物語が始まります。心地よい肌触りのシーツと、やわらかな感触の枕が、あなたの疲れを癒してくれるでしょう。その瞬間、きっと心が満たされ、この場所があなたのホームであることを実感するのです。
ヒルクレスト南大塚 501が提供する素晴らしい設備も、あなたの生活をより洗練されたものにしてくれます。TVモニターホンやオートロックシステムが、安心感という名のシールドを築いてくれ、その中で自由な発想が広がることでしょう。宅配ボックスは、現代の生活に欠かせない存在として、あなたの毎日をスムーズにサポートしてくれます。敷地内のゴミ置き場は、生活の素敵な余韻を残し、雑踏から解き放たれた時をもたらしてくれるのです。
この素敵な物件、ヒルクレスト南大塚 501は、わずか徒歩2分の距離にJR山手線大塚駅を有し、都市の喧騒と静寂のバランスを見事に保っています。周辺には、歴史的な名所が点在し、あなたの日常に文化的な彩りをもたらします。一歩外に踏み出せば、街の喧騒の中に、静かな美術館や古いカフェがあり、時間を忘れて浸ることができるのです。
この特別な空間、ヒルクレスト南大塚 501は、ただの住まいではなく、あなた自身を再発見するための舞台です。自らの手で描く生活のストーリーが、ここから始まります。夢の中でさえ感じられない、五感を揺さぶる心地よさと、美しい思い出を紡ぐ場所。どうぞ、この新しい章の始まりを迎えてください。あなたを待ちわびるヒルクレスト南大塚 501が、心温まる物語を共に分かち合う準備を整えています。
想像してみてください。朝の光が東の窓から差し込み、やわらかな日差しが部…ヒルクレスト南大塚 501。この物件の名は、まるで一つの物語を物語るかのように響きます。東京都豊島区南大塚3-38-11に位置するこの特別な空間は、あなたの日常をまるで映画のクライマックスのように彩る、そんな魅力を秘めています。501号室という数字は、まるで特別な扉を開く鍵のように、あなたを新しい生活へと導いてくれるのです。
想像してみてください。朝の光が東の窓から差し込み、やわらかな日差しが部屋中を包み込む瞬間を。LDKは9.2帖の広さを誇り、あなたの大切な時間を豊かにする生活空間として、様々なシーンを演出します。朝のコーヒーの香り漂うキッチンでは、優雅な時間が流れ、あなたの心を和ませるでしょう。冷たい空気を感じながら、窓を開けると、街のざわめきが微かに聞こえ、まるで新しい日々の始まりを告げる音楽のようです。
尺(J)で表現された4Jの洋室は、夢の空間として、穏やかな夜を迎えるための安らぎの場。ベッドに横たわると、周囲が静けさに包まれ、あなただけの特別な物語が始まります。心地よい肌触りのシーツと、やわらかな感触の枕が、あなたの疲れを癒してくれるでしょう。その瞬間、きっと心が満たされ、この場所があなたのホームであることを実感するのです。
ヒルクレスト南大塚 501が提供する素晴らしい設備も、あなたの生活をより洗練されたものにしてくれます。TVモニターホンやオートロックシステムが、安心感という名のシールドを築いてくれ、その中で自由な発想が広がることでしょう。宅配ボックスは、現代の生活に欠かせない存在として、あなたの毎日をスムーズにサポートしてくれます。敷地内のゴミ置き場は、生活の素敵な余韻を残し、雑踏から解き放たれた時をもたらしてくれるのです。
この素敵な物件、ヒルクレスト南大塚 501は、わずか徒歩2分の距離にJR山手線大塚駅を有し、都市の喧騒と静寂のバランスを見事に保っています。周辺には、歴史的な名所が点在し、あなたの日常に文化的な彩りをもたらします。一歩外に踏み出せば、街の喧騒の中に、静かな美術館や古いカフェがあり、時間を忘れて浸ることができるのです。
この特別な空間、ヒルクレスト南大塚 501は、ただの住まいではなく、あなた自身を再発見するための舞台です。自らの手で描く生活のストーリーが、ここから始まります。夢の中でさえ感じられない、五感を揺さぶる心地よさと、美しい思い出を紡ぐ場所。どうぞ、この新しい章の始まりを迎えてください。あなたを待ちわびるヒルクレスト南大塚 501が、心温まる物語を共に分かち合う準備を整えています。
バイブルスコア
バイブルスコア: 18.8
高級な物件でない場合は割高な物件です。。
※バイブルスコア詳細はこちら
バイブルスコアとは独自のAI機械学習技術を利用した物件評価システムで、物件のおすすめ度を示します。最高得点は100点で、スコアが高いほど、よりおすすめの物件と評価されています。
写真
現在写真が登録されていません契約条件
| 賃料 | 予想金額:119,000〜139,000円程度 | 管理費 | 予想金額:4,000〜8,000円程度 |
| 礼金 | 非公開(アーカイブ) | 敷金 | 非公開(アーカイブ) |
| フリーレント | なし | 平米数 | 34.25㎡ |
| 間取り | 1LDK | 大型収納 | |
| 契約期間 |
| 方角 | 東 |
| 更新料 | 契約形態 | 普通賃貸借契約 | |
| 取引態様 | 媒介 | 内見状況 | 入居中 |
| 入居時期 | 入居中 | SOHO・事務所 | |
| ペット | 間取り内訳 | LDK=9.2J / BR=4J | |
| キャンペーン情報・備考 | 本情報は賃料改定交渉の資料作成、収益物件の利回り試算、周辺エリアや最寄り駅の坪単価分析、次回募集開始時期の予測などにご活用いただけます。 | ||
※「どの不動産に頼めばいいのか分からない」「信頼できる営業マンの話を聞きたい」「一番親切な会社と契約したい」とお悩みの方におすすめなのが「高級賃貸バイブル」です。
高級賃貸バイブルは業界10年以上の熟練スタッフ群がお客様ファーストで対応します。
下記ボタンから、まずは無料でご相談下さい。
※内覧をご希望の際には、どうぞ物件のエントランス前にてお待ち合わせくださいませ。ご内覧後は、同じ場所でお別れとさせていただきます。お客様のご都合に合わせたスムーズなご案内を心がけておりますので、ご質問等がございましたら何なりとお申し付けください。 物件概要
| 物件名 |
| 築年月 |
|
|---|---|---|---|
| 所在地 | |||
| 交通 | |||
| 総戸数 |
| 総階数 |
|
| 構造 |
| ||
地図
物件までの道のりは、「拡大地図を表示」をクリックしてナビ機能をご利用ください。
部屋設備
















建物設備

TVモニターホン

エレベーター

オートロック

宅配ボックス

敷地内ゴミ置場
ヒルクレスト南大塚の現在募集中のお部屋
- No rooms found for this property.
