
| 賃料 | 予想金額:350,000〜370,000円程度 | 管理費 | 予想金額:13,000〜17,000円程度 |
| 礼金/敷金 | 非公開(アーカイブ) | 平米数 | 61.56㎡ |
| 初期費用概算(参考) | 目安:964,000〜1,064,000 円 | みなし賃料(月額・参考) | 378,625〜398,625 円 |
| 備考 | 本ページは過去募集のアーカイブです。表示の金額は周辺相場・過去募集を踏まえた参考レンジであり、実際の契約金額・条件ではありません。 | ||
※上記みなし賃料(月額)は仲介手数料割引・無料&キャッシュバックを加味した高級賃貸バイブル限定の金額です。一般的なみなし賃料とは異なります。
【建物ページ】ザ・パークハウス四谷若葉レジデンスの詳細・最新空室はこちら▶▶選ばれる理由
仲介手数料無料・キャンペーン情報(毎月15名様限定)
〇仲介手数料割引キャンペーン
ザ・パークハウス四谷若葉レジデンス 3階 61.56㎡の口コミ・レビュー
ザ・パークハウス四谷若葉レジデンス 3階 61.56㎡は、息を呑むほどの洗練さをもって、あなたを新しい生活の扉へと誘います。ここに住まうことは、ただの賃貸ではなく、まるで上質な映画の一幕に身を投じるような感覚です。363日、もしくはそれ以上の日々が、特別なものになる予感が漂います。
この高級賃貸物件は、東京都新宿区若葉に位置し、四季折々の美しさを享受しながら、北西の美しい景色を望むことができます…ザ・パークハウス四谷若葉レジデンス 3階 61.56㎡は、息を呑むほどの洗練さをもって、あなたを新しい生活の扉へと誘います。ここに住まうことは、ただの賃貸ではなく、まるで上質な映画の一幕に身を投じるような感覚です。363日、もしくはそれ以上の日々が、特別なものになる予感が漂います。
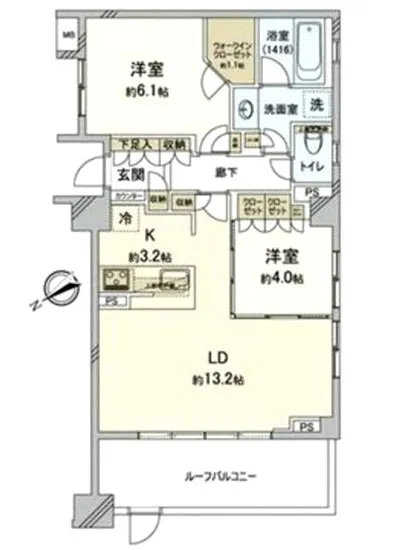
この高級賃貸物件は、東京都新宿区若葉に位置し、四季折々の美しさを享受しながら、北西の美しい景色を望むことができます。61.56㎡の空間は、あなたの生活スタイルを豊かにするための洗練された舞台。エレガントにまとめられた2LDKの間取りは、LDが13.2帖、Kが3.2帖、そして2つの美しいベッドルーム、6.1帖と4帖の空間が織り成す、心地良い調和が印象的です。
入るとまず、あたたかみのある木の香りがあなたを包み込みます。広々としたLDKは、柔らかな光がクリーンな白壁に反射し、まるで雲の中にいるかのよう。家族や友人と過ごす楽しい食事の時間を演出する、開放的なキッチンは、まるで料理の魔法をかけるための特別な場所のようです。新鮮な食材に彩られた料理の香ばしい匂いが、食卓に幸せを運んできます。
ザ・パークハウス四谷若葉レジデンスの魅力は、ただ居住空間に留まりません。この場所に住まうことは、東京の歴史と文化の真っ只中での生活を意味します。周辺は、四谷の落ち着いた街並みや静謐な神社、公園が点在しており、まるで一冊の詩集のように、安らぎと美の共存が感じられます。早朝の散歩では、静けさの中で聞こえる小鳥のさえずりが、あなたの日常に心地よいアクセントを加えてくれることでしょう。
また、24時間体制の管理やオートロック、TVモニターホンといった堅実なセキュリティが、安心感を持たせ、存分に日常生活に浸ることができます。バイキングのような選択肢が広がるラウンジで、心地よいひとときを過ごせば、まるで特別な社交場にいるかのようです。
時間が経つにつれ、ザ・パークハウス四谷若葉レジデンスがあなたに語りかけるかのような感覚が深まっていきます。たとえば、トレンドの最先端を行くデザイナーズ空間での生活は、あなたをより魅力的にし、アートのような暮らしを思わせます。贅沢でありながら、日常を特別に演出してくれるこの場所は、まるで宝石のようにあなたを輝かせてくれるでしょう。
最後に、都心へのアクセスも良好で、JR中央線の信濃町駅まで徒歩9分という便利さは、生活に潤いと豊かさを与える要素でもあります。このパークハウスで新しい生活を始めることは、自らが主人公となり、人生という物語をさらに磨き上げる素晴らしいチャンスなのです。ザ・パークハウス四谷若葉レジデンスが、あなたにとって特別な場所となることを、心より願っております。
この高級賃貸物件は、東京都新宿区若葉に位置し、四季折々の美しさを享受しながら、北西の美しい景色を望むことができます…ザ・パークハウス四谷若葉レジデンス 3階 61.56㎡は、息を呑むほどの洗練さをもって、あなたを新しい生活の扉へと誘います。ここに住まうことは、ただの賃貸ではなく、まるで上質な映画の一幕に身を投じるような感覚です。363日、もしくはそれ以上の日々が、特別なものになる予感が漂います。
この高級賃貸物件は、東京都新宿区若葉に位置し、四季折々の美しさを享受しながら、北西の美しい景色を望むことができます。61.56㎡の空間は、あなたの生活スタイルを豊かにするための洗練された舞台。エレガントにまとめられた2LDKの間取りは、LDが13.2帖、Kが3.2帖、そして2つの美しいベッドルーム、6.1帖と4帖の空間が織り成す、心地良い調和が印象的です。
入るとまず、あたたかみのある木の香りがあなたを包み込みます。広々としたLDKは、柔らかな光がクリーンな白壁に反射し、まるで雲の中にいるかのよう。家族や友人と過ごす楽しい食事の時間を演出する、開放的なキッチンは、まるで料理の魔法をかけるための特別な場所のようです。新鮮な食材に彩られた料理の香ばしい匂いが、食卓に幸せを運んできます。
ザ・パークハウス四谷若葉レジデンスの魅力は、ただ居住空間に留まりません。この場所に住まうことは、東京の歴史と文化の真っ只中での生活を意味します。周辺は、四谷の落ち着いた街並みや静謐な神社、公園が点在しており、まるで一冊の詩集のように、安らぎと美の共存が感じられます。早朝の散歩では、静けさの中で聞こえる小鳥のさえずりが、あなたの日常に心地よいアクセントを加えてくれることでしょう。
また、24時間体制の管理やオートロック、TVモニターホンといった堅実なセキュリティが、安心感を持たせ、存分に日常生活に浸ることができます。バイキングのような選択肢が広がるラウンジで、心地よいひとときを過ごせば、まるで特別な社交場にいるかのようです。
時間が経つにつれ、ザ・パークハウス四谷若葉レジデンスがあなたに語りかけるかのような感覚が深まっていきます。たとえば、トレンドの最先端を行くデザイナーズ空間での生活は、あなたをより魅力的にし、アートのような暮らしを思わせます。贅沢でありながら、日常を特別に演出してくれるこの場所は、まるで宝石のようにあなたを輝かせてくれるでしょう。
最後に、都心へのアクセスも良好で、JR中央線の信濃町駅まで徒歩9分という便利さは、生活に潤いと豊かさを与える要素でもあります。このパークハウスで新しい生活を始めることは、自らが主人公となり、人生という物語をさらに磨き上げる素晴らしいチャンスなのです。ザ・パークハウス四谷若葉レジデンスが、あなたにとって特別な場所となることを、心より願っております。
バイブルスコア
バイブルスコア: 3.6
高級な物件でない場合は割高な物件です。。
※バイブルスコア詳細はこちら
バイブルスコアとは独自のAI機械学習技術を利用した物件評価システムで、物件のおすすめ度を示します。最高得点は100点で、スコアが高いほど、よりおすすめの物件と評価されています。
写真
契約条件
| 賃料 | 予想金額:350,000〜370,000円程度 | 管理費 | 予想金額:13,000〜17,000円程度 |
| 礼金 | 非公開(アーカイブ) | 敷金 | 非公開(アーカイブ) |
| フリーレント | なし | 平米数 | 61.56㎡ |
| 間取り | 2LDK | 大型収納 | WIC |
| 契約期間 |
| 方角 | 北西 |
| 更新料 | 契約形態 | 普通賃貸借契約 | |
| 取引態様 | 媒介 | 内見状況 | 入居中 |
| 入居時期 | 入居中 | SOHO・事務所 | |
| ペット | 間取り内訳 | LD=13.2J / K=3.2J / BR=6.1J / BR=4J | |
| キャンペーン情報・備考 | 本情報は賃料改定交渉の資料作成、収益物件の利回り試算、周辺エリアや最寄り駅の坪単価分析、次回募集開始時期の予測などにご活用いただけます。 | ||
※「どの不動産に頼めばいいのか分からない」「信頼できる営業マンの話を聞きたい」「一番親切な会社と契約したい」とお悩みの方におすすめなのが「高級賃貸バイブル」です。
高級賃貸バイブルは業界10年以上の熟練スタッフ群がお客様ファーストで対応します。
下記ボタンから、まずは無料でご相談下さい。
※内覧をご希望の際には、どうぞ物件のエントランス前にてお待ち合わせくださいませ。ご内覧後は、同じ場所でお別れとさせていただきます。お客様のご都合に合わせたスムーズなご案内を心がけておりますので、ご質問等がございましたら何なりとお申し付けください。 物件概要
| 物件名 |
| 築年月 |
|
|---|---|---|---|
| 所在地 | |||
| 交通 | |||
| 総戸数 |
| 総階数 |
|
| 構造 |
| ||
地図
物件までの道のりは、「拡大地図を表示」をクリックしてナビ機能をご利用ください。
部屋設備















建物設備

24時間管理

TVモニターホン

エレベーター

オートロック

バイク置場

ラウンジ

宅配ボックス

敷地内ゴミ置場

管理人

駐車場平置き

駐車場機械式

駐輪場
ザ・パークハウス四谷若葉レジデンスの現在募集中のお部屋
- No rooms found for this property.




















