
| 賃料 | 予想金額:109,000〜129,000円程度 | 管理費 | 予想金額:7,500〜11,500円程度 |
| 礼金/敷金 | 非公開(アーカイブ) | 平米数 | 25.5㎡ |
| 初期費用概算(参考) | 目安:235,000〜335,000 円 | みなし賃料(月額・参考) | 122,448〜142,448 円 |
| 備考 | 本ページは過去募集のアーカイブです。表示の金額は周辺相場・過去募集を踏まえた参考レンジであり、実際の契約金額・条件ではありません。 | ||
※上記みなし賃料(月額)は仲介手数料割引・無料&キャッシュバックを加味した高級賃貸バイブル限定の金額です。一般的なみなし賃料とは異なります。
【建物ページ】コンシェリア三田の詳細・最新空室はこちら▶▶選ばれる理由
仲介手数料無料・キャンペーン情報(毎月15名様限定)
〇仲介手数料割引キャンペーン
コンシェリア三田 303の口コミ・レビュー
コンシェリア三田 303。この名を耳にした瞬間、思わず心が躍ることでしょう。東京都港区三田2-9-1に佇むこの物件は、まるで街の中心にひっそりと佇む宝石のように、住まいを求める者を静かに迎え入れます。北を向くこの303号室からは、日常の喧騒を適度に感じつつも、穏やかな空気が漂い、まるで都会の喧騒から少し距離を置いた隠れ家のような存在感を放っています。
都営地下鉄大江戸線の赤羽橋駅から徒歩7分の便…コンシェリア三田 303。この名を耳にした瞬間、思わず心が躍ることでしょう。東京都港区三田2-9-1に佇むこの物件は、まるで街の中心にひっそりと佇む宝石のように、住まいを求める者を静かに迎え入れます。北を向くこの303号室からは、日常の喧騒を適度に感じつつも、穏やかな空気が漂い、まるで都会の喧騒から少し距離を置いた隠れ家のような存在感を放っています。
都営地下鉄大江戸線の赤羽橋駅から徒歩7分の便利さは、まるで毎日の冒険への合図です。あなたの日常がここから始まるのです。家を出て、活気に満ちた街に足を踏み入れると、まるで映画の主人公になったかのように感じることでしょう。朝の光が差し込み、温かい空気が肌に触れた瞬間、心は活気に満ち、また新たな一日が始まります。
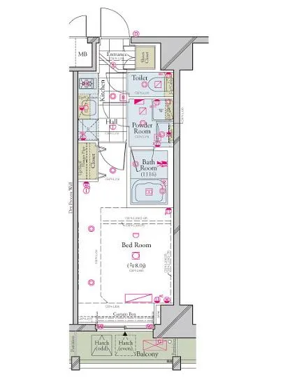
この物件の魅力は、何と言ってもその優雅な間取りにあります。洋室は8.0帖という広さで、そこには無限の可能性が秘められています。お気に入りのソファを配置し、柔らかなクッションに体を預けた瞬間、まるで自分専用のシアターが開演するかのようです。窓越しには、静かな北の風が心地よく流れ込み、時折、外から聞こえる街の音が、心の背景音楽となります。
コンシェリア三田 303の設備も申し分ありません。TVモニターホンがあることで、来訪者との距離感も大切にされ、オートロックの安心感は、まさに現代のセキュリティを象徴しています。エレベーターを下りると、あなたを迎えるのは整然としたエントランス。そこで感じるのは、まるで高級ホテルに足を踏み入れたかのような、上質な空間の香りです。宅配ボックスも完備されており、忙しい日常の中での小さな幸せを手に入れる手助けをしてくれます。
周囲の環境もまた、コンシェリア三田 303の魅力を引き立てています。三田の街は、歴史と文化が息づく場所であり、周囲にはアートギャラリーやおしゃれなカフェが点在しています。休日には、街を散策しながら、アートの息吹を感じたり、美味しいコーヒーを味わったりすることができます。どこか懐かしさを感じる街並みの中で、あなたは映画のワンシーンのように、穏やかな時間を過ごすことができるでしょう。
このコンシェリア三田 303での生活は、単なる居住空間を超え、心豊かなストーリーを紡ぐ舞台となります。味覚を刺激するおいしい料理を自宅で楽しみ、視覚を魅了するアートや音楽とともに過ごす日々は、心に豊かな彩りを与えてくれることでしょう。まるで、あなたの人生が映画の一コマとして映し出されるかのように、毎日が特別な瞬間に変わっていくのです。
さあ、あなたもこのコンシェリア三田 303で新しい物語を始めませんか。ここでは、あなたの夢が現実となり、日々の暮らしが映画のように彩られることをお約束いたします。
都営地下鉄大江戸線の赤羽橋駅から徒歩7分の便…コンシェリア三田 303。この名を耳にした瞬間、思わず心が躍ることでしょう。東京都港区三田2-9-1に佇むこの物件は、まるで街の中心にひっそりと佇む宝石のように、住まいを求める者を静かに迎え入れます。北を向くこの303号室からは、日常の喧騒を適度に感じつつも、穏やかな空気が漂い、まるで都会の喧騒から少し距離を置いた隠れ家のような存在感を放っています。
都営地下鉄大江戸線の赤羽橋駅から徒歩7分の便利さは、まるで毎日の冒険への合図です。あなたの日常がここから始まるのです。家を出て、活気に満ちた街に足を踏み入れると、まるで映画の主人公になったかのように感じることでしょう。朝の光が差し込み、温かい空気が肌に触れた瞬間、心は活気に満ち、また新たな一日が始まります。
この物件の魅力は、何と言ってもその優雅な間取りにあります。洋室は8.0帖という広さで、そこには無限の可能性が秘められています。お気に入りのソファを配置し、柔らかなクッションに体を預けた瞬間、まるで自分専用のシアターが開演するかのようです。窓越しには、静かな北の風が心地よく流れ込み、時折、外から聞こえる街の音が、心の背景音楽となります。
コンシェリア三田 303の設備も申し分ありません。TVモニターホンがあることで、来訪者との距離感も大切にされ、オートロックの安心感は、まさに現代のセキュリティを象徴しています。エレベーターを下りると、あなたを迎えるのは整然としたエントランス。そこで感じるのは、まるで高級ホテルに足を踏み入れたかのような、上質な空間の香りです。宅配ボックスも完備されており、忙しい日常の中での小さな幸せを手に入れる手助けをしてくれます。
周囲の環境もまた、コンシェリア三田 303の魅力を引き立てています。三田の街は、歴史と文化が息づく場所であり、周囲にはアートギャラリーやおしゃれなカフェが点在しています。休日には、街を散策しながら、アートの息吹を感じたり、美味しいコーヒーを味わったりすることができます。どこか懐かしさを感じる街並みの中で、あなたは映画のワンシーンのように、穏やかな時間を過ごすことができるでしょう。
このコンシェリア三田 303での生活は、単なる居住空間を超え、心豊かなストーリーを紡ぐ舞台となります。味覚を刺激するおいしい料理を自宅で楽しみ、視覚を魅了するアートや音楽とともに過ごす日々は、心に豊かな彩りを与えてくれることでしょう。まるで、あなたの人生が映画の一コマとして映し出されるかのように、毎日が特別な瞬間に変わっていくのです。
さあ、あなたもこのコンシェリア三田 303で新しい物語を始めませんか。ここでは、あなたの夢が現実となり、日々の暮らしが映画のように彩られることをお約束いたします。
バイブルスコア
バイブルスコア: 23.5
平均的なスコアです。
※バイブルスコア詳細はこちら
バイブルスコアとは独自のAI機械学習技術を利用した物件評価システムで、物件のおすすめ度を示します。最高得点は100点で、スコアが高いほど、よりおすすめの物件と評価されています。
写真
契約条件
| 賃料 | 予想金額:109,000〜129,000円程度 | 管理費 | 予想金額:7,500〜11,500円程度 |
| 礼金 | 非公開(アーカイブ) | 敷金 | 非公開(アーカイブ) |
| フリーレント | なし | 平米数 | 25.5㎡ |
| 間取り | 1K | 大型収納 | |
| 契約期間 |
| 方角 | 北 |
| 更新料 | 契約形態 | 普通賃貸借契約 | |
| 取引態様 | 媒介 | 内見状況 | 入居中 |
| 入居時期 | 入居中 | SOHO・事務所 | |
| ペット | ペット可 | 間取り内訳 | 洋:8.0 |
| キャンペーン情報・備考 | 本情報は賃料改定交渉の資料作成、収益物件の利回り試算、周辺エリアや最寄り駅の坪単価分析、次回募集開始時期の予測などにご活用いただけます。 | ||
※「どの不動産に頼めばいいのか分からない」「信頼できる営業マンの話を聞きたい」「一番親切な会社と契約したい」とお悩みの方におすすめなのが「高級賃貸バイブル」です。
高級賃貸バイブルは業界10年以上の熟練スタッフ群がお客様ファーストで対応します。
下記ボタンから、まずは無料でご相談下さい。
※内覧をご希望の際には、どうぞ物件のエントランス前にてお待ち合わせくださいませ。ご内覧後は、同じ場所でお別れとさせていただきます。お客様のご都合に合わせたスムーズなご案内を心がけておりますので、ご質問等がございましたら何なりとお申し付けください。 物件概要
| 物件名 |
| 築年月 |
|
|---|---|---|---|
| 所在地 | |||
| 交通 | |||
| 総戸数 |
| 総階数 |
|
| 構造 |
| ||
地図
物件までの道のりは、「拡大地図を表示」をクリックしてナビ機能をご利用ください。
部屋設備















建物設備

TVモニターホン

エレベーター

オートロック

宅配ボックス

敷地内ゴミ置場

管理人

駐車場平置き

駐輪場
コンシェリア三田の現在募集中のお部屋
- No rooms found for this property.




























