
| 賃料 | 予想金額:95,000〜115,000円程度 | 管理費 | 予想金額:10,000〜14,000円程度 |
| 礼金/敷金 | 非公開(アーカイブ) | 平米数 | 25.53㎡ |
| 初期費用概算(参考) | 目安:322,000〜422,000 円 | みなし賃料(月額・参考) | 112,563〜132,563 円 |
| 備考 | 本ページは過去募集のアーカイブです。表示の金額は周辺相場・過去募集を踏まえた参考レンジであり、実際の契約金額・条件ではありません。 | ||
※上記みなし賃料(月額)は仲介手数料割引・無料&キャッシュバックを加味した高級賃貸バイブル限定の金額です。一般的なみなし賃料とは異なります。
【建物ページ】プレミアムキューブ田町の詳細・最新空室はこちら▶▶選ばれる理由
仲介手数料無料・キャンペーン情報(毎月15名様限定)
〇仲介手数料割引キャンペーン
プレミアムキューブ田町 303の口コミ・レビュー
プレミアムキューブ田町 303は、都会の喧騒から一歩引いた静謐な場所に、あなたの新しい生活を待ち受けています。この洗練された1Kの空間は、南東を向き、朝の光が優しく差し込むことで、あなたの目覚めを美しく演出します。専有面積は25.53㎡、その中に凝縮された贅沢さは、まるで宝石箱のようにあなたを包み込みます。
この場所に足を踏み入れると、まず感じるのは心地良い空気感です。洋室は8.0帖の広さを持ち…プレミアムキューブ田町 303は、都会の喧騒から一歩引いた静謐な場所に、あなたの新しい生活を待ち受けています。この洗練された1Kの空間は、南東を向き、朝の光が優しく差し込むことで、あなたの目覚めを美しく演出します。専有面積は25.53㎡、その中に凝縮された贅沢さは、まるで宝石箱のようにあなたを包み込みます。
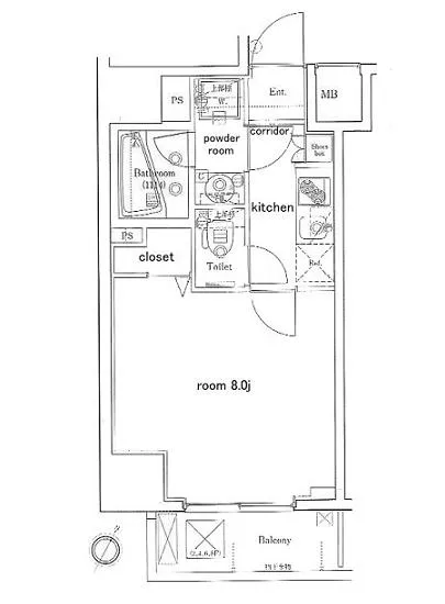
この場所に足を踏み入れると、まず感じるのは心地良い空気感です。洋室は8.0帖の広さを持ち、開放感が漂います。窓からは、芝浦の自然の恵みと都会の洗練が見事に調和する風景が広がり、金色の陽射しがカーテンを透かしながら、室内を優しく包みこみます。K2.5帖のキッチンは、料理の楽しみを最大限に活かすための理想的な配置がなされており、ここで新たなレシピにチャレンジすることは、まるで芸術作品を創造するかのような楽しさがあります。
プレミアムキューブ田町 303は、ただの住まいではなく、生活の舞台です。朝食をテーブルに並べると、焼きたてのトーストの香ばしい香りが漂い、コーヒーの香りとともに目を覚ます瞬間が心に残ります。さらにエレベーターの扉が開く音が、日々の生活にリズムを与え、あなた自身がその一部であることを実感させてくれます。
この物件はデザイナーズマンションとして、独自の美意識が息づいており、内装は現代的でありながらもどこか温かみを感じさせます。オートロックやTVモニターホンといったセキュリティ面にも配慮された設備は、ひとたび外に出た後も、安心感を与えてくれることでしょう。宅配ボックスが設置されているため、生活の忙しさの中でも、ゆったりとした時間を持つことができます。
周囲に広がる芝浦の風情や歴史、文化は、まるで映画のセットのような彩りを与え、日々の生活を特別なものにしてくれます。特に、田町駅から徒歩8分というアクセスの良さは、ビジネスやプライベートにおいて、様々な可能性を広げてくれることでしょう。
プレミアムキューブ田町 303での生活は、まさに一つの物語です。あなた自身が主人公となり、日々の小さな出来事が、いかに特別な意味を持つのかを実感できることでしょう。この魅力あふれる空間で、新しい感動とともに、毎日を彩っていくことができるのです。さあ、あなたの新しい物語をここから始めてみませんか。
この場所に足を踏み入れると、まず感じるのは心地良い空気感です。洋室は8.0帖の広さを持ち…プレミアムキューブ田町 303は、都会の喧騒から一歩引いた静謐な場所に、あなたの新しい生活を待ち受けています。この洗練された1Kの空間は、南東を向き、朝の光が優しく差し込むことで、あなたの目覚めを美しく演出します。専有面積は25.53㎡、その中に凝縮された贅沢さは、まるで宝石箱のようにあなたを包み込みます。
この場所に足を踏み入れると、まず感じるのは心地良い空気感です。洋室は8.0帖の広さを持ち、開放感が漂います。窓からは、芝浦の自然の恵みと都会の洗練が見事に調和する風景が広がり、金色の陽射しがカーテンを透かしながら、室内を優しく包みこみます。K2.5帖のキッチンは、料理の楽しみを最大限に活かすための理想的な配置がなされており、ここで新たなレシピにチャレンジすることは、まるで芸術作品を創造するかのような楽しさがあります。
プレミアムキューブ田町 303は、ただの住まいではなく、生活の舞台です。朝食をテーブルに並べると、焼きたてのトーストの香ばしい香りが漂い、コーヒーの香りとともに目を覚ます瞬間が心に残ります。さらにエレベーターの扉が開く音が、日々の生活にリズムを与え、あなた自身がその一部であることを実感させてくれます。
この物件はデザイナーズマンションとして、独自の美意識が息づいており、内装は現代的でありながらもどこか温かみを感じさせます。オートロックやTVモニターホンといったセキュリティ面にも配慮された設備は、ひとたび外に出た後も、安心感を与えてくれることでしょう。宅配ボックスが設置されているため、生活の忙しさの中でも、ゆったりとした時間を持つことができます。
周囲に広がる芝浦の風情や歴史、文化は、まるで映画のセットのような彩りを与え、日々の生活を特別なものにしてくれます。特に、田町駅から徒歩8分というアクセスの良さは、ビジネスやプライベートにおいて、様々な可能性を広げてくれることでしょう。
プレミアムキューブ田町 303での生活は、まさに一つの物語です。あなた自身が主人公となり、日々の小さな出来事が、いかに特別な意味を持つのかを実感できることでしょう。この魅力あふれる空間で、新しい感動とともに、毎日を彩っていくことができるのです。さあ、あなたの新しい物語をここから始めてみませんか。
バイブルスコア
バイブルスコア: 29.3
平均的なスコアです。
※バイブルスコア詳細はこちら
バイブルスコアとは独自のAI機械学習技術を利用した物件評価システムで、物件のおすすめ度を示します。最高得点は100点で、スコアが高いほど、よりおすすめの物件と評価されています。
写真
契約条件
| 賃料 | 予想金額:95,000〜115,000円程度 | 管理費 | 予想金額:10,000〜14,000円程度 |
| 礼金 | 非公開(アーカイブ) | 敷金 | 非公開(アーカイブ) |
| フリーレント | なし | 平米数 | 25.53㎡ |
| 間取り | 1K | 大型収納 | |
| 契約期間 |
| 方角 | 南東 |
| 更新料 | 契約形態 | 普通賃貸借契約 | |
| 取引態様 | 媒介 | 内見状況 | 入居中 |
| 入居時期 | 入居中 | SOHO・事務所 | |
| ペット | ペット可 | 間取り内訳 | 洋室8.0畳 K2.5畳 |
| キャンペーン情報・備考 | 本情報は賃料改定交渉の資料作成、収益物件の利回り試算、周辺エリアや最寄り駅の坪単価分析、次回募集開始時期の予測などにご活用いただけます。 | ||
※「どの不動産に頼めばいいのか分からない」「信頼できる営業マンの話を聞きたい」「一番親切な会社と契約したい」とお悩みの方におすすめなのが「高級賃貸バイブル」です。
高級賃貸バイブルは業界10年以上の熟練スタッフ群がお客様ファーストで対応します。
下記ボタンから、まずは無料でご相談下さい。
※内覧をご希望の際には、どうぞ物件のエントランス前にてお待ち合わせくださいませ。ご内覧後は、同じ場所でお別れとさせていただきます。お客様のご都合に合わせたスムーズなご案内を心がけておりますので、ご質問等がございましたら何なりとお申し付けください。 物件概要
| 物件名 |
| 築年月 |
|
|---|---|---|---|
| 所在地 | |||
| 交通 | |||
| 総戸数 |
| 総階数 |
|
| 構造 |
| ||
地図
物件までの道のりは、「拡大地図を表示」をクリックしてナビ機能をご利用ください。
部屋設備












建物設備

TVモニターホン

エレベーター

オートロック

宅配ボックス

敷地内ゴミ置場

駐輪場
プレミアムキューブ田町の現在募集中のお部屋
- No rooms found for this property.






























