
| 賃料 | 予想金額:245,000〜265,000円程度 | 管理費 | 予想金額:0〜2,000円程度 |
| 礼金/敷金 | 非公開(アーカイブ) | 平米数 | 70.21㎡ |
| 初期費用概算(参考) | 目安:934,000〜1,034,000 円 | みなし賃料(月額・参考) | 260,188〜280,188 円 |
| 備考 | 本ページは過去募集のアーカイブです。表示の金額は周辺相場・過去募集を踏まえた参考レンジであり、実際の契約金額・条件ではありません。 | ||
※上記みなし賃料(月額)は仲介手数料割引・無料&キャッシュバックを加味した高級賃貸バイブル限定の金額です。一般的なみなし賃料とは異なります。
【建物ページ】プレミスト千代田神田佐久間町の詳細・最新空室はこちら▶▶選ばれる理由
仲介手数料無料・キャンペーン情報(毎月15名様限定)
〇仲介手数料割引キャンペーン
プレミスト千代田神田佐久間町 1302の口コミ・レビュー
プレミスト千代田神田佐久間町 1302。あなたの新しい生活が、ここから始まります。この美しい空間は、単なる住処ではなく、心豊かな生活をデザインするための舞台装置なのです。エレガントに構えた外観は、まるで都会の中の一つのアートピースのように、周囲の喧騒から心地よく隔てられています。
最上階1302号室は、特別な日常を提供します。ドアを開けると、12.5帖の広々としたリビングダイニングがあなたを優し…プレミスト千代田神田佐久間町 1302。あなたの新しい生活が、ここから始まります。この美しい空間は、単なる住処ではなく、心豊かな生活をデザインするための舞台装置なのです。エレガントに構えた外観は、まるで都会の中の一つのアートピースのように、周囲の喧騒から心地よく隔てられています。
最上階1302号室は、特別な日常を提供します。ドアを開けると、12.5帖の広々としたリビングダイニングがあなたを優しく迎え入れます。大きな窓から差し込む朝の光が、柔らかく室内を包み込み、その瞬間、あなたの心もまた温かくなることでしょう。窓の外には、東の空に広がる美しい朝焼けが、まるで絵画のように映し出されます。新しい一日の始まりを、ここで迎えることができる幸せを実感してください。
キッチンは、3.2帖の広さを誇り、料理がまるでアートのように楽しくなることでしょう。誰もが憧れるデザイナーズ空間は、あなたの創造力をかきたてる理想的なステージです。食材を切る音が心地よく響き、スパイスの香りがふんわりと漂い、心を躍らせてくれます。家族や友人と共に作り上げる料理は、かけがえのない思い出になることでしょう。
お休みになる寝室は、6帖と5帖の二つの部屋に分かれています。それぞれの空間が、あなたの個性を映し出すキャンバスとなるでしょう。お好きなインテリアで彩り、心の安らぎを感じる場所に仕立ててください。その夜、窓の外から聞こえる秋葉原の街のざわめきは、まるで静かな子守唄のように心を癒してくれます。
プレミスト千代田神田佐久間町 1302には、生活に便利な設備が整っており、24時間管理という安心感と共に、宅配ボックスや駐輪場、駐車場など、日々の暮らしを支える仕掛けが満載です。訪れる人々をお迎えするTVモニターホンも、あなたの生活をより安心に彩ります。オートロックによるセキュリティも完備され、あなたのプライベートな世界がしっかり守られています。
街には、歴史や文化が息づく千代田区の風情が残っており、散策する度に新しい発見があることでしょう。秋葉原駅から徒歩6分でアクセスできるこの立地は、文化とアートが交差する場所としても知られています。季節の移ろいを感じる散歩道や、緑豊かな公園が、あなたの日常に潤いを与えます。
プレミスト千代田神田佐久間町 1302での生活は、まるで映画のワンシーンのように、特別な瞬間を刻むことができる場所なのです。美しい空間で、心豊かな生活を手に入れ、新たなストーリーを紡ぎ出してください。あなたの大切な瞬間が、この場所で待っています。
最上階1302号室は、特別な日常を提供します。ドアを開けると、12.5帖の広々としたリビングダイニングがあなたを優し…プレミスト千代田神田佐久間町 1302。あなたの新しい生活が、ここから始まります。この美しい空間は、単なる住処ではなく、心豊かな生活をデザインするための舞台装置なのです。エレガントに構えた外観は、まるで都会の中の一つのアートピースのように、周囲の喧騒から心地よく隔てられています。
最上階1302号室は、特別な日常を提供します。ドアを開けると、12.5帖の広々としたリビングダイニングがあなたを優しく迎え入れます。大きな窓から差し込む朝の光が、柔らかく室内を包み込み、その瞬間、あなたの心もまた温かくなることでしょう。窓の外には、東の空に広がる美しい朝焼けが、まるで絵画のように映し出されます。新しい一日の始まりを、ここで迎えることができる幸せを実感してください。
キッチンは、3.2帖の広さを誇り、料理がまるでアートのように楽しくなることでしょう。誰もが憧れるデザイナーズ空間は、あなたの創造力をかきたてる理想的なステージです。食材を切る音が心地よく響き、スパイスの香りがふんわりと漂い、心を躍らせてくれます。家族や友人と共に作り上げる料理は、かけがえのない思い出になることでしょう。
お休みになる寝室は、6帖と5帖の二つの部屋に分かれています。それぞれの空間が、あなたの個性を映し出すキャンバスとなるでしょう。お好きなインテリアで彩り、心の安らぎを感じる場所に仕立ててください。その夜、窓の外から聞こえる秋葉原の街のざわめきは、まるで静かな子守唄のように心を癒してくれます。
プレミスト千代田神田佐久間町 1302には、生活に便利な設備が整っており、24時間管理という安心感と共に、宅配ボックスや駐輪場、駐車場など、日々の暮らしを支える仕掛けが満載です。訪れる人々をお迎えするTVモニターホンも、あなたの生活をより安心に彩ります。オートロックによるセキュリティも完備され、あなたのプライベートな世界がしっかり守られています。
街には、歴史や文化が息づく千代田区の風情が残っており、散策する度に新しい発見があることでしょう。秋葉原駅から徒歩6分でアクセスできるこの立地は、文化とアートが交差する場所としても知られています。季節の移ろいを感じる散歩道や、緑豊かな公園が、あなたの日常に潤いを与えます。
プレミスト千代田神田佐久間町 1302での生活は、まるで映画のワンシーンのように、特別な瞬間を刻むことができる場所なのです。美しい空間で、心豊かな生活を手に入れ、新たなストーリーを紡ぎ出してください。あなたの大切な瞬間が、この場所で待っています。
バイブルスコア
バイブルスコア: 36.4
平均的なスコアです。
※バイブルスコア詳細はこちら
バイブルスコアとは独自のAI機械学習技術を利用した物件評価システムで、物件のおすすめ度を示します。最高得点は100点で、スコアが高いほど、よりおすすめの物件と評価されています。
写真
契約条件
| 賃料 | 予想金額:245,000〜265,000円程度 | 管理費 | 予想金額:0〜2,000円程度 |
| 礼金 | 非公開(アーカイブ) | 敷金 | 非公開(アーカイブ) |
| フリーレント | なし | 平米数 | 70.21㎡ |
| 間取り | 2LDK | 大型収納 | WIC+DEN |
| 契約期間 | 方角 | 東 | |
| 更新料 | 契約形態 | 定期借家契約 | |
| 取引態様 | 媒介 | 内見状況 | 入居中 |
| 入居時期 | 入居中 | SOHO・事務所 | |
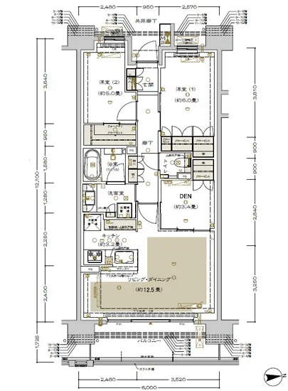
| ペット | 間取り内訳 | LD=12.5J / K=3.2J / BR=6J / BR=5J / DEN=3.4J | |
| キャンペーン情報・備考 | 本情報は賃料改定交渉の資料作成、収益物件の利回り試算、周辺エリアや最寄り駅の坪単価分析、次回募集開始時期の予測などにご活用いただけます。 | ||
※「どの不動産に頼めばいいのか分からない」「信頼できる営業マンの話を聞きたい」「一番親切な会社と契約したい」とお悩みの方におすすめなのが「高級賃貸バイブル」です。
高級賃貸バイブルは業界10年以上の熟練スタッフ群がお客様ファーストで対応します。
下記ボタンから、まずは無料でご相談下さい。
※内覧をご希望の際には、どうぞ物件のエントランス前にてお待ち合わせくださいませ。ご内覧後は、同じ場所でお別れとさせていただきます。お客様のご都合に合わせたスムーズなご案内を心がけておりますので、ご質問等がございましたら何なりとお申し付けください。 物件概要
| 物件名 |
| 築年月 |
|
|---|---|---|---|
| 所在地 | |||
| 交通 | |||
| 総戸数 |
| 総階数 |
|
| 構造 |
| ||
地図
物件までの道のりは、「拡大地図を表示」をクリックしてナビ機能をご利用ください。
部屋設備

















建物設備

24時間管理

TVモニターホン

エレベーター

オートロック

バイク置場

宅配ボックス

敷地内ゴミ置場

管理人

駐車場平置き

駐車場機械式

駐輪場
プレミスト千代田神田佐久間町の現在募集中のお部屋
- No rooms found for this property.



















