
| 賃料 | 予想金額:99,000〜119,000円程度 | 管理費 | 予想金額:8,000〜12,000円程度 |
| 礼金/敷金 | 非公開(アーカイブ) | 平米数 | 25.4㎡ |
| 初期費用概算(参考) | 目安:438,000〜538,000 円 | みなし賃料(月額・参考) | 116,896〜136,896 円 |
| 備考 | 本ページは過去募集のアーカイブです。表示の金額は周辺相場・過去募集を踏まえた参考レンジであり、実際の契約金額・条件ではありません。 | ||
※上記みなし賃料(月額)は仲介手数料割引・無料&キャッシュバックを加味した高級賃貸バイブル限定の金額です。一般的なみなし賃料とは異なります。
【建物ページ】プラチナレジデンスの詳細・最新空室はこちら▶▶選ばれる理由
仲介手数料無料・キャンペーン情報(毎月15名様限定)
〇仲介手数料割引キャンペーン
プラチナレジデンス 402の口コミ・レビュー
プラチナレジデンス 402。この美しい名称を持つ物件は、まさに心地良さと洗練されたスタイルを兼ね備えた、特別な住まいです。あなたがこの家に足を踏み入れた瞬間、まるで静かな映画のワンシーンに身を置いているかのように感じられるでしょう。周囲は東京都港区白金、都会の喧騒から少し距離を置いたこの場所には、古き良き閑静な雰囲気が漂っています。
プラチナレジデンス 402は、南向きの陽光をたっぷりと取り入れ…プラチナレジデンス 402。この美しい名称を持つ物件は、まさに心地良さと洗練されたスタイルを兼ね備えた、特別な住まいです。あなたがこの家に足を踏み入れた瞬間、まるで静かな映画のワンシーンに身を置いているかのように感じられるでしょう。周囲は東京都港区白金、都会の喧騒から少し距離を置いたこの場所には、古き良き閑静な雰囲気が漂っています。
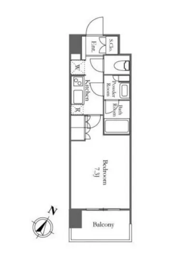
プラチナレジデンス 402は、南向きの陽光をたっぷりと取り入れ、その光が間取りの隅々まで行き渡ります。専有面積は25.4㎡、この空間は単なる居住地ではなく、あなたの人生の新たな舞台です。洋室7.3帖の広さは、一人の時間をしっかりと味わうための最適な空間。お気に入りの本を手に取り、窓際の柔らかな日差しの中で、静かに過ごす午後が目に浮かびます。
エレベーターで上がると、あなたの手の中には、心地よい木目調のドアが待っています。このドアを開けると、あたたかな色調で包まれた世界が広がり、あなたを優しく迎え入れてくれるのです。ここには、デザイナーズのテイストが随所にちりばめられ、実用性と美を両立させています。TVモニターホンを通じて、訪れる人々とも会話を楽しむことができ、安全なオートロックが守るこの空間は、あなたのプライベートを大切に守ってくれることでしょう。
また、宅配ボックスや敷地内ゴミ置場、駐車場など、便利な設備が整っているため、忙しい日々の中でもストレスを感じることはありません。管理人の目が行き届いた環境の中で、安心して生活を楽しむことができるのです。プラチナレジデンス 402での暮らしは、まるで自分だけのアトリエのように、創造的な時間が流れていきます。
その近くには、洗練されたレストランやカフェが立ち並び、あなたの舌を楽しませる美味しい場所がたくさん待っています。例えば、広尾駅からの帰りに立ち寄る小さなビストロで、フランスの香り漂う料理を一口頬張ると、贅沢なひとときを味わえます。夕暮れ時には、白金の街並みがほんのりとオレンジ色に染まり、ロマンチックなシーンを演出します。
プラチナレジデンス 402での日常は、まさに人生の贅沢なスパイスとなることでしょう。周囲の静けさと、あなた自身の感性が織り成す日々は、思い出の中でゆっくりと熟成され、特別な瞬間を生み出すことでしょう。ここに住むことは、ただの生活ではなく、あなたにとっての新しいストーリーの始まりです。さあ、プラチナレジデンス 402で、あなたの人生の主役を演じてみませんか。
プラチナレジデンス 402は、南向きの陽光をたっぷりと取り入れ…プラチナレジデンス 402。この美しい名称を持つ物件は、まさに心地良さと洗練されたスタイルを兼ね備えた、特別な住まいです。あなたがこの家に足を踏み入れた瞬間、まるで静かな映画のワンシーンに身を置いているかのように感じられるでしょう。周囲は東京都港区白金、都会の喧騒から少し距離を置いたこの場所には、古き良き閑静な雰囲気が漂っています。
プラチナレジデンス 402は、南向きの陽光をたっぷりと取り入れ、その光が間取りの隅々まで行き渡ります。専有面積は25.4㎡、この空間は単なる居住地ではなく、あなたの人生の新たな舞台です。洋室7.3帖の広さは、一人の時間をしっかりと味わうための最適な空間。お気に入りの本を手に取り、窓際の柔らかな日差しの中で、静かに過ごす午後が目に浮かびます。
エレベーターで上がると、あなたの手の中には、心地よい木目調のドアが待っています。このドアを開けると、あたたかな色調で包まれた世界が広がり、あなたを優しく迎え入れてくれるのです。ここには、デザイナーズのテイストが随所にちりばめられ、実用性と美を両立させています。TVモニターホンを通じて、訪れる人々とも会話を楽しむことができ、安全なオートロックが守るこの空間は、あなたのプライベートを大切に守ってくれることでしょう。
また、宅配ボックスや敷地内ゴミ置場、駐車場など、便利な設備が整っているため、忙しい日々の中でもストレスを感じることはありません。管理人の目が行き届いた環境の中で、安心して生活を楽しむことができるのです。プラチナレジデンス 402での暮らしは、まるで自分だけのアトリエのように、創造的な時間が流れていきます。
その近くには、洗練されたレストランやカフェが立ち並び、あなたの舌を楽しませる美味しい場所がたくさん待っています。例えば、広尾駅からの帰りに立ち寄る小さなビストロで、フランスの香り漂う料理を一口頬張ると、贅沢なひとときを味わえます。夕暮れ時には、白金の街並みがほんのりとオレンジ色に染まり、ロマンチックなシーンを演出します。
プラチナレジデンス 402での日常は、まさに人生の贅沢なスパイスとなることでしょう。周囲の静けさと、あなた自身の感性が織り成す日々は、思い出の中でゆっくりと熟成され、特別な瞬間を生み出すことでしょう。ここに住むことは、ただの生活ではなく、あなたにとっての新しいストーリーの始まりです。さあ、プラチナレジデンス 402で、あなたの人生の主役を演じてみませんか。
バイブルスコア
バイブルスコア: 36.8
平均的なスコアです。
※バイブルスコア詳細はこちら
バイブルスコアとは独自のAI機械学習技術を利用した物件評価システムで、物件のおすすめ度を示します。最高得点は100点で、スコアが高いほど、よりおすすめの物件と評価されています。
写真
契約条件
| 賃料 | 予想金額:99,000〜119,000円程度 | 管理費 | 予想金額:8,000〜12,000円程度 |
| 礼金 | 非公開(アーカイブ) | 敷金 | 非公開(アーカイブ) |
| フリーレント | なし | 平米数 | 25.4㎡ |
| 間取り | 1K | 大型収納 | |
| 契約期間 |
| 方角 | 南 |
| 更新料 | 契約形態 | 普通賃貸借契約 | |
| 取引態様 | 媒介 | 内見状況 | 入居中 |
| 入居時期 | 入居中 | SOHO・事務所 | |
| ペット | ペット可 | 間取り内訳 | 洋室7.3 |
| キャンペーン情報・備考 | 本情報は賃料改定交渉の資料作成、収益物件の利回り試算、周辺エリアや最寄り駅の坪単価分析、次回募集開始時期の予測などにご活用いただけます。 | ||
※「どの不動産に頼めばいいのか分からない」「信頼できる営業マンの話を聞きたい」「一番親切な会社と契約したい」とお悩みの方におすすめなのが「高級賃貸バイブル」です。
高級賃貸バイブルは業界10年以上の熟練スタッフ群がお客様ファーストで対応します。
下記ボタンから、まずは無料でご相談下さい。
※内覧をご希望の際には、どうぞ物件のエントランス前にてお待ち合わせくださいませ。ご内覧後は、同じ場所でお別れとさせていただきます。お客様のご都合に合わせたスムーズなご案内を心がけておりますので、ご質問等がございましたら何なりとお申し付けください。 物件概要
| 物件名 |
| 築年月 |
|
|---|---|---|---|
| 所在地 | |||
| 交通 | |||
| 総戸数 |
| 総階数 |
|
| 構造 |
| ||
地図
物件までの道のりは、「拡大地図を表示」をクリックしてナビ機能をご利用ください。
部屋設備














建物設備

TVモニターホン

エレベーター

オートロック

宅配ボックス

敷地内ゴミ置場

管理人

駐車場平置き

駐輪場
プラチナレジデンスの現在募集中のお部屋
- プラチナレジデンス 1201 - 間取り: 2LDK+SIC - 賃料: 28万円






























