
| 賃料 | 予想金額:227,000〜247,000円程度 | 管理費 | 予想金額:16,000〜20,000円程度 |
| 礼金/敷金 | 非公開(アーカイブ) | 平米数 | 50.8㎡ |
| 初期費用概算(参考) | 目安:898,000〜998,000 円 | みなし賃料(月額・参考) | 259,813〜279,813 円 |
| 備考 | 本ページは過去募集のアーカイブです。表示の金額は周辺相場・過去募集を踏まえた参考レンジであり、実際の契約金額・条件ではありません。 | ||
※上記みなし賃料(月額)は仲介手数料割引・無料&キャッシュバックを加味した高級賃貸バイブル限定の金額です。一般的なみなし賃料とは異なります。
【建物ページ】プラチナレジデンスの詳細・最新空室はこちら▶▶選ばれる理由
仲介手数料無料・キャンペーン情報(毎月15名様限定)
〇仲介手数料割引キャンペーン
プラチナレジデンス 1402の口コミ・レビュー
プラチナレジデンス 1402。その名を呼ぶだけで、心に高鳴る期待感が広がります。東京都港区白金の閑静な街並みの中に佇むこの物件は、まるで優雅な貴婦人のように、その存在感を誇示しています。1402号室は、南向きに設計されており、日差しの恵みを最大限に享受できる特別な空間です。この地での生活は、まさに明るい未来への扉を開く鍵となります。
ここに足を踏み入れた瞬間、感じるのは心地よい光と風の調和。洋室…プラチナレジデンス 1402。その名を呼ぶだけで、心に高鳴る期待感が広がります。東京都港区白金の閑静な街並みの中に佇むこの物件は、まるで優雅な貴婦人のように、その存在感を誇示しています。1402号室は、南向きに設計されており、日差しの恵みを最大限に享受できる特別な空間です。この地での生活は、まさに明るい未来への扉を開く鍵となります。
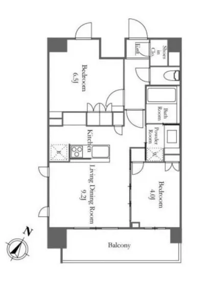
ここに足を踏み入れた瞬間、感じるのは心地よい光と風の調和。洋室6.5帖と洋室4.0帖、そしてLDK9.2帖の間取りは、まるで巧妙に織り込まれたタペストリーのように、柔らかな空間を生み出しています。静まり返った朝、窓を開けると、優しい陽射しが室内に舞い込んできて、まるで自然の絵画が描かれているかのよう。朝食に焼きたてのトーストの香ばしい香りが漂い、コーヒーの温かさが手に心地よく伝わります。
プラチナレジデンス 1402はただの住処ではありません。それは貴族のオーディエンスルームのように、心が踊る瞬間を提供してくれる場所です。友人たちを招き、心ゆくまで語らう夕食会では、LDKの大きな窓から見える景色が背景としてドラマの一幕を演出します。その時、外の景色はまるで美しい絵画のように移り変わり、みんなが笑顔で盛り上がる、中世の宮殿での晩餐会を思わせます。
この物件の魅力は、デザイナーズの洗練されたデザインや最新の設備にもあります。TVモニターホンは、まるで貴族の家に仕える従者のように、来訪者を管理し、エレベーターでの上昇はまるで空の城に昇るような特別な体験を提供します。オートロックのドアが、あなたのプライバシーをしっかりと守り、宅配ボックスは外部の喧騒から隔絶された静かな隠れ家を演出します。
周囲には、高級なレストランやカフェ、そして文化施設も点在し、洒落た生活の舞台を整えています。東京メトロ日比谷線 広尾駅から徒歩10分の距離という立地も、まさに利便性を極めた特別なポイント。一歩外に出れば、歴史的な街並みと現代的なアートが融合した世界が広がり、あなたの感性を刺激し続けます。
プラチナレジデンス 1402での生活は、まるで日常が映画のワンシーンとなり、心豊かな時間が流れているかのよう。五感を刺激するこの素晴らしい空間に身を委ねれば、あなたの日常もまた、特別な物語へと変貌を遂げることでしょう。さあ、この特別な場所で、あなた自身の新たな物語を始めませんか。
ここに足を踏み入れた瞬間、感じるのは心地よい光と風の調和。洋室…プラチナレジデンス 1402。その名を呼ぶだけで、心に高鳴る期待感が広がります。東京都港区白金の閑静な街並みの中に佇むこの物件は、まるで優雅な貴婦人のように、その存在感を誇示しています。1402号室は、南向きに設計されており、日差しの恵みを最大限に享受できる特別な空間です。この地での生活は、まさに明るい未来への扉を開く鍵となります。
ここに足を踏み入れた瞬間、感じるのは心地よい光と風の調和。洋室6.5帖と洋室4.0帖、そしてLDK9.2帖の間取りは、まるで巧妙に織り込まれたタペストリーのように、柔らかな空間を生み出しています。静まり返った朝、窓を開けると、優しい陽射しが室内に舞い込んできて、まるで自然の絵画が描かれているかのよう。朝食に焼きたてのトーストの香ばしい香りが漂い、コーヒーの温かさが手に心地よく伝わります。
プラチナレジデンス 1402はただの住処ではありません。それは貴族のオーディエンスルームのように、心が踊る瞬間を提供してくれる場所です。友人たちを招き、心ゆくまで語らう夕食会では、LDKの大きな窓から見える景色が背景としてドラマの一幕を演出します。その時、外の景色はまるで美しい絵画のように移り変わり、みんなが笑顔で盛り上がる、中世の宮殿での晩餐会を思わせます。
この物件の魅力は、デザイナーズの洗練されたデザインや最新の設備にもあります。TVモニターホンは、まるで貴族の家に仕える従者のように、来訪者を管理し、エレベーターでの上昇はまるで空の城に昇るような特別な体験を提供します。オートロックのドアが、あなたのプライバシーをしっかりと守り、宅配ボックスは外部の喧騒から隔絶された静かな隠れ家を演出します。
周囲には、高級なレストランやカフェ、そして文化施設も点在し、洒落た生活の舞台を整えています。東京メトロ日比谷線 広尾駅から徒歩10分の距離という立地も、まさに利便性を極めた特別なポイント。一歩外に出れば、歴史的な街並みと現代的なアートが融合した世界が広がり、あなたの感性を刺激し続けます。
プラチナレジデンス 1402での生活は、まるで日常が映画のワンシーンとなり、心豊かな時間が流れているかのよう。五感を刺激するこの素晴らしい空間に身を委ねれば、あなたの日常もまた、特別な物語へと変貌を遂げることでしょう。さあ、この特別な場所で、あなた自身の新たな物語を始めませんか。
バイブルスコア
バイブルスコア: 21.4
平均的なスコアです。
※バイブルスコア詳細はこちら
バイブルスコアとは独自のAI機械学習技術を利用した物件評価システムで、物件のおすすめ度を示します。最高得点は100点で、スコアが高いほど、よりおすすめの物件と評価されています。
写真
契約条件
| 賃料 | 予想金額:227,000〜247,000円程度 | 管理費 | 予想金額:16,000〜20,000円程度 |
| 礼金 | 非公開(アーカイブ) | 敷金 | 非公開(アーカイブ) |
| フリーレント | なし | 平米数 | 50.8㎡ |
| 間取り | 2LDK | 大型収納 | |
| 契約期間 |
| 方角 | 南 |
| 更新料 | 契約形態 | 普通賃貸借契約 | |
| 取引態様 | 媒介 | 内見状況 | 入居中 |
| 入居時期 | 入居中 | SOHO・事務所 | |
| ペット | ペット可 | 間取り内訳 | 洋室6.5 洋室4.0 LDK9.2 |
| キャンペーン情報・備考 | 本情報は賃料改定交渉の資料作成、収益物件の利回り試算、周辺エリアや最寄り駅の坪単価分析、次回募集開始時期の予測などにご活用いただけます。 | ||
※「どの不動産に頼めばいいのか分からない」「信頼できる営業マンの話を聞きたい」「一番親切な会社と契約したい」とお悩みの方におすすめなのが「高級賃貸バイブル」です。
高級賃貸バイブルは業界10年以上の熟練スタッフ群がお客様ファーストで対応します。
下記ボタンから、まずは無料でご相談下さい。
※内覧をご希望の際には、どうぞ物件のエントランス前にてお待ち合わせくださいませ。ご内覧後は、同じ場所でお別れとさせていただきます。お客様のご都合に合わせたスムーズなご案内を心がけておりますので、ご質問等がございましたら何なりとお申し付けください。 物件概要
| 物件名 |
| 築年月 |
|
|---|---|---|---|
| 所在地 | |||
| 交通 | |||
| 総戸数 |
| 総階数 |
|
| 構造 |
| ||
地図
物件までの道のりは、「拡大地図を表示」をクリックしてナビ機能をご利用ください。
部屋設備

















建物設備

TVモニターホン

エレベーター

オートロック

宅配ボックス

敷地内ゴミ置場

管理人

駐車場平置き

駐輪場
プラチナレジデンスの現在募集中のお部屋
- プラチナレジデンス 1201 - 間取り: 2LDK+SIC - 賃料: 28万円






























