
| 賃料 | 予想金額:256,000〜276,000円程度 | 管理費 | 予想金額:28,000〜32,000円程度 |
| 礼金/敷金 | 非公開(アーカイブ) | 平米数 | 96.84㎡ |
| 初期費用概算(参考) | 目安:1,283,500〜1,383,500 円 | みなし賃料(月額・参考) | 308,240〜328,240 円 |
| 備考 | 本ページは過去募集のアーカイブです。表示の金額は周辺相場・過去募集を踏まえた参考レンジであり、実際の契約金額・条件ではありません。 | ||
※上記みなし賃料(月額)は仲介手数料割引・無料&キャッシュバックを加味した高級賃貸バイブル限定の金額です。一般的なみなし賃料とは異なります。
【建物ページ】秀和麻布永坂レジデンスの詳細・最新空室はこちら▶▶選ばれる理由
仲介手数料無料・キャンペーン情報(毎月15名様限定)
〇仲介手数料割引キャンペーン
秀和麻布永坂レジデンス 1001の口コミ・レビュー
秀和麻布永坂レジデンス 1001。あなたの新しい暮らしの舞台、その扉を開くと、まるで本の一ページをめくるばかりに心が躍ります。この美しいマンションは、東京都港区六本木5-13-9という、芸術と文化が交錯する特別な場所にそびえ立っています。南西に向かう窓からは、温かな日差しが心地よく差し込み、毎日の暮らしを黄金色に染めてくれることでしょう。
秀和麻布永坂レジデンス 1001は、96.84㎡という広…秀和麻布永坂レジデンス 1001。あなたの新しい暮らしの舞台、その扉を開くと、まるで本の一ページをめくるばかりに心が躍ります。この美しいマンションは、東京都港区六本木5-13-9という、芸術と文化が交錯する特別な場所にそびえ立っています。南西に向かう窓からは、温かな日差しが心地よく差し込み、毎日の暮らしを黄金色に染めてくれることでしょう。
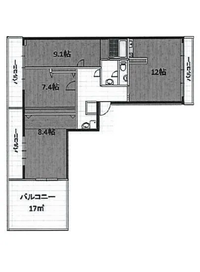
秀和麻布永坂レジデンス 1001は、96.84㎡という広大なスペースを誇る3LDKの間取りが、あなたの生活の舞台を華やかに演出してくれます。LDK12.0帖の空間では、家族や友人との会話が心に響く喜びのひとときを紡ぎ出すでしょう。そこで交わされる笑い声は、まるで音楽のように流れ、あなたの心を満たしてくれます。洋室9.1帖、洋室7.4帖、洋室8.4帖それぞれが、あなたの個性を映し出すキャンバスとなり、思い思いの空間を演出できます。静かな夜には、その空間が優しく包み込む夢の世界へと誘ってくれるはずです。
周囲の歴史や文化にも触れることができるこの場所は、まさに都会のオアシスです。東京メトロ南北線麻布十番駅から徒歩3分という立地は、忙しい日常の中で瞬時にアクセスできる便利さを提供します。街を歩けば、目に映るのはモダンでエレガントなショップやカフェ、そしてアートギャラリーの数々。時折漂うコーヒーの香りが、あなたの五感をくすぐり、心を弾ませるでしょう。
秀和麻布永坂レジデンス 1001は、単なる住まいではなく、あなたの人生を豊かにする舞台です。エレベーターで上がるたびに、どきどきとした期待感に胸が躍り、敷地内のすっきりとしたゴミ置場や駐輪場、駐車場平置きの便利さは、あなたの心を穏やかに保ってくれるでしょう。
この住まいでの毎日は、まるで映画のワンシーンのように、感情豊かで美しい瞬間が積み重なっていきます。朝の陽ざしを浴びながらコーヒーを淹れ、その香ばしい香りに包まれ、ゆったりとした気持ちで新しい一日をスタート。夜には、家族と共に一緒に食卓を囲んだり、友人と楽しい会話を交わすことができる、この場所は、幸せの象徴です。
秀和麻布永坂レジデンス 1001で、あなたの物語が始まります。この特別な場所で、人生のワンシーンを心ゆくまで楽しんでください。あなたの新しいホームが、待っています。
秀和麻布永坂レジデンス 1001は、96.84㎡という広…秀和麻布永坂レジデンス 1001。あなたの新しい暮らしの舞台、その扉を開くと、まるで本の一ページをめくるばかりに心が躍ります。この美しいマンションは、東京都港区六本木5-13-9という、芸術と文化が交錯する特別な場所にそびえ立っています。南西に向かう窓からは、温かな日差しが心地よく差し込み、毎日の暮らしを黄金色に染めてくれることでしょう。
秀和麻布永坂レジデンス 1001は、96.84㎡という広大なスペースを誇る3LDKの間取りが、あなたの生活の舞台を華やかに演出してくれます。LDK12.0帖の空間では、家族や友人との会話が心に響く喜びのひとときを紡ぎ出すでしょう。そこで交わされる笑い声は、まるで音楽のように流れ、あなたの心を満たしてくれます。洋室9.1帖、洋室7.4帖、洋室8.4帖それぞれが、あなたの個性を映し出すキャンバスとなり、思い思いの空間を演出できます。静かな夜には、その空間が優しく包み込む夢の世界へと誘ってくれるはずです。
周囲の歴史や文化にも触れることができるこの場所は、まさに都会のオアシスです。東京メトロ南北線麻布十番駅から徒歩3分という立地は、忙しい日常の中で瞬時にアクセスできる便利さを提供します。街を歩けば、目に映るのはモダンでエレガントなショップやカフェ、そしてアートギャラリーの数々。時折漂うコーヒーの香りが、あなたの五感をくすぐり、心を弾ませるでしょう。
秀和麻布永坂レジデンス 1001は、単なる住まいではなく、あなたの人生を豊かにする舞台です。エレベーターで上がるたびに、どきどきとした期待感に胸が躍り、敷地内のすっきりとしたゴミ置場や駐輪場、駐車場平置きの便利さは、あなたの心を穏やかに保ってくれるでしょう。
この住まいでの毎日は、まるで映画のワンシーンのように、感情豊かで美しい瞬間が積み重なっていきます。朝の陽ざしを浴びながらコーヒーを淹れ、その香ばしい香りに包まれ、ゆったりとした気持ちで新しい一日をスタート。夜には、家族と共に一緒に食卓を囲んだり、友人と楽しい会話を交わすことができる、この場所は、幸せの象徴です。
秀和麻布永坂レジデンス 1001で、あなたの物語が始まります。この特別な場所で、人生のワンシーンを心ゆくまで楽しんでください。あなたの新しいホームが、待っています。
バイブルスコア
バイブルスコア: 65.5
かなり条件の良い物件です、即仮押さえをおすすめする物件です!
このお部屋は、現在ご入居中のため空室情報はございません。ただし、将来的に募集が開始される際、バイブルスコアにおいて非常に高い評価が期待されます。特にご興味をお持ちの方は、今のうちにブックマークやお気に入りに登録していただくと、募集開始のお知らせをすぐに受け取ることができます。是非ともご検討くださいませ。
※バイブルスコア詳細はこちら
バイブルスコアとは独自のAI機械学習技術を利用した物件評価システムで、物件のおすすめ度を示します。最高得点は100点で、スコアが高いほど、よりおすすめの物件と評価されています。
写真
現在写真が登録されていません契約条件
| 賃料 | 予想金額:256,000〜276,000円程度 | 管理費 | 予想金額:28,000〜32,000円程度 |
| 礼金 | 非公開(アーカイブ) | 敷金 | 非公開(アーカイブ) |
| フリーレント | なし | 平米数 | 96.84㎡ |
| 間取り | 3LDK | 大型収納 | |
| 契約期間 |
| 方角 | 南西 |
| 更新料 | 契約形態 | 普通賃貸借契約 | |
| 取引態様 | 媒介 | 内見状況 | 入居中 |
| 入居時期 | 入居中 | SOHO・事務所 | 事務所(SOHO)可 |
| ペット | 間取り内訳 | 洋室9.1 洋室7.4 洋室8.4 LDK12.0 | |
| キャンペーン情報・備考 | 本情報は賃料改定交渉の資料作成、収益物件の利回り試算、周辺エリアや最寄り駅の坪単価分析、次回募集開始時期の予測などにご活用いただけます。 | ||
※「どの不動産に頼めばいいのか分からない」「信頼できる営業マンの話を聞きたい」「一番親切な会社と契約したい」とお悩みの方におすすめなのが「高級賃貸バイブル」です。
高級賃貸バイブルは業界10年以上の熟練スタッフ群がお客様ファーストで対応します。
下記ボタンから、まずは無料でご相談下さい。
※内覧をご希望の際には、どうぞ物件のエントランス前にてお待ち合わせくださいませ。ご内覧後は、同じ場所でお別れとさせていただきます。お客様のご都合に合わせたスムーズなご案内を心がけておりますので、ご質問等がございましたら何なりとお申し付けください。 物件概要
| 物件名 |
| 築年月 |
|
|---|---|---|---|
| 所在地 | |||
| 交通 | |||
| 総戸数 |
| 総階数 |
|
| 構造 |
| ||
地図
物件までの道のりは、「拡大地図を表示」をクリックしてナビ機能をご利用ください。
部屋設備
















建物設備

エレベーター

敷地内ゴミ置場

駐車場平置き

駐輪場
秀和麻布永坂レジデンスの現在募集中のお部屋
- No rooms found for this property.
