
| 賃料 | 予想金額:220,000〜240,000円程度 | 管理費 | 予想金額:0〜2,000円程度 |
| 礼金/敷金 | 非公開(アーカイブ) | 平米数 | 66.6㎡ |
| 初期費用概算(参考) | 目安:1,076,500〜1,176,500 円 | みなし賃料(月額・参考) | 238,677〜258,677 円 |
| 備考 | 本ページは過去募集のアーカイブです。表示の金額は周辺相場・過去募集を踏まえた参考レンジであり、実際の契約金額・条件ではありません。 | ||
※上記みなし賃料(月額)は仲介手数料割引・無料&キャッシュバックを加味した高級賃貸バイブル限定の金額です。一般的なみなし賃料とは異なります。
【建物ページ】富士レジデンスの詳細・最新空室はこちら▶▶選ばれる理由
仲介手数料無料・キャンペーン情報(毎月15名様限定)
〇仲介手数料割引キャンペーン
富士レジデンス 201の口コミ・レビュー
「富士レジデンス 201」は、まるで一部の特権階級に与えられる秘密の扉のような存在です。この魅力的な1LDKの空間は、66.6㎡という広さの中に、優雅さと独自の風格を凝縮しています。南西向きの窓からは、温かな日差しが柔らかく差し込み、心地よい光が部屋全体を包み込みます。おそらく、あなたの日常がこの場所で始まる瞬間を心待ちにすることでしょう。
想像してみてください。あなたが富士レジデンス 201の…「富士レジデンス 201」は、まるで一部の特権階級に与えられる秘密の扉のような存在です。この魅力的な1LDKの空間は、66.6㎡という広さの中に、優雅さと独自の風格を凝縮しています。南西向きの窓からは、温かな日差しが柔らかく差し込み、心地よい光が部屋全体を包み込みます。おそらく、あなたの日常がこの場所で始まる瞬間を心待ちにすることでしょう。
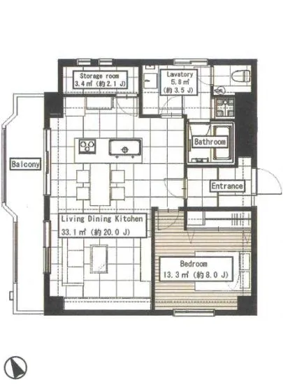
想像してみてください。あなたが富士レジデンス 201のドアを開けた瞬間、木の香りとヴィンテージのエッセンスがふわりと鼻をくすぐります。足元のタイルが冷たく、滑らかな肌触りが心地よい。目の前に広がるのは、20.0帖のLDK。開放感あふれるこの空間では、センスよくデザインされたインテリアが迎え入れ、まるでアートギャラリーのように日々の生活を彩ってくれることでしょう。
このLDKでは、家族との会話が生まれ、友人たちとの笑い声が響き渡ります。料理の香ばしい香りが立ち込め、自慢の料理を囲むひとときは、まるで映画のワンシーンのようです。窓からは麻布十番の喧騒が遠くに感じられ、しかし、味わうのは都会の贅沢な静寂。すぐ隣の街が、まるであなたの私たちの庭のように感じられるのです。
さらに、8.0帖の洋室は、まるで心を落ち着けるための隠れ家。温もりのある色調と上品に組み合わされた素材たちが、あなたの就寝の時を優雅なものに変えてくれます。朝、目覚めて窓を開けると、外の新鮮な空気が部屋の中に流れ込み、心の底からリフレッシュできる感覚が漂います。
富士レジデンス 201は、数えきれないほどの居心地よい設備を誇ります。オートロックやエレベーター、駐車場や駐輪場といった利便性の高い施設が、日常生活をスムーズに進めてくれます。宅配ボックスも完備されているため、仕事や趣味に忙しいあなたにとっては、まさに理想的なライフスタイルを実現できる場所となるでしょう。
この物件の魅力は、単なる生活する場所ではなく、あなたの個性を引き出し、人生の舞台にしてくれる存在であることです。周囲の歴史や文化が息づく麻布十番では、アートや洗練されたカフェが所狭しと並び、まさに創造的なインスピレーションを与えてくれます。
富士レジデンス 201が提供するのは、ただの住所ではありません。あなたの人生を豊かにし、日常の中に映画のような瞬間を散りばめてくれる居場所なのです。さあ、この特別な空間で、新たなストーリーを紡いでみませんか?
想像してみてください。あなたが富士レジデンス 201の…「富士レジデンス 201」は、まるで一部の特権階級に与えられる秘密の扉のような存在です。この魅力的な1LDKの空間は、66.6㎡という広さの中に、優雅さと独自の風格を凝縮しています。南西向きの窓からは、温かな日差しが柔らかく差し込み、心地よい光が部屋全体を包み込みます。おそらく、あなたの日常がこの場所で始まる瞬間を心待ちにすることでしょう。
想像してみてください。あなたが富士レジデンス 201のドアを開けた瞬間、木の香りとヴィンテージのエッセンスがふわりと鼻をくすぐります。足元のタイルが冷たく、滑らかな肌触りが心地よい。目の前に広がるのは、20.0帖のLDK。開放感あふれるこの空間では、センスよくデザインされたインテリアが迎え入れ、まるでアートギャラリーのように日々の生活を彩ってくれることでしょう。
このLDKでは、家族との会話が生まれ、友人たちとの笑い声が響き渡ります。料理の香ばしい香りが立ち込め、自慢の料理を囲むひとときは、まるで映画のワンシーンのようです。窓からは麻布十番の喧騒が遠くに感じられ、しかし、味わうのは都会の贅沢な静寂。すぐ隣の街が、まるであなたの私たちの庭のように感じられるのです。
さらに、8.0帖の洋室は、まるで心を落ち着けるための隠れ家。温もりのある色調と上品に組み合わされた素材たちが、あなたの就寝の時を優雅なものに変えてくれます。朝、目覚めて窓を開けると、外の新鮮な空気が部屋の中に流れ込み、心の底からリフレッシュできる感覚が漂います。
富士レジデンス 201は、数えきれないほどの居心地よい設備を誇ります。オートロックやエレベーター、駐車場や駐輪場といった利便性の高い施設が、日常生活をスムーズに進めてくれます。宅配ボックスも完備されているため、仕事や趣味に忙しいあなたにとっては、まさに理想的なライフスタイルを実現できる場所となるでしょう。
この物件の魅力は、単なる生活する場所ではなく、あなたの個性を引き出し、人生の舞台にしてくれる存在であることです。周囲の歴史や文化が息づく麻布十番では、アートや洗練されたカフェが所狭しと並び、まさに創造的なインスピレーションを与えてくれます。
富士レジデンス 201が提供するのは、ただの住所ではありません。あなたの人生を豊かにし、日常の中に映画のような瞬間を散りばめてくれる居場所なのです。さあ、この特別な空間で、新たなストーリーを紡いでみませんか?
バイブルスコア
バイブルスコア: 45.5
条件のいい物件です、引っ越しが2か月以内の場合は仮申し込みを検討すべき物件です。
※バイブルスコア詳細はこちら
バイブルスコアとは独自のAI機械学習技術を利用した物件評価システムで、物件のおすすめ度を示します。最高得点は100点で、スコアが高いほど、よりおすすめの物件と評価されています。
写真
現在写真が登録されていません契約条件
| 賃料 | 予想金額:220,000〜240,000円程度 | 管理費 | 予想金額:0〜2,000円程度 |
| 礼金 | 非公開(アーカイブ) | 敷金 | 非公開(アーカイブ) |
| フリーレント | なし | 平米数 | 66.6㎡ |
| 間取り | 1LDK | 大型収納 | |
| 契約期間 |
| 方角 | 南西 |
| 更新料 | 契約形態 | 普通賃貸借契約 | |
| 取引態様 | 媒介 | 内見状況 | 入居中 |
| 入居時期 | 入居中 | SOHO・事務所 | 事務所(SOHO)可 |
| ペット | 間取り内訳 | 洋室8.0畳 LDK20.0畳 | |
| キャンペーン情報・備考 | 本情報は賃料改定交渉の資料作成、収益物件の利回り試算、周辺エリアや最寄り駅の坪単価分析、次回募集開始時期の予測などにご活用いただけます。 | ||
※「どの不動産に頼めばいいのか分からない」「信頼できる営業マンの話を聞きたい」「一番親切な会社と契約したい」とお悩みの方におすすめなのが「高級賃貸バイブル」です。
高級賃貸バイブルは業界10年以上の熟練スタッフ群がお客様ファーストで対応します。
下記ボタンから、まずは無料でご相談下さい。
※内覧をご希望の際には、どうぞ物件のエントランス前にてお待ち合わせくださいませ。ご内覧後は、同じ場所でお別れとさせていただきます。お客様のご都合に合わせたスムーズなご案内を心がけておりますので、ご質問等がございましたら何なりとお申し付けください。 物件概要
| 物件名 |
| 築年月 |
|
|---|---|---|---|
| 所在地 | |||
| 交通 | |||
| 総戸数 |
| 総階数 |
|
| 構造 |
| ||
地図
物件までの道のりは、「拡大地図を表示」をクリックしてナビ機能をご利用ください。
部屋設備

















建物設備

TVモニターホン

エレベーター

オートロック

宅配ボックス

敷地内ゴミ置場

駐車場平置き

駐輪場
富士レジデンスの現在募集中のお部屋
- No rooms found for this property.
