
| 賃料 | 予想金額:79,000〜99,000円程度 | 管理費 | 予想金額:7,000〜11,000円程度 |
| 礼金/敷金 | 非公開(アーカイブ) | 平米数 | 20.74㎡ |
| 初期費用概算(参考) | 目安:366,500〜466,500 円 | みなし賃料(月額・参考) | 94,823〜114,823 円 |
| 備考 | 本ページは過去募集のアーカイブです。表示の金額は周辺相場・過去募集を踏まえた参考レンジであり、実際の契約金額・条件ではありません。 | ||
※上記みなし賃料(月額)は仲介手数料割引・無料&キャッシュバックを加味した高級賃貸バイブル限定の金額です。一般的なみなし賃料とは異なります。
【建物ページ】ナビウス西新宿の詳細・最新空室はこちら▶▶選ばれる理由
仲介手数料無料・キャンペーン情報(毎月15名様限定)
〇仲介手数料割引キャンペーン
ナビウス西新宿 203の口コミ・レビュー
ナビウス西新宿 203。ここであなたは、ただの住まいを超えた芸術的な生活を手に入れることができます。新宿という街の喧騒からほんの少し離れた北西の方向に位置するこの物件は、あなたの五感を豊かに刺激する特別な空間です。
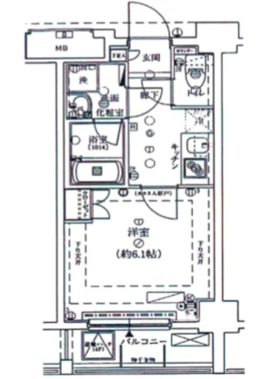
このお部屋は、専有面積20.74㎡というコンパクトながらも、巧妙にレイアウトされた1Kの間取りで、洋室は6.1帖の広さを誇ります。まるであなたの思い描く理想的な住まいが具現化したかの…ナビウス西新宿 203。ここであなたは、ただの住まいを超えた芸術的な生活を手に入れることができます。新宿という街の喧騒からほんの少し離れた北西の方向に位置するこの物件は、あなたの五感を豊かに刺激する特別な空間です。
このお部屋は、専有面積20.74㎡というコンパクトながらも、巧妙にレイアウトされた1Kの間取りで、洋室は6.1帖の広さを誇ります。まるであなたの思い描く理想的な住まいが具現化したかのように、この空間はそのものが物語を語りかけてきます。窓からはさわやかな風が流れ込み、朝日が差し込む瞬間には、心の奥深くから何かが目覚める感覚を味わえることでしょう。
ナビウス西新宿 203では、暮らしの中で五感全てを喜ばせることができるのです。たとえば、朝の珈琲の香りが部屋に満ちると、心地よい木漏れ日の中で一日の計画を考えることができるでしょう。夜には、ふわりと漂うディナーの香ばしい匂いに包まれ、キャンドルの柔らかな光が特別な時間を演出します。この場所での日々は、まるでシネマのワンシーンのように、あなたを夢中にさせることでしょう。
この住まいは、ただの住居に留まらず、あなたの生活の中に新たな価値をもたらしてくれる存在です。24時間管理体制が整っていることで、安心感を求めるあなたに満足を与え、TVモニターホンやオートロックシステムによって、安全な環境が守られています。エレベーターでの移動は、まるで貴族のような気持ちにさせてくれますし、デザイナーズの洗練された内部は、毎日目を楽しませてくれることでしょう。
周囲には、西新宿の文化と歴史が色濃く残っています。かつては、ビジネスマンたちが集う繁華街として賑わい、今もなお多くのアートとともに息づいています。お部屋からは、周辺の喧騒を感じつつも、オアシスのように落ち着いた空間を保っているのです。
また、バイク置場や駐輪場が完備されているため、自由に動きたいあなたのライフスタイルにも寄り添っています。外出先で感じる風のひんやりさと、帰宅後に味わうほっとする温かさ、この物件があなたの生活の全てに彩りを与えます。そして宅配ボックスの存在は、現代の暮らしをさらに便利にしてくれるのです。
ナビウス西新宿 203は、あなたを迎え入れるために細部まで配慮された贅沢な空間です。ここでの毎日は、ただの生活ではなく、芸術的な体験そのもの。新しい物語の始まりを、ぜひこの場所で感じていただければと思います。
このお部屋は、専有面積20.74㎡というコンパクトながらも、巧妙にレイアウトされた1Kの間取りで、洋室は6.1帖の広さを誇ります。まるであなたの思い描く理想的な住まいが具現化したかの…ナビウス西新宿 203。ここであなたは、ただの住まいを超えた芸術的な生活を手に入れることができます。新宿という街の喧騒からほんの少し離れた北西の方向に位置するこの物件は、あなたの五感を豊かに刺激する特別な空間です。
このお部屋は、専有面積20.74㎡というコンパクトながらも、巧妙にレイアウトされた1Kの間取りで、洋室は6.1帖の広さを誇ります。まるであなたの思い描く理想的な住まいが具現化したかのように、この空間はそのものが物語を語りかけてきます。窓からはさわやかな風が流れ込み、朝日が差し込む瞬間には、心の奥深くから何かが目覚める感覚を味わえることでしょう。
ナビウス西新宿 203では、暮らしの中で五感全てを喜ばせることができるのです。たとえば、朝の珈琲の香りが部屋に満ちると、心地よい木漏れ日の中で一日の計画を考えることができるでしょう。夜には、ふわりと漂うディナーの香ばしい匂いに包まれ、キャンドルの柔らかな光が特別な時間を演出します。この場所での日々は、まるでシネマのワンシーンのように、あなたを夢中にさせることでしょう。
この住まいは、ただの住居に留まらず、あなたの生活の中に新たな価値をもたらしてくれる存在です。24時間管理体制が整っていることで、安心感を求めるあなたに満足を与え、TVモニターホンやオートロックシステムによって、安全な環境が守られています。エレベーターでの移動は、まるで貴族のような気持ちにさせてくれますし、デザイナーズの洗練された内部は、毎日目を楽しませてくれることでしょう。
周囲には、西新宿の文化と歴史が色濃く残っています。かつては、ビジネスマンたちが集う繁華街として賑わい、今もなお多くのアートとともに息づいています。お部屋からは、周辺の喧騒を感じつつも、オアシスのように落ち着いた空間を保っているのです。
また、バイク置場や駐輪場が完備されているため、自由に動きたいあなたのライフスタイルにも寄り添っています。外出先で感じる風のひんやりさと、帰宅後に味わうほっとする温かさ、この物件があなたの生活の全てに彩りを与えます。そして宅配ボックスの存在は、現代の暮らしをさらに便利にしてくれるのです。
ナビウス西新宿 203は、あなたを迎え入れるために細部まで配慮された贅沢な空間です。ここでの毎日は、ただの生活ではなく、芸術的な体験そのもの。新しい物語の始まりを、ぜひこの場所で感じていただければと思います。
バイブルスコア
バイブルスコア: 19.5
高級な物件でない場合は割高な物件です。。
※バイブルスコア詳細はこちら
バイブルスコアとは独自のAI機械学習技術を利用した物件評価システムで、物件のおすすめ度を示します。最高得点は100点で、スコアが高いほど、よりおすすめの物件と評価されています。
写真
契約条件
| 賃料 | 予想金額:79,000〜99,000円程度 | 管理費 | 予想金額:7,000〜11,000円程度 |
| 礼金 | 非公開(アーカイブ) | 敷金 | 非公開(アーカイブ) |
| フリーレント | なし | 平米数 | 20.74㎡ |
| 間取り | 1K | 大型収納 | |
| 契約期間 |
| 方角 | 北西 |
| 更新料 | 契約形態 | 普通賃貸借契約 | |
| 取引態様 | 媒介 | 内見状況 | 入居中 |
| 入居時期 | 入居中 | SOHO・事務所 | |
| ペット | ペット可 | 間取り内訳 | 洋:6.1 |
| キャンペーン情報・備考 | 本情報は賃料改定交渉の資料作成、収益物件の利回り試算、周辺エリアや最寄り駅の坪単価分析、次回募集開始時期の予測などにご活用いただけます。 | ||
※「どの不動産に頼めばいいのか分からない」「信頼できる営業マンの話を聞きたい」「一番親切な会社と契約したい」とお悩みの方におすすめなのが「高級賃貸バイブル」です。
高級賃貸バイブルは業界10年以上の熟練スタッフ群がお客様ファーストで対応します。
下記ボタンから、まずは無料でご相談下さい。
※内覧をご希望の際には、どうぞ物件のエントランス前にてお待ち合わせくださいませ。ご内覧後は、同じ場所でお別れとさせていただきます。お客様のご都合に合わせたスムーズなご案内を心がけておりますので、ご質問等がございましたら何なりとお申し付けください。 物件概要
| 物件名 |
| 築年月 |
|
|---|---|---|---|
| 所在地 | |||
| 交通 | |||
| 総戸数 |
| 総階数 |
|
| 構造 |
| ||
地図
物件までの道のりは、「拡大地図を表示」をクリックしてナビ機能をご利用ください。
部屋設備














建物設備

24時間管理

TVモニターホン

エレベーター

オートロック

バイク置場

宅配ボックス

敷地内ゴミ置場

管理人

駐輪場
ナビウス西新宿の現在募集中のお部屋
- No rooms found for this property.























