
| 賃料 | 予想金額:890,000〜910,000円程度 | 管理費 | 予想金額:0〜2,000円程度 |
| 礼金/敷金 | 非公開(アーカイブ) | 平米数 | 193.15㎡ |
| 初期費用概算(参考) | 目安:3,191,500〜3,291,500 円 | みなし賃料(月額・参考) | 938,781〜958,781 円 |
| 備考 | 本ページは過去募集のアーカイブです。表示の金額は周辺相場・過去募集を踏まえた参考レンジであり、実際の契約金額・条件ではありません。 | ||
※上記みなし賃料(月額)は仲介手数料割引・無料&キャッシュバックを加味した高級賃貸バイブル限定の金額です。一般的なみなし賃料とは異なります。
【建物ページ】ウィンザーハウス広尾の詳細・最新空室はこちら▶▶選ばれる理由
仲介手数料無料・キャンペーン情報(毎月15名様限定)
〇仲介手数料割引キャンペーン
ウィンザーハウス広尾 301の口コミ・レビュー
ウィンザーハウス広尾 301。この名を耳にした瞬間、都会の喧騒から離れた静謐な空間が、あなたの心に浮かび上がることでしょう。東京都渋谷区広尾の閑静な一角に佇むこの邸宅は、まるで贅沢な宝石のように、洗練された美しさを放っています。301号室という番号は、ここでの生活が、まるで独特な映画のワンシーンであるかのような特別な意味を持つのです。
まず、あなたがウィンザーハウス広尾 301の扉を開けた瞬間、…ウィンザーハウス広尾 301。この名を耳にした瞬間、都会の喧騒から離れた静謐な空間が、あなたの心に浮かび上がることでしょう。東京都渋谷区広尾の閑静な一角に佇むこの邸宅は、まるで贅沢な宝石のように、洗練された美しさを放っています。301号室という番号は、ここでの生活が、まるで独特な映画のワンシーンであるかのような特別な意味を持つのです。
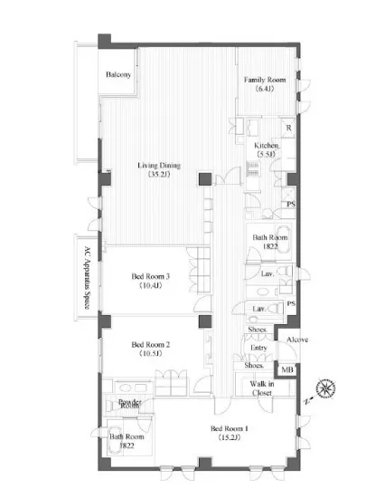
まず、あなたがウィンザーハウス広尾 301の扉を開けた瞬間、心地よい風が部屋に入り込み、まるで自然と調和する温もりを感じさせます。193.15㎡の広さは、あなたの想像力を刺激し、自由な発想で生活を楽しめる空間が広がっています。LD35.2帖のリビングは、家族や友人とのひとときを祝福するための聖域。大きな窓から差し込む柔らかな光が、壁を優しく撫で、木々の葉が揺れる音が耳に心地よく響きます。まるで自然があなたの生活の一部となり、安心感と温かな愛情をもたらしてくれるのです。
キッチンは5.5帖の優雅な空間で、料理の香りが漂い、食材たちが集い合う場所。ここであなたは、食卓を彩る美味しい料理を創るアーティストです。仲間たちと共に笑い声を響かせながら、旬の食材を手に取るその瞬間、心の中に溢れる充実感が広がります。
客間となる洋室は、それぞれが独自の物語を持ちます。15.2帖の洋室は、あなたの夢の部屋。ふかふかのベッドに身を委ね、本を読みながら心地よい眠りに落ちていくのです。10.5帖、10.4帖、6.4帖の洋室は、家族や友人を迎え入れるための素晴らしいスペース。彼らとの思い出が詰まった部屋は、生活に彩りを与える特別な場所となるでしょう。
ウィンザーハウス広尾 301には、ただの設備以上のものがあります。オートロックやエレベーター、宅配ボックスは、生活の便利さを提供し、あなたの日常をスムーズにサポートしてくれます。管理人が常駐することで、安心感が増し、この空間が本当に大切であることを実感できるでしょう。
周囲には恵比寿駅へのアクセスが徒歩でわずか9分。洗練された街並みと文化が息づくこの地域は、まるでアートのギャラリーのように魅了します。歴史ある街に根付いたカフェやレストラン、ギャラリーは、あなたの五感を刺激し、心を豊かにしてくれることでしょう。
ウィンザーハウス広尾 301は、単なる住まいではなく、あなたの物語が織りなされる舞台です。この場所での生活は、贅沢な贈り物となり、日々の瞬間が輝かしい記憶として、あなたの心に刻まれることでしょう。どんな景色が広がり、どんな物語が織り成されるのか、あなた自身の手で描いていくのです。さあ、あなたの新しい生活をウィンザーハウス広尾 301で始めてみませんか。
まず、あなたがウィンザーハウス広尾 301の扉を開けた瞬間、…ウィンザーハウス広尾 301。この名を耳にした瞬間、都会の喧騒から離れた静謐な空間が、あなたの心に浮かび上がることでしょう。東京都渋谷区広尾の閑静な一角に佇むこの邸宅は、まるで贅沢な宝石のように、洗練された美しさを放っています。301号室という番号は、ここでの生活が、まるで独特な映画のワンシーンであるかのような特別な意味を持つのです。
まず、あなたがウィンザーハウス広尾 301の扉を開けた瞬間、心地よい風が部屋に入り込み、まるで自然と調和する温もりを感じさせます。193.15㎡の広さは、あなたの想像力を刺激し、自由な発想で生活を楽しめる空間が広がっています。LD35.2帖のリビングは、家族や友人とのひとときを祝福するための聖域。大きな窓から差し込む柔らかな光が、壁を優しく撫で、木々の葉が揺れる音が耳に心地よく響きます。まるで自然があなたの生活の一部となり、安心感と温かな愛情をもたらしてくれるのです。
キッチンは5.5帖の優雅な空間で、料理の香りが漂い、食材たちが集い合う場所。ここであなたは、食卓を彩る美味しい料理を創るアーティストです。仲間たちと共に笑い声を響かせながら、旬の食材を手に取るその瞬間、心の中に溢れる充実感が広がります。
客間となる洋室は、それぞれが独自の物語を持ちます。15.2帖の洋室は、あなたの夢の部屋。ふかふかのベッドに身を委ね、本を読みながら心地よい眠りに落ちていくのです。10.5帖、10.4帖、6.4帖の洋室は、家族や友人を迎え入れるための素晴らしいスペース。彼らとの思い出が詰まった部屋は、生活に彩りを与える特別な場所となるでしょう。
ウィンザーハウス広尾 301には、ただの設備以上のものがあります。オートロックやエレベーター、宅配ボックスは、生活の便利さを提供し、あなたの日常をスムーズにサポートしてくれます。管理人が常駐することで、安心感が増し、この空間が本当に大切であることを実感できるでしょう。
周囲には恵比寿駅へのアクセスが徒歩でわずか9分。洗練された街並みと文化が息づくこの地域は、まるでアートのギャラリーのように魅了します。歴史ある街に根付いたカフェやレストラン、ギャラリーは、あなたの五感を刺激し、心を豊かにしてくれることでしょう。
ウィンザーハウス広尾 301は、単なる住まいではなく、あなたの物語が織りなされる舞台です。この場所での生活は、贅沢な贈り物となり、日々の瞬間が輝かしい記憶として、あなたの心に刻まれることでしょう。どんな景色が広がり、どんな物語が織り成されるのか、あなた自身の手で描いていくのです。さあ、あなたの新しい生活をウィンザーハウス広尾 301で始めてみませんか。
バイブルスコア
バイブルスコア: 17.4
高級な物件でない場合は割高な物件です。。
※バイブルスコア詳細はこちら
バイブルスコアとは独自のAI機械学習技術を利用した物件評価システムで、物件のおすすめ度を示します。最高得点は100点で、スコアが高いほど、よりおすすめの物件と評価されています。
写真
現在写真が登録されていません契約条件
| 賃料 | 予想金額:890,000〜910,000円程度 | 管理費 | 予想金額:0〜2,000円程度 |
| 礼金 | 非公開(アーカイブ) | 敷金 | 非公開(アーカイブ) |
| フリーレント | なし | 平米数 | 193.15㎡ |
| 間取り | 4LDK | 大型収納 | WIC |
| 契約期間 | 方角 | 北東 | |
| 更新料 | 契約形態 | 定期借家契約 | |
| 取引態様 | 媒介 | 内見状況 | 入居中 |
| 入居時期 | 入居中 | SOHO・事務所 | |
| ペット | ペット可 | 間取り内訳 | LD35.2J / K5.5J / 洋15.2J / 洋10.5J / 洋10.4J / 洋6.4J |
| キャンペーン情報・備考 | 本情報は賃料改定交渉の資料作成、収益物件の利回り試算、周辺エリアや最寄り駅の坪単価分析、次回募集開始時期の予測などにご活用いただけます。 | ||
※「どの不動産に頼めばいいのか分からない」「信頼できる営業マンの話を聞きたい」「一番親切な会社と契約したい」とお悩みの方におすすめなのが「高級賃貸バイブル」です。
高級賃貸バイブルは業界10年以上の熟練スタッフ群がお客様ファーストで対応します。
下記ボタンから、まずは無料でご相談下さい。
※内覧をご希望の際には、どうぞ物件のエントランス前にてお待ち合わせくださいませ。ご内覧後は、同じ場所でお別れとさせていただきます。お客様のご都合に合わせたスムーズなご案内を心がけておりますので、ご質問等がございましたら何なりとお申し付けください。 物件概要
| 物件名 |
| 築年月 |
|
|---|---|---|---|
| 所在地 | |||
| 交通 | |||
| 総戸数 |
| 総階数 |
|
| 構造 |
| ||
地図
物件までの道のりは、「拡大地図を表示」をクリックしてナビ機能をご利用ください。
部屋設備


















建物設備

TVモニターホン

エレベーター

オートロック

宅配ボックス

敷地内ゴミ置場

管理人

駐車場平置き

駐輪場
ウィンザーハウス広尾の現在募集中のお部屋
- No rooms found for this property.
