
| 賃料 | 予想金額:790,000〜810,000円程度 | 管理費 | 予想金額:0〜2,000円程度 |
| 礼金/敷金 | 非公開(アーカイブ) | 平米数 | 185.6㎡ |
| 初期費用概算(参考) | 目安:2,041,500〜2,141,500 円 | みなし賃料(月額・参考) | 816,906〜836,906 円 |
| 備考 | 本ページは過去募集のアーカイブです。表示の金額は周辺相場・過去募集を踏まえた参考レンジであり、実際の契約金額・条件ではありません。 | ||
※上記みなし賃料(月額)は仲介手数料割引・無料&キャッシュバックを加味した高級賃貸バイブル限定の金額です。一般的なみなし賃料とは異なります。
【建物ページ】ウィンザーハウス広尾の詳細・最新空室はこちら▶▶選ばれる理由
仲介手数料無料・キャンペーン情報(毎月15名様限定)
〇仲介手数料割引キャンペーン
ウィンザーハウス広尾 104の口コミ・レビュー
ウィンザーハウス広尾 104。この美しい名称は、ただの物件名にとどまらず、あなたの新たな生活の扉を開くキーとなります。185.6㎡の広大なスペースを誇るこの住まいは、まるで夢の舞台の幕が上がるかのように、あなたを迎え入れます。
低層の優雅さに包まれたウィンザーハウス広尾 104は、穏やかな西向きの窓から差し込む温かな陽光に、まるで金色の舞踏会の照明のように、優雅な影を落とします。この空間には、L…ウィンザーハウス広尾 104。この美しい名称は、ただの物件名にとどまらず、あなたの新たな生活の扉を開くキーとなります。185.6㎡の広大なスペースを誇るこの住まいは、まるで夢の舞台の幕が上がるかのように、あなたを迎え入れます。
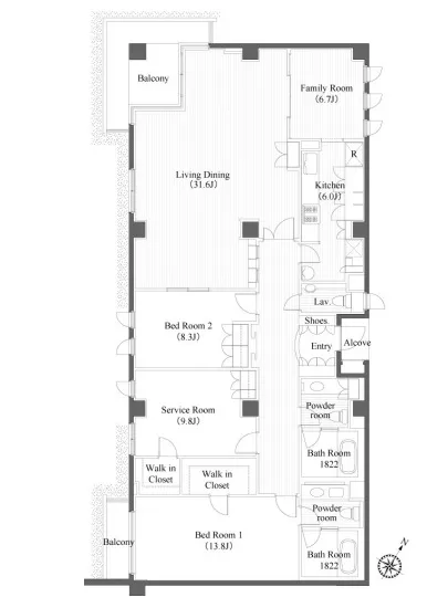
低層の優雅さに包まれたウィンザーハウス広尾 104は、穏やかな西向きの窓から差し込む温かな陽光に、まるで金色の舞踏会の照明のように、優雅な影を落とします。この空間には、LD32J、K6J、FR6.7J、洋室13.8J、洋室9.8J、洋室8.3Jといった多様な間取りがあり、それぞれが独特の物語を紡ぎ出すことでしょう。家族が集うLDは、心温まるひとときを演出し、バラエティ豊かな食事の香りが漂い、笑い声が響く光景が思い描かれます。
ウィンザーハウス広尾 104の居心地の良さは、まさに優雅さと機能性が融合した作品です。TVモニターホンやオートロックといった先進的な設備は、あなたの安全とプライバシーを守りながら、日々の生活をスムーズにサポートします。エレベーターや宅配ボックスを備えたこの住まいは、忙しい都市生活を送るあなたにとって、まるで慈愛に満ちた母のように、優しく寄り添ってくれるでしょう。
イメージしてみてください。東京メトロ日比谷線の恵比寿駅からの帰り道、夕暮れ時、柔らかなオレンジ色の光に包まれた街並みを歩くあなた。その先に待つウィンザーハウス広尾 104の深い静けさが、心の疲れを癒やしてくれます。敷地内ゴミ置場や駐車場平置き、駐輪場といった便利な設備が、生活のストレスを軽減し、心を解放してくれることでしょう。
そして、このエレガントな住まいの周辺には、歴史や文化が息づいています。広尾の街は、かつての面影を残しつつも、新たなアートや美食が育まれている場所。ウィンザーハウス広尾 104は、そんな文化的な中心地にも近く、日常の中に芸術を取り入れることができます。恵比寿のレストランでの美味しいディナー後、戻ったあとには、静かな室内で心地よい音楽を聴きながら、心を休める時間が訪れます。
ウィンザーハウス広尾 104での生活は、まるで洗練された映画のワンシーンのような日々。朝日がカーテン越しに差し込み、心地よい風が部屋を包み込む中で、コーヒーの香りを楽しみ、友人たちと語らい、家族との団らんを味わう。そんな瞬間が積み重なり、いつしかこの空間が、あなたの心の故郷となることでしょう。
ウィンザーハウス広尾 104での生活は、あなたにとって新たな物語の始まりです。さあ、あなたの夢をこの場所で実現しましょう。心の豊かさと生活の質を高めるこの特別な場所で、あなたの人生の新たな章を開いてください。
低層の優雅さに包まれたウィンザーハウス広尾 104は、穏やかな西向きの窓から差し込む温かな陽光に、まるで金色の舞踏会の照明のように、優雅な影を落とします。この空間には、L…ウィンザーハウス広尾 104。この美しい名称は、ただの物件名にとどまらず、あなたの新たな生活の扉を開くキーとなります。185.6㎡の広大なスペースを誇るこの住まいは、まるで夢の舞台の幕が上がるかのように、あなたを迎え入れます。
低層の優雅さに包まれたウィンザーハウス広尾 104は、穏やかな西向きの窓から差し込む温かな陽光に、まるで金色の舞踏会の照明のように、優雅な影を落とします。この空間には、LD32J、K6J、FR6.7J、洋室13.8J、洋室9.8J、洋室8.3Jといった多様な間取りがあり、それぞれが独特の物語を紡ぎ出すことでしょう。家族が集うLDは、心温まるひとときを演出し、バラエティ豊かな食事の香りが漂い、笑い声が響く光景が思い描かれます。
ウィンザーハウス広尾 104の居心地の良さは、まさに優雅さと機能性が融合した作品です。TVモニターホンやオートロックといった先進的な設備は、あなたの安全とプライバシーを守りながら、日々の生活をスムーズにサポートします。エレベーターや宅配ボックスを備えたこの住まいは、忙しい都市生活を送るあなたにとって、まるで慈愛に満ちた母のように、優しく寄り添ってくれるでしょう。
イメージしてみてください。東京メトロ日比谷線の恵比寿駅からの帰り道、夕暮れ時、柔らかなオレンジ色の光に包まれた街並みを歩くあなた。その先に待つウィンザーハウス広尾 104の深い静けさが、心の疲れを癒やしてくれます。敷地内ゴミ置場や駐車場平置き、駐輪場といった便利な設備が、生活のストレスを軽減し、心を解放してくれることでしょう。
そして、このエレガントな住まいの周辺には、歴史や文化が息づいています。広尾の街は、かつての面影を残しつつも、新たなアートや美食が育まれている場所。ウィンザーハウス広尾 104は、そんな文化的な中心地にも近く、日常の中に芸術を取り入れることができます。恵比寿のレストランでの美味しいディナー後、戻ったあとには、静かな室内で心地よい音楽を聴きながら、心を休める時間が訪れます。
ウィンザーハウス広尾 104での生活は、まるで洗練された映画のワンシーンのような日々。朝日がカーテン越しに差し込み、心地よい風が部屋を包み込む中で、コーヒーの香りを楽しみ、友人たちと語らい、家族との団らんを味わう。そんな瞬間が積み重なり、いつしかこの空間が、あなたの心の故郷となることでしょう。
ウィンザーハウス広尾 104での生活は、あなたにとって新たな物語の始まりです。さあ、あなたの夢をこの場所で実現しましょう。心の豊かさと生活の質を高めるこの特別な場所で、あなたの人生の新たな章を開いてください。
バイブルスコア
バイブルスコア: 32.3
平均的なスコアです。
※バイブルスコア詳細はこちら
バイブルスコアとは独自のAI機械学習技術を利用した物件評価システムで、物件のおすすめ度を示します。最高得点は100点で、スコアが高いほど、よりおすすめの物件と評価されています。
写真
現在写真が登録されていません契約条件
| 賃料 | 予想金額:790,000〜810,000円程度 | 管理費 | 予想金額:0〜2,000円程度 |
| 礼金 | 非公開(アーカイブ) | 敷金 | 非公開(アーカイブ) |
| フリーレント | なし | 平米数 | 185.6㎡ |
| 間取り | 3LDK | 大型収納 | WIC |
| 契約期間 | 方角 | 西 | |
| 更新料 | 契約形態 | 定期借家契約 | |
| 取引態様 | 媒介 | 内見状況 | 入居中 |
| 入居時期 | 入居中 | SOHO・事務所 | |
| ペット | ペット可 | 間取り内訳 | LD32J / K6J / FR6.7J / 洋13.8J / 洋9.8J / 洋8.3J |
| キャンペーン情報・備考 | 本情報は賃料改定交渉の資料作成、収益物件の利回り試算、周辺エリアや最寄り駅の坪単価分析、次回募集開始時期の予測などにご活用いただけます。 | ||
※「どの不動産に頼めばいいのか分からない」「信頼できる営業マンの話を聞きたい」「一番親切な会社と契約したい」とお悩みの方におすすめなのが「高級賃貸バイブル」です。
高級賃貸バイブルは業界10年以上の熟練スタッフ群がお客様ファーストで対応します。
下記ボタンから、まずは無料でご相談下さい。
※内覧をご希望の際には、どうぞ物件のエントランス前にてお待ち合わせくださいませ。ご内覧後は、同じ場所でお別れとさせていただきます。お客様のご都合に合わせたスムーズなご案内を心がけておりますので、ご質問等がございましたら何なりとお申し付けください。 物件概要
| 物件名 |
| 築年月 |
|
|---|---|---|---|
| 所在地 | |||
| 交通 | |||
| 総戸数 |
| 総階数 |
|
| 構造 |
| ||
地図
物件までの道のりは、「拡大地図を表示」をクリックしてナビ機能をご利用ください。
部屋設備


















建物設備

TVモニターホン

エレベーター

オートロック

宅配ボックス

敷地内ゴミ置場

管理人

駐車場平置き

駐輪場
ウィンザーハウス広尾の現在募集中のお部屋
- No rooms found for this property.
