
| 賃料 | 予想金額:790,000〜810,000円程度 | 管理費 | 予想金額:0〜2,000円程度 |
| 礼金/敷金 | 非公開(アーカイブ) | 平米数 | 185.6㎡ |
| 初期費用概算(参考) | 目安:2,041,500〜2,141,500 円 | みなし賃料(月額・参考) | 816,906〜836,906 円 |
| 備考 | 本ページは過去募集のアーカイブです。表示の金額は周辺相場・過去募集を踏まえた参考レンジであり、実際の契約金額・条件ではありません。 | ||
※上記みなし賃料(月額)は仲介手数料割引・無料&キャッシュバックを加味した高級賃貸バイブル限定の金額です。一般的なみなし賃料とは異なります。
【建物ページ】ウィンザーハウス広尾の詳細・最新空室はこちら▶▶選ばれる理由
仲介手数料無料・キャンペーン情報(毎月15名様限定)
〇仲介手数料割引キャンペーン
ウィンザーハウス広尾 304の口コミ・レビュー
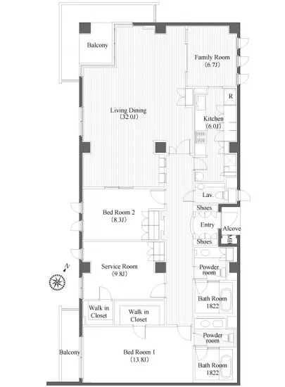
ウィンザーハウス広尾 304は、まるで物語の中から飛び出してきたかのような特別な場所です。静かな西向きの窓から差し込む陽光が、贅沢な185.6㎡のスペースに柔らかな光のシャワーを浴びせます。ここでの生活は、まるで一枚の絵画が生き生きとしたシーンに変わるかのよう。LD32帖のリビングは、あなたを包み込むような温もりを持ち、家族や友人との心温まる会話を引き出す空間として、まるで物語の主人公たちが集う中…ウィンザーハウス広尾 304は、まるで物語の中から飛び出してきたかのような特別な場所です。静かな西向きの窓から差し込む陽光が、贅沢な185.6㎡のスペースに柔らかな光のシャワーを浴びせます。ここでの生活は、まるで一枚の絵画が生き生きとしたシーンに変わるかのよう。LD32帖のリビングは、あなたを包み込むような温もりを持ち、家族や友人との心温まる会話を引き出す空間として、まるで物語の主人公たちが集う中庭のように機能します。
この物件の魅力は、その広がる風景のように多彩です。キッチン6帖では、料理の香りが漂い、真新しい素材が織りなす音楽が耳に心地よく響きます。まるでシェフが舞台に立っているような感覚で、あなたの手元から次々に美味しい料理が生まれていくのです。隣接した6.7帖のフリールームは、希望の種を蒔く場所。想像力をかき立てる専用の空間は、現実逃避のための小さな隠れ家として機能します。
ウィンザーハウス広尾 304の洋室たちも、それぞれが個性を持ち、一つの物語を紡ぐキャラクターのようです。13.8帖の主寝室は、一日の疲れを癒す聖域。静寂に包まれたこの空間では、思わず夢の中に引き込まれ、心が安らぎます。9.8帖と8.3帖の洋室は、子供たちの遊び場やゲストルームとしても役立ち、ここでの生活はいつも新しい発見に満ちています。
物件の設備もまた、あなたの日常を豊かに彩る大切な存在です。エレベーターで昇るごとに、アートのような暮らしが広がる感じがします。オートロック付きで、プライバシーも完璧に保たれています。周辺には、文化や歴史を感じさせるスポットが点在し、まるで街自体が一つの博物館のようです。東京メトロ日比谷線恵比寿駅からのアクセスも良好で、現代と伝統が交差するこのエリアで、日常の中に特別な瞬間を味わえます。
ウィンザーハウス広尾 304はただの住まいではありません。ここは、生活そのものがアートであり、あなた自身がその一部となる舞台です。新たな物語を紡ぎ、心豊かに日常を楽しむためのベースキャンプであるこの場所に、ぜひとも足を運んでみてはいかがでしょうか。あなたの新しい生活が、ここから始まります。
この物件の魅力は、その広がる風景のように多彩です。キッチン6帖では、料理の香りが漂い、真新しい素材が織りなす音楽が耳に心地よく響きます。まるでシェフが舞台に立っているような感覚で、あなたの手元から次々に美味しい料理が生まれていくのです。隣接した6.7帖のフリールームは、希望の種を蒔く場所。想像力をかき立てる専用の空間は、現実逃避のための小さな隠れ家として機能します。
ウィンザーハウス広尾 304の洋室たちも、それぞれが個性を持ち、一つの物語を紡ぐキャラクターのようです。13.8帖の主寝室は、一日の疲れを癒す聖域。静寂に包まれたこの空間では、思わず夢の中に引き込まれ、心が安らぎます。9.8帖と8.3帖の洋室は、子供たちの遊び場やゲストルームとしても役立ち、ここでの生活はいつも新しい発見に満ちています。
物件の設備もまた、あなたの日常を豊かに彩る大切な存在です。エレベーターで昇るごとに、アートのような暮らしが広がる感じがします。オートロック付きで、プライバシーも完璧に保たれています。周辺には、文化や歴史を感じさせるスポットが点在し、まるで街自体が一つの博物館のようです。東京メトロ日比谷線恵比寿駅からのアクセスも良好で、現代と伝統が交差するこのエリアで、日常の中に特別な瞬間を味わえます。
ウィンザーハウス広尾 304はただの住まいではありません。ここは、生活そのものがアートであり、あなた自身がその一部となる舞台です。新たな物語を紡ぎ、心豊かに日常を楽しむためのベースキャンプであるこの場所に、ぜひとも足を運んでみてはいかがでしょうか。あなたの新しい生活が、ここから始まります。
バイブルスコア
バイブルスコア: 32.3
平均的なスコアです。
※バイブルスコア詳細はこちら
バイブルスコアとは独自のAI機械学習技術を利用した物件評価システムで、物件のおすすめ度を示します。最高得点は100点で、スコアが高いほど、よりおすすめの物件と評価されています。
写真
現在写真が登録されていません契約条件
| 賃料 | 予想金額:790,000〜810,000円程度 | 管理費 | 予想金額:0〜2,000円程度 |
| 礼金 | 非公開(アーカイブ) | 敷金 | 非公開(アーカイブ) |
| フリーレント | なし | 平米数 | 185.6㎡ |
| 間取り | 3LDK | 大型収納 | WIC |
| 契約期間 | 方角 | 西 | |
| 更新料 | 契約形態 | 定期借家契約 | |
| 取引態様 | 媒介 | 内見状況 | 入居中 |
| 入居時期 | 入居中 | SOHO・事務所 | |
| ペット | ペット可 | 間取り内訳 | LD32J / K6J / FR6.7J / 洋13.8J / 洋9.8J / 洋8.3J |
| キャンペーン情報・備考 | 本情報は賃料改定交渉の資料作成、収益物件の利回り試算、周辺エリアや最寄り駅の坪単価分析、次回募集開始時期の予測などにご活用いただけます。 | ||
※「どの不動産に頼めばいいのか分からない」「信頼できる営業マンの話を聞きたい」「一番親切な会社と契約したい」とお悩みの方におすすめなのが「高級賃貸バイブル」です。
高級賃貸バイブルは業界10年以上の熟練スタッフ群がお客様ファーストで対応します。
下記ボタンから、まずは無料でご相談下さい。
※内覧をご希望の際には、どうぞ物件のエントランス前にてお待ち合わせくださいませ。ご内覧後は、同じ場所でお別れとさせていただきます。お客様のご都合に合わせたスムーズなご案内を心がけておりますので、ご質問等がございましたら何なりとお申し付けください。 物件概要
| 物件名 |
| 築年月 |
|
|---|---|---|---|
| 所在地 | |||
| 交通 | |||
| 総戸数 |
| 総階数 |
|
| 構造 |
| ||
地図
物件までの道のりは、「拡大地図を表示」をクリックしてナビ機能をご利用ください。
部屋設備



















建物設備

TVモニターホン

エレベーター

オートロック

宅配ボックス

敷地内ゴミ置場

管理人

駐車場平置き

駐輪場
ウィンザーハウス広尾の現在募集中のお部屋
- No rooms found for this property.
