
| 賃料 | 予想金額:790,000〜810,000円程度 | 管理費 | 予想金額:0〜2,000円程度 |
| 礼金/敷金 | 非公開(アーカイブ) | 平米数 | 170.26㎡ |
| 初期費用概算(参考) | 目安:2,041,500〜2,141,500 円 | みなし賃料(月額・参考) | 816,906〜836,906 円 |
| 備考 | 本ページは過去募集のアーカイブです。表示の金額は周辺相場・過去募集を踏まえた参考レンジであり、実際の契約金額・条件ではありません。 | ||
※上記みなし賃料(月額)は仲介手数料割引・無料&キャッシュバックを加味した高級賃貸バイブル限定の金額です。一般的なみなし賃料とは異なります。
【建物ページ】ウィンザーハウス広尾の詳細・最新空室はこちら▶▶選ばれる理由
仲介手数料無料・キャンペーン情報(毎月15名様限定)
〇仲介手数料割引キャンペーン
ウィンザーハウス広尾 203の口コミ・レビュー
ウィンザーハウス広尾 203。この名前は、贅沢な生活の象徴として、あなたと共に新しい物語を紡ぎ出すために存在しています。東京都渋谷区広尾の静かな街並みを見下ろすこの特別な空間は、南西を望む明るい陽射しに包まれ、1歩踏み入れた瞬間から別世界への扉が開かれるかのようです。広々とした170.26㎡の専有面積は、まるで広大なキャンバスのように、あなたの理想の生活を描くための舞台を提供します。
ウィンザー…ウィンザーハウス広尾 203。この名前は、贅沢な生活の象徴として、あなたと共に新しい物語を紡ぎ出すために存在しています。東京都渋谷区広尾の静かな街並みを見下ろすこの特別な空間は、南西を望む明るい陽射しに包まれ、1歩踏み入れた瞬間から別世界への扉が開かれるかのようです。広々とした170.26㎡の専有面積は、まるで広大なキャンバスのように、あなたの理想の生活を描くための舞台を提供します。
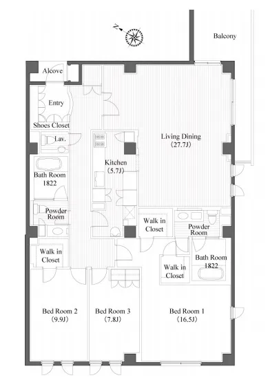
ウィンザーハウス広尾 203の心臓部、27.7帖のリビングダイニングは、家族や友人との楽しい時間を演出するための温もりに満ちています。そこからは、料理の香ばしい香りがキッチンの5.7帖に漂い、専属のシェフとなったあなたが手掛ける美味しい料理の数々を期待させます。16.5帖の洋室では、夢の続きを見るための静寂に包まれ、9.9帖と7.8帖の洋室は、ゲストや家族が心安らぐひとときを過ごすための隠れ家となります。まるで物語の登場人物がそこにいるような感覚で、思わず時を忘れてしまうことでしょう。
ウィンザーハウス広尾 203は、ただの住まいではありません。あなたに語りかけ、日々の生活を彩り、感情を豊かにする存在なのです。毎朝、窓の外から差し込む太陽の光がカーテンを揺らめかせ、その光がリビングに暖かい色合いを与えます。午後のひとときには、風に乗って流れてくる近くの公園の草花の香りが、心を癒し、さらなるエネルギーを注ぎ込んでくれます。夜になると、星々の輝きと共に、ウィンザーハウス広尾 203の窓から見える街の灯りがまるで映画のワンシーンのように美しく、特別な時間が流れます。
この物件は、ただの居所ではなく、あなたの人生を豊かにするための舞台です。その周辺には、歴史ある文化や芸術が溢れ、静寂の中に躍動感を宿しています。近くの恵比寿駅からは、東京の喧騒や刺激的なカルチャーへも簡単にアクセスできます。その利便性は、あなたのライフスタイルを更に洗練されたものにし、特別な瞬間を生み出す力を持っています。
ウィンザーハウス広尾 203は、ただの住まいではなく、あなたの新たな人生の幕開けを告げる場所なのです。どうか、この特別な空間で、心豊かな日々を過ごす準備をしていただけることを願っています。これから始まる物語が、あなたの手の中でどんな素晴らしい展開を見せるのか、その瞬間を楽しみにしていることでしょう。さあ、ウィンザーハウス広尾 203で、新しい生活の扉を開いてみませんか。
ウィンザー…ウィンザーハウス広尾 203。この名前は、贅沢な生活の象徴として、あなたと共に新しい物語を紡ぎ出すために存在しています。東京都渋谷区広尾の静かな街並みを見下ろすこの特別な空間は、南西を望む明るい陽射しに包まれ、1歩踏み入れた瞬間から別世界への扉が開かれるかのようです。広々とした170.26㎡の専有面積は、まるで広大なキャンバスのように、あなたの理想の生活を描くための舞台を提供します。
ウィンザーハウス広尾 203の心臓部、27.7帖のリビングダイニングは、家族や友人との楽しい時間を演出するための温もりに満ちています。そこからは、料理の香ばしい香りがキッチンの5.7帖に漂い、専属のシェフとなったあなたが手掛ける美味しい料理の数々を期待させます。16.5帖の洋室では、夢の続きを見るための静寂に包まれ、9.9帖と7.8帖の洋室は、ゲストや家族が心安らぐひとときを過ごすための隠れ家となります。まるで物語の登場人物がそこにいるような感覚で、思わず時を忘れてしまうことでしょう。
ウィンザーハウス広尾 203は、ただの住まいではありません。あなたに語りかけ、日々の生活を彩り、感情を豊かにする存在なのです。毎朝、窓の外から差し込む太陽の光がカーテンを揺らめかせ、その光がリビングに暖かい色合いを与えます。午後のひとときには、風に乗って流れてくる近くの公園の草花の香りが、心を癒し、さらなるエネルギーを注ぎ込んでくれます。夜になると、星々の輝きと共に、ウィンザーハウス広尾 203の窓から見える街の灯りがまるで映画のワンシーンのように美しく、特別な時間が流れます。
この物件は、ただの居所ではなく、あなたの人生を豊かにするための舞台です。その周辺には、歴史ある文化や芸術が溢れ、静寂の中に躍動感を宿しています。近くの恵比寿駅からは、東京の喧騒や刺激的なカルチャーへも簡単にアクセスできます。その利便性は、あなたのライフスタイルを更に洗練されたものにし、特別な瞬間を生み出す力を持っています。
ウィンザーハウス広尾 203は、ただの住まいではなく、あなたの新たな人生の幕開けを告げる場所なのです。どうか、この特別な空間で、心豊かな日々を過ごす準備をしていただけることを願っています。これから始まる物語が、あなたの手の中でどんな素晴らしい展開を見せるのか、その瞬間を楽しみにしていることでしょう。さあ、ウィンザーハウス広尾 203で、新しい生活の扉を開いてみませんか。
バイブルスコア
バイブルスコア: 32.3
平均的なスコアです。
※バイブルスコア詳細はこちら
バイブルスコアとは独自のAI機械学習技術を利用した物件評価システムで、物件のおすすめ度を示します。最高得点は100点で、スコアが高いほど、よりおすすめの物件と評価されています。
写真
現在写真が登録されていません契約条件
| 賃料 | 予想金額:790,000〜810,000円程度 | 管理費 | 予想金額:0〜2,000円程度 |
| 礼金 | 非公開(アーカイブ) | 敷金 | 非公開(アーカイブ) |
| フリーレント | なし | 平米数 | 170.26㎡ |
| 間取り | 3LDK | 大型収納 | WIC |
| 契約期間 | 方角 | 南 西 | |
| 更新料 | 契約形態 | 定期借家契約 | |
| 取引態様 | 媒介 | 内見状況 | 入居中 |
| 入居時期 | 入居中 | SOHO・事務所 | |
| ペット | ペット可 | 間取り内訳 | LD:27.7J / K:5.7J / 洋:16.5J / 洋:9.9J / 洋:7.8J |
| キャンペーン情報・備考 | 本情報は賃料改定交渉の資料作成、収益物件の利回り試算、周辺エリアや最寄り駅の坪単価分析、次回募集開始時期の予測などにご活用いただけます。 | ||
※「どの不動産に頼めばいいのか分からない」「信頼できる営業マンの話を聞きたい」「一番親切な会社と契約したい」とお悩みの方におすすめなのが「高級賃貸バイブル」です。
高級賃貸バイブルは業界10年以上の熟練スタッフ群がお客様ファーストで対応します。
下記ボタンから、まずは無料でご相談下さい。
※内覧をご希望の際には、どうぞ物件のエントランス前にてお待ち合わせくださいませ。ご内覧後は、同じ場所でお別れとさせていただきます。お客様のご都合に合わせたスムーズなご案内を心がけておりますので、ご質問等がございましたら何なりとお申し付けください。 物件概要
| 物件名 |
| 築年月 |
|
|---|---|---|---|
| 所在地 | |||
| 交通 | |||
| 総戸数 |
| 総階数 |
|
| 構造 |
| ||
地図
物件までの道のりは、「拡大地図を表示」をクリックしてナビ機能をご利用ください。
部屋設備



















建物設備

TVモニターホン

エレベーター

オートロック

宅配ボックス

敷地内ゴミ置場

管理人

駐車場平置き

駐輪場
ウィンザーハウス広尾の現在募集中のお部屋
- No rooms found for this property.
