
| 賃料 | 予想金額:490,000〜510,000円程度 | 管理費 | 予想金額:0〜2,000円程度 |
| 礼金/敷金 | 非公開(アーカイブ) | 平米数 | 102.32㎡ |
| 初期費用概算(参考) | 目安:2,791,500〜2,891,500 円 | みなし賃料(月額・参考) | 538,781〜558,781 円 |
| 備考 | 本ページは過去募集のアーカイブです。表示の金額は周辺相場・過去募集を踏まえた参考レンジであり、実際の契約金額・条件ではありません。 | ||
※上記みなし賃料(月額)は仲介手数料割引・無料&キャッシュバックを加味した高級賃貸バイブル限定の金額です。一般的なみなし賃料とは異なります。
【建物ページ】ブランズ四番町の詳細・最新空室はこちら▶▶選ばれる理由
仲介手数料無料・キャンペーン情報(毎月15名様限定)
〇仲介手数料割引キャンペーン
ブランズ四番町 205の口コミ・レビュー
ブランズ四番町 205は、まるで文学作品から飛び出してきたかの如く、あなたの日常を特別な物語に変えてしまうステージです。この物件に一歩足を踏み入れると、贅沢な生活の香りが漂い、時間が静かに流れ出します。専有面積は102.32㎡、この広大な空間には無限の可能性が詰まっており、心が解き放たれる瞬間をもたらしてくれます。
この魅惑の住まいは、南向きの窓から陽射しが優しく差し込み、日々の喧騒を忘れさせる…ブランズ四番町 205は、まるで文学作品から飛び出してきたかの如く、あなたの日常を特別な物語に変えてしまうステージです。この物件に一歩足を踏み入れると、贅沢な生活の香りが漂い、時間が静かに流れ出します。専有面積は102.32㎡、この広大な空間には無限の可能性が詰まっており、心が解き放たれる瞬間をもたらしてくれます。
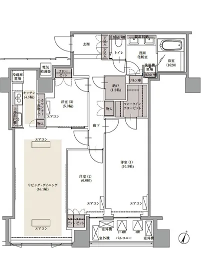
この魅惑の住まいは、南向きの窓から陽射しが優しく差し込み、日々の喧騒を忘れさせる穏やかな空気感に包まれています。LDKは16.1帖の広さで、カフェのような居心地の良さを感じさせつつ、食卓に集まる家族の笑い声が響き渡る、温もりのある空間となることでしょう。あなたがテーブルの上に並べるのは、特別な日のために選んだワインや、手作りのデザート。その匂いが、リビングに広がり、心に残る思い出を作り出します。
料理の香ばしい香りが漂うキッチンは、4.5帖のコンパクトさながらも、あなたのクリエイティビティを存分に発揮する場所です。すぐそばには、洗練されたデザインのダイニングスペースが広がり、家族や友人とともに交わす会話が、まるで流れる音楽のように心地よく響きます。
プライベートルームも充実しており、10.5帖、6帖、5帖と多様な部屋をご用意しています。それぞれの部屋は、あなたの個性を映し出すキャンバスのような存在です。穏やかな香りの中で、憩いのひとときを過ごすことができるでしょう。朝は新鮮なコーヒーの香りに誘われ、穏やかな優しさに包まれた中で目覚め、夜には静かな読書の時間を楽しむ、そんな贅沢な日常がここには待っています。
ブランズ四番町 205の心強い仲間たち、24時間管理やフロントサービス、ラウンジでは、隣人との新たな出会いが待っています。宅配ボックスの便利さやオートロックの安全性が、あなたの生活をよりスムーズに保ってくれることでしょう。また、バイク置場や駐車場も完備されており、都心の喧騒から逃れ、思い立ったらすぐに出かけられる自由がここにはあります。
さらに、このエレガンスあふれる物件は、東京メトロ南北線市ヶ谷駅から徒歩3分の場所に位置しており、歴史と文化が息づくエリアの中心ともなっています。古き良き街並みが残る四番町で、アートな感性を刺激するカフェやギャラリーを愉しむことができるのです。季節の移ろいを感じながら、散策することが日常の中で特別な体験に変わります。
ブランズ四番町 205は、ただの住まいではなく、心の安らぎを提供するパートナーです。この場所での日々は、一つ一つの瞬間が映画のワンシーンのように思い出に染まっていくことでしょう。あなたの新しい物語が、ここから始まります。
この魅惑の住まいは、南向きの窓から陽射しが優しく差し込み、日々の喧騒を忘れさせる…ブランズ四番町 205は、まるで文学作品から飛び出してきたかの如く、あなたの日常を特別な物語に変えてしまうステージです。この物件に一歩足を踏み入れると、贅沢な生活の香りが漂い、時間が静かに流れ出します。専有面積は102.32㎡、この広大な空間には無限の可能性が詰まっており、心が解き放たれる瞬間をもたらしてくれます。
この魅惑の住まいは、南向きの窓から陽射しが優しく差し込み、日々の喧騒を忘れさせる穏やかな空気感に包まれています。LDKは16.1帖の広さで、カフェのような居心地の良さを感じさせつつ、食卓に集まる家族の笑い声が響き渡る、温もりのある空間となることでしょう。あなたがテーブルの上に並べるのは、特別な日のために選んだワインや、手作りのデザート。その匂いが、リビングに広がり、心に残る思い出を作り出します。
料理の香ばしい香りが漂うキッチンは、4.5帖のコンパクトさながらも、あなたのクリエイティビティを存分に発揮する場所です。すぐそばには、洗練されたデザインのダイニングスペースが広がり、家族や友人とともに交わす会話が、まるで流れる音楽のように心地よく響きます。
プライベートルームも充実しており、10.5帖、6帖、5帖と多様な部屋をご用意しています。それぞれの部屋は、あなたの個性を映し出すキャンバスのような存在です。穏やかな香りの中で、憩いのひとときを過ごすことができるでしょう。朝は新鮮なコーヒーの香りに誘われ、穏やかな優しさに包まれた中で目覚め、夜には静かな読書の時間を楽しむ、そんな贅沢な日常がここには待っています。
ブランズ四番町 205の心強い仲間たち、24時間管理やフロントサービス、ラウンジでは、隣人との新たな出会いが待っています。宅配ボックスの便利さやオートロックの安全性が、あなたの生活をよりスムーズに保ってくれることでしょう。また、バイク置場や駐車場も完備されており、都心の喧騒から逃れ、思い立ったらすぐに出かけられる自由がここにはあります。
さらに、このエレガンスあふれる物件は、東京メトロ南北線市ヶ谷駅から徒歩3分の場所に位置しており、歴史と文化が息づくエリアの中心ともなっています。古き良き街並みが残る四番町で、アートな感性を刺激するカフェやギャラリーを愉しむことができるのです。季節の移ろいを感じながら、散策することが日常の中で特別な体験に変わります。
ブランズ四番町 205は、ただの住まいではなく、心の安らぎを提供するパートナーです。この場所での日々は、一つ一つの瞬間が映画のワンシーンのように思い出に染まっていくことでしょう。あなたの新しい物語が、ここから始まります。
バイブルスコア
バイブルスコア: 33.2
平均的なスコアです。
※バイブルスコア詳細はこちら
バイブルスコアとは独自のAI機械学習技術を利用した物件評価システムで、物件のおすすめ度を示します。最高得点は100点で、スコアが高いほど、よりおすすめの物件と評価されています。
写真
契約条件
| 賃料 | 予想金額:490,000〜510,000円程度 | 管理費 | 予想金額:0〜2,000円程度 |
| 礼金 | 非公開(アーカイブ) | 敷金 | 非公開(アーカイブ) |
| フリーレント | なし | 平米数 | 102.32㎡ |
| 間取り | 3LDK | 大型収納 | WIC+N |
| 契約期間 |
| 方角 | 南 |
| 更新料 | 契約形態 | 普通賃貸借契約 | |
| 取引態様 | 媒介 | 内見状況 | 入居中 |
| 入居時期 | 入居中 | SOHO・事務所 | |
| ペット | ペット可 | 間取り内訳 | LD=16.1J / K=4.5J / BR=10.5J / BR=6J / BR=5J |
| キャンペーン情報・備考 | 本情報は賃料改定交渉の資料作成、収益物件の利回り試算、周辺エリアや最寄り駅の坪単価分析、次回募集開始時期の予測などにご活用いただけます。 | ||
※「どの不動産に頼めばいいのか分からない」「信頼できる営業マンの話を聞きたい」「一番親切な会社と契約したい」とお悩みの方におすすめなのが「高級賃貸バイブル」です。
高級賃貸バイブルは業界10年以上の熟練スタッフ群がお客様ファーストで対応します。
下記ボタンから、まずは無料でご相談下さい。
※内覧をご希望の際には、どうぞ物件のエントランス前にてお待ち合わせくださいませ。ご内覧後は、同じ場所でお別れとさせていただきます。お客様のご都合に合わせたスムーズなご案内を心がけておりますので、ご質問等がございましたら何なりとお申し付けください。 物件概要
| 物件名 |
| 築年月 |
|
|---|---|---|---|
| 所在地 | |||
| 交通 | |||
| 総戸数 |
| 総階数 |
|
| 構造 |
| ||
地図
物件までの道のりは、「拡大地図を表示」をクリックしてナビ機能をご利用ください。
部屋設備



















建物設備

24時間管理

TVモニターホン

エレベーター

オートロック

バイク置場

フロントサービス

ラウンジ

宅配ボックス

敷地内ゴミ置場

管理人

駐車場平置き

駐車場機械式

駐輪場
ブランズ四番町の現在募集中のお部屋
- ブランズ四番町 4階 60.6㎡ - 間取り: 2LDK+SIC - 賃料: 47万円





















