
| 賃料 | 予想金額:124,000〜144,000円程度 | 管理費 | 予想金額:0〜2,000円程度 |
| 礼金/敷金 | 非公開(アーカイブ) | 平米数 | 31.62㎡ |
| 初期費用概算(参考) | 目安:510,500〜610,500 円 | みなし賃料(月額・参考) | 132,885〜152,885 円 |
| 備考 | 本ページは過去募集のアーカイブです。表示の金額は周辺相場・過去募集を踏まえた参考レンジであり、実際の契約金額・条件ではありません。 | ||
※上記みなし賃料(月額)は仲介手数料割引・無料&キャッシュバックを加味した高級賃貸バイブル限定の金額です。一般的なみなし賃料とは異なります。
【建物ページ】グローリオ田町の詳細・最新空室はこちら▶▶選ばれる理由
仲介手数料無料・キャンペーン情報(毎月15名様限定)
〇仲介手数料割引キャンペーン
グローリオ田町 502の口コミ・レビュー
グローリオ田町 502。あなたに語りかけるこの物件は、まるで静謐な港の朝焼けのように、穏やかでありながらもどこか芸術的な表情を見せています。東京都港区芝浦3-2-35という恵まれたロケーションに佇むこの住まいは、まるで洗練された宝石のように、日常の喧騒から解き放たれた特別な空間を提供しています。最寄りのJR山手線田町駅からわずか徒歩5分という距離は、都会の便利さを享受しながら、そこにいるだけで心が…グローリオ田町 502。あなたに語りかけるこの物件は、まるで静謐な港の朝焼けのように、穏やかでありながらもどこか芸術的な表情を見せています。東京都港区芝浦3-2-35という恵まれたロケーションに佇むこの住まいは、まるで洗練された宝石のように、日常の喧騒から解き放たれた特別な空間を提供しています。最寄りのJR山手線田町駅からわずか徒歩5分という距離は、都会の便利さを享受しながら、そこにいるだけで心が豊かになるような場所です。
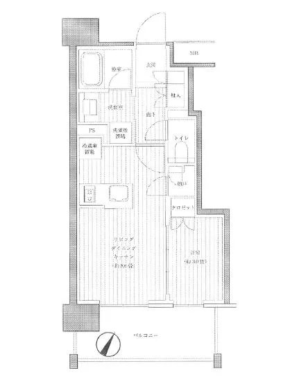
グローリオ田町 502の内部に足を踏み入れると、まず感じるのは、豊かな光が差し込む南向きの明るさです。この家は、陽射しがやさしく包み込み、まるで心の奥深くまで温もりを届けてくれるかのようです。31.62㎡の空間に広がるのは、居心地の良いLDK8.6帖と、静寂に包まれた洋室3帖。自然な流れを意識したレイアウトは、あなたの日常に心地よさをもたらし、まるで自分自身が一つの作品の主人公になったかのように感じさせます。
夜が訪れると、グローリオ田町 502の窓からは静かな街の音が流れ込み、嗅覚を刺激するのは近くの居酒屋から漂う香ばしい焼鳥の香り。心に灯るのは、わずかな間に連れて行かれるような風情ある日本の四季。エレベーターでスムーズに昇り、オートロックによって安心感も得られるこの家は、まさにあなたの幸福なひとときを演出するために存在しています。
この物件に流れる時間は、洗練されたデザインと機能性の中に、さりげない気配りが見え隠れします。TVモニターホンや宅配ボックス、管理人の目が行き届いた24時間管理など、生活を支える設備が整っており、心はいつでも安心に包まれています。また、駐車場平置きや駐輪場も完備されているため、お出かけの際もストレスを感じることはありません。
グローリオ田町 502は、周辺に根付く歴史や文化を感じさせる街に存在しています。水辺の美しい風景が広がり、周囲にはおしゃれなカフェやダイニングが点在しているこのエリアは、まるでアートギャラリーのように、日常の中にひとしずくの豊かさを提供してくれるのです。
この場所は、生活のあらゆる瞬間を特別に変える舞台です。挽きたてのコーヒーの香りに包まれた朝、友人と共に過ごす至福の午後、静寂に満ちた夜のひととき。グローリオ田町 502は、あなたの心を豊かにするために、待ち続ける夢のような家なのです。さあ、この高級賃貸物件で新たな生活が始まる瞬間を心から楽しんでください。あなたの物語は、ここから始まるのです。
グローリオ田町 502の内部に足を踏み入れると、まず感じるのは、豊かな光が差し込む南向きの明るさです。この家は、陽射しがやさしく包み込み、まるで心の奥深くまで温もりを届けてくれるかのようです。31.62㎡の空間に広がるのは、居心地の良いLDK8.6帖と、静寂に包まれた洋室3帖。自然な流れを意識したレイアウトは、あなたの日常に心地よさをもたらし、まるで自分自身が一つの作品の主人公になったかのように感じさせます。
夜が訪れると、グローリオ田町 502の窓からは静かな街の音が流れ込み、嗅覚を刺激するのは近くの居酒屋から漂う香ばしい焼鳥の香り。心に灯るのは、わずかな間に連れて行かれるような風情ある日本の四季。エレベーターでスムーズに昇り、オートロックによって安心感も得られるこの家は、まさにあなたの幸福なひとときを演出するために存在しています。
この物件に流れる時間は、洗練されたデザインと機能性の中に、さりげない気配りが見え隠れします。TVモニターホンや宅配ボックス、管理人の目が行き届いた24時間管理など、生活を支える設備が整っており、心はいつでも安心に包まれています。また、駐車場平置きや駐輪場も完備されているため、お出かけの際もストレスを感じることはありません。
グローリオ田町 502は、周辺に根付く歴史や文化を感じさせる街に存在しています。水辺の美しい風景が広がり、周囲にはおしゃれなカフェやダイニングが点在しているこのエリアは、まるでアートギャラリーのように、日常の中にひとしずくの豊かさを提供してくれるのです。
この場所は、生活のあらゆる瞬間を特別に変える舞台です。挽きたてのコーヒーの香りに包まれた朝、友人と共に過ごす至福の午後、静寂に満ちた夜のひととき。グローリオ田町 502は、あなたの心を豊かにするために、待ち続ける夢のような家なのです。さあ、この高級賃貸物件で新たな生活が始まる瞬間を心から楽しんでください。あなたの物語は、ここから始まるのです。
バイブルスコア
バイブルスコア: 33.6
平均的なスコアです。
※バイブルスコア詳細はこちら
バイブルスコアとは独自のAI機械学習技術を利用した物件評価システムで、物件のおすすめ度を示します。最高得点は100点で、スコアが高いほど、よりおすすめの物件と評価されています。
写真
契約条件
| 賃料 | 予想金額:124,000〜144,000円程度 | 管理費 | 予想金額:0〜2,000円程度 |
| 礼金 | 非公開(アーカイブ) | 敷金 | 非公開(アーカイブ) |
| フリーレント | なし | 平米数 | 31.62㎡ |
| 間取り | 1LDK | 大型収納 | 納戸 |
| 契約期間 |
| 方角 | 南 |
| 更新料 | 契約形態 | 普通賃貸借契約 | |
| 取引態様 | 媒介 | 内見状況 | 入居中 |
| 入居時期 | 入居中 | SOHO・事務所 | |
| ペット | 間取り内訳 | 洋:3 LDK:8.6 | |
| キャンペーン情報・備考 | 本情報は賃料改定交渉の資料作成、収益物件の利回り試算、周辺エリアや最寄り駅の坪単価分析、次回募集開始時期の予測などにご活用いただけます。 | ||
※「どの不動産に頼めばいいのか分からない」「信頼できる営業マンの話を聞きたい」「一番親切な会社と契約したい」とお悩みの方におすすめなのが「高級賃貸バイブル」です。
高級賃貸バイブルは業界10年以上の熟練スタッフ群がお客様ファーストで対応します。
下記ボタンから、まずは無料でご相談下さい。
※内覧をご希望の際には、どうぞ物件のエントランス前にてお待ち合わせくださいませ。ご内覧後は、同じ場所でお別れとさせていただきます。お客様のご都合に合わせたスムーズなご案内を心がけておりますので、ご質問等がございましたら何なりとお申し付けください。 物件概要
| 物件名 |
| 築年月 |
|
|---|---|---|---|
| 所在地 | |||
| 交通 | |||
| 総戸数 |
| 総階数 |
|
| 構造 |
| ||
地図
物件までの道のりは、「拡大地図を表示」をクリックしてナビ機能をご利用ください。
部屋設備
















建物設備

24時間管理

TVモニターホン

エレベーター

オートロック

宅配ボックス

敷地内ゴミ置場

管理人

駐車場平置き

駐輪場
グローリオ田町の現在募集中のお部屋
- No rooms found for this property.
























