
| 賃料 | 予想金額:80,000〜100,000円程度 | 管理費 | 予想金額:6,000〜10,000円程度 |
| 礼金/敷金 | 非公開(アーカイブ) | 平米数 | 21.66㎡ |
| 初期費用概算(参考) | 目安:368,500〜468,500 円 | みなし賃料(月額・参考) | 94,844〜114,844 円 |
| 備考 | 本ページは過去募集のアーカイブです。表示の金額は周辺相場・過去募集を踏まえた参考レンジであり、実際の契約金額・条件ではありません。 | ||
※上記みなし賃料(月額)は仲介手数料割引・無料&キャッシュバックを加味した高級賃貸バイブル限定の金額です。一般的なみなし賃料とは異なります。
【建物ページ】グランドガーラ高輪の詳細・最新空室はこちら▶▶選ばれる理由
仲介手数料無料・キャンペーン情報(毎月15名様限定)
〇仲介手数料割引キャンペーン
グランドガーラ高輪 1202の口コミ・レビュー
グランドガーラ高輪 1202。この魅力的な物件は、まさに東京の心臓部とも言える高輪の一角に、洗練された姿を持っています。あなたがこのドアを開けると、まるで新しい物語の扉が開かれるかのような期待が膨らみます。高層1202階から眺める壮大な都市のパノラマは、朝の光に照らされて金色に輝き、日々のメロディーを奏でます。
空間に足を踏み入れると、洋室6.6帖の広がりがあなたを優しく迎え入れます。窓から差し…グランドガーラ高輪 1202。この魅力的な物件は、まさに東京の心臓部とも言える高輪の一角に、洗練された姿を持っています。あなたがこのドアを開けると、まるで新しい物語の扉が開かれるかのような期待が膨らみます。高層1202階から眺める壮大な都市のパノラマは、朝の光に照らされて金色に輝き、日々のメロディーを奏でます。
空間に足を踏み入れると、洋室6.6帖の広がりがあなたを優しく迎え入れます。窓から差し込む柔らかな光が、そこにある家具やインテリアを温かく包み込み、心地よい安らぎを与えてくれます。この場所は、単なる住まいではなく、あなた自身の特別な舞台なのです。キッチン2.0畳は、日々の料理というアートを楽しむための理想的なキャンバス。新鮮な食材の香ばしい香りが漂う中で、あなたのクリエイティブな料理が生まれていくでしょう。
グランドガーラ高輪 1202での生活は、まるで映画のワンシーンのよう。朝の目覚めには、心地よい鳥のさえずりが耳に入ります。おいしいコーヒーの香りが漂い、あなたを優しく起こしてくれることでしょう。ここからの眺望を楽しむ時間が、心の栄養になります。観光名所や歴史的な場所が点在するこのエリアは、あなたの生活をより豊かにしてくれることでしょう。静かな高輪の街並みは、まるで時が止まったかのような落ち着きがあり、夜の灯りが一層華やかに輝きます。
24時間管理される安全な環境は、まるであなたを家族のように包み込み、安心感をもたらします。TVモニターホンやオートロック、フロントサービスなど、至れり尽くせりの設備が、日々の生活をより快適にしてくれます。宅配ボックスも完備されており、忙しいあなたをサポートしてくれることでしょう。駐輪場も近く、気軽に周辺を探索することができます。
グランドガーラ高輪 1202は、ただの住まいではなく、あなたのライフスタイルを映し出す鏡のような存在です。ここでの日々は、新しい出会いや経験の連続であり、その全てがあなたの人生を彩ることでしょう。高輪の地で、あなた自身の物語を紡ぐ準備は整っています。この素晴らしい住まいで、あなたの理想を形にし、特別な瞬間を堪能してください。ここに住むことは、まさに上質なライフスタイルを手に入れることなのです。期待に満ちた新たな生活が、あなたを待っています。
空間に足を踏み入れると、洋室6.6帖の広がりがあなたを優しく迎え入れます。窓から差し…グランドガーラ高輪 1202。この魅力的な物件は、まさに東京の心臓部とも言える高輪の一角に、洗練された姿を持っています。あなたがこのドアを開けると、まるで新しい物語の扉が開かれるかのような期待が膨らみます。高層1202階から眺める壮大な都市のパノラマは、朝の光に照らされて金色に輝き、日々のメロディーを奏でます。
空間に足を踏み入れると、洋室6.6帖の広がりがあなたを優しく迎え入れます。窓から差し込む柔らかな光が、そこにある家具やインテリアを温かく包み込み、心地よい安らぎを与えてくれます。この場所は、単なる住まいではなく、あなた自身の特別な舞台なのです。キッチン2.0畳は、日々の料理というアートを楽しむための理想的なキャンバス。新鮮な食材の香ばしい香りが漂う中で、あなたのクリエイティブな料理が生まれていくでしょう。
グランドガーラ高輪 1202での生活は、まるで映画のワンシーンのよう。朝の目覚めには、心地よい鳥のさえずりが耳に入ります。おいしいコーヒーの香りが漂い、あなたを優しく起こしてくれることでしょう。ここからの眺望を楽しむ時間が、心の栄養になります。観光名所や歴史的な場所が点在するこのエリアは、あなたの生活をより豊かにしてくれることでしょう。静かな高輪の街並みは、まるで時が止まったかのような落ち着きがあり、夜の灯りが一層華やかに輝きます。
24時間管理される安全な環境は、まるであなたを家族のように包み込み、安心感をもたらします。TVモニターホンやオートロック、フロントサービスなど、至れり尽くせりの設備が、日々の生活をより快適にしてくれます。宅配ボックスも完備されており、忙しいあなたをサポートしてくれることでしょう。駐輪場も近く、気軽に周辺を探索することができます。
グランドガーラ高輪 1202は、ただの住まいではなく、あなたのライフスタイルを映し出す鏡のような存在です。ここでの日々は、新しい出会いや経験の連続であり、その全てがあなたの人生を彩ることでしょう。高輪の地で、あなた自身の物語を紡ぐ準備は整っています。この素晴らしい住まいで、あなたの理想を形にし、特別な瞬間を堪能してください。ここに住むことは、まさに上質なライフスタイルを手に入れることなのです。期待に満ちた新たな生活が、あなたを待っています。
バイブルスコア
バイブルスコア: 30.2
平均的なスコアです。
※バイブルスコア詳細はこちら
バイブルスコアとは独自のAI機械学習技術を利用した物件評価システムで、物件のおすすめ度を示します。最高得点は100点で、スコアが高いほど、よりおすすめの物件と評価されています。
写真
契約条件
| 賃料 | 予想金額:80,000〜100,000円程度 | 管理費 | 予想金額:6,000〜10,000円程度 |
| 礼金 | 非公開(アーカイブ) | 敷金 | 非公開(アーカイブ) |
| フリーレント | なし | 平米数 | 21.66㎡ |
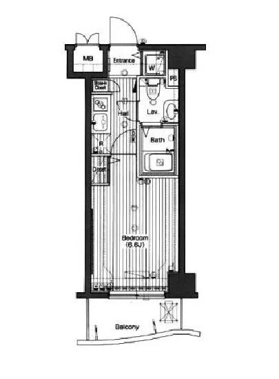
| 間取り | 1K | 大型収納 | |
| 契約期間 |
| 方角 | 東 |
| 更新料 | 契約形態 | 普通賃貸借契約 | |
| 取引態様 | 媒介 | 内見状況 | 入居中 |
| 入居時期 | 入居中 | SOHO・事務所 | |
| ペット | 間取り内訳 | 洋室6.6畳 K2.0畳 | |
| キャンペーン情報・備考 | 本情報は賃料改定交渉の資料作成、収益物件の利回り試算、周辺エリアや最寄り駅の坪単価分析、次回募集開始時期の予測などにご活用いただけます。 | ||
※「どの不動産に頼めばいいのか分からない」「信頼できる営業マンの話を聞きたい」「一番親切な会社と契約したい」とお悩みの方におすすめなのが「高級賃貸バイブル」です。
高級賃貸バイブルは業界10年以上の熟練スタッフ群がお客様ファーストで対応します。
下記ボタンから、まずは無料でご相談下さい。
※内覧をご希望の際には、どうぞ物件のエントランス前にてお待ち合わせくださいませ。ご内覧後は、同じ場所でお別れとさせていただきます。お客様のご都合に合わせたスムーズなご案内を心がけておりますので、ご質問等がございましたら何なりとお申し付けください。 物件概要
| 物件名 |
| 築年月 |
|
|---|---|---|---|
| 所在地 | |||
| 交通 | |||
| 総戸数 |
| 総階数 |
|
| 構造 |
| ||
地図
物件までの道のりは、「拡大地図を表示」をクリックしてナビ機能をご利用ください。
部屋設備











建物設備

24時間管理

TVモニターホン

エレベーター

オートロック

フロントサービス

宅配ボックス

敷地内ゴミ置場

駐輪場
グランドガーラ高輪の現在募集中のお部屋
- No rooms found for this property.






























