
| 賃料 | 予想金額:80,000〜100,000円程度 | 管理費 | 予想金額:6,000〜10,000円程度 |
| 礼金/敷金 | 非公開(アーカイブ) | 平米数 | 21.66㎡ |
| 初期費用概算(参考) | 目安:368,500〜468,500 円 | みなし賃料(月額・参考) | 94,844〜114,844 円 |
| 備考 | 本ページは過去募集のアーカイブです。表示の金額は周辺相場・過去募集を踏まえた参考レンジであり、実際の契約金額・条件ではありません。 | ||
※上記みなし賃料(月額)は仲介手数料割引・無料&キャッシュバックを加味した高級賃貸バイブル限定の金額です。一般的なみなし賃料とは異なります。
【建物ページ】グランドガーラ高輪の詳細・最新空室はこちら▶▶選ばれる理由
仲介手数料無料・キャンペーン情報(毎月15名様限定)
〇仲介手数料割引キャンペーン
グランドガーラ高輪 1101の口コミ・レビュー
グランドガーラ高輪 1101、ここはあなたの新しい物語が始まる舞台です。東京都港区高輪という恵まれたロケーションに、南東の光を浴びながら佇むこの物件は、ただの住まいではなく、洗練された生活のスタート地点となるでしょう。ビジネスも、プライベートも、全てがここから始まる、そんな期待感に包まれた空間なのです。
エントランスを一歩踏み出すと、フロントサービスの心地よい笑顔が出迎えます。その瞬間、あなたは…グランドガーラ高輪 1101、ここはあなたの新しい物語が始まる舞台です。東京都港区高輪という恵まれたロケーションに、南東の光を浴びながら佇むこの物件は、ただの住まいではなく、洗練された生活のスタート地点となるでしょう。ビジネスも、プライベートも、全てがここから始まる、そんな期待感に包まれた空間なのです。
エントランスを一歩踏み出すと、フロントサービスの心地よい笑顔が出迎えます。その瞬間、あなたは特別な存在であることを感じられるでしょう。グランドガーラ高輪 1101は、まるで一流のホテルに身を置いているかのような贅沢さを提供してくれます。常に見守られている安心感は、忙しい日常の中でかけがえのないオアシスとなり、ストレスを洗い流してくれることでしょう。
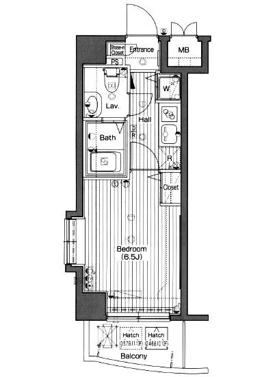
入室すると、洋室6.5帖の広々とした空間が、あなたの感覚を優しく包み込みます。柔らかな光が窓を通り抜け、ふわりとしたカーテンがその光を受け止め、舞い踊る様子はまるで初夏の風のよう。歩けば、畳の感触が心地よく、素足での触れ合いが一段と心を和ませてくれます。そして、K2.0帖のキッチンは、料理に込める情熱を掻き立てる理想的なサイズです。ちょっとした朝食を楽しむためのスペースとして、または友人を招いてのディナーの準備にはぴったり。美味しい匂いが漂い、心が躍るひとときを約束してくれることでしょう。
都営地下鉄浅草線 泉岳寺駅からわずか徒歩1分の距離にあり、日々の忙しさや喧騒からも解放されながら、都心の利便性を享受できる贅沢。慌ただしい朝でも、駅までの優雅な散歩が、まるで映画のワンシーンのように思えるはず。高輪の街並みは、静謐さと華やかさを兼ね備え、贅沢なライフスタイルを志向するあなたに、歴史と文化の香りを添えてくれます。
グランドガーラ高輪 1101は、ただの住まいではなく、一つの心の拠り所です。夜には、静かな時の流れに身を任せ、心地よい静寂に包まれながら、本を手に取って過ごす贅沢も。家族や友人と一緒に過ごす時間は、ほっとする瞬間を与えてくれるでしょう。あなたの生活が、洗練された美しさと、心の豊かさで彩られることを、グランドガーラ高輪 1101は約束してくれています。この場所で、あなた自身のストーリーを紡いでみませんか。新たな生活の幕開けを、この特別な空間で迎えてはいかがでしょうか。
エントランスを一歩踏み出すと、フロントサービスの心地よい笑顔が出迎えます。その瞬間、あなたは…グランドガーラ高輪 1101、ここはあなたの新しい物語が始まる舞台です。東京都港区高輪という恵まれたロケーションに、南東の光を浴びながら佇むこの物件は、ただの住まいではなく、洗練された生活のスタート地点となるでしょう。ビジネスも、プライベートも、全てがここから始まる、そんな期待感に包まれた空間なのです。
エントランスを一歩踏み出すと、フロントサービスの心地よい笑顔が出迎えます。その瞬間、あなたは特別な存在であることを感じられるでしょう。グランドガーラ高輪 1101は、まるで一流のホテルに身を置いているかのような贅沢さを提供してくれます。常に見守られている安心感は、忙しい日常の中でかけがえのないオアシスとなり、ストレスを洗い流してくれることでしょう。
入室すると、洋室6.5帖の広々とした空間が、あなたの感覚を優しく包み込みます。柔らかな光が窓を通り抜け、ふわりとしたカーテンがその光を受け止め、舞い踊る様子はまるで初夏の風のよう。歩けば、畳の感触が心地よく、素足での触れ合いが一段と心を和ませてくれます。そして、K2.0帖のキッチンは、料理に込める情熱を掻き立てる理想的なサイズです。ちょっとした朝食を楽しむためのスペースとして、または友人を招いてのディナーの準備にはぴったり。美味しい匂いが漂い、心が躍るひとときを約束してくれることでしょう。
都営地下鉄浅草線 泉岳寺駅からわずか徒歩1分の距離にあり、日々の忙しさや喧騒からも解放されながら、都心の利便性を享受できる贅沢。慌ただしい朝でも、駅までの優雅な散歩が、まるで映画のワンシーンのように思えるはず。高輪の街並みは、静謐さと華やかさを兼ね備え、贅沢なライフスタイルを志向するあなたに、歴史と文化の香りを添えてくれます。
グランドガーラ高輪 1101は、ただの住まいではなく、一つの心の拠り所です。夜には、静かな時の流れに身を任せ、心地よい静寂に包まれながら、本を手に取って過ごす贅沢も。家族や友人と一緒に過ごす時間は、ほっとする瞬間を与えてくれるでしょう。あなたの生活が、洗練された美しさと、心の豊かさで彩られることを、グランドガーラ高輪 1101は約束してくれています。この場所で、あなた自身のストーリーを紡いでみませんか。新たな生活の幕開けを、この特別な空間で迎えてはいかがでしょうか。
バイブルスコア
バイブルスコア: 30.2
平均的なスコアです。
※バイブルスコア詳細はこちら
バイブルスコアとは独自のAI機械学習技術を利用した物件評価システムで、物件のおすすめ度を示します。最高得点は100点で、スコアが高いほど、よりおすすめの物件と評価されています。
写真
契約条件
| 賃料 | 予想金額:80,000〜100,000円程度 | 管理費 | 予想金額:6,000〜10,000円程度 |
| 礼金 | 非公開(アーカイブ) | 敷金 | 非公開(アーカイブ) |
| フリーレント | なし | 平米数 | 21.66㎡ |
| 間取り | 1K | 大型収納 | |
| 契約期間 |
| 方角 | 南東 |
| 更新料 | 契約形態 | 普通賃貸借契約 | |
| 取引態様 | 媒介 | 内見状況 | 入居中 |
| 入居時期 | 入居中 | SOHO・事務所 | |
| ペット | 間取り内訳 | 洋室6.5畳 K2.0畳 | |
| キャンペーン情報・備考 | 本情報は賃料改定交渉の資料作成、収益物件の利回り試算、周辺エリアや最寄り駅の坪単価分析、次回募集開始時期の予測などにご活用いただけます。 | ||
※「どの不動産に頼めばいいのか分からない」「信頼できる営業マンの話を聞きたい」「一番親切な会社と契約したい」とお悩みの方におすすめなのが「高級賃貸バイブル」です。
高級賃貸バイブルは業界10年以上の熟練スタッフ群がお客様ファーストで対応します。
下記ボタンから、まずは無料でご相談下さい。
※内覧をご希望の際には、どうぞ物件のエントランス前にてお待ち合わせくださいませ。ご内覧後は、同じ場所でお別れとさせていただきます。お客様のご都合に合わせたスムーズなご案内を心がけておりますので、ご質問等がございましたら何なりとお申し付けください。 物件概要
| 物件名 |
| 築年月 |
|
|---|---|---|---|
| 所在地 | |||
| 交通 | |||
| 総戸数 |
| 総階数 |
|
| 構造 |
| ||
地図
物件までの道のりは、「拡大地図を表示」をクリックしてナビ機能をご利用ください。
部屋設備













建物設備

24時間管理

TVモニターホン

エレベーター

オートロック

フロントサービス

宅配ボックス

敷地内ゴミ置場

駐輪場
グランドガーラ高輪の現在募集中のお部屋
- No rooms found for this property.






























