
| 賃料 | 予想金額:125,000〜145,000円程度 | 管理費 | 予想金額:5,000〜9,000円程度 |
| 礼金/敷金 | 非公開(アーカイブ) | 平米数 | 30.74㎡ |
| 初期費用概算(参考) | 目安:524,500〜624,500 円 | みなし賃料(月額・参考) | 141,156〜161,156 円 |
| 備考 | 本ページは過去募集のアーカイブです。表示の金額は周辺相場・過去募集を踏まえた参考レンジであり、実際の契約金額・条件ではありません。 | ||
※上記みなし賃料(月額)は仲介手数料割引・無料&キャッシュバックを加味した高級賃貸バイブル限定の金額です。一般的なみなし賃料とは異なります。
【建物ページ】イニシア新宿早稲田の詳細・最新空室はこちら▶▶選ばれる理由
仲介手数料無料・キャンペーン情報(毎月15名様限定)
〇仲介手数料割引キャンペーン
イニシア新宿早稲田 11階 30.74㎡の口コミ・レビュー
イニシア新宿早稲田 11階 30.74㎡、それはまるで、都会の喧騒の中で静寂を求める貴方に捧げられたオアシスのような場所。新宿区西早稲田の高層の隙間から顔を出すこの洗練された物件は、日々の忙しさを忘れさせてくれる特別な空間です。南東と南西の窓からは、柔らかな朝日と心地よい夕日が舞い込んできます。太陽の光に包まれた室内は、まるで自然が作り出す美術館のように、貴方の感性を刺激してくれることでしょう。
…イニシア新宿早稲田 11階 30.74㎡、それはまるで、都会の喧騒の中で静寂を求める貴方に捧げられたオアシスのような場所。新宿区西早稲田の高層の隙間から顔を出すこの洗練された物件は、日々の忙しさを忘れさせてくれる特別な空間です。南東と南西の窓からは、柔らかな朝日と心地よい夕日が舞い込んできます。太陽の光に包まれた室内は、まるで自然が作り出す美術館のように、貴方の感性を刺激してくれることでしょう。
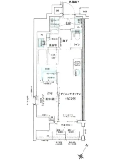
イニシア新宿早稲田 11階 30.74㎡の中に足を踏み入れた瞬間、空気が変わります。心地よい温もりが続く床を素足で感じながら、まるでこの空間が貴方を迎え入れてくれるようです。リビングの広さを感じるには、ゆったりとした姿勢で、心を解き放つための時間を設けるのが理想。DK7.2帖のスペースでは、夢中になれる料理に挑戦することができ、香ばしい香りが立ち込め、五感が全て目覚める瞬間を体験されることでしょう。3.4帖の洋室は、厳選されたインテリアの選択肢を持つ貴方にとって、自分だけの隠れ家となるに違いありません。
駅からのアクセスは、東京メトロ東西線 早稲田駅へわずか5分。早稲田の文化や歴史が息づくこの場所は、まるで大作家が描く物語の舞台のよう。周囲には、知恵と優雅さが共存する街並みが広がり、散歩するだけでも新たな発見が待っているのです。歴史ある早稲田大学の近くを歩くと、学びの喜びや創造の可能性に満ちた気配を感じることでしょう。
生活するあかつきには、無邪気な笑い声や楽しい会話が溢れ、イニシア新宿早稲田 11階 30.74㎡は、貴方の人生の舞台となります。オートロックや宅配ボックスといった便利な設備が、貴方の生活を一層快適にしてくれます。毎日を特別にするための小道具のように、それぞれの設備があなたに寄り添い、ストレスのない日々を実現させるのです。
イニシア新宿早稲田 11階 30.74㎡は、ただの住居ではありません。ここでの生活は、一つのアート作品が日々少しずつ形を変えていくように、貴方の人生をより豊かにし、彩りを添えていくことでしょう。新たな物語の始まりは、まさにこの場所から。貴方自身の手で、この空間に色を加え、心の底から満たされる生活を築いていくことができるのです。日々感じる小さな幸せを、この特別な場所で是非体験してみてください。
…イニシア新宿早稲田 11階 30.74㎡、それはまるで、都会の喧騒の中で静寂を求める貴方に捧げられたオアシスのような場所。新宿区西早稲田の高層の隙間から顔を出すこの洗練された物件は、日々の忙しさを忘れさせてくれる特別な空間です。南東と南西の窓からは、柔らかな朝日と心地よい夕日が舞い込んできます。太陽の光に包まれた室内は、まるで自然が作り出す美術館のように、貴方の感性を刺激してくれることでしょう。
イニシア新宿早稲田 11階 30.74㎡の中に足を踏み入れた瞬間、空気が変わります。心地よい温もりが続く床を素足で感じながら、まるでこの空間が貴方を迎え入れてくれるようです。リビングの広さを感じるには、ゆったりとした姿勢で、心を解き放つための時間を設けるのが理想。DK7.2帖のスペースでは、夢中になれる料理に挑戦することができ、香ばしい香りが立ち込め、五感が全て目覚める瞬間を体験されることでしょう。3.4帖の洋室は、厳選されたインテリアの選択肢を持つ貴方にとって、自分だけの隠れ家となるに違いありません。
駅からのアクセスは、東京メトロ東西線 早稲田駅へわずか5分。早稲田の文化や歴史が息づくこの場所は、まるで大作家が描く物語の舞台のよう。周囲には、知恵と優雅さが共存する街並みが広がり、散歩するだけでも新たな発見が待っているのです。歴史ある早稲田大学の近くを歩くと、学びの喜びや創造の可能性に満ちた気配を感じることでしょう。
生活するあかつきには、無邪気な笑い声や楽しい会話が溢れ、イニシア新宿早稲田 11階 30.74㎡は、貴方の人生の舞台となります。オートロックや宅配ボックスといった便利な設備が、貴方の生活を一層快適にしてくれます。毎日を特別にするための小道具のように、それぞれの設備があなたに寄り添い、ストレスのない日々を実現させるのです。
イニシア新宿早稲田 11階 30.74㎡は、ただの住居ではありません。ここでの生活は、一つのアート作品が日々少しずつ形を変えていくように、貴方の人生をより豊かにし、彩りを添えていくことでしょう。新たな物語の始まりは、まさにこの場所から。貴方自身の手で、この空間に色を加え、心の底から満たされる生活を築いていくことができるのです。日々感じる小さな幸せを、この特別な場所で是非体験してみてください。
バイブルスコア
バイブルスコア: 20.4
平均的なスコアです。
※バイブルスコア詳細はこちら
バイブルスコアとは独自のAI機械学習技術を利用した物件評価システムで、物件のおすすめ度を示します。最高得点は100点で、スコアが高いほど、よりおすすめの物件と評価されています。
写真
契約条件
| 賃料 | 予想金額:125,000〜145,000円程度 | 管理費 | 予想金額:5,000〜9,000円程度 |
| 礼金 | 非公開(アーカイブ) | 敷金 | 非公開(アーカイブ) |
| フリーレント | なし | 平米数 | 30.74㎡ |
| 間取り | 1DK | 大型収納 | WIC+SIC |
| 契約期間 |
| 方角 | 南東 / 南西 |
| 更新料 | 契約形態 | 普通賃貸借契約 | |
| 取引態様 | 媒介 | 内見状況 | 入居中 |
| 入居時期 | 入居中 | SOHO・事務所 | |
| ペット | 間取り内訳 | 洋:3.4 DK:7.2 | |
| キャンペーン情報・備考 | 本情報は賃料改定交渉の資料作成、収益物件の利回り試算、周辺エリアや最寄り駅の坪単価分析、次回募集開始時期の予測などにご活用いただけます。 | ||
※「どの不動産に頼めばいいのか分からない」「信頼できる営業マンの話を聞きたい」「一番親切な会社と契約したい」とお悩みの方におすすめなのが「高級賃貸バイブル」です。
高級賃貸バイブルは業界10年以上の熟練スタッフ群がお客様ファーストで対応します。
下記ボタンから、まずは無料でご相談下さい。
※内覧をご希望の際には、どうぞ物件のエントランス前にてお待ち合わせくださいませ。ご内覧後は、同じ場所でお別れとさせていただきます。お客様のご都合に合わせたスムーズなご案内を心がけておりますので、ご質問等がございましたら何なりとお申し付けください。 物件概要
| 物件名 |
| 築年月 |
|
|---|---|---|---|
| 所在地 | |||
| 交通 | |||
| 総戸数 |
| 総階数 |
|
| 構造 |
| ||
地図
物件までの道のりは、「拡大地図を表示」をクリックしてナビ機能をご利用ください。
部屋設備


















建物設備

TVモニターホン

エレベーター

オートロック

宅配ボックス

敷地内ゴミ置場

管理人

駐輪場
イニシア新宿早稲田の現在募集中のお部屋
- No rooms found for this property.




















