
| 賃料 | 予想金額:110,000〜130,000円程度 | 管理費 | 予想金額:0〜2,000円程度 |
| 礼金/敷金 | 非公開(アーカイブ) | 平米数 | 27.82㎡ |
| 初期費用概算(参考) | 目安:461,500〜561,500 円 | みなし賃料(月額・参考) | 118,156〜138,156 円 |
| 備考 | 本ページは過去募集のアーカイブです。表示の金額は周辺相場・過去募集を踏まえた参考レンジであり、実際の契約金額・条件ではありません。 | ||
※上記みなし賃料(月額)は仲介手数料割引・無料&キャッシュバックを加味した高級賃貸バイブル限定の金額です。一般的なみなし賃料とは異なります。
【建物ページ】エフィーナ南麻布の詳細・最新空室はこちら▶▶選ばれる理由
仲介手数料無料・キャンペーン情報(毎月15名様限定)
〇仲介手数料割引キャンペーン
エフィーナ南麻布 502の口コミ・レビュー
エフィーナ南麻布 502。この美しい名前の響きに、あなたはどんな物語を思い描くでしょうか。都会の喧騒から少し距離を置き、洗練された生活を求めるあなたにこそ、私が声をかける理由があります。この物件は、まるであなたを待ちかねたかのように、自らの魅力を惜しみなく披露するのです。
502という番号は、まるで秘められた宝物のように響きます。27.82㎡の広がりを持つこの部屋には、洗練されたデザインが施され…エフィーナ南麻布 502。この美しい名前の響きに、あなたはどんな物語を思い描くでしょうか。都会の喧騒から少し距離を置き、洗練された生活を求めるあなたにこそ、私が声をかける理由があります。この物件は、まるであなたを待ちかねたかのように、自らの魅力を惜しみなく披露するのです。
502という番号は、まるで秘められた宝物のように響きます。27.82㎡の広がりを持つこの部屋には、洗練されたデザインが施され、南向きの窓からは温かな光がこぼれ、心地よい風がうなりを上げるように流れ込んできます。あなたがここで目覚めると、朝日はフィルムのように柔らかく、目を覚ますために必要なエネルギーを注ぎ込んでくれることでしょう。洋室8.0帖の広さは、思い思いの空間を創造するためのキャンバスです。どんな家具を配置しようか、どんなアートを飾ろうか、無限の可能性があなたを待っているのです。
エフィーナ南麻布 502は、まるで一流のシェフが丹精込めて作る料理の如く、細部にまでこだわりが息づいています。TVモニターホンは、あなたの安心を守る忠実な番人。オートロックの扉は、外界とのバリアを作り出し、あなたという特別な存在を引き立てます。宅配ボックスは、便利さとセキュリティの融合、まるで親しい友人がいつでも荷物を届けてくれるかのような存在感を持っています。
この場所に住むことは、ただの賃貸契約に留まるものではありません。これは、南麻布という歴史深い地域の中心で、あなた自身の物語が始まることを意味しています。周辺には、伝統と現代が交錯するアートの香りが漂い、歴史的な建築物や美術館があなたを迎え入れてくれます。麻布十番駅から徒歩7分というアクセスは、まるで都心の喧騒から静かな港へ向かう航路を航海するかのように心躍る旅を提供してくれます。
夜が訪れると、エフィーナ南麻布 502は再びあなたに語りかけます。賑やかな街の灯りが窓を通して漏れ込み、まるで特別なパーティーに招待されているかのようです。あなたは、カップルでのディナーデートや、親しい友人との語らいを楽しむためにこの暖かい空間を思う存分活用することができます。手にしたワインを口に運ぶと、その香りが五感を刺激し、幸せな瞬間が広がっていくことでしょう。
エフィーナ南麻布 502は、ただの物件でなく、あなたの人生の舞台となるのです。心地よい生活の一ページを、ここで書き始めてみませんか。あなたの毎日が、映画のワンシーンのように輝くことを、私は心から願っています。
502という番号は、まるで秘められた宝物のように響きます。27.82㎡の広がりを持つこの部屋には、洗練されたデザインが施され…エフィーナ南麻布 502。この美しい名前の響きに、あなたはどんな物語を思い描くでしょうか。都会の喧騒から少し距離を置き、洗練された生活を求めるあなたにこそ、私が声をかける理由があります。この物件は、まるであなたを待ちかねたかのように、自らの魅力を惜しみなく披露するのです。
502という番号は、まるで秘められた宝物のように響きます。27.82㎡の広がりを持つこの部屋には、洗練されたデザインが施され、南向きの窓からは温かな光がこぼれ、心地よい風がうなりを上げるように流れ込んできます。あなたがここで目覚めると、朝日はフィルムのように柔らかく、目を覚ますために必要なエネルギーを注ぎ込んでくれることでしょう。洋室8.0帖の広さは、思い思いの空間を創造するためのキャンバスです。どんな家具を配置しようか、どんなアートを飾ろうか、無限の可能性があなたを待っているのです。
エフィーナ南麻布 502は、まるで一流のシェフが丹精込めて作る料理の如く、細部にまでこだわりが息づいています。TVモニターホンは、あなたの安心を守る忠実な番人。オートロックの扉は、外界とのバリアを作り出し、あなたという特別な存在を引き立てます。宅配ボックスは、便利さとセキュリティの融合、まるで親しい友人がいつでも荷物を届けてくれるかのような存在感を持っています。
この場所に住むことは、ただの賃貸契約に留まるものではありません。これは、南麻布という歴史深い地域の中心で、あなた自身の物語が始まることを意味しています。周辺には、伝統と現代が交錯するアートの香りが漂い、歴史的な建築物や美術館があなたを迎え入れてくれます。麻布十番駅から徒歩7分というアクセスは、まるで都心の喧騒から静かな港へ向かう航路を航海するかのように心躍る旅を提供してくれます。
夜が訪れると、エフィーナ南麻布 502は再びあなたに語りかけます。賑やかな街の灯りが窓を通して漏れ込み、まるで特別なパーティーに招待されているかのようです。あなたは、カップルでのディナーデートや、親しい友人との語らいを楽しむためにこの暖かい空間を思う存分活用することができます。手にしたワインを口に運ぶと、その香りが五感を刺激し、幸せな瞬間が広がっていくことでしょう。
エフィーナ南麻布 502は、ただの物件でなく、あなたの人生の舞台となるのです。心地よい生活の一ページを、ここで書き始めてみませんか。あなたの毎日が、映画のワンシーンのように輝くことを、私は心から願っています。
バイブルスコア
バイブルスコア: 24.6
平均的なスコアです。
※バイブルスコア詳細はこちら
バイブルスコアとは独自のAI機械学習技術を利用した物件評価システムで、物件のおすすめ度を示します。最高得点は100点で、スコアが高いほど、よりおすすめの物件と評価されています。
写真
契約条件
| 賃料 | 予想金額:110,000〜130,000円程度 | 管理費 | 予想金額:0〜2,000円程度 |
| 礼金 | 非公開(アーカイブ) | 敷金 | 非公開(アーカイブ) |
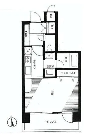
| フリーレント | なし | 平米数 | 27.82㎡ |
| 間取り | 1R | 大型収納 | |
| 契約期間 |
| 方角 | 南 |
| 更新料 | 契約形態 | 普通賃貸借契約 | |
| 取引態様 | 媒介 | 内見状況 | 入居中 |
| 入居時期 | 入居中 | SOHO・事務所 | |
| ペット | 間取り内訳 | 洋室8.0 | |
| キャンペーン情報・備考 | 本情報は賃料改定交渉の資料作成、収益物件の利回り試算、周辺エリアや最寄り駅の坪単価分析、次回募集開始時期の予測などにご活用いただけます。 | ||
※「どの不動産に頼めばいいのか分からない」「信頼できる営業マンの話を聞きたい」「一番親切な会社と契約したい」とお悩みの方におすすめなのが「高級賃貸バイブル」です。
高級賃貸バイブルは業界10年以上の熟練スタッフ群がお客様ファーストで対応します。
下記ボタンから、まずは無料でご相談下さい。
※内覧をご希望の際には、どうぞ物件のエントランス前にてお待ち合わせくださいませ。ご内覧後は、同じ場所でお別れとさせていただきます。お客様のご都合に合わせたスムーズなご案内を心がけておりますので、ご質問等がございましたら何なりとお申し付けください。 物件概要
| 物件名 |
| 築年月 |
|
|---|---|---|---|
| 所在地 | |||
| 交通 | |||
| 総戸数 |
| 総階数 |
|
| 構造 |
| ||
地図
物件までの道のりは、「拡大地図を表示」をクリックしてナビ機能をご利用ください。
部屋設備

















建物設備

TVモニターホン

エレベーター

オートロック

宅配ボックス

敷地内ゴミ置場

駐輪場
エフィーナ南麻布の現在募集中のお部屋
- No rooms found for this property.



















