
| 賃料 | 予想金額:130,000〜150,000円程度 | 管理費 | 予想金額:8,000〜12,000円程度 |
| 礼金/敷金 | 非公開(アーカイブ) | 平米数 | 27.75㎡ |
| 初期費用概算(参考) | 目安:266,500〜366,500 円 | みなし賃料(月額・参考) | 143,677〜163,677 円 |
| 備考 | 本ページは過去募集のアーカイブです。表示の金額は周辺相場・過去募集を踏まえた参考レンジであり、実際の契約金額・条件ではありません。 | ||
※上記みなし賃料(月額)は仲介手数料割引・無料&キャッシュバックを加味した高級賃貸バイブル限定の金額です。一般的なみなし賃料とは異なります。
【建物ページ】サージュ赤坂の詳細・最新空室はこちら▶▶選ばれる理由
仲介手数料無料・キャンペーン情報(毎月15名様限定)
〇仲介手数料割引キャンペーン
サージュ赤坂 302の口コミ・レビュー
サージュ赤坂 302。この美しい名前は、洗練された空間での新たな生活の始まりを告げる優雅な響きです。赤坂という活気あふれる街の中心に位置し、南西の窓からは、日々の忙しさを忘れさせる穏やかな光が柔らかく差し込んできます。あなたがこの扉を開けると、27.75㎡の空間はまるで穏やかな海のように広がり、心地よい波の音が聞こえるかのようです。
サージュ赤坂 302は、ひとつのアートのようにあなたを迎え入れ…サージュ赤坂 302。この美しい名前は、洗練された空間での新たな生活の始まりを告げる優雅な響きです。赤坂という活気あふれる街の中心に位置し、南西の窓からは、日々の忙しさを忘れさせる穏やかな光が柔らかく差し込んできます。あなたがこの扉を開けると、27.75㎡の空間はまるで穏やかな海のように広がり、心地よい波の音が聞こえるかのようです。
サージュ赤坂 302は、ひとつのアートのようにあなたを迎え入れます。陽の光が床を照らし、思わず踊り出したくなるようなリズムを生み出します。5.0帖の洋室は、あなたの想像力をかき立てる白いキャンバス。柔らかなカーテンの揺らめきが風の歌となり、心に安らぎを届けます。そして5.6帖のダイニングキッチンは、家族や友人との心温まる会話を引き出す、まるで美味しい料理の香りが漂う温もりある場所。ここで過ごす時間は、まるで映画のワンシーンのように、笑顔と共に心に刻まれていくでしょう。
サージュ赤坂 302には、最新の設備が整い、生活はただのルーチンではなく、毎日が特別な経験へと変わります。TVモニターホンによる安心感は、まるで親しい友人を迎え入れるような暖かさです。エレベーターでの優雅な移動、オートロックのセキュリティ、宅配ボックスの便利さは、あなたの生活をより快適に、そして豊かに彩ります。
周辺には、赤坂の歴史が息づく美しい街並みや、文化を育むアートスペースが点在しており、あなたの日常はまるで一枚の絵のように色彩豊かになります。その場所では、季節ごとの風物詩を感じることができ、アートや音楽が常にあなたを包み込んでくれるでしょう。歴史と現代が交差する赤坂の街で、サージュ赤坂 302はあなたの新たな拠点となり、華やかな生活を提供することでしょう。
目を閉じて、この場所での朝を想像してみてください。朝日が優しく部屋を照らし、そよ風がカーテンを揺らし、あなたの心を優雅に目覚めさせます。香ばしいコーヒーの香りと共に、窓の外には活気あふれる街の様子が広がり、どこか懐かしさを感じる音が耳に届きます。サージュ赤坂 302は、あなたの人生をより豊かに、そして美しく彩るための最高のステージです。この場所で、ぜひ新しい物語を紡いでみてはいかがでしょうか。
サージュ赤坂 302は、ひとつのアートのようにあなたを迎え入れ…サージュ赤坂 302。この美しい名前は、洗練された空間での新たな生活の始まりを告げる優雅な響きです。赤坂という活気あふれる街の中心に位置し、南西の窓からは、日々の忙しさを忘れさせる穏やかな光が柔らかく差し込んできます。あなたがこの扉を開けると、27.75㎡の空間はまるで穏やかな海のように広がり、心地よい波の音が聞こえるかのようです。
サージュ赤坂 302は、ひとつのアートのようにあなたを迎え入れます。陽の光が床を照らし、思わず踊り出したくなるようなリズムを生み出します。5.0帖の洋室は、あなたの想像力をかき立てる白いキャンバス。柔らかなカーテンの揺らめきが風の歌となり、心に安らぎを届けます。そして5.6帖のダイニングキッチンは、家族や友人との心温まる会話を引き出す、まるで美味しい料理の香りが漂う温もりある場所。ここで過ごす時間は、まるで映画のワンシーンのように、笑顔と共に心に刻まれていくでしょう。
サージュ赤坂 302には、最新の設備が整い、生活はただのルーチンではなく、毎日が特別な経験へと変わります。TVモニターホンによる安心感は、まるで親しい友人を迎え入れるような暖かさです。エレベーターでの優雅な移動、オートロックのセキュリティ、宅配ボックスの便利さは、あなたの生活をより快適に、そして豊かに彩ります。
周辺には、赤坂の歴史が息づく美しい街並みや、文化を育むアートスペースが点在しており、あなたの日常はまるで一枚の絵のように色彩豊かになります。その場所では、季節ごとの風物詩を感じることができ、アートや音楽が常にあなたを包み込んでくれるでしょう。歴史と現代が交差する赤坂の街で、サージュ赤坂 302はあなたの新たな拠点となり、華やかな生活を提供することでしょう。
目を閉じて、この場所での朝を想像してみてください。朝日が優しく部屋を照らし、そよ風がカーテンを揺らし、あなたの心を優雅に目覚めさせます。香ばしいコーヒーの香りと共に、窓の外には活気あふれる街の様子が広がり、どこか懐かしさを感じる音が耳に届きます。サージュ赤坂 302は、あなたの人生をより豊かに、そして美しく彩るための最高のステージです。この場所で、ぜひ新しい物語を紡いでみてはいかがでしょうか。
バイブルスコア
バイブルスコア: 15.4
高級な物件でない場合は割高な物件です。。
※バイブルスコア詳細はこちら
バイブルスコアとは独自のAI機械学習技術を利用した物件評価システムで、物件のおすすめ度を示します。最高得点は100点で、スコアが高いほど、よりおすすめの物件と評価されています。
写真
契約条件
| 賃料 | 予想金額:130,000〜150,000円程度 | 管理費 | 予想金額:8,000〜12,000円程度 |
| 礼金 | 非公開(アーカイブ) | 敷金 | 非公開(アーカイブ) |
| フリーレント | なし | 平米数 | 27.75㎡ |
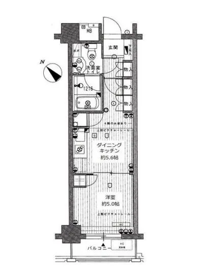
| 間取り | 1DK | 大型収納 | |
| 契約期間 |
| 方角 | 南西 |
| 更新料 | 契約形態 | 普通賃貸借契約 | |
| 取引態様 | 媒介 | 内見状況 | 入居中 |
| 入居時期 | 入居中 | SOHO・事務所 | |
| ペット | ペット可 | 間取り内訳 | 洋:5.0 DK:5.6 |
| キャンペーン情報・備考 | 本情報は賃料改定交渉の資料作成、収益物件の利回り試算、周辺エリアや最寄り駅の坪単価分析、次回募集開始時期の予測などにご活用いただけます。 | ||
※「どの不動産に頼めばいいのか分からない」「信頼できる営業マンの話を聞きたい」「一番親切な会社と契約したい」とお悩みの方におすすめなのが「高級賃貸バイブル」です。
高級賃貸バイブルは業界10年以上の熟練スタッフ群がお客様ファーストで対応します。
下記ボタンから、まずは無料でご相談下さい。
※内覧をご希望の際には、どうぞ物件のエントランス前にてお待ち合わせくださいませ。ご内覧後は、同じ場所でお別れとさせていただきます。お客様のご都合に合わせたスムーズなご案内を心がけておりますので、ご質問等がございましたら何なりとお申し付けください。 物件概要
| 物件名 |
| 築年月 |
|
|---|---|---|---|
| 所在地 | |||
| 交通 | |||
| 総戸数 |
| 総階数 |
|
| 構造 |
| ||
地図
物件までの道のりは、「拡大地図を表示」をクリックしてナビ機能をご利用ください。
部屋設備
















建物設備

TVモニターホン

エレベーター

オートロック

宅配ボックス

敷地内ゴミ置場

駐輪場
サージュ赤坂の現在募集中のお部屋
- サージュ赤坂 4階 27.86㎡ - 間取り: 1DK - 賃料: 14.3万円







