
| 賃料 | 予想金額:178,000〜198,000円程度 | 管理費 | 予想金額:10,000〜14,000円程度 |
| 礼金/敷金 | 非公開(アーカイブ) | 平米数 | 53.86㎡ |
| 初期費用概算(参考) | 目安:717,500〜817,500 円 | みなし賃料(月額・参考) | 202,073〜222,073 円 |
| 備考 | 本ページは過去募集のアーカイブです。表示の金額は周辺相場・過去募集を踏まえた参考レンジであり、実際の契約金額・条件ではありません。 | ||
※上記みなし賃料(月額)は仲介手数料割引・無料&キャッシュバックを加味した高級賃貸バイブル限定の金額です。一般的なみなし賃料とは異なります。
【建物ページ】パレステージ秋葉原の詳細・最新空室はこちら▶▶選ばれる理由
仲介手数料無料・キャンペーン情報(毎月15名様限定)
〇仲介手数料割引キャンペーン
パレステージ秋葉原 701の口コミ・レビュー
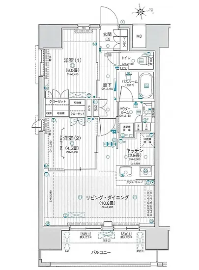
パレステージ秋葉原 701は、まるで都会の真ん中に佇む宝石のように光り輝く高級賃貸物件です。この特別な701号室には、53.86㎡の贅沢なスペースが広がっており、ここでの生活はまるで映画のワンシーンに引き込まれるかのような魅力に満ちています。2LDKの間取りは、まるで夢の中の森のように密やかな安らぎを与え、日々の喧騒から解放される場所を提供しています。
まず、リビングダイニングは10.6帖の広さ…パレステージ秋葉原 701は、まるで都会の真ん中に佇む宝石のように光り輝く高級賃貸物件です。この特別な701号室には、53.86㎡の贅沢なスペースが広がっており、ここでの生活はまるで映画のワンシーンに引き込まれるかのような魅力に満ちています。2LDKの間取りは、まるで夢の中の森のように密やかな安らぎを与え、日々の喧騒から解放される場所を提供しています。
まず、リビングダイニングは10.6帖の広さを誇り、朝日が優しく差し込む東向きの窓からは、日の出の輝きがやわらかく広がります。この瞬間、あなたは目覚めたばかりの朝に、ほんのりと甘酸っぱい空気を吸い込むことでしょう。その香りは、静けさと共に漂うコーヒーの香ばしさと相まって、心地よいひとときを演出します。家族や友人と囲む食卓には、あなたが心を込めて用意した料理が並び、笑い声が響き渡ります。
次に、キッチンは2.5帖のコンパクトな空間ながら、無限の創造性を引き出す舞台です。ここで新鮮な食材を手にし、センス溢れる料理を作り出すたびに、あなたの心の中にあるシェフの魂が目覚めることでしょう。軽やかな動きで包丁を振るい、食材の香りが漂う中、味覚の冒険の始まりを感じます。
二つのベッドルームは、6帖と4.5帖の絶妙なバランスで配置されています。プライベートな空間では、心が安らぎ、充電の時間を持つことができるのです。特に6帖の部屋は、まるで自分だけの図書館のようにお気に入りの本に囲まれ、静かなひと時を楽しむことができます。外の喧騒を忘れ、ページをめくる音がここでは新しい世界を開いてくれるのです。
パレステージ秋葉原 701は、ただの住まい以上の存在です。あなたの暮らしが美術館のように彩られ、洗練されたインテリアが日常を豊かにします。管理人が見守る安心感の中、オートロックによって守られたこの空間で、心地よい暮らしが待っています。バイク置場や駐輪場も完備されており、アクティブなライフスタイルを支えてくれることでしょう。
周囲には文化と歴史が息づいています。東京メトロ日比谷線 仲御徒町駅から徒歩9分の距離にあるこの物件からは、都心の便利さを手にしながら、歴史的な名所やアートスポットに容易にアクセスできるのです。四季を通じて彩られる街並みの変化を楽しみながら、あなたの新たな物語をここに刻んでいくことができるでしょう。
パレステージ秋葉原 701は、単なる住まいを超え、一人一人のライフスタイルに寄り添う“相棒”のような存在です。住むあなたを待ち受けているのは、静かな美しさに包まれた日常。ぜひ、心に刻む新しい旅路の始まりとして、この素晴らしい空間に足を踏み入れてみてください。あなたが主役となるストーリーが、ここで展開されることを心より願っています。
まず、リビングダイニングは10.6帖の広さ…パレステージ秋葉原 701は、まるで都会の真ん中に佇む宝石のように光り輝く高級賃貸物件です。この特別な701号室には、53.86㎡の贅沢なスペースが広がっており、ここでの生活はまるで映画のワンシーンに引き込まれるかのような魅力に満ちています。2LDKの間取りは、まるで夢の中の森のように密やかな安らぎを与え、日々の喧騒から解放される場所を提供しています。
まず、リビングダイニングは10.6帖の広さを誇り、朝日が優しく差し込む東向きの窓からは、日の出の輝きがやわらかく広がります。この瞬間、あなたは目覚めたばかりの朝に、ほんのりと甘酸っぱい空気を吸い込むことでしょう。その香りは、静けさと共に漂うコーヒーの香ばしさと相まって、心地よいひとときを演出します。家族や友人と囲む食卓には、あなたが心を込めて用意した料理が並び、笑い声が響き渡ります。
次に、キッチンは2.5帖のコンパクトな空間ながら、無限の創造性を引き出す舞台です。ここで新鮮な食材を手にし、センス溢れる料理を作り出すたびに、あなたの心の中にあるシェフの魂が目覚めることでしょう。軽やかな動きで包丁を振るい、食材の香りが漂う中、味覚の冒険の始まりを感じます。
二つのベッドルームは、6帖と4.5帖の絶妙なバランスで配置されています。プライベートな空間では、心が安らぎ、充電の時間を持つことができるのです。特に6帖の部屋は、まるで自分だけの図書館のようにお気に入りの本に囲まれ、静かなひと時を楽しむことができます。外の喧騒を忘れ、ページをめくる音がここでは新しい世界を開いてくれるのです。
パレステージ秋葉原 701は、ただの住まい以上の存在です。あなたの暮らしが美術館のように彩られ、洗練されたインテリアが日常を豊かにします。管理人が見守る安心感の中、オートロックによって守られたこの空間で、心地よい暮らしが待っています。バイク置場や駐輪場も完備されており、アクティブなライフスタイルを支えてくれることでしょう。
周囲には文化と歴史が息づいています。東京メトロ日比谷線 仲御徒町駅から徒歩9分の距離にあるこの物件からは、都心の便利さを手にしながら、歴史的な名所やアートスポットに容易にアクセスできるのです。四季を通じて彩られる街並みの変化を楽しみながら、あなたの新たな物語をここに刻んでいくことができるでしょう。
パレステージ秋葉原 701は、単なる住まいを超え、一人一人のライフスタイルに寄り添う“相棒”のような存在です。住むあなたを待ち受けているのは、静かな美しさに包まれた日常。ぜひ、心に刻む新しい旅路の始まりとして、この素晴らしい空間に足を踏み入れてみてください。あなたが主役となるストーリーが、ここで展開されることを心より願っています。
バイブルスコア
バイブルスコア: 41.6
条件のいい物件です、引っ越しが2か月以内の場合は仮申し込みを検討すべき物件です。
※バイブルスコア詳細はこちら
バイブルスコアとは独自のAI機械学習技術を利用した物件評価システムで、物件のおすすめ度を示します。最高得点は100点で、スコアが高いほど、よりおすすめの物件と評価されています。
写真
契約条件
| 賃料 | 予想金額:178,000〜198,000円程度 | 管理費 | 予想金額:10,000〜14,000円程度 |
| 礼金 | 非公開(アーカイブ) | 敷金 | 非公開(アーカイブ) |
| フリーレント | なし | 平米数 | 53.86㎡ |
| 間取り | 2LDK | 大型収納 | |
| 契約期間 |
| 方角 | 東 |
| 更新料 | 契約形態 | 普通賃貸借契約 | |
| 取引態様 | 媒介 | 内見状況 | 入居中 |
| 入居時期 | 入居中 | SOHO・事務所 | |
| ペット | 間取り内訳 | LD=10.6J / K=2.5J / BR=6J / BR=4.5J | |
| キャンペーン情報・備考 | 本情報は賃料改定交渉の資料作成、収益物件の利回り試算、周辺エリアや最寄り駅の坪単価分析、次回募集開始時期の予測などにご活用いただけます。 | ||
※「どの不動産に頼めばいいのか分からない」「信頼できる営業マンの話を聞きたい」「一番親切な会社と契約したい」とお悩みの方におすすめなのが「高級賃貸バイブル」です。
高級賃貸バイブルは業界10年以上の熟練スタッフ群がお客様ファーストで対応します。
下記ボタンから、まずは無料でご相談下さい。
※内覧をご希望の際には、どうぞ物件のエントランス前にてお待ち合わせくださいませ。ご内覧後は、同じ場所でお別れとさせていただきます。お客様のご都合に合わせたスムーズなご案内を心がけておりますので、ご質問等がございましたら何なりとお申し付けください。 物件概要
| 物件名 |
| 築年月 |
|
|---|---|---|---|
| 所在地 | |||
| 交通 | |||
| 総戸数 |
| 総階数 |
|
| 構造 |
| ||
地図
物件までの道のりは、「拡大地図を表示」をクリックしてナビ機能をご利用ください。
部屋設備


















建物設備

TVモニターホン

オートロック

バイク置場

宅配ボックス

敷地内ゴミ置場

管理人

駐車場平置き

駐車場機械式

駐輪場
パレステージ秋葉原の現在募集中のお部屋
- No rooms found for this property.





