
| 賃料 | 予想金額:177,000〜197,000円程度 | 管理費 | 予想金額:10,000〜14,000円程度 |
| 礼金/敷金 | 非公開(アーカイブ) | 平米数 | 42.05㎡ |
| 初期費用概算(参考) | 目安:714,000〜814,000 円 | みなし賃料(月額・参考) | 201,021〜221,021 円 |
| 備考 | 本ページは過去募集のアーカイブです。表示の金額は周辺相場・過去募集を踏まえた参考レンジであり、実際の契約金額・条件ではありません。 | ||
※上記みなし賃料(月額)は仲介手数料割引・無料&キャッシュバックを加味した高級賃貸バイブル限定の金額です。一般的なみなし賃料とは異なります。
【建物ページ】クレヴィアタワー目黒不動前の詳細・最新空室はこちら▶▶選ばれる理由
仲介手数料無料・キャンペーン情報(毎月15名様限定)
〇仲介手数料割引キャンペーン
クレヴィアタワー目黒不動前 5階 42.05㎡の口コミ・レビュー
クレヴィアタワー目黒不動前 5階 42.05㎡。この魅惑の空間は、都市の喧騒を背景に生まれたアートのように、あなたを優雅な生活へと誘います。さあ、想像の旅を始めましょう。目黒不動前の美しい街並みを背にし、南西の光が溢れるこの住まいは、日々の暮らしを豊かに彩る舞台。エレベーターで上がるその瞬間から、心躍る高級感に包まれることでしょう。
当物件は、心を豊かにするデザイナーズスタイル。フィンガーが触れ…クレヴィアタワー目黒不動前 5階 42.05㎡。この魅惑の空間は、都市の喧騒を背景に生まれたアートのように、あなたを優雅な生活へと誘います。さあ、想像の旅を始めましょう。目黒不動前の美しい街並みを背にし、南西の光が溢れるこの住まいは、日々の暮らしを豊かに彩る舞台。エレベーターで上がるその瞬間から、心躍る高級感に包まれることでしょう。
当物件は、心を豊かにするデザイナーズスタイル。フィンガーが触れるたびに感じる滑らかな床材や、明るいLDKは、まるであなたの思い描いた夢の中にいるかのよう。11.1帖のLDKは、パーティーを開くも良し、一人での静かなひとときを楽しむも良し、その広さを活かした贅沢な空間が魅力です。5.4帖の洋室は、穏やかな夜を迎えるための完璧な隠れ家であり、昼間は窓の外からの光が優しく包み込みます。
想いを巡らせるのは、ただの家ではなく、日常に広がる新しい風景です。静けさに包まれたラウンジでは、心地よいコーヒーの香りに誘われ、友と語り合う至福の時間が広がります。宅配ボックスや便利なバイク置場は、あなたのライフスタイルに溶け込むよう設計されています。このような配慮が詰まった空間は、まさにあなたのためのオーダーメイド。24時間管理の安心感は、まるで守護天使のように、日々の生活を見守ってくれます。
周囲に目を向ければ、目黒の文化が息づく街並みが静かに語りかけてきます。この地には、洗練されたカフェやギャラリーが点在し、住む人々に刺激を与え続けます。歴史の重みを感じる街角では、アートに触れる機会が豊富に用意されており、あなたの感性を刺激することでしょう。新たな出会いが、心を躍らせ、日々の生活に色を添えてくれます。
暮らしの一瞬一瞬が、映画のスクリーンに映し出されるようなクレヴィアタワー目黒不動前 5階 42.05㎡。ここでは、日常が特別な経験に変わり、心の余裕を感じることができるでしょう。しなやかな生活を求めるあなたに、ぜひお越しいただきたいのです。この空間で、あなたの人生の物語を描き始めてみませんか。あなたを迎え入れる準備は、すでに整っています。
当物件は、心を豊かにするデザイナーズスタイル。フィンガーが触れ…クレヴィアタワー目黒不動前 5階 42.05㎡。この魅惑の空間は、都市の喧騒を背景に生まれたアートのように、あなたを優雅な生活へと誘います。さあ、想像の旅を始めましょう。目黒不動前の美しい街並みを背にし、南西の光が溢れるこの住まいは、日々の暮らしを豊かに彩る舞台。エレベーターで上がるその瞬間から、心躍る高級感に包まれることでしょう。
当物件は、心を豊かにするデザイナーズスタイル。フィンガーが触れるたびに感じる滑らかな床材や、明るいLDKは、まるであなたの思い描いた夢の中にいるかのよう。11.1帖のLDKは、パーティーを開くも良し、一人での静かなひとときを楽しむも良し、その広さを活かした贅沢な空間が魅力です。5.4帖の洋室は、穏やかな夜を迎えるための完璧な隠れ家であり、昼間は窓の外からの光が優しく包み込みます。
想いを巡らせるのは、ただの家ではなく、日常に広がる新しい風景です。静けさに包まれたラウンジでは、心地よいコーヒーの香りに誘われ、友と語り合う至福の時間が広がります。宅配ボックスや便利なバイク置場は、あなたのライフスタイルに溶け込むよう設計されています。このような配慮が詰まった空間は、まさにあなたのためのオーダーメイド。24時間管理の安心感は、まるで守護天使のように、日々の生活を見守ってくれます。
周囲に目を向ければ、目黒の文化が息づく街並みが静かに語りかけてきます。この地には、洗練されたカフェやギャラリーが点在し、住む人々に刺激を与え続けます。歴史の重みを感じる街角では、アートに触れる機会が豊富に用意されており、あなたの感性を刺激することでしょう。新たな出会いが、心を躍らせ、日々の生活に色を添えてくれます。
暮らしの一瞬一瞬が、映画のスクリーンに映し出されるようなクレヴィアタワー目黒不動前 5階 42.05㎡。ここでは、日常が特別な経験に変わり、心の余裕を感じることができるでしょう。しなやかな生活を求めるあなたに、ぜひお越しいただきたいのです。この空間で、あなたの人生の物語を描き始めてみませんか。あなたを迎え入れる準備は、すでに整っています。
バイブルスコア
バイブルスコア: 23.9
平均的なスコアです。
※バイブルスコア詳細はこちら
バイブルスコアとは独自のAI機械学習技術を利用した物件評価システムで、物件のおすすめ度を示します。最高得点は100点で、スコアが高いほど、よりおすすめの物件と評価されています。
写真
契約条件
| 賃料 | 予想金額:177,000〜197,000円程度 | 管理費 | 予想金額:10,000〜14,000円程度 |
| 礼金 | 非公開(アーカイブ) | 敷金 | 非公開(アーカイブ) |
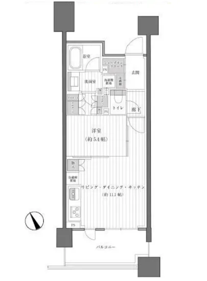
| フリーレント | なし | 平米数 | 42.05㎡ |
| 間取り | 1LDK | 大型収納 | SIC |
| 契約期間 |
| 方角 | 南西 |
| 更新料 | 契約形態 | 普通賃貸借契約 | |
| 取引態様 | 媒介 | 内見状況 | 入居中 |
| 入居時期 | 入居中 | SOHO・事務所 | |
| ペット | ペット可 | 間取り内訳 | 洋:5.4 LDK:11.1 |
| キャンペーン情報・備考 | 本情報は賃料改定交渉の資料作成、収益物件の利回り試算、周辺エリアや最寄り駅の坪単価分析、次回募集開始時期の予測などにご活用いただけます。 | ||
※「どの不動産に頼めばいいのか分からない」「信頼できる営業マンの話を聞きたい」「一番親切な会社と契約したい」とお悩みの方におすすめなのが「高級賃貸バイブル」です。
高級賃貸バイブルは業界10年以上の熟練スタッフ群がお客様ファーストで対応します。
下記ボタンから、まずは無料でご相談下さい。
※内覧をご希望の際には、どうぞ物件のエントランス前にてお待ち合わせくださいませ。ご内覧後は、同じ場所でお別れとさせていただきます。お客様のご都合に合わせたスムーズなご案内を心がけておりますので、ご質問等がございましたら何なりとお申し付けください。 物件概要
| 物件名 |
| 築年月 |
|
|---|---|---|---|
| 所在地 | |||
| 交通 | |||
| 総戸数 |
| 総階数 |
|
| 構造 |
| ||
地図
物件までの道のりは、「拡大地図を表示」をクリックしてナビ機能をご利用ください。
部屋設備


















建物設備

24時間管理

TVモニターホン

エレベーター

オートロック

バイク置場

ラウンジ

宅配ボックス

敷地内ゴミ置場

管理人

駐車場平置き

駐車場機械式

駐輪場
クレヴィアタワー目黒不動前の現在募集中のお部屋
- No rooms found for this property.









