
| 賃料 | 予想金額:300,000〜320,000円程度 | 管理費 | 予想金額:0〜2,000円程度 |
| 礼金/敷金 | 非公開(アーカイブ) | 平米数 | 56.62㎡ |
| 初期費用概算(参考) | 目安:1,159,500〜1,259,500 円 | みなし賃料(月額・参考) | 318,740〜338,740 円 |
| 備考 | 本ページは過去募集のアーカイブです。表示の金額は周辺相場・過去募集を踏まえた参考レンジであり、実際の契約金額・条件ではありません。 | ||
※上記みなし賃料(月額)は仲介手数料割引・無料&キャッシュバックを加味した高級賃貸バイブル限定の金額です。一般的なみなし賃料とは異なります。
【建物ページ】クレヴィアタワー目黒不動前の詳細・最新空室はこちら▶▶選ばれる理由
仲介手数料無料・キャンペーン情報(毎月15名様限定)
〇仲介手数料割引キャンペーン
クレヴィアタワー目黒不動前 21階 56.62㎡の口コミ・レビュー
クレヴィアタワー目黒不動前 21階 56.62㎡は、あなたが初めてその扉を開けたとき、まるで新しい映画の幕が上がる瞬間のように、心が高鳴ります。高層の21階に位置するこの住まいは、昼夜を問わず美しい街のパノラマを見渡すことができ、南西の方角からは温かな日差しが優しく差し込み、心地よい影を映し出します。まるで自然が織りなす醍醐味を感じられる、あなた専用のリトリートなのです。
このクレヴィアタワー目…クレヴィアタワー目黒不動前 21階 56.62㎡は、あなたが初めてその扉を開けたとき、まるで新しい映画の幕が上がる瞬間のように、心が高鳴ります。高層の21階に位置するこの住まいは、昼夜を問わず美しい街のパノラマを見渡すことができ、南西の方角からは温かな日差しが優しく差し込み、心地よい影を映し出します。まるで自然が織りなす醍醐味を感じられる、あなた専用のリトリートなのです。
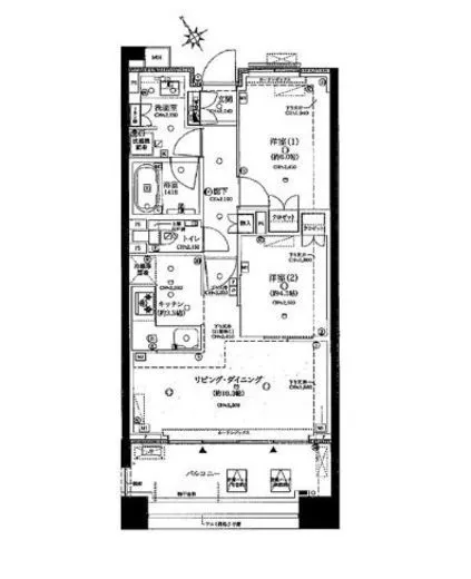
このクレヴィアタワー目黒不動前は、56.62㎡の広さを誇るデザイナーズマンションであり、現代的なセンスに溢れています。生活空間に足を踏み入れると、LDK13.6帖の広々としたリビングが、あなたを包み込みます。高い天井と大きな窓からは、外の風景がまるで一枚の絵画のように広がり、そこにいるだけで心が豊かになります。朝の光が差し込む時間帯には、コーヒーの香りが漂い、パンの焼ける音が心地よいBGMとなり、ゆったりとした一日をスタートさせることができるでしょう。
さらに、洋室6帖と洋室4.5帖は、豊富な収納スペースを備え、あなたのセンスで自由にコーディネートできる空間です。夜の帳が降りる頃、柔らかな間接照明に照らされたお部屋で、心地よい音楽を流しながら、心温まる食事を楽しむ姿が目に浮かびます。その瞬間は、まるで映画のワンシーンのように美しく、あなた自身が主人公であることを感じることでしょう。
クレヴィアタワー目黒不動前は、24時間管理されているのでいつでも安心して生活を送ることができます。オートロックやエレベーターも完備されており、セキュリティに対する不安を感じることはありません。宅配ボックスも健在ですので、大切な荷物が届いたときに安心しながら受け取ることができます。
周辺の歴史や文化も、あなたの生活を豊かに彩ります。目黒不動前駅から徒歩4分というアクセスの良さは、仕事や遊びに出かける際に非常に便利です。また、地域には多くのカフェやアートギャラリーが点在し、帰宅後には心を落ち着かせるアートの世界に触れることができます。この地での生活は、まるで高級ブランドのように、特別な体験をもたらしてくれることでしょう。
クレヴィアタワー目黒不動前の住まいは、あなたの物語の舞台となります。毎日の生活の中で、喜びや感動がふとした瞬間に溢れ出し、ここがあなたにとっての新しいホームとなることでしょう。あなたを迎え入れるこの空間は、ただの居住地ではなく、心の拠り所、人生の名作が紡がれる場でもあるのです。どうぞ、この贅沢な空間で、素晴らしい新生活をお楽しみください。
このクレヴィアタワー目…クレヴィアタワー目黒不動前 21階 56.62㎡は、あなたが初めてその扉を開けたとき、まるで新しい映画の幕が上がる瞬間のように、心が高鳴ります。高層の21階に位置するこの住まいは、昼夜を問わず美しい街のパノラマを見渡すことができ、南西の方角からは温かな日差しが優しく差し込み、心地よい影を映し出します。まるで自然が織りなす醍醐味を感じられる、あなた専用のリトリートなのです。
このクレヴィアタワー目黒不動前は、56.62㎡の広さを誇るデザイナーズマンションであり、現代的なセンスに溢れています。生活空間に足を踏み入れると、LDK13.6帖の広々としたリビングが、あなたを包み込みます。高い天井と大きな窓からは、外の風景がまるで一枚の絵画のように広がり、そこにいるだけで心が豊かになります。朝の光が差し込む時間帯には、コーヒーの香りが漂い、パンの焼ける音が心地よいBGMとなり、ゆったりとした一日をスタートさせることができるでしょう。
さらに、洋室6帖と洋室4.5帖は、豊富な収納スペースを備え、あなたのセンスで自由にコーディネートできる空間です。夜の帳が降りる頃、柔らかな間接照明に照らされたお部屋で、心地よい音楽を流しながら、心温まる食事を楽しむ姿が目に浮かびます。その瞬間は、まるで映画のワンシーンのように美しく、あなた自身が主人公であることを感じることでしょう。
クレヴィアタワー目黒不動前は、24時間管理されているのでいつでも安心して生活を送ることができます。オートロックやエレベーターも完備されており、セキュリティに対する不安を感じることはありません。宅配ボックスも健在ですので、大切な荷物が届いたときに安心しながら受け取ることができます。
周辺の歴史や文化も、あなたの生活を豊かに彩ります。目黒不動前駅から徒歩4分というアクセスの良さは、仕事や遊びに出かける際に非常に便利です。また、地域には多くのカフェやアートギャラリーが点在し、帰宅後には心を落ち着かせるアートの世界に触れることができます。この地での生活は、まるで高級ブランドのように、特別な体験をもたらしてくれることでしょう。
クレヴィアタワー目黒不動前の住まいは、あなたの物語の舞台となります。毎日の生活の中で、喜びや感動がふとした瞬間に溢れ出し、ここがあなたにとっての新しいホームとなることでしょう。あなたを迎え入れるこの空間は、ただの居住地ではなく、心の拠り所、人生の名作が紡がれる場でもあるのです。どうぞ、この贅沢な空間で、素晴らしい新生活をお楽しみください。
バイブルスコア
バイブルスコア: 40.8
条件のいい物件です、引っ越しが2か月以内の場合は仮申し込みを検討すべき物件です。
※バイブルスコア詳細はこちら
バイブルスコアとは独自のAI機械学習技術を利用した物件評価システムで、物件のおすすめ度を示します。最高得点は100点で、スコアが高いほど、よりおすすめの物件と評価されています。
写真
契約条件
| 賃料 | 予想金額:300,000〜320,000円程度 | 管理費 | 予想金額:0〜2,000円程度 |
| 礼金 | 非公開(アーカイブ) | 敷金 | 非公開(アーカイブ) |
| フリーレント | なし | 平米数 | 56.62㎡ |
| 間取り | 2LDK | 大型収納 | なし |
| 契約期間 | 2年 | 方角 | 南西 |
| 更新料 | 1ヶ月 | 契約形態 | 普通賃貸借契約 |
| 取引態様 | 媒介 | 内見状況 | 入居中 |
| 入居時期 | 入居中 | SOHO・事務所 | 不可 |
| ペット | 不可 | 間取り内訳 | LDK13.6帖 洋室6帖 洋室4.5帖 |
| キャンペーン情報・備考 | 本情報は賃料改定交渉の資料作成、収益物件の利回り試算、周辺エリアや最寄り駅の坪単価分析、次回募集開始時期の予測などにご活用いただけます。 | ||
※「どの不動産に頼めばいいのか分からない」「信頼できる営業マンの話を聞きたい」「一番親切な会社と契約したい」とお悩みの方におすすめなのが「高級賃貸バイブル」です。
高級賃貸バイブルは業界10年以上の熟練スタッフ群がお客様ファーストで対応します。
下記ボタンから、まずは無料でご相談下さい。
※内覧をご希望の際には、どうぞ物件のエントランス前にてお待ち合わせくださいませ。ご内覧後は、同じ場所でお別れとさせていただきます。お客様のご都合に合わせたスムーズなご案内を心がけておりますので、ご質問等がございましたら何なりとお申し付けください。 物件概要
| 物件名 |
| 築年月 |
|
|---|---|---|---|
| 所在地 | |||
| 交通 | |||
| 総戸数 |
| 総階数 |
|
| 構造 |
| ||
地図
物件までの道のりは、「拡大地図を表示」をクリックしてナビ機能をご利用ください。
部屋設備










建物設備

24時間管理

TVモニターホン

エレベーター

オートロック

バイク置場

ラウンジ

宅配ボックス

敷地内ゴミ置場

管理人

駐車場平置き

駐車場機械式

駐輪場
クレヴィアタワー目黒不動前の現在募集中のお部屋
- No rooms found for this property.









