
| 賃料 | 予想金額:127,000〜147,000円程度 | 管理費 | 予想金額:10,000〜14,000円程度 |
| 礼金/敷金 | 非公開(アーカイブ) | 平米数 | 38.09㎡ |
| 初期費用概算(参考) | 目安:676,000〜776,000 円 | みなし賃料(月額・参考) | 151,271〜171,271 円 |
| 備考 | 本ページは過去募集のアーカイブです。表示の金額は周辺相場・過去募集を踏まえた参考レンジであり、実際の契約金額・条件ではありません。 | ||
※上記みなし賃料(月額)は仲介手数料割引・無料&キャッシュバックを加味した高級賃貸バイブル限定の金額です。一般的なみなし賃料とは異なります。
【建物ページ】イイダアネックス8の詳細・最新空室はこちら▶▶選ばれる理由
仲介手数料無料・キャンペーン情報(毎月15名様限定)
〇仲介手数料割引キャンペーン
イイダアネックス8 202の口コミ・レビュー
イイダアネックス8 202。あなたに語りかけるこの空間は、洗練されたデザインと温もりを兼ね備えた、まるで都会のオアシスのような存在です。東京都世田谷区用賀3-8-5に位置し、南西を向いているこの物件は、日の光が優しく差し込む「家」の役割を果たしてくれます。
物件の中に足を踏み入れると、出迎えてくれるのは、心地よい温かさに満ちたLDK10.2帖の広さです。薄いシャンパンゴールドの壁が優雅に光を反射…イイダアネックス8 202。あなたに語りかけるこの空間は、洗練されたデザインと温もりを兼ね備えた、まるで都会のオアシスのような存在です。東京都世田谷区用賀3-8-5に位置し、南西を向いているこの物件は、日の光が優しく差し込む「家」の役割を果たしてくれます。
物件の中に足を踏み入れると、出迎えてくれるのは、心地よい温かさに満ちたLDK10.2帖の広さです。薄いシャンパンゴールドの壁が優雅に光を反射し、洗練されたインテリアが調和を生み出します。あなたの大切なコレクションやお気に入りのアート作品を飾るためのキャンバスとして、この空間は最適です。窓から見える青空と緑のコントラストが、都会の喧騒を忘れさせ、心を穏やかにしてくれるでしょう。そよ風がカーテンを揺らし、優しい音色を奏でる瞬間は、まるで日常が映画のワンシーンのように感じられることでしょう。
キッチンは、2.1帖のスペースに凝縮された機能美を誇ります。洗練されたデザインの中で、食材の香りが漂い、あなたの料理の腕前をいかんなく引き出してくれることでしょう。朝には新鮮なフルーツの甘い香りが、夜にはワインの芳醇な香りが、ここでの生活を豊かに彩ります。料理をするたびに、まるでシェフになったかのような気分を味わえるのです。
洋室は4.9帖のスペースで、穏やかな時間を過ごすための安らぎの場となります。静かな夜に、ベッドで心地よく包まれながら星空を眺める。心の奥深くに響く静寂に、安らぎの波が訪れるのを感じることができるでしょう。どんな一日を過ごした後でも、この上質な空間があなたを迎え入れ、癒してくれることでしょう。
イイダアネックス8 202は、単なる住まいではありません。これはあなたの物語が展開される舞台です。生活のすべてがここから始まり、あなたの感性が育まれていきます。周囲には歴史や文化が息づいており、世田谷の穏やかな風が過去と未来をつなぐ架け橋となっています。この地での新たな生活は、心の中に新たなひらめきをもたらしてくれることでしょう。
エレベーターやオートロック、宅配ボックスなどの設備は、日々の利便性を提供しつつ、あなたのプライバシーを守ります。本物の重厚感が漂う中にも、現代の快適さが息づいているのです。また、管理人の見守りのもと、安心できる環境が整っているため、心からリラックスした生活が実現します。
イイダアネックス8 202。ここに住まうことで、あなたの日常に美しさと充実感をもたらし、人生の特別な瞬間を豊かに演出することができます。ぜひ、この素晴らしい空間で新たな生活をスタートしてみてはいかがでしょうか。あなた自身のストーリーを、この場所で綴ることができるのです。
物件の中に足を踏み入れると、出迎えてくれるのは、心地よい温かさに満ちたLDK10.2帖の広さです。薄いシャンパンゴールドの壁が優雅に光を反射…イイダアネックス8 202。あなたに語りかけるこの空間は、洗練されたデザインと温もりを兼ね備えた、まるで都会のオアシスのような存在です。東京都世田谷区用賀3-8-5に位置し、南西を向いているこの物件は、日の光が優しく差し込む「家」の役割を果たしてくれます。
物件の中に足を踏み入れると、出迎えてくれるのは、心地よい温かさに満ちたLDK10.2帖の広さです。薄いシャンパンゴールドの壁が優雅に光を反射し、洗練されたインテリアが調和を生み出します。あなたの大切なコレクションやお気に入りのアート作品を飾るためのキャンバスとして、この空間は最適です。窓から見える青空と緑のコントラストが、都会の喧騒を忘れさせ、心を穏やかにしてくれるでしょう。そよ風がカーテンを揺らし、優しい音色を奏でる瞬間は、まるで日常が映画のワンシーンのように感じられることでしょう。
キッチンは、2.1帖のスペースに凝縮された機能美を誇ります。洗練されたデザインの中で、食材の香りが漂い、あなたの料理の腕前をいかんなく引き出してくれることでしょう。朝には新鮮なフルーツの甘い香りが、夜にはワインの芳醇な香りが、ここでの生活を豊かに彩ります。料理をするたびに、まるでシェフになったかのような気分を味わえるのです。
洋室は4.9帖のスペースで、穏やかな時間を過ごすための安らぎの場となります。静かな夜に、ベッドで心地よく包まれながら星空を眺める。心の奥深くに響く静寂に、安らぎの波が訪れるのを感じることができるでしょう。どんな一日を過ごした後でも、この上質な空間があなたを迎え入れ、癒してくれることでしょう。
イイダアネックス8 202は、単なる住まいではありません。これはあなたの物語が展開される舞台です。生活のすべてがここから始まり、あなたの感性が育まれていきます。周囲には歴史や文化が息づいており、世田谷の穏やかな風が過去と未来をつなぐ架け橋となっています。この地での新たな生活は、心の中に新たなひらめきをもたらしてくれることでしょう。
エレベーターやオートロック、宅配ボックスなどの設備は、日々の利便性を提供しつつ、あなたのプライバシーを守ります。本物の重厚感が漂う中にも、現代の快適さが息づいているのです。また、管理人の見守りのもと、安心できる環境が整っているため、心からリラックスした生活が実現します。
イイダアネックス8 202。ここに住まうことで、あなたの日常に美しさと充実感をもたらし、人生の特別な瞬間を豊かに演出することができます。ぜひ、この素晴らしい空間で新たな生活をスタートしてみてはいかがでしょうか。あなた自身のストーリーを、この場所で綴ることができるのです。
バイブルスコア
バイブルスコア: 43.5
条件のいい物件です、引っ越しが2か月以内の場合は仮申し込みを検討すべき物件です。
※バイブルスコア詳細はこちら
バイブルスコアとは独自のAI機械学習技術を利用した物件評価システムで、物件のおすすめ度を示します。最高得点は100点で、スコアが高いほど、よりおすすめの物件と評価されています。
写真
現在写真が登録されていません契約条件
| 賃料 | 予想金額:127,000〜147,000円程度 | 管理費 | 予想金額:10,000〜14,000円程度 |
| 礼金 | 非公開(アーカイブ) | 敷金 | 非公開(アーカイブ) |
| フリーレント | なし | 平米数 | 38.09㎡ |
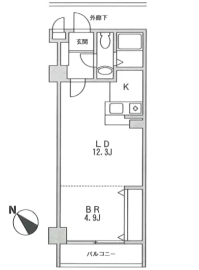
| 間取り | 1LDK | 大型収納 | |
| 契約期間 |
| 方角 | 南西 |
| 更新料 | 契約形態 | 普通賃貸借契約 | |
| 取引態様 | 媒介 | 内見状況 | 入居中 |
| 入居時期 | 入居中 | SOHO・事務所 | 事務所(SOHO)可 |
| ペット | ペット可 | 間取り内訳 | 洋:4.9 LD:10.2 K:2.1 |
| キャンペーン情報・備考 | 本情報は賃料改定交渉の資料作成、収益物件の利回り試算、周辺エリアや最寄り駅の坪単価分析、次回募集開始時期の予測などにご活用いただけます。 | ||
※「どの不動産に頼めばいいのか分からない」「信頼できる営業マンの話を聞きたい」「一番親切な会社と契約したい」とお悩みの方におすすめなのが「高級賃貸バイブル」です。
高級賃貸バイブルは業界10年以上の熟練スタッフ群がお客様ファーストで対応します。
下記ボタンから、まずは無料でご相談下さい。
※内覧をご希望の際には、どうぞ物件のエントランス前にてお待ち合わせくださいませ。ご内覧後は、同じ場所でお別れとさせていただきます。お客様のご都合に合わせたスムーズなご案内を心がけておりますので、ご質問等がございましたら何なりとお申し付けください。 物件概要
| 物件名 |
| 築年月 |
|
|---|---|---|---|
| 所在地 | |||
| 交通 | |||
| 総戸数 |
| 総階数 |
|
| 構造 |
| ||
地図
物件までの道のりは、「拡大地図を表示」をクリックしてナビ機能をご利用ください。
部屋設備

















建物設備

TVモニターホン

エレベーター

オートロック

宅配ボックス

敷地内ゴミ置場

管理人

駐輪場
イイダアネックス8の現在募集中のお部屋
- No rooms found for this property.
