
| 賃料 | 予想金額:133,000〜153,000円程度 | 管理費 | 予想金額:10,000〜14,000円程度 |
| 礼金/敷金 | 非公開(アーカイブ) | 平米数 | 38.09㎡ |
| 初期費用概算(参考) | 目安:703,000〜803,000 円 | みなし賃料(月額・参考) | 157,708〜177,708 円 |
| 備考 | 本ページは過去募集のアーカイブです。表示の金額は周辺相場・過去募集を踏まえた参考レンジであり、実際の契約金額・条件ではありません。 | ||
※上記みなし賃料(月額)は仲介手数料割引・無料&キャッシュバックを加味した高級賃貸バイブル限定の金額です。一般的なみなし賃料とは異なります。
【建物ページ】イイダアネックス8の詳細・最新空室はこちら▶▶選ばれる理由
仲介手数料無料・キャンペーン情報(毎月15名様限定)
〇仲介手数料割引キャンペーン
イイダアネックス8 305の口コミ・レビュー
イイダアネックス8 305は、あなたの日常を特別なものに変えるために生まれた、まるで夢のような空間です。この素晴らしい1LDKの住まいは、38.09㎡という広さの中に、心温まる生活を演出するための全てが詰まっています。305号室の扉を開けた瞬間、南西の陽射しが優しく部屋を包み込み、まるで黄金のシルクが床にそっと広がるかのように感じられます。静謐な空間は、時を忘れさせる特別なオアシスとなり、あなたの…イイダアネックス8 305は、あなたの日常を特別なものに変えるために生まれた、まるで夢のような空間です。この素晴らしい1LDKの住まいは、38.09㎡という広さの中に、心温まる生活を演出するための全てが詰まっています。305号室の扉を開けた瞬間、南西の陽射しが優しく部屋を包み込み、まるで黄金のシルクが床にそっと広がるかのように感じられます。静謐な空間は、時を忘れさせる特別なオアシスとなり、あなたの感性を豊かに刺激してくれることでしょう。
イイダアネックス8 305では、4.9帖の洋室がもたらす安らぎは、まるでそよ風に揺れる穏やかな草原に身を委ねているかのようです。柔らかいベッドに身を横たえ、目を閉じれば、外から聞こえる鳥のさえずりが心に沁みわたり、リラックスした瞬間を提供してくれます。窓からの視界には、緑豊かな用賀の街並みが広がり、日々の喧騒を忘れさせてくれる、心の余裕を与えてくれます。
リビングダイニングは10.2帖という広さで、家族や友人と共に素晴らしい時間を共有できる場所です。窓辺に設けたテーブルに、季節の花を生け、あなたの好きな香りのアロマを焚けば、まるで映画のワンシーンのような、感動的なディナータイムが演出されます。料理を楽しむための2.1帖のキッチンでは、様々な食材を使った美味しい料理を展開することができ、どんなレシピもあなたの手の中で生まれ変わります。
イイダアネックス8 305の魅力は、デザイナーズ物件ならではの洗練されたデザインにもあります。オートロックや宅配ボックスなどの便利な設備が整い、都会の生活に求められる安全性と利便性が完璧に融合しています。そして、管理人が常駐することで、安心感もプラスされています。エレベーターでスムーズにアクセスできる低層の建物は、まるで優しい母の手があなたを導いてくれるかのようです。
周辺には、世田谷の歴史や文化が息づいており、散歩をするたびに新たな発見が待っています。美しい公園やアートギャラリー、そして地元のカフェでのひとときは、心を豊かに潤してくれるでしょう。用賀駅から徒歩8分という立地は、都心へのアクセスも良好で、あなたのライフスタイルを支えてくれる大切な場所です。
イイダアネックス8 305は、あなたの心に寄り添い、毎日を特別なものにするための理想的な住まいです。ここでの生活は、まるで一冊の詩を綴るように、美しさと感情に溢れた日々を約束します。あなたの新しい物語が、ここから始まるのです。
イイダアネックス8 305では、4.9帖の洋室がもたらす安らぎは、まるでそよ風に揺れる穏やかな草原に身を委ねているかのようです。柔らかいベッドに身を横たえ、目を閉じれば、外から聞こえる鳥のさえずりが心に沁みわたり、リラックスした瞬間を提供してくれます。窓からの視界には、緑豊かな用賀の街並みが広がり、日々の喧騒を忘れさせてくれる、心の余裕を与えてくれます。
リビングダイニングは10.2帖という広さで、家族や友人と共に素晴らしい時間を共有できる場所です。窓辺に設けたテーブルに、季節の花を生け、あなたの好きな香りのアロマを焚けば、まるで映画のワンシーンのような、感動的なディナータイムが演出されます。料理を楽しむための2.1帖のキッチンでは、様々な食材を使った美味しい料理を展開することができ、どんなレシピもあなたの手の中で生まれ変わります。
イイダアネックス8 305の魅力は、デザイナーズ物件ならではの洗練されたデザインにもあります。オートロックや宅配ボックスなどの便利な設備が整い、都会の生活に求められる安全性と利便性が完璧に融合しています。そして、管理人が常駐することで、安心感もプラスされています。エレベーターでスムーズにアクセスできる低層の建物は、まるで優しい母の手があなたを導いてくれるかのようです。
周辺には、世田谷の歴史や文化が息づいており、散歩をするたびに新たな発見が待っています。美しい公園やアートギャラリー、そして地元のカフェでのひとときは、心を豊かに潤してくれるでしょう。用賀駅から徒歩8分という立地は、都心へのアクセスも良好で、あなたのライフスタイルを支えてくれる大切な場所です。
イイダアネックス8 305は、あなたの心に寄り添い、毎日を特別なものにするための理想的な住まいです。ここでの生活は、まるで一冊の詩を綴るように、美しさと感情に溢れた日々を約束します。あなたの新しい物語が、ここから始まるのです。
バイブルスコア
バイブルスコア: 35.4
平均的なスコアです。
※バイブルスコア詳細はこちら
バイブルスコアとは独自のAI機械学習技術を利用した物件評価システムで、物件のおすすめ度を示します。最高得点は100点で、スコアが高いほど、よりおすすめの物件と評価されています。
写真
現在写真が登録されていません契約条件
| 賃料 | 予想金額:133,000〜153,000円程度 | 管理費 | 予想金額:10,000〜14,000円程度 |
| 礼金 | 非公開(アーカイブ) | 敷金 | 非公開(アーカイブ) |
| フリーレント | なし | 平米数 | 38.09㎡ |
| 間取り | 1LDK | 大型収納 | |
| 契約期間 |
| 方角 | 南西 |
| 更新料 | 契約形態 | 普通賃貸借契約 | |
| 取引態様 | 媒介 | 内見状況 | 入居中 |
| 入居時期 | 入居中 | SOHO・事務所 | 事務所(SOHO)可 |
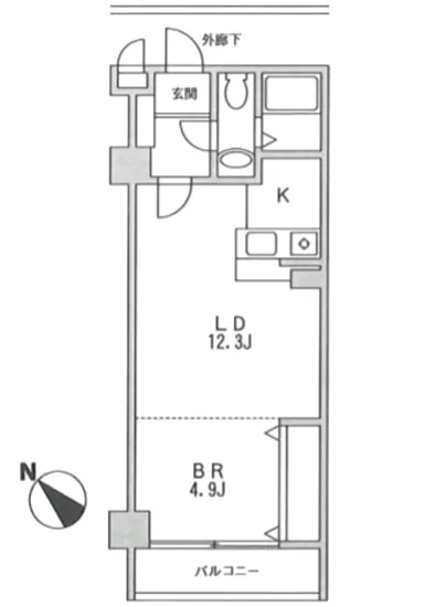
| ペット | ペット可 | 間取り内訳 | 洋:4.9 LD:10.2 K:2.1 |
| キャンペーン情報・備考 | 本情報は賃料改定交渉の資料作成、収益物件の利回り試算、周辺エリアや最寄り駅の坪単価分析、次回募集開始時期の予測などにご活用いただけます。 | ||
※「どの不動産に頼めばいいのか分からない」「信頼できる営業マンの話を聞きたい」「一番親切な会社と契約したい」とお悩みの方におすすめなのが「高級賃貸バイブル」です。
高級賃貸バイブルは業界10年以上の熟練スタッフ群がお客様ファーストで対応します。
下記ボタンから、まずは無料でご相談下さい。
※内覧をご希望の際には、どうぞ物件のエントランス前にてお待ち合わせくださいませ。ご内覧後は、同じ場所でお別れとさせていただきます。お客様のご都合に合わせたスムーズなご案内を心がけておりますので、ご質問等がございましたら何なりとお申し付けください。 物件概要
| 物件名 |
| 築年月 |
|
|---|---|---|---|
| 所在地 | |||
| 交通 | |||
| 総戸数 |
| 総階数 |
|
| 構造 |
| ||
地図
物件までの道のりは、「拡大地図を表示」をクリックしてナビ機能をご利用ください。
部屋設備

















建物設備

TVモニターホン

エレベーター

オートロック

宅配ボックス

敷地内ゴミ置場

管理人

駐輪場
イイダアネックス8の現在募集中のお部屋
- No rooms found for this property.
