
| 賃料 | 予想金額:136,000〜156,000円程度 | 管理費 | 予想金額:8,000〜12,000円程度 |
| 礼金/敷金 | 非公開(アーカイブ) | 平米数 | 30.75㎡ |
| 初期費用概算(参考) | 目安:567,500〜667,500 円 | みなし賃料(月額・参考) | 155,823〜175,823 円 |
| 備考 | 本ページは過去募集のアーカイブです。表示の金額は周辺相場・過去募集を踏まえた参考レンジであり、実際の契約金額・条件ではありません。 | ||
※上記みなし賃料(月額)は仲介手数料割引・無料&キャッシュバックを加味した高級賃貸バイブル限定の金額です。一般的なみなし賃料とは異なります。
【建物ページ】エスティメゾン恵比寿の詳細・最新空室はこちら▶▶選ばれる理由
仲介手数料無料・キャンペーン情報(毎月15名様限定)
〇仲介手数料割引キャンペーン
エスティメゾン恵比寿 402の口コミ・レビュー
エスティメゾン恵比寿 402は、洗練された生活を追求するあなたに贈る、静謐な隠れ家です。この魅力的な物件は、東京都渋谷区広尾に位置し、南向きの窓からは穏やかな陽射しが差し込みます。402号室は、まるで友情の詩を紡ぐ部屋のように、あなたがここで過ごす毎日を甘美な物語へと導いてくれることでしょう。
入った瞬間、心地よい空気があなたを包み込みます。間取りは1K、広さは30.75㎡、その中に集約された贅…エスティメゾン恵比寿 402は、洗練された生活を追求するあなたに贈る、静謐な隠れ家です。この魅力的な物件は、東京都渋谷区広尾に位置し、南向きの窓からは穏やかな陽射しが差し込みます。402号室は、まるで友情の詩を紡ぐ部屋のように、あなたがここで過ごす毎日を甘美な物語へと導いてくれることでしょう。
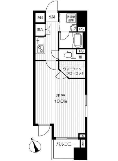
入った瞬間、心地よい空気があなたを包み込みます。間取りは1K、広さは30.75㎡、その中に集約された贅沢な空間は、使い勝手の良さを考慮した設計ながらも、独自の個性を放っています。リビングは、10帖の広さを誇り、ゆったりとした時間を過ごすための理想的なステージです。どんな家具を飾ろうかと考えただけで、心が躍ります。ここでは、足元に柔らかな絨毯を敷いて、温もりを感じながら本を読みふけることも、友人を招いて笑い声が響くティーパーティーを開くこともできるのです。
あなたがこのエスティメゾン恵比寿 402に住むと、まるで映画の中の主人公になったかのように、日常が特別なものに変わります。朝の新鮮なコーヒーの香りが漂い、窓の外には美しい青空が広がります。幸せな気持ちで、一日の始まりを迎える準備をしていると、エレガントなデザイナーズ空間が、あなたの感性を刺激します。TVモニターホンで安全を確保し、オートロックがあなたのプライバシーを守ります。そこにいるだけで、特別な存在であるような気がしてくるのです。
夜は、ムーディーな照明の中で、一日の疲れを癒すひとときをお過ごしください。宅配ボックスがあるため、買い物も手軽に。敷地内のゴミ置き場や駐輪場も完備しているため、暮らしのストレスを軽減し、心の余裕を生んでくれます。あなたが大切にしたいもの、思い描く時間、そのすべてがここ、エスティメゾン恵比寿 402で実現します。
周辺には、情緒豊かな恵比寿の街並みが広がり、歴史的な建物やアートが点在しています。文化や芸術に触れながら、あなた自身のスタイルを磨くことができる、この特別な場所での生活は、単なる住まいを超えた、豊かな人生の舞台となるでしょう。
エスティメゾン恵比寿 402は、あなたの理想のライフスタイルを形作るために生まれた、まるで特別な宝石のような存在です。この場所での生活は、毎日の小さな幸せを見つける旅の始まりに他なりません。あなたの新たな物語が、ここから始まります。
入った瞬間、心地よい空気があなたを包み込みます。間取りは1K、広さは30.75㎡、その中に集約された贅…エスティメゾン恵比寿 402は、洗練された生活を追求するあなたに贈る、静謐な隠れ家です。この魅力的な物件は、東京都渋谷区広尾に位置し、南向きの窓からは穏やかな陽射しが差し込みます。402号室は、まるで友情の詩を紡ぐ部屋のように、あなたがここで過ごす毎日を甘美な物語へと導いてくれることでしょう。
入った瞬間、心地よい空気があなたを包み込みます。間取りは1K、広さは30.75㎡、その中に集約された贅沢な空間は、使い勝手の良さを考慮した設計ながらも、独自の個性を放っています。リビングは、10帖の広さを誇り、ゆったりとした時間を過ごすための理想的なステージです。どんな家具を飾ろうかと考えただけで、心が躍ります。ここでは、足元に柔らかな絨毯を敷いて、温もりを感じながら本を読みふけることも、友人を招いて笑い声が響くティーパーティーを開くこともできるのです。
あなたがこのエスティメゾン恵比寿 402に住むと、まるで映画の中の主人公になったかのように、日常が特別なものに変わります。朝の新鮮なコーヒーの香りが漂い、窓の外には美しい青空が広がります。幸せな気持ちで、一日の始まりを迎える準備をしていると、エレガントなデザイナーズ空間が、あなたの感性を刺激します。TVモニターホンで安全を確保し、オートロックがあなたのプライバシーを守ります。そこにいるだけで、特別な存在であるような気がしてくるのです。
夜は、ムーディーな照明の中で、一日の疲れを癒すひとときをお過ごしください。宅配ボックスがあるため、買い物も手軽に。敷地内のゴミ置き場や駐輪場も完備しているため、暮らしのストレスを軽減し、心の余裕を生んでくれます。あなたが大切にしたいもの、思い描く時間、そのすべてがここ、エスティメゾン恵比寿 402で実現します。
周辺には、情緒豊かな恵比寿の街並みが広がり、歴史的な建物やアートが点在しています。文化や芸術に触れながら、あなた自身のスタイルを磨くことができる、この特別な場所での生活は、単なる住まいを超えた、豊かな人生の舞台となるでしょう。
エスティメゾン恵比寿 402は、あなたの理想のライフスタイルを形作るために生まれた、まるで特別な宝石のような存在です。この場所での生活は、毎日の小さな幸せを見つける旅の始まりに他なりません。あなたの新たな物語が、ここから始まります。
バイブルスコア
バイブルスコア: 27.7
平均的なスコアです。
※バイブルスコア詳細はこちら
バイブルスコアとは独自のAI機械学習技術を利用した物件評価システムで、物件のおすすめ度を示します。最高得点は100点で、スコアが高いほど、よりおすすめの物件と評価されています。
写真
現在写真が登録されていません契約条件
| 賃料 | 予想金額:136,000〜156,000円程度 | 管理費 | 予想金額:8,000〜12,000円程度 |
| 礼金 | 非公開(アーカイブ) | 敷金 | 非公開(アーカイブ) |
| フリーレント | なし | 平米数 | 30.75㎡ |
| 間取り | 1K | 大型収納 | WIC |
| 契約期間 |
| 方角 | 南 |
| 更新料 | 契約形態 | 普通賃貸借契約 | |
| 取引態様 | 媒介 | 内見状況 | 入居中 |
| 入居時期 | 入居中 | SOHO・事務所 | |
| ペット | ペット可 | 間取り内訳 | R=10J |
| キャンペーン情報・備考 | 本情報は賃料改定交渉の資料作成、収益物件の利回り試算、周辺エリアや最寄り駅の坪単価分析、次回募集開始時期の予測などにご活用いただけます。 | ||
※「どの不動産に頼めばいいのか分からない」「信頼できる営業マンの話を聞きたい」「一番親切な会社と契約したい」とお悩みの方におすすめなのが「高級賃貸バイブル」です。
高級賃貸バイブルは業界10年以上の熟練スタッフ群がお客様ファーストで対応します。
下記ボタンから、まずは無料でご相談下さい。
※内覧をご希望の際には、どうぞ物件のエントランス前にてお待ち合わせくださいませ。ご内覧後は、同じ場所でお別れとさせていただきます。お客様のご都合に合わせたスムーズなご案内を心がけておりますので、ご質問等がございましたら何なりとお申し付けください。 物件概要
| 物件名 |
| 築年月 |
|
|---|---|---|---|
| 所在地 | |||
| 交通 | |||
| 総戸数 |
| 総階数 |
|
| 構造 |
| ||
地図
物件までの道のりは、「拡大地図を表示」をクリックしてナビ機能をご利用ください。
部屋設備
















建物設備

TVモニターホン

エレベーター

オートロック

宅配ボックス

敷地内ゴミ置場

駐輪場
エスティメゾン恵比寿の現在募集中のお部屋
- No rooms found for this property.
