
| 賃料 | 予想金額:132,000〜152,000円程度 | 管理費 | 予想金額:8,000〜12,000円程度 |
| 礼金/敷金 | 非公開(アーカイブ) | 平米数 | 30.75㎡ |
| 初期費用概算(参考) | 目安:553,500〜653,500 円 | みなし賃料(月額・参考) | 151,615〜171,615 円 |
| 備考 | 本ページは過去募集のアーカイブです。表示の金額は周辺相場・過去募集を踏まえた参考レンジであり、実際の契約金額・条件ではありません。 | ||
※上記みなし賃料(月額)は仲介手数料割引・無料&キャッシュバックを加味した高級賃貸バイブル限定の金額です。一般的なみなし賃料とは異なります。
【建物ページ】エスティメゾン恵比寿の詳細・最新空室はこちら▶▶選ばれる理由
仲介手数料無料・キャンペーン情報(毎月15名様限定)
〇仲介手数料割引キャンペーン
エスティメゾン恵比寿 302の口コミ・レビュー
エスティメゾン恵比寿 302、ここはただの住まいではなく、新たな人生の舞台となる舞踏会のような場所です。東京都渋谷区広尾に位置し、南の光が優雅に差し込むこのお部屋は、あなたを包み込む温かな雰囲気を醸し出しています。専有面積30.75㎡の中に、あなたの夢や希望が詰まっていると感じることでしょう。
思わず足を踏み入れれば、あなたを迎えるのは、デザイナーズの美学が息づく空間です。このエスティメゾン恵比…エスティメゾン恵比寿 302、ここはただの住まいではなく、新たな人生の舞台となる舞踏会のような場所です。東京都渋谷区広尾に位置し、南の光が優雅に差し込むこのお部屋は、あなたを包み込む温かな雰囲気を醸し出しています。専有面積30.75㎡の中に、あなたの夢や希望が詰まっていると感じることでしょう。
思わず足を踏み入れれば、あなたを迎えるのは、デザイナーズの美学が息づく空間です。このエスティメゾン恵比寿 302の中では、生活がまるで一篇の詩のように、流れゆく時間の中で磨かれ、輝きを放ちます。LDK10帖の広々とした空間は、朝のコーヒーの香りが漂い、窓から差し込む陽射しと共にさわやかな目覚めを与えてくれるでしょう。深呼吸をすれば、街の喧騒が遠くに感じられ、心がリフレッシュされるのを実感します。
また、エスティメゾン恵比寿 302の細部には、芸術的なセンスが光ります。オートロックやTVモニターホンといった最新の設備が、あなたの日常を安全に守りつつ、宅配ボックスを通じて、現代の利便性を享受できます。まるで、あなたの日常が映画のワンシーンのように、特別な瞬間に包まれるかのように感じるのです。
さらに、恵比寿駅から徒歩5分の立地は、あなたにとっての新たな発見の舞台を提供します。この街は、歴史や文化が息づく場所であり、様々なアートや美味しい料理が待っています。静かな午後、近くのカフェで本を手に取り、心地よい音楽を耳にしながら、ゆったりとした時間を過ごす様子が目に浮かびます。そんな生活の中には、洗練された人々や、素敵な作品との出会いが待っていることでしょう。
そして、日が暮れると、エスティメゾン恵比寿 302の窓からは、都会の美しい夜景が広がります。街の灯りがまるで星空のようにキラキラと輝き、その光の中であなたもまた、一層輝きを増すことでしょう。大切な友人を招き入れ、心温まる会話を交わしながら、特別な時間を分かち合うことができるのです。
エスティメゾン恵比寿 302は、ただの高級賃貸物件ではなく、あなたの人生の新たな章を綴るためのキャンバスです。ここで描いた全ての瞬間が、一生の宝物となることでしょう。さあ、この特別な空間であなた自身の物語を始めてみてはいかがでしょうか。豊かな感性が息づくこの場所で、あなたの人生がより一層素晴らしいものに変わることを、心から願っています。
思わず足を踏み入れれば、あなたを迎えるのは、デザイナーズの美学が息づく空間です。このエスティメゾン恵比…エスティメゾン恵比寿 302、ここはただの住まいではなく、新たな人生の舞台となる舞踏会のような場所です。東京都渋谷区広尾に位置し、南の光が優雅に差し込むこのお部屋は、あなたを包み込む温かな雰囲気を醸し出しています。専有面積30.75㎡の中に、あなたの夢や希望が詰まっていると感じることでしょう。
思わず足を踏み入れれば、あなたを迎えるのは、デザイナーズの美学が息づく空間です。このエスティメゾン恵比寿 302の中では、生活がまるで一篇の詩のように、流れゆく時間の中で磨かれ、輝きを放ちます。LDK10帖の広々とした空間は、朝のコーヒーの香りが漂い、窓から差し込む陽射しと共にさわやかな目覚めを与えてくれるでしょう。深呼吸をすれば、街の喧騒が遠くに感じられ、心がリフレッシュされるのを実感します。
また、エスティメゾン恵比寿 302の細部には、芸術的なセンスが光ります。オートロックやTVモニターホンといった最新の設備が、あなたの日常を安全に守りつつ、宅配ボックスを通じて、現代の利便性を享受できます。まるで、あなたの日常が映画のワンシーンのように、特別な瞬間に包まれるかのように感じるのです。
さらに、恵比寿駅から徒歩5分の立地は、あなたにとっての新たな発見の舞台を提供します。この街は、歴史や文化が息づく場所であり、様々なアートや美味しい料理が待っています。静かな午後、近くのカフェで本を手に取り、心地よい音楽を耳にしながら、ゆったりとした時間を過ごす様子が目に浮かびます。そんな生活の中には、洗練された人々や、素敵な作品との出会いが待っていることでしょう。
そして、日が暮れると、エスティメゾン恵比寿 302の窓からは、都会の美しい夜景が広がります。街の灯りがまるで星空のようにキラキラと輝き、その光の中であなたもまた、一層輝きを増すことでしょう。大切な友人を招き入れ、心温まる会話を交わしながら、特別な時間を分かち合うことができるのです。
エスティメゾン恵比寿 302は、ただの高級賃貸物件ではなく、あなたの人生の新たな章を綴るためのキャンバスです。ここで描いた全ての瞬間が、一生の宝物となることでしょう。さあ、この特別な空間であなた自身の物語を始めてみてはいかがでしょうか。豊かな感性が息づくこの場所で、あなたの人生がより一層素晴らしいものに変わることを、心から願っています。
バイブルスコア
バイブルスコア: 32.3
平均的なスコアです。
※バイブルスコア詳細はこちら
バイブルスコアとは独自のAI機械学習技術を利用した物件評価システムで、物件のおすすめ度を示します。最高得点は100点で、スコアが高いほど、よりおすすめの物件と評価されています。
写真
現在写真が登録されていません契約条件
| 賃料 | 予想金額:132,000〜152,000円程度 | 管理費 | 予想金額:8,000〜12,000円程度 |
| 礼金 | 非公開(アーカイブ) | 敷金 | 非公開(アーカイブ) |
| フリーレント | なし | 平米数 | 30.75㎡ |
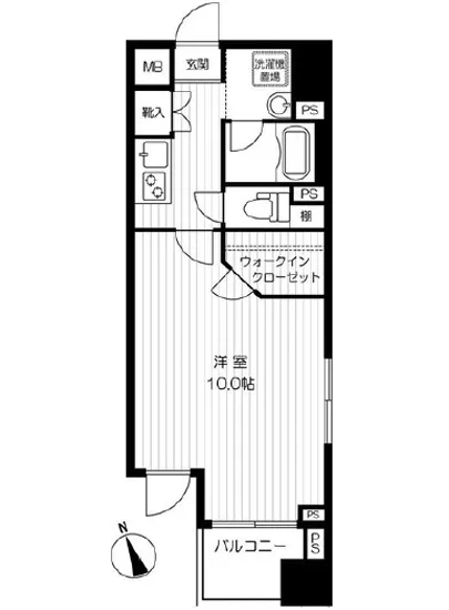
| 間取り | 1K | 大型収納 | WIC |
| 契約期間 |
| 方角 | 南 |
| 更新料 | 契約形態 | 普通賃貸借契約 | |
| 取引態様 | 媒介 | 内見状況 | 入居中 |
| 入居時期 | 入居中 | SOHO・事務所 | |
| ペット | ペット可 | 間取り内訳 | R=10J |
| キャンペーン情報・備考 | 本情報は賃料改定交渉の資料作成、収益物件の利回り試算、周辺エリアや最寄り駅の坪単価分析、次回募集開始時期の予測などにご活用いただけます。 | ||
※「どの不動産に頼めばいいのか分からない」「信頼できる営業マンの話を聞きたい」「一番親切な会社と契約したい」とお悩みの方におすすめなのが「高級賃貸バイブル」です。
高級賃貸バイブルは業界10年以上の熟練スタッフ群がお客様ファーストで対応します。
下記ボタンから、まずは無料でご相談下さい。
※内覧をご希望の際には、どうぞ物件のエントランス前にてお待ち合わせくださいませ。ご内覧後は、同じ場所でお別れとさせていただきます。お客様のご都合に合わせたスムーズなご案内を心がけておりますので、ご質問等がございましたら何なりとお申し付けください。 物件概要
| 物件名 |
| 築年月 |
|
|---|---|---|---|
| 所在地 | |||
| 交通 | |||
| 総戸数 |
| 総階数 |
|
| 構造 |
| ||
地図
物件までの道のりは、「拡大地図を表示」をクリックしてナビ機能をご利用ください。
部屋設備

















建物設備

TVモニターホン

エレベーター

オートロック

宅配ボックス

敷地内ゴミ置場

駐輪場
エスティメゾン恵比寿の現在募集中のお部屋
- No rooms found for this property.
