
| 賃料 | 予想金額:135,000〜155,000円程度 | 管理費 | 予想金額:0〜2,000円程度 |
| 礼金/敷金 | 非公開(アーカイブ) | 平米数 | 48㎡ |
| 初期費用概算(参考) | 目安:549,000〜649,000 円 | みなし賃料(月額・参考) | 144,458〜164,458 円 |
| 備考 | 本ページは過去募集のアーカイブです。表示の金額は周辺相場・過去募集を踏まえた参考レンジであり、実際の契約金額・条件ではありません。 | ||
※上記みなし賃料(月額)は仲介手数料割引・無料&キャッシュバックを加味した高級賃貸バイブル限定の金額です。一般的なみなし賃料とは異なります。
【建物ページ】ハイネス麻布の詳細・最新空室はこちら▶▶選ばれる理由
仲介手数料無料・キャンペーン情報(毎月15名様限定)
〇仲介手数料割引キャンペーン
ハイネス麻布 3階 48㎡の口コミ・レビュー
ハイネス麻布 3階 48㎡。この名前は、まるであなたの新しい人生の幕を開けるかのような響きを持っております。東京都港区西麻布3-20-9、シティライフの中心地に位置し、あなたを魅了するエレガンスが漂っている場所です。この物件は単なる住まいではなく、生活の舞台、まるで映画の一シーンのように、あなたを包み込む場所なのです。
3階という高低差は、まさにあなたの目の前に広がる新しい景色を与えることを意味…ハイネス麻布 3階 48㎡。この名前は、まるであなたの新しい人生の幕を開けるかのような響きを持っております。東京都港区西麻布3-20-9、シティライフの中心地に位置し、あなたを魅了するエレガンスが漂っている場所です。この物件は単なる住まいではなく、生活の舞台、まるで映画の一シーンのように、あなたを包み込む場所なのです。
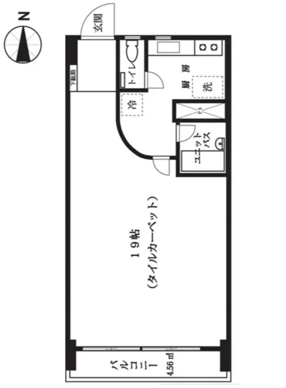
3階という高低差は、まさにあなたの目の前に広がる新しい景色を与えることを意味します。南に向かって開かれたその窓から差し込む日差しは、温かな光のカーテンのように、柔らかく室内を包み込みます。ほのかに香るコーヒーの香りが漂うリビングで、心地よい朝を迎えると、それはまるで一流のカフェにいるかのよう。19帖の広々とした居室は、あなたの想像力を掻き立て、どんなインテリアでも引き立てるキャンバスとなります。
ハイネス麻布には、ヴィンテージの魅力が息づいています。年月を経たその壁は、過去の物語を語り、住まう人々の息吹を感じさせる存在です。エレベーターでの上昇は、まるで雲の上へ昇る感覚。日常の煩わしさを忘れ、心が高揺れる瞬間がここには隠されています。そして、敷地内のゴミ置場や駐車場は、あなたの暮らしを一層便利にし、静謐な環境を提供します。
最寄りの六本木駅までの徒歩6分は、都会の喧騒から少し離れ、自分だけの時間を楽しむチャンスです。静かなる西麻布の街並みを散策すると、歴史ある建物やアートギャラリーが、まるで静かな語り部のようにあなたに語りかけてきます。昼下がりにアートに触れ、夜には美味しい食事を楽しむ。そんな日常が、まるで映画のワンシーンのように思い描けるのです。
ハイネス麻布での暮らしは、あなた自身が主人公となる物語です。日々の生活が詩的で喜びに満ちたものになることでしょう。触れたもの全てに意味があり、そこに存在するだけで特別な体験を得られます。日曜のブランチには、高級なバターの香りと共に焼き上げたクロワッサンが、優雅な時間を提供してくれることでしょう。そんな瞬間があなたを贅沢な気持ちにさせ、日常に彩りを加えるのです。
結局のところ、ハイネス麻布はただの住まいではなく、あなたの生活を豊かにするためのキャンバス。ここでの毎日は、心に深く刻まれることでしょう。あなたの新しい居場所として、ハイネス麻布 3階 48㎡が心の奥底からあなたを待っているのです。さあ、新たな物語の第一ページをめくりましょう。
3階という高低差は、まさにあなたの目の前に広がる新しい景色を与えることを意味…ハイネス麻布 3階 48㎡。この名前は、まるであなたの新しい人生の幕を開けるかのような響きを持っております。東京都港区西麻布3-20-9、シティライフの中心地に位置し、あなたを魅了するエレガンスが漂っている場所です。この物件は単なる住まいではなく、生活の舞台、まるで映画の一シーンのように、あなたを包み込む場所なのです。
3階という高低差は、まさにあなたの目の前に広がる新しい景色を与えることを意味します。南に向かって開かれたその窓から差し込む日差しは、温かな光のカーテンのように、柔らかく室内を包み込みます。ほのかに香るコーヒーの香りが漂うリビングで、心地よい朝を迎えると、それはまるで一流のカフェにいるかのよう。19帖の広々とした居室は、あなたの想像力を掻き立て、どんなインテリアでも引き立てるキャンバスとなります。
ハイネス麻布には、ヴィンテージの魅力が息づいています。年月を経たその壁は、過去の物語を語り、住まう人々の息吹を感じさせる存在です。エレベーターでの上昇は、まるで雲の上へ昇る感覚。日常の煩わしさを忘れ、心が高揺れる瞬間がここには隠されています。そして、敷地内のゴミ置場や駐車場は、あなたの暮らしを一層便利にし、静謐な環境を提供します。
最寄りの六本木駅までの徒歩6分は、都会の喧騒から少し離れ、自分だけの時間を楽しむチャンスです。静かなる西麻布の街並みを散策すると、歴史ある建物やアートギャラリーが、まるで静かな語り部のようにあなたに語りかけてきます。昼下がりにアートに触れ、夜には美味しい食事を楽しむ。そんな日常が、まるで映画のワンシーンのように思い描けるのです。
ハイネス麻布での暮らしは、あなた自身が主人公となる物語です。日々の生活が詩的で喜びに満ちたものになることでしょう。触れたもの全てに意味があり、そこに存在するだけで特別な体験を得られます。日曜のブランチには、高級なバターの香りと共に焼き上げたクロワッサンが、優雅な時間を提供してくれることでしょう。そんな瞬間があなたを贅沢な気持ちにさせ、日常に彩りを加えるのです。
結局のところ、ハイネス麻布はただの住まいではなく、あなたの生活を豊かにするためのキャンバス。ここでの毎日は、心に深く刻まれることでしょう。あなたの新しい居場所として、ハイネス麻布 3階 48㎡が心の奥底からあなたを待っているのです。さあ、新たな物語の第一ページをめくりましょう。
バイブルスコア
バイブルスコア: 38.2
平均的なスコアです。
※バイブルスコア詳細はこちら
バイブルスコアとは独自のAI機械学習技術を利用した物件評価システムで、物件のおすすめ度を示します。最高得点は100点で、スコアが高いほど、よりおすすめの物件と評価されています。
写真
現在写真が登録されていません契約条件
| 賃料 | 予想金額:135,000〜155,000円程度 | 管理費 | 予想金額:0〜2,000円程度 |
| 礼金 | 非公開(アーカイブ) | 敷金 | 非公開(アーカイブ) |
| フリーレント | なし | 平米数 | 48㎡ |
| 間取り | 1K | 大型収納 | |
| 契約期間 |
| 方角 | 南 |
| 更新料 | 契約形態 | 普通賃貸借契約 | |
| 取引態様 | 媒介 | 内見状況 | 入居中 |
| 入居時期 | 入居中 | SOHO・事務所 | 事務所(SOHO)可 |
| ペット | 間取り内訳 | BR=19J | |
| キャンペーン情報・備考 | 本情報は賃料改定交渉の資料作成、収益物件の利回り試算、周辺エリアや最寄り駅の坪単価分析、次回募集開始時期の予測などにご活用いただけます。 | ||
※「どの不動産に頼めばいいのか分からない」「信頼できる営業マンの話を聞きたい」「一番親切な会社と契約したい」とお悩みの方におすすめなのが「高級賃貸バイブル」です。
高級賃貸バイブルは業界10年以上の熟練スタッフ群がお客様ファーストで対応します。
下記ボタンから、まずは無料でご相談下さい。
※内覧をご希望の際には、どうぞ物件のエントランス前にてお待ち合わせくださいませ。ご内覧後は、同じ場所でお別れとさせていただきます。お客様のご都合に合わせたスムーズなご案内を心がけておりますので、ご質問等がございましたら何なりとお申し付けください。 物件概要
| 物件名 |
| 築年月 |
|
|---|---|---|---|
| 所在地 | |||
| 交通 | |||
| 総戸数 |
| 総階数 |
|
| 構造 |
| ||
地図
物件までの道のりは、「拡大地図を表示」をクリックしてナビ機能をご利用ください。
部屋設備







建物設備

エレベーター

敷地内ゴミ置場

駐車場平置き

駐輪場
ハイネス麻布の現在募集中のお部屋
- No rooms found for this property.
