
| 賃料 | 予想金額:149,000〜169,000円程度 | 管理費 | 予想金額:4,000〜8,000円程度 |
| 礼金/敷金 | 非公開(アーカイブ) | 平米数 | 35.43㎡ |
| 初期費用概算(参考) | 目安:766,000〜866,000 円 | みなし賃料(月額・参考) | 168,688〜188,688 円 |
| 備考 | 本ページは過去募集のアーカイブです。表示の金額は周辺相場・過去募集を踏まえた参考レンジであり、実際の契約金額・条件ではありません。 | ||
※上記みなし賃料(月額)は仲介手数料割引・無料&キャッシュバックを加味した高級賃貸バイブル限定の金額です。一般的なみなし賃料とは異なります。
【建物ページ】ジェラ恵比寿レジデンスの詳細・最新空室はこちら▶▶選ばれる理由
仲介手数料無料・キャンペーン情報(毎月15名様限定)
〇仲介手数料割引キャンペーン
ジェラ恵比寿レジデンス 8階 35.43㎡の口コミ・レビュー
ジェラ恵比寿レジデンス 8階 35.43㎡は、まるで都市の喧騒から一歩離れたオアシスのように、貴方を待っています。恵比寿の中心地に位置し、わずか徒歩3分の距離にある東京メトロ日比谷線恵比寿駅は、都会の便利さを手に入れた瞬間を体験させてくれるでしょう。この物件はただの住まいではなく、あなた自身のストーリーを描くキャンバスなのです。
8階からの景色は、まるで絵画のように心を打ち、日々の疲れを癒してく…ジェラ恵比寿レジデンス 8階 35.43㎡は、まるで都市の喧騒から一歩離れたオアシスのように、貴方を待っています。恵比寿の中心地に位置し、わずか徒歩3分の距離にある東京メトロ日比谷線恵比寿駅は、都会の便利さを手に入れた瞬間を体験させてくれるでしょう。この物件はただの住まいではなく、あなた自身のストーリーを描くキャンバスなのです。
8階からの景色は、まるで絵画のように心を打ち、日々の疲れを癒してくれる特別な空間です。西と南から射し込む光が、柔らかく部屋を包み込み、朝の目覚めを祝福してくれます。カーテンを開けた瞬間、温かな日差しがあなたの肌に触れ、その優しさに思わず微笑んでしまうことでしょう。
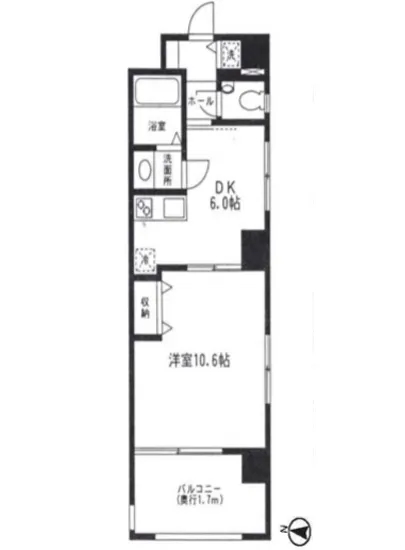
住まいの内部、洋室は10.6帖、ダイニングキッチンは6帖という絶妙なバランスで配置され、心地良い開放感を生み出します。この空間は、あなたの好きな家具で彩られ、様々な生活シーンを描くことができます。無垢の木のテーブルに美しい花を飾り、友人たちを招いての楽しいディナーは、まるで映画の一幕のようにパッと華やかに広がります。食卓から漂う料理の香ばしさや、笑い声が響く瞬間は、心に深く刻まれる宝物となることでしょう。
ジェラ恵比寿レジデンス 8階 35.43㎡は、24時間管理されているため、安心感に包まれています。オートロックや宅配ボックスなどの設備も整い、日常の煩わしさから解放され、快適な生活をお約束します。エレベーターを使って上がるその瞬間、まるで自分だけの特別な秘密の場所にアクセスするかのような高揚感を感じることでしょう。
周辺は恵比寿の洗練された文化と歴史に満ちています。近くにはアートギャラリーやカフェが点在し、散策するたびに新たな発見と出会える場所となっています。歴史ある街並みが織り成す独自の雰囲気は、日々の生活に華やかさを添えてくれます。足を運んだ先で出会う美しい景色は、心の栄養となるでしょう。
まるでジェラ恵比寿レジデンス 8階 35.43㎡が、貴方の物語の主役であり、生活の舞台であるかのように感じられます。この場所であなたの新しい生活が始まるとき、心の奥深くに響く感動が待っています。生活の一瞬一瞬が、愛おしい映画のシーンとなり、あなた自身の人生をより美しく彩ることでしょう。どうぞ、この素晴らしい空間での新たな物語を紡ぐ準備を始めてください。あなたの特別な場所が、ここにあるのです。
8階からの景色は、まるで絵画のように心を打ち、日々の疲れを癒してく…ジェラ恵比寿レジデンス 8階 35.43㎡は、まるで都市の喧騒から一歩離れたオアシスのように、貴方を待っています。恵比寿の中心地に位置し、わずか徒歩3分の距離にある東京メトロ日比谷線恵比寿駅は、都会の便利さを手に入れた瞬間を体験させてくれるでしょう。この物件はただの住まいではなく、あなた自身のストーリーを描くキャンバスなのです。
8階からの景色は、まるで絵画のように心を打ち、日々の疲れを癒してくれる特別な空間です。西と南から射し込む光が、柔らかく部屋を包み込み、朝の目覚めを祝福してくれます。カーテンを開けた瞬間、温かな日差しがあなたの肌に触れ、その優しさに思わず微笑んでしまうことでしょう。
住まいの内部、洋室は10.6帖、ダイニングキッチンは6帖という絶妙なバランスで配置され、心地良い開放感を生み出します。この空間は、あなたの好きな家具で彩られ、様々な生活シーンを描くことができます。無垢の木のテーブルに美しい花を飾り、友人たちを招いての楽しいディナーは、まるで映画の一幕のようにパッと華やかに広がります。食卓から漂う料理の香ばしさや、笑い声が響く瞬間は、心に深く刻まれる宝物となることでしょう。
ジェラ恵比寿レジデンス 8階 35.43㎡は、24時間管理されているため、安心感に包まれています。オートロックや宅配ボックスなどの設備も整い、日常の煩わしさから解放され、快適な生活をお約束します。エレベーターを使って上がるその瞬間、まるで自分だけの特別な秘密の場所にアクセスするかのような高揚感を感じることでしょう。
周辺は恵比寿の洗練された文化と歴史に満ちています。近くにはアートギャラリーやカフェが点在し、散策するたびに新たな発見と出会える場所となっています。歴史ある街並みが織り成す独自の雰囲気は、日々の生活に華やかさを添えてくれます。足を運んだ先で出会う美しい景色は、心の栄養となるでしょう。
まるでジェラ恵比寿レジデンス 8階 35.43㎡が、貴方の物語の主役であり、生活の舞台であるかのように感じられます。この場所であなたの新しい生活が始まるとき、心の奥深くに響く感動が待っています。生活の一瞬一瞬が、愛おしい映画のシーンとなり、あなた自身の人生をより美しく彩ることでしょう。どうぞ、この素晴らしい空間での新たな物語を紡ぐ準備を始めてください。あなたの特別な場所が、ここにあるのです。
バイブルスコア
バイブルスコア: 32.3
平均的なスコアです。
※バイブルスコア詳細はこちら
バイブルスコアとは独自のAI機械学習技術を利用した物件評価システムで、物件のおすすめ度を示します。最高得点は100点で、スコアが高いほど、よりおすすめの物件と評価されています。
写真
契約条件
| 賃料 | 予想金額:149,000〜169,000円程度 | 管理費 | 予想金額:4,000〜8,000円程度 |
| 礼金 | 非公開(アーカイブ) | 敷金 | 非公開(アーカイブ) |
| フリーレント | なし | 平米数 | 35.43㎡ |
| 間取り | 1DK | 大型収納 | |
| 契約期間 |
| 方角 | 西 / 南 |
| 更新料 | 契約形態 | 普通賃貸借契約 | |
| 取引態様 | 媒介 | 内見状況 | 入居中 |
| 入居時期 | 入居中 | SOHO・事務所 | 事務所(SOHO)可 |
| ペット | 間取り内訳 | 洋:10.6 DK:6 | |
| キャンペーン情報・備考 | 本情報は賃料改定交渉の資料作成、収益物件の利回り試算、周辺エリアや最寄り駅の坪単価分析、次回募集開始時期の予測などにご活用いただけます。 | ||
※「どの不動産に頼めばいいのか分からない」「信頼できる営業マンの話を聞きたい」「一番親切な会社と契約したい」とお悩みの方におすすめなのが「高級賃貸バイブル」です。
高級賃貸バイブルは業界10年以上の熟練スタッフ群がお客様ファーストで対応します。
下記ボタンから、まずは無料でご相談下さい。
※内覧をご希望の際には、どうぞ物件のエントランス前にてお待ち合わせくださいませ。ご内覧後は、同じ場所でお別れとさせていただきます。お客様のご都合に合わせたスムーズなご案内を心がけておりますので、ご質問等がございましたら何なりとお申し付けください。 物件概要
| 物件名 |
| 築年月 |
|
|---|---|---|---|
| 所在地 | |||
| 交通 | |||
| 総戸数 |
| 総階数 |
|
| 構造 |
| ||
地図
物件までの道のりは、「拡大地図を表示」をクリックしてナビ機能をご利用ください。
部屋設備














建物設備

24時間管理

TVモニターホン

エレベーター

オートロック

宅配ボックス

敷地内ゴミ置場

管理人

駐輪場
ジェラ恵比寿レジデンスの現在募集中のお部屋
- No rooms found for this property.




















