
| 賃料 | 予想金額:840,000〜860,000円程度 | 管理費 | 予想金額:38,000〜42,000円程度 |
| 礼金/敷金 | 非公開(アーカイブ) | 平米数 | 111.54㎡ |
| 初期費用概算(参考) | 目安:3,855,000〜3,955,000 円 | みなし賃料(月額・参考) | 943,646〜963,646 円 |
| 備考 | 本ページは過去募集のアーカイブです。表示の金額は周辺相場・過去募集を踏まえた参考レンジであり、実際の契約金額・条件ではありません。 | ||
※上記みなし賃料(月額)は仲介手数料割引・無料&キャッシュバックを加味した高級賃貸バイブル限定の金額です。一般的なみなし賃料とは異なります。
【建物ページ】Wコンフォートタワーズウエストの詳細・最新空室はこちら▶▶選ばれる理由
仲介手数料無料・キャンペーン情報(毎月15名様限定)
〇仲介手数料無料キャンペーン
Wコンフォートタワーズ WEST 43階 111.54㎡の口コミ・レビュー
Wコンフォートタワーズ WEST 43階 111.54㎡は、まるであなたに語りかけてくるかのような、極上の住まいです。この高層タワーは、東京の街並みを一望できる特別な場所に佇んでいます。あなたがこの美しい空間に足を踏み入れると、広がるのは緑のジュータンのような公園や、煌めく水面を持つ豊洲の眺め。まるで映画のワンシーンを切り取ったかのように、目の前に広がる景色があなたを魅了します。
Wコンフォート…Wコンフォートタワーズ WEST 43階 111.54㎡は、まるであなたに語りかけてくるかのような、極上の住まいです。この高層タワーは、東京の街並みを一望できる特別な場所に佇んでいます。あなたがこの美しい空間に足を踏み入れると、広がるのは緑のジュータンのような公園や、煌めく水面を持つ豊洲の眺め。まるで映画のワンシーンを切り取ったかのように、目の前に広がる景色があなたを魅了します。
Wコンフォートタワーズ WESTの中に足を運ぶと、まずあなたを迎えるのは、洗練されたフロントサービスとラウンジの温かさです。心地よい香りのする静寂な空間が、現実からの逃避を可能にします。エレベーターで43階へ上がる間、窓の向こうに広がる空の青さに心が躍り、日常から解放される感覚を味わえることでしょう。
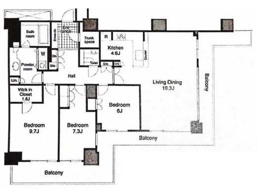
この物件の間取りは、LDK23.9帖、洋室9.7帖、洋室7.3帖、洋室6帖の設計美が息づく3LDK+WICです。あなたの生活に寄り添うその形は、まるであなた自身のライフスタイルを映し出すキャンバスのようです。LDKで過ごすひとときは、家族や友人と笑い合いながら料理を楽しむシーンを思い描かせ、まるで美味しい料理の香りが漂ってくるかのようです。洋室の一つは、静かな読書のための隠れ家として、また別の洋室は、夢を描くスチューデンシアとして、あなたの思い描くシーンにぴったりの場所となるでしょう。
このWコンフォートタワーズ WESTには、24時間の管理体制が整っているため、安心して過ごすことができます。オートロックの扉を開ける瞬間に感じる安全感、宅配ボックスから届く贈り物を開ける時のワクワク感、そしてフィットネス施設で身体を動かす爽快感は、日々の生活に彩りを与えます。駐車場から車を降りた瞬間、まるで自分自身が特別な存在であるかのような特権感を味わうことができるでしょう。
周囲には、豊洲市場や緑豊かな公園があり、文化と自然との出会いが日常の中に広がっています。近隣の街並みには、アート作品や歴史的な建物が点在し、それぞれのストーリーがあなたを待っています。Wコンフォートタワーズ WESTがあるこのエリアは、ただの居住空間ではなく、生活そのものが芸術であるかのような豊かな環境を提供してくれます。
この住まいは、朝の新鮮な空気を吸い込む瞬間、夕暮れ時に街の灯りがともる瞬間、そして夜の静寂の中で星を眺める瞬間を通じて、あなたの心に深く刻まれることでしょう。Wコンフォートタワーズ WEST 43階 111.54㎡は、贅沢な日常を演出し、あなた自身の人生をより豊かに彩る舞台となることをお約束いたします。ここに住むことは、ただの生活ではなく、心に残る記憶を創る旅そのものです。
Wコンフォート…Wコンフォートタワーズ WEST 43階 111.54㎡は、まるであなたに語りかけてくるかのような、極上の住まいです。この高層タワーは、東京の街並みを一望できる特別な場所に佇んでいます。あなたがこの美しい空間に足を踏み入れると、広がるのは緑のジュータンのような公園や、煌めく水面を持つ豊洲の眺め。まるで映画のワンシーンを切り取ったかのように、目の前に広がる景色があなたを魅了します。
Wコンフォートタワーズ WESTの中に足を運ぶと、まずあなたを迎えるのは、洗練されたフロントサービスとラウンジの温かさです。心地よい香りのする静寂な空間が、現実からの逃避を可能にします。エレベーターで43階へ上がる間、窓の向こうに広がる空の青さに心が躍り、日常から解放される感覚を味わえることでしょう。
この物件の間取りは、LDK23.9帖、洋室9.7帖、洋室7.3帖、洋室6帖の設計美が息づく3LDK+WICです。あなたの生活に寄り添うその形は、まるであなた自身のライフスタイルを映し出すキャンバスのようです。LDKで過ごすひとときは、家族や友人と笑い合いながら料理を楽しむシーンを思い描かせ、まるで美味しい料理の香りが漂ってくるかのようです。洋室の一つは、静かな読書のための隠れ家として、また別の洋室は、夢を描くスチューデンシアとして、あなたの思い描くシーンにぴったりの場所となるでしょう。
このWコンフォートタワーズ WESTには、24時間の管理体制が整っているため、安心して過ごすことができます。オートロックの扉を開ける瞬間に感じる安全感、宅配ボックスから届く贈り物を開ける時のワクワク感、そしてフィットネス施設で身体を動かす爽快感は、日々の生活に彩りを与えます。駐車場から車を降りた瞬間、まるで自分自身が特別な存在であるかのような特権感を味わうことができるでしょう。
周囲には、豊洲市場や緑豊かな公園があり、文化と自然との出会いが日常の中に広がっています。近隣の街並みには、アート作品や歴史的な建物が点在し、それぞれのストーリーがあなたを待っています。Wコンフォートタワーズ WESTがあるこのエリアは、ただの居住空間ではなく、生活そのものが芸術であるかのような豊かな環境を提供してくれます。
この住まいは、朝の新鮮な空気を吸い込む瞬間、夕暮れ時に街の灯りがともる瞬間、そして夜の静寂の中で星を眺める瞬間を通じて、あなたの心に深く刻まれることでしょう。Wコンフォートタワーズ WEST 43階 111.54㎡は、贅沢な日常を演出し、あなた自身の人生をより豊かに彩る舞台となることをお約束いたします。ここに住むことは、ただの生活ではなく、心に残る記憶を創る旅そのものです。
バイブルスコア
バイブルスコア: 30.6
平均的なスコアです。
※バイブルスコア詳細はこちら
バイブルスコアとは独自のAI機械学習技術を利用した物件評価システムで、物件のおすすめ度を示します。最高得点は100点で、スコアが高いほど、よりおすすめの物件と評価されています。
写真
契約条件
| 賃料 | 予想金額:840,000〜860,000円程度 | 管理費 | 予想金額:38,000〜42,000円程度 |
| 礼金 | 非公開(アーカイブ) | 敷金 | 非公開(アーカイブ) |
| フリーレント | なし | 平米数 | 111.54㎡ |
| 間取り | 3LDK+WIC | 大型収納 | WIC |
| 契約期間 | 2年 | 方角 | |
| 更新料 | 1ヶ月 | 契約形態 | 普通賃貸借契約 |
| 取引態様 | 媒介 | 内見状況 | 入居中 |
| 入居時期 | 入居中 | SOHO・事務所 | 可 |
| ペット | 不可 | 間取り内訳 | LDK23.9帖 洋室9.7帖 洋室7.3帖 洋室6帖 |
| キャンペーン情報・備考 | 本情報は賃料改定交渉の資料作成、収益物件の利回り試算、周辺エリアや最寄り駅の坪単価分析、次回募集開始時期の予測などにご活用いただけます。 | ||
※「どの不動産に頼めばいいのか分からない」「信頼できる営業マンの話を聞きたい」「一番親切な会社と契約したい」とお悩みの方におすすめなのが「高級賃貸バイブル」です。
高級賃貸バイブルは業界10年以上の熟練スタッフ群がお客様ファーストで対応します。
下記ボタンから、まずは無料でご相談下さい。
※内覧をご希望の際には、どうぞ物件のエントランス前にてお待ち合わせくださいませ。ご内覧後は、同じ場所でお別れとさせていただきます。お客様のご都合に合わせたスムーズなご案内を心がけておりますので、ご質問等がございましたら何なりとお申し付けください。 物件概要
| 物件名 |
| 築年月 |
|
|---|---|---|---|
| 所在地 | |||
| 交通 | |||
| 総戸数 |
| 総階数 |
|
| 構造 |
| ||
地図
物件までの道のりは、「拡大地図を表示」をクリックしてナビ機能をご利用ください。
部屋設備













建物設備

24時間管理

TVモニターホン

エレベーター

オートロック

バイク置場

フィットネス

フロントサービス

ラウンジ

宅配ボックス

敷地内ゴミ置場

管理人

駐車場平置き

駐車場機械式

駐輪場
Wコンフォートタワーズウエストの現在募集中のお部屋
- Wコンフォートタワーズ WEST 13階 58.36㎡ - 間取り: 1LDK+WIC - 賃料: 20万円
- Wコンフォートタワーズ WEST 31階 85.35㎡ - 間取り: 2LDK+WIC+SIC - 賃料: 29.5万円








