
| 賃料 | 予想金額:172,000〜192,000円程度 | 管理費 | 予想金額:0〜2,000円程度 |
| 礼金/敷金 | 非公開(アーカイブ) | 平米数 | 44.66㎡ |
| 初期費用概算(参考) | 目安:695,000〜795,000 円 | みなし賃料(月額・参考) | 183,729〜203,729 円 |
| 備考 | 本ページは過去募集のアーカイブです。表示の金額は周辺相場・過去募集を踏まえた参考レンジであり、実際の契約金額・条件ではありません。 | ||
※上記みなし賃料(月額)は仲介手数料割引・無料&キャッシュバックを加味した高級賃貸バイブル限定の金額です。一般的なみなし賃料とは異なります。
【建物ページ】スカイコートお茶の水の詳細・最新空室はこちら▶▶選ばれる理由
仲介手数料無料・キャンペーン情報(毎月15名様限定)
〇仲介手数料割引キャンペーン
スカイコートお茶の水 504の口コミ・レビュー
スカイコートお茶の水 504、これがあなたの新たな住処の名です。南東を望むこの素晴らしい空間は、ただの住まいではなく、日々の暮らしを美しく彩る舞台のように思えてなりません。東京都千代田区の猿楽町という歴史と文化の息づく地域に身を置くことで、あなたは毎朝、新たな物語の主人公となることでしょう。
その扉を開けば、まず目に飛び込むのは、重厚感のある洋室6帖の落ち着きある空間。ここには、あなたの大切な思…スカイコートお茶の水 504、これがあなたの新たな住処の名です。南東を望むこの素晴らしい空間は、ただの住まいではなく、日々の暮らしを美しく彩る舞台のように思えてなりません。東京都千代田区の猿楽町という歴史と文化の息づく地域に身を置くことで、あなたは毎朝、新たな物語の主人公となることでしょう。
その扉を開けば、まず目に飛び込むのは、重厚感のある洋室6帖の落ち着きある空間。ここには、あなたの大切な思い出を刻むためのキャンバスが広がっています。リラックスしたい時には、この空間に心地よい音楽を流し、窓を開ければ、外から聞こえるそよ風のささやきと共に、都心とは思えない穏やかな静寂が広がっていることでしょう。朝日が差し込み、夜に星が瞬く様子は、まるで映画の一コマのように美しい瞬間です。
そして、13.3帖のLDKは、単なる生活空間を超え、家族や友人と笑顔を交わすための特別なシーンを生み出します。料理の香りが立ち込めるキッチンでは、あなたの創造力が輝き、色とりどりの食材が織りなす美味なる饗宴が始まります。家族と囲む食卓では、会話が弾み、笑い声が絶えず、心温まる時間が流れることでしょう。このLDKは、あなたの人生の新たな思い出を育むための舞台なのです。
スカイコートお茶の水 504には、心強い設備も整っています。オートロックや宅配ボックス、管理人の存在は、あなたの安心感を高め、日常のストレスを軽減してくれます。暮らしの中で、あなたの時間を大切にするためのサポートが揃っています。この場所での暮らしは、まるで特別なサービスを受けているかのような感覚すら与えてくれるでしょう。
また、都営地下鉄三田線水道橋駅まで徒歩6分という好立地は、あなたの日常を一層魅力的に演出します。文化と歴史が交錯するこの地域は、アートギャラリーや歴史的建造物、隠れたカフェが点在しています。休日には、周囲の美しい風景を散策しながら、心の栄養を楽しむこともできるのです。忙しい日常からふと解放され、心豊かな時間を手に入れることができるでしょう。
スカイコートお茶の水 504は、ただの住まいではなく、あなたの新しい生活の始まりを告げる場所です。この場所で、あなた自身の物語を紡ぎ、心と体が満たされる瞬間を享受してください。新たな生活の扉を開けるこの場所で、あなたと「暮らす」ことを、私は心から待ち望んでいます。スカイコートお茶の水 504が、あなたの暮らしの舞台となることを心より願っています。
その扉を開けば、まず目に飛び込むのは、重厚感のある洋室6帖の落ち着きある空間。ここには、あなたの大切な思…スカイコートお茶の水 504、これがあなたの新たな住処の名です。南東を望むこの素晴らしい空間は、ただの住まいではなく、日々の暮らしを美しく彩る舞台のように思えてなりません。東京都千代田区の猿楽町という歴史と文化の息づく地域に身を置くことで、あなたは毎朝、新たな物語の主人公となることでしょう。
その扉を開けば、まず目に飛び込むのは、重厚感のある洋室6帖の落ち着きある空間。ここには、あなたの大切な思い出を刻むためのキャンバスが広がっています。リラックスしたい時には、この空間に心地よい音楽を流し、窓を開ければ、外から聞こえるそよ風のささやきと共に、都心とは思えない穏やかな静寂が広がっていることでしょう。朝日が差し込み、夜に星が瞬く様子は、まるで映画の一コマのように美しい瞬間です。
そして、13.3帖のLDKは、単なる生活空間を超え、家族や友人と笑顔を交わすための特別なシーンを生み出します。料理の香りが立ち込めるキッチンでは、あなたの創造力が輝き、色とりどりの食材が織りなす美味なる饗宴が始まります。家族と囲む食卓では、会話が弾み、笑い声が絶えず、心温まる時間が流れることでしょう。このLDKは、あなたの人生の新たな思い出を育むための舞台なのです。
スカイコートお茶の水 504には、心強い設備も整っています。オートロックや宅配ボックス、管理人の存在は、あなたの安心感を高め、日常のストレスを軽減してくれます。暮らしの中で、あなたの時間を大切にするためのサポートが揃っています。この場所での暮らしは、まるで特別なサービスを受けているかのような感覚すら与えてくれるでしょう。
また、都営地下鉄三田線水道橋駅まで徒歩6分という好立地は、あなたの日常を一層魅力的に演出します。文化と歴史が交錯するこの地域は、アートギャラリーや歴史的建造物、隠れたカフェが点在しています。休日には、周囲の美しい風景を散策しながら、心の栄養を楽しむこともできるのです。忙しい日常からふと解放され、心豊かな時間を手に入れることができるでしょう。
スカイコートお茶の水 504は、ただの住まいではなく、あなたの新しい生活の始まりを告げる場所です。この場所で、あなた自身の物語を紡ぎ、心と体が満たされる瞬間を享受してください。新たな生活の扉を開けるこの場所で、あなたと「暮らす」ことを、私は心から待ち望んでいます。スカイコートお茶の水 504が、あなたの暮らしの舞台となることを心より願っています。
バイブルスコア
バイブルスコア: 69.6
かなり条件の良い物件です、即仮押さえをおすすめする物件です!
このお部屋は、現在ご入居中のため空室情報はございません。ただし、将来的に募集が開始される際、バイブルスコアにおいて非常に高い評価が期待されます。特にご興味をお持ちの方は、今のうちにブックマークやお気に入りに登録していただくと、募集開始のお知らせをすぐに受け取ることができます。是非ともご検討くださいませ。
※バイブルスコア詳細はこちら
バイブルスコアとは独自のAI機械学習技術を利用した物件評価システムで、物件のおすすめ度を示します。最高得点は100点で、スコアが高いほど、よりおすすめの物件と評価されています。
写真
契約条件
| 賃料 | 予想金額:172,000〜192,000円程度 | 管理費 | 予想金額:0〜2,000円程度 |
| 礼金 | 非公開(アーカイブ) | 敷金 | 非公開(アーカイブ) |
| フリーレント | なし | 平米数 | 44.66㎡ |
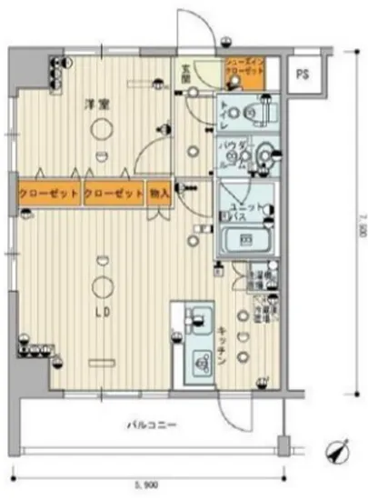
| 間取り | 1LDK | 大型収納 | SIC |
| 契約期間 | 2年 | 方角 | 南東 |
| 更新料 | 1ヶ月 | 契約形態 | 普通賃貸借契約 |
| 取引態様 | 媒介 | 内見状況 | 入居中 |
| 入居時期 | 入居中 | SOHO・事務所 | |
| ペット | 間取り内訳 | 洋:6 LDK:13.3 | |
| キャンペーン情報・備考 | 本情報は賃料改定交渉の資料作成、収益物件の利回り試算、周辺エリアや最寄り駅の坪単価分析、次回募集開始時期の予測などにご活用いただけます。 | ||
※「どの不動産に頼めばいいのか分からない」「信頼できる営業マンの話を聞きたい」「一番親切な会社と契約したい」とお悩みの方におすすめなのが「高級賃貸バイブル」です。
高級賃貸バイブルは業界10年以上の熟練スタッフ群がお客様ファーストで対応します。
下記ボタンから、まずは無料でご相談下さい。
※内覧をご希望の際には、どうぞ物件のエントランス前にてお待ち合わせくださいませ。ご内覧後は、同じ場所でお別れとさせていただきます。お客様のご都合に合わせたスムーズなご案内を心がけておりますので、ご質問等がございましたら何なりとお申し付けください。 物件概要
| 物件名 |
| 築年月 |
|
|---|---|---|---|
| 所在地 | |||
| 交通 | |||
| 総戸数 |
| 総階数 |
|
| 構造 |
| ||
地図
物件までの道のりは、「拡大地図を表示」をクリックしてナビ機能をご利用ください。
部屋設備


















建物設備

TVモニターホン

エレベーター

オートロック

宅配ボックス

敷地内ゴミ置場

管理人

駐輪場
スカイコートお茶の水の現在募集中のお部屋
- No rooms found for this property.









