
| 賃料 | 予想金額:118,000〜138,000円程度 | 管理費 | 予想金額:8,000〜12,000円程度 |
| 礼金/敷金 | 非公開(アーカイブ) | 平米数 | 28.39㎡ |
| 初期費用概算(参考) | 目安:632,500〜732,500 円 | みなし賃料(月額・参考) | 139,552〜159,552 円 |
| 備考 | 本ページは過去募集のアーカイブです。表示の金額は周辺相場・過去募集を踏まえた参考レンジであり、実際の契約金額・条件ではありません。 | ||
※上記みなし賃料(月額)は仲介手数料割引・無料&キャッシュバックを加味した高級賃貸バイブル限定の金額です。一般的なみなし賃料とは異なります。
【建物ページ】エスレジデンス三田慶大前の詳細・最新空室はこちら▶▶選ばれる理由
仲介手数料無料・キャンペーン情報(毎月15名様限定)
〇仲介手数料割引キャンペーン
エスレジデンス三田慶大前 603の口コミ・レビュー
エスレジデンス三田慶大前 603は、まるで都会のオアシスのような存在です。東京都港区芝5-12-16に佇むこの物件は、まさに洗練された生活の舞台を提供します。603号室は、28.39㎡の贅沢な空間を持ち、1Kというシンプルながらも機能的な間取りで、あなたの生活を優雅に彩ります。この部屋に入ると、洗練されたインテリアとデザインが醸し出す雰囲気に心が弾むことでしょう。
このマンションは、まるで賢者の…エスレジデンス三田慶大前 603は、まるで都会のオアシスのような存在です。東京都港区芝5-12-16に佇むこの物件は、まさに洗練された生活の舞台を提供します。603号室は、28.39㎡の贅沢な空間を持ち、1Kというシンプルながらも機能的な間取りで、あなたの生活を優雅に彩ります。この部屋に入ると、洗練されたインテリアとデザインが醸し出す雰囲気に心が弾むことでしょう。
このマンションは、まるで賢者のようにあなたを迎え入れ、日常の喧騒から解放してくれる空間を創り出します。少し西に顔を向けると、夕暮れに染まる空があなたを魅了し、忙しい日々の中で安らぎのひとときを提供してくれます。テレビモニターホンやオートロックといった設備は、まるで忠実な番人のように、あなたの安全を見守り続けます。
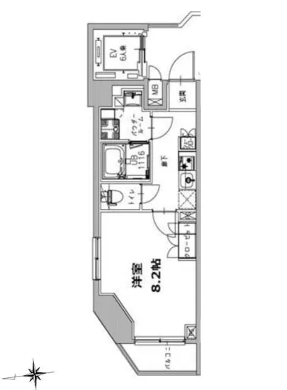
エレベーターで上がるたびに、不思議な高揚感が胸を打つのです。部屋の扉を開けた瞬間、広々とした洋室8.2帖が目の前に広がります。ここでは自由な発想が働き、リラックスしたいときは心地よいソファに身を預け、夕食の準備にも夢中になることができる演出が待っています。キッチンから漂ってくる香ばしい食材の匂いが、まるで美味しい料理の予感を告げてくれることでしょう。
近隣には、歴史と文化が息づくスポットが点在しています。田町駅から徒歩7分という恵まれた立地は、あなたの好奇心を満たす場所へのアクセスを容易にします。慶應義塾大学のキャンパスは、知識の源泉として、常に新しい刺激を与えてくれます。ここでは、知性が交わり、感性が磨かれる瞬間が日常の一部となります。
さらに、宅配ボックスや敷地内ゴミ置き場は、まるで生活を優しくサポートする小さな手助けのような存在です。駐車場や駐輪場も完備されており、必要な時にすぐにあなたの足となることでしょう。日々の暮らしがスムーズに運ぶこの環境は、まるで詩の中のワンシーンのように、心に残る瞬間を提供します。
エスレジデンス三田慶大前 603は、ただの住まいではなく、あなたの人生を豊かにするためのキャンバスです。五感を刺激する美しい環境で、毎日を特別なものにしてくれることでしょう。あなたの新たな生活が始まる場所、それがエスレジデンス三田慶大前 603なのです。さあ、ここで新しい物語を紡いでみませんか。
このマンションは、まるで賢者の…エスレジデンス三田慶大前 603は、まるで都会のオアシスのような存在です。東京都港区芝5-12-16に佇むこの物件は、まさに洗練された生活の舞台を提供します。603号室は、28.39㎡の贅沢な空間を持ち、1Kというシンプルながらも機能的な間取りで、あなたの生活を優雅に彩ります。この部屋に入ると、洗練されたインテリアとデザインが醸し出す雰囲気に心が弾むことでしょう。
このマンションは、まるで賢者のようにあなたを迎え入れ、日常の喧騒から解放してくれる空間を創り出します。少し西に顔を向けると、夕暮れに染まる空があなたを魅了し、忙しい日々の中で安らぎのひとときを提供してくれます。テレビモニターホンやオートロックといった設備は、まるで忠実な番人のように、あなたの安全を見守り続けます。
エレベーターで上がるたびに、不思議な高揚感が胸を打つのです。部屋の扉を開けた瞬間、広々とした洋室8.2帖が目の前に広がります。ここでは自由な発想が働き、リラックスしたいときは心地よいソファに身を預け、夕食の準備にも夢中になることができる演出が待っています。キッチンから漂ってくる香ばしい食材の匂いが、まるで美味しい料理の予感を告げてくれることでしょう。
近隣には、歴史と文化が息づくスポットが点在しています。田町駅から徒歩7分という恵まれた立地は、あなたの好奇心を満たす場所へのアクセスを容易にします。慶應義塾大学のキャンパスは、知識の源泉として、常に新しい刺激を与えてくれます。ここでは、知性が交わり、感性が磨かれる瞬間が日常の一部となります。
さらに、宅配ボックスや敷地内ゴミ置き場は、まるで生活を優しくサポートする小さな手助けのような存在です。駐車場や駐輪場も完備されており、必要な時にすぐにあなたの足となることでしょう。日々の暮らしがスムーズに運ぶこの環境は、まるで詩の中のワンシーンのように、心に残る瞬間を提供します。
エスレジデンス三田慶大前 603は、ただの住まいではなく、あなたの人生を豊かにするためのキャンバスです。五感を刺激する美しい環境で、毎日を特別なものにしてくれることでしょう。あなたの新たな生活が始まる場所、それがエスレジデンス三田慶大前 603なのです。さあ、ここで新しい物語を紡いでみませんか。
バイブルスコア
バイブルスコア: 34.5
平均的なスコアです。
※バイブルスコア詳細はこちら
バイブルスコアとは独自のAI機械学習技術を利用した物件評価システムで、物件のおすすめ度を示します。最高得点は100点で、スコアが高いほど、よりおすすめの物件と評価されています。
写真
契約条件
| 賃料 | 予想金額:118,000〜138,000円程度 | 管理費 | 予想金額:8,000〜12,000円程度 |
| 礼金 | 非公開(アーカイブ) | 敷金 | 非公開(アーカイブ) |
| フリーレント | なし | 平米数 | 28.39㎡ |
| 間取り | 1K | 大型収納 | |
| 契約期間 |
| 方角 | 西 |
| 更新料 | 契約形態 | 普通賃貸借契約 | |
| 取引態様 | 媒介 | 内見状況 | 入居中 |
| 入居時期 | 入居中 | SOHO・事務所 | |
| ペット | ペット可 | 間取り内訳 | 洋室=8.2J |
| キャンペーン情報・備考 | 本情報は賃料改定交渉の資料作成、収益物件の利回り試算、周辺エリアや最寄り駅の坪単価分析、次回募集開始時期の予測などにご活用いただけます。 | ||
※「どの不動産に頼めばいいのか分からない」「信頼できる営業マンの話を聞きたい」「一番親切な会社と契約したい」とお悩みの方におすすめなのが「高級賃貸バイブル」です。
高級賃貸バイブルは業界10年以上の熟練スタッフ群がお客様ファーストで対応します。
下記ボタンから、まずは無料でご相談下さい。
※内覧をご希望の際には、どうぞ物件のエントランス前にてお待ち合わせくださいませ。ご内覧後は、同じ場所でお別れとさせていただきます。お客様のご都合に合わせたスムーズなご案内を心がけておりますので、ご質問等がございましたら何なりとお申し付けください。 物件概要
| 物件名 |
| 築年月 |
|
|---|---|---|---|
| 所在地 | |||
| 交通 | |||
| 総戸数 |
| 総階数 |
|
| 構造 |
| ||
地図
物件までの道のりは、「拡大地図を表示」をクリックしてナビ機能をご利用ください。
部屋設備















建物設備

TVモニターホン

エレベーター

オートロック

宅配ボックス

敷地内ゴミ置場

駐車場平置き

駐輪場
エスレジデンス三田慶大前の現在募集中のお部屋
- No rooms found for this property.









