
| 賃料 | 予想金額:239,000〜259,000円程度 | 管理費 | 予想金額:16,000〜20,000円程度 |
| 礼金/敷金 | 非公開(アーカイブ) | 平米数 | 51.24㎡ |
| 初期費用概算(参考) | 目安:387,000〜487,000 円 | みなし賃料(月額・参考) | 260,917〜280,917 円 |
| 備考 | 本ページは過去募集のアーカイブです。表示の金額は周辺相場・過去募集を踏まえた参考レンジであり、実際の契約金額・条件ではありません。 | ||
※上記みなし賃料(月額)は仲介手数料割引・無料&キャッシュバックを加味した高級賃貸バイブル限定の金額です。一般的なみなし賃料とは異なります。
【建物ページ】スクエアガーデン池袋の詳細・最新空室はこちら▶▶選ばれる理由
仲介手数料無料・キャンペーン情報(毎月15名様限定)
〇仲介手数料無料キャンペーン
スクエアガーデン池袋 1104の口コミ・レビュー
スクエアガーデン池袋 1104、これは単なる住まいではなく、心地よい夢の舞台への扉なのです。東京都豊島区南池袋1-15-23に位置し、南西の光を浴びるこの空間は、洗練された生活を求める方々にふさわしい場所となっています。ここに足を踏み入れた瞬間、特別な物語が始まることを感じるでしょう。
この高級賃貸は、品格のある建築美と最新の設備が調和したデザイナーズ空間です。例えば、24時間管理された安心感は…スクエアガーデン池袋 1104、これは単なる住まいではなく、心地よい夢の舞台への扉なのです。東京都豊島区南池袋1-15-23に位置し、南西の光を浴びるこの空間は、洗練された生活を求める方々にふさわしい場所となっています。ここに足を踏み入れた瞬間、特別な物語が始まることを感じるでしょう。
この高級賃貸は、品格のある建築美と最新の設備が調和したデザイナーズ空間です。例えば、24時間管理された安心感は、まるで親友が常にあなたを見守っているかのようです。エレベーターで颯爽と上がれば、オートロックの扉が心地よい秘密の庭に導いてくれるでしょう。宅配ボックスからは、大切な贈り物があなたを待っている嬉しいサプライズとなりますし、駐輪場やバイク置場は、あなたのライフスタイルに寄り添う友のようです。
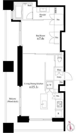
スクエアガーデン池袋 1104の間取りは、まさにアートそのもの。LDK15.1帖は、一日を思い思いに彩るリビングの舞台です。柔らかな光が差し込み、フローリングが優しく足元を包み込みます。ここで友人たちと共に料理を楽しみ、笑い声を響かせる幸せな時間が、まるで映画のワンシーンのように心に刻まれます。香ばしいパンの焼ける匂いや、新鮮な野菜がテーブルに並ぶ姿が目に浮かび、あなたの五感が満たされることでしょう。
洋室7.6帖は、静寂と安らぎをもたらす隠れ家です。柔らかなカーテン越しに差し込む夕日が、あなたを包み込み、心と体をリフレッシュさせてくれます。思わず深呼吸したくなるような、心地よい空気が流れ、安らかな眠りへと誘います。そして目覚めた朝には、窓を開け放ち、清々しい風を感じながら、新たな一日への期待に胸を膨らませることでしょう。
スクエアガーデン池袋 1104は、周囲の歴史や文化にも恵まれています。池袋の中心地に位置しながら、少し歩けば豊かな自然が広がっています。街の喧騒の中で流れる穏やかな時間は、まるで名作映画のワンシーンのような、美しいシンクロニシティを感じさせてくれるのです。
この物件は、まさにあなたのライフスタイルを豊かにするために存在しています。毎日の暮らしを特別なものに変える、そんな魔法の場所、スクエアガーデン池袋 1104で、新しい物語を紡いでみませんか。あなたの新しい住まいが、日々の生活をさらに輝かしいものに変えてくれることでしょう。
この高級賃貸は、品格のある建築美と最新の設備が調和したデザイナーズ空間です。例えば、24時間管理された安心感は…スクエアガーデン池袋 1104、これは単なる住まいではなく、心地よい夢の舞台への扉なのです。東京都豊島区南池袋1-15-23に位置し、南西の光を浴びるこの空間は、洗練された生活を求める方々にふさわしい場所となっています。ここに足を踏み入れた瞬間、特別な物語が始まることを感じるでしょう。
この高級賃貸は、品格のある建築美と最新の設備が調和したデザイナーズ空間です。例えば、24時間管理された安心感は、まるで親友が常にあなたを見守っているかのようです。エレベーターで颯爽と上がれば、オートロックの扉が心地よい秘密の庭に導いてくれるでしょう。宅配ボックスからは、大切な贈り物があなたを待っている嬉しいサプライズとなりますし、駐輪場やバイク置場は、あなたのライフスタイルに寄り添う友のようです。
スクエアガーデン池袋 1104の間取りは、まさにアートそのもの。LDK15.1帖は、一日を思い思いに彩るリビングの舞台です。柔らかな光が差し込み、フローリングが優しく足元を包み込みます。ここで友人たちと共に料理を楽しみ、笑い声を響かせる幸せな時間が、まるで映画のワンシーンのように心に刻まれます。香ばしいパンの焼ける匂いや、新鮮な野菜がテーブルに並ぶ姿が目に浮かび、あなたの五感が満たされることでしょう。
洋室7.6帖は、静寂と安らぎをもたらす隠れ家です。柔らかなカーテン越しに差し込む夕日が、あなたを包み込み、心と体をリフレッシュさせてくれます。思わず深呼吸したくなるような、心地よい空気が流れ、安らかな眠りへと誘います。そして目覚めた朝には、窓を開け放ち、清々しい風を感じながら、新たな一日への期待に胸を膨らませることでしょう。
スクエアガーデン池袋 1104は、周囲の歴史や文化にも恵まれています。池袋の中心地に位置しながら、少し歩けば豊かな自然が広がっています。街の喧騒の中で流れる穏やかな時間は、まるで名作映画のワンシーンのような、美しいシンクロニシティを感じさせてくれるのです。
この物件は、まさにあなたのライフスタイルを豊かにするために存在しています。毎日の暮らしを特別なものに変える、そんな魔法の場所、スクエアガーデン池袋 1104で、新しい物語を紡いでみませんか。あなたの新しい住まいが、日々の生活をさらに輝かしいものに変えてくれることでしょう。
バイブルスコア
バイブルスコア: 39.2
平均的なスコアです。
※バイブルスコア詳細はこちら
バイブルスコアとは独自のAI機械学習技術を利用した物件評価システムで、物件のおすすめ度を示します。最高得点は100点で、スコアが高いほど、よりおすすめの物件と評価されています。
写真
契約条件
| 賃料 | 予想金額:239,000〜259,000円程度 | 管理費 | 予想金額:16,000〜20,000円程度 |
| 礼金 | 非公開(アーカイブ) | 敷金 | 非公開(アーカイブ) |
| フリーレント | なし | 平米数 | 51.24㎡ |
| 間取り | 1LDK | 大型収納 | なし |
| 契約期間 | 2年 | 方角 | 南西 |
| 更新料 | 1ヶ月 | 契約形態 | 普通賃貸借契約 |
| 取引態様 | 媒介 | 内見状況 | 入居中 |
| 入居時期 | 入居中 | SOHO・事務所 | 不可 |
| ペット | 不可 | 間取り内訳 | LDK15.1帖 洋室7.6帖 |
| キャンペーン情報・備考 | 本情報は賃料改定交渉の資料作成、収益物件の利回り試算、周辺エリアや最寄り駅の坪単価分析、次回募集開始時期の予測などにご活用いただけます。 | ||
※「どの不動産に頼めばいいのか分からない」「信頼できる営業マンの話を聞きたい」「一番親切な会社と契約したい」とお悩みの方におすすめなのが「高級賃貸バイブル」です。
高級賃貸バイブルは業界10年以上の熟練スタッフ群がお客様ファーストで対応します。
下記ボタンから、まずは無料でご相談下さい。
※内覧をご希望の際には、どうぞ物件のエントランス前にてお待ち合わせくださいませ。ご内覧後は、同じ場所でお別れとさせていただきます。お客様のご都合に合わせたスムーズなご案内を心がけておりますので、ご質問等がございましたら何なりとお申し付けください。 物件概要
| 物件名 |
| 築年月 |
|
|---|---|---|---|
| 所在地 | |||
| 交通 | |||
| 総戸数 |
| 総階数 |
|
| 構造 |
| ||
地図
物件までの道のりは、「拡大地図を表示」をクリックしてナビ機能をご利用ください。
部屋設備











建物設備

24時間管理

TVモニターホン

エレベーター

オートロック

バイク置場

宅配ボックス

敷地内ゴミ置場

管理人

駐輪場
スクエアガーデン池袋の現在募集中のお部屋
- スクエアガーデン池袋 606 - 間取り: 1K - 賃料: 18.8万円



























