
| 賃料 | 予想金額:355,000〜375,000円程度 | 管理費 | 予想金額:0〜2,000円程度 |
| 礼金/敷金 | 非公開(アーカイブ) | 平米数 | 60.28㎡ |
| 初期費用概算(参考) | 目安:2,049,000〜2,149,000 円 | みなし賃料(月額・参考) | 391,125〜411,125 円 |
| 備考 | 本ページは過去募集のアーカイブです。表示の金額は周辺相場・過去募集を踏まえた参考レンジであり、実際の契約金額・条件ではありません。 | ||
※上記みなし賃料(月額)は仲介手数料割引・無料&キャッシュバックを加味した高級賃貸バイブル限定の金額です。一般的なみなし賃料とは異なります。
【建物ページ】AKASAKA K-TOWER RESIDENCEの詳細・最新空室はこちら▶▶選ばれる理由
仲介手数料無料・キャンペーン情報(毎月15名様限定)
〇仲介手数料割引キャンペーン
AKASAKA K-TOWER RESIDENCE 2709の口コミ・レビュー
AKASAKA K-TOWER RESIDENCE 2709。ここはただの住まいではなく、まるで夢の中の舞台のように、あなたを迎える特別な場所です。洗練されたデザインが施されたこのタワーレジデンスは、あなたのライフスタイルを豊かに彩り、心に残る日々を生み出すための舞台装置となります。運命の一歩を踏み出すその瞬間、あなたはこの贅沢な空間の中で、まるで映画の主人公になったかのような気分を味わうことでし…AKASAKA K-TOWER RESIDENCE 2709。ここはただの住まいではなく、まるで夢の中の舞台のように、あなたを迎える特別な場所です。洗練されたデザインが施されたこのタワーレジデンスは、あなたのライフスタイルを豊かに彩り、心に残る日々を生み出すための舞台装置となります。運命の一歩を踏み出すその瞬間、あなたはこの贅沢な空間の中で、まるで映画の主人公になったかのような気分を味わうことでしょう。
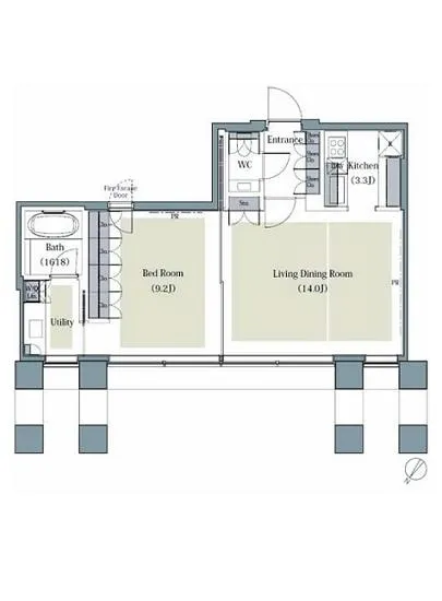
最上階に位置するAKASAKA K-TOWER RESIDENCE 2709は、贅沢な60.28㎡の専有面積を誇ります。窓の外に広がる眺望はまるで絵画のように美しく、北西の方角から差し込む柔らかな光が、室内の空気を心地よく温めてくれます。この場所で、あなたの日常は特別な瞬間へと変わっていくことでしょう。
おしゃれなLDKは、14.0帖の広さが、まるで舞台のセンターに立つ役者のように、活気を与えてくれます。そこには、豊かな生活を育むためのゆったりとしたスペースがあり、あなたの思い描く理想のライフスタイルを支えます。リビングの隣に広がる9.2帖の洋室は、静かな思索やリラクゼーションの場となり、その面で心身を癒してくれることでしょう。まるで、海に打ち寄せる波の音のような穏やかな時が、あなたを包み込みます。
この素晴らしいAKASAKA K-TOWER RESIDENCE 2709には、24時間管理やオートロックなどの安心のセキュリティが整っており、まるであなたのためだけの壮麗な城のように大切なプライバシーを守ります。また、フィットネスルームやラウンジ、宅配ボックスなどの充実した設備が、ライフスタイルの多様性を豊かにします。自分のペースで心身の健康を保ち、友人との楽しい集まりや大切な家族とのひとときを過ごすことができる、まさに理想的な環境です。
周囲には歴史を感じさせる赤坂の街並みが広がり、文化とアートの香りが漂っています。KENZOの洋服を纏ったような洗練された街並みを散策しながら、あなたの感性を刺激する美術館やギャラリーへ足を運ぶことができます。
AKASAKA K-TOWER RESIDENCE 2709での生活は、まるで詩のように美しい日常を演出します。窓の外に見える夕景を眺めるたび、あなたの内に秘めた情熱が新たに燃え上がることでしょう。そんな日々を重ねながら、あなたは家という舞台で、人生の主役としてのストーリーを歩むのです。この住まいは、ただの物件ではなく、あなたという存在を称えるために存在しているかのようです。是非、AKASAKA K-TOWER RESIDENCE 2709で、新たな物語の扉を開いてみてください。あなたの未来は、この特別な場所から始まるのです。
最上階に位置するAKASAKA K-TOWER RESIDENCE 2709は、贅沢な60.28㎡の専有面積を誇ります。窓の外に広がる眺望はまるで絵画のように美しく、北西の方角から差し込む柔らかな光が、室内の空気を心地よく温めてくれます。この場所で、あなたの日常は特別な瞬間へと変わっていくことでしょう。
おしゃれなLDKは、14.0帖の広さが、まるで舞台のセンターに立つ役者のように、活気を与えてくれます。そこには、豊かな生活を育むためのゆったりとしたスペースがあり、あなたの思い描く理想のライフスタイルを支えます。リビングの隣に広がる9.2帖の洋室は、静かな思索やリラクゼーションの場となり、その面で心身を癒してくれることでしょう。まるで、海に打ち寄せる波の音のような穏やかな時が、あなたを包み込みます。
この素晴らしいAKASAKA K-TOWER RESIDENCE 2709には、24時間管理やオートロックなどの安心のセキュリティが整っており、まるであなたのためだけの壮麗な城のように大切なプライバシーを守ります。また、フィットネスルームやラウンジ、宅配ボックスなどの充実した設備が、ライフスタイルの多様性を豊かにします。自分のペースで心身の健康を保ち、友人との楽しい集まりや大切な家族とのひとときを過ごすことができる、まさに理想的な環境です。
周囲には歴史を感じさせる赤坂の街並みが広がり、文化とアートの香りが漂っています。KENZOの洋服を纏ったような洗練された街並みを散策しながら、あなたの感性を刺激する美術館やギャラリーへ足を運ぶことができます。
AKASAKA K-TOWER RESIDENCE 2709での生活は、まるで詩のように美しい日常を演出します。窓の外に見える夕景を眺めるたび、あなたの内に秘めた情熱が新たに燃え上がることでしょう。そんな日々を重ねながら、あなたは家という舞台で、人生の主役としてのストーリーを歩むのです。この住まいは、ただの物件ではなく、あなたという存在を称えるために存在しているかのようです。是非、AKASAKA K-TOWER RESIDENCE 2709で、新たな物語の扉を開いてみてください。あなたの未来は、この特別な場所から始まるのです。
バイブルスコア
バイブルスコア: 30.2
平均的なスコアです。
※バイブルスコア詳細はこちら
バイブルスコアとは独自のAI機械学習技術を利用した物件評価システムで、物件のおすすめ度を示します。最高得点は100点で、スコアが高いほど、よりおすすめの物件と評価されています。
写真
契約条件
| 賃料 | 予想金額:355,000〜375,000円程度 | 管理費 | 予想金額:0〜2,000円程度 |
| 礼金 | 非公開(アーカイブ) | 敷金 | 非公開(アーカイブ) |
| フリーレント | なし | 平米数 | 60.28㎡ |
| 間取り | 1LDK | 大型収納 | |
| 契約期間 |
| 方角 | 北西 |
| 更新料 | 契約形態 | 普通賃貸借契約 | |
| 取引態様 | 媒介 | 内見状況 | 入居中 |
| 入居時期 | 入居中 | SOHO・事務所 | 事務所(SOHO)可 |
| ペット | 間取り内訳 | 洋:9.2 LD:14.0 K:3.3 | |
| キャンペーン情報・備考 | 本情報は賃料改定交渉の資料作成、収益物件の利回り試算、周辺エリアや最寄り駅の坪単価分析、次回募集開始時期の予測などにご活用いただけます。 | ||
※「どの不動産に頼めばいいのか分からない」「信頼できる営業マンの話を聞きたい」「一番親切な会社と契約したい」とお悩みの方におすすめなのが「高級賃貸バイブル」です。
高級賃貸バイブルは業界10年以上の熟練スタッフ群がお客様ファーストで対応します。
下記ボタンから、まずは無料でご相談下さい。
※内覧をご希望の際には、どうぞ物件のエントランス前にてお待ち合わせくださいませ。ご内覧後は、同じ場所でお別れとさせていただきます。お客様のご都合に合わせたスムーズなご案内を心がけておりますので、ご質問等がございましたら何なりとお申し付けください。 物件概要
| 物件名 |
| 築年月 |
|
|---|---|---|---|
| 所在地 | |||
| 交通 | |||
| 総戸数 |
| 総階数 |
|
| 構造 |
| ||
地図
物件までの道のりは、「拡大地図を表示」をクリックしてナビ機能をご利用ください。
部屋設備
















建物設備

24時間管理

TVモニターホン

エレベーター

オートロック

バイク置場

フィットネス

フロントサービス

ラウンジ

宅配ボックス

敷地内ゴミ置場

駐車場平置き

駐車場機械式

駐輪場
AKASAKA K-TOWER RESIDENCEの現在募集中のお部屋
- No rooms found for this property.





















